Какъв е рискът от излишна влага в почвата
Можете сами да видите резултатите от това явление - дървета и храсти загиват. Защо се случва това?
- съдържанието на кислород в почвата намалява и съдържанието на въглероден диоксид се увеличава, което води до нарушаване на процесите на обмен на въздух, воден режим и диета в почвата;
- настъпва кислородно гладуване на коренообразуващия слой, което води до смърт на корените на растенията;
- приемът на макро и микроелементи от растенията (азот, фосфор, калий и др.) е нарушен, тъй като излишната вода отмива подвижни форми на елементи от почвата и те стават недостъпни за усвояване;
- има интензивно разграждане на протеините и съответно се активират процесите на гниене.
Растенията могат да ви кажат на какво ниво са подпочвените води
Погледнете отблизо флората на вашия сайт. Обитаващите го видове ще ви кажат на каква дълбочина са разположени слоевете на подпочвените води:
- топ вода - на това място е най-добре да се изкопае езерце;
- на дълбочина до 0,5 м - растат невен, хвощ, сортове острици - мехурчета, падури, лисици, тръстика Лангсдорф;
- на дълбочина от 0,5 м до 1 м - ливадна сладка, канарче,;
- от 1 м до 1,5 м - благоприятни условия за ливадна власатка, синя трева, миши грах, чинове;
- от 1,5 м - житна трева, детелина, пелин, живовляк.
Какво е важно да знаете, когато планирате отводняването на обекта
Всяка група растения има свои собствени нужди от влага:
- на дълбочина на подпочвените води от 0,5 до 1 м, зеленчуци и едногодишни цветя могат да растат във високи лехи;
- дълбочината на водния слой до 1,5 м се понася добре от зеленчуци, зърнени култури, едногодишни и трайни насаждения (цветя), декоративни и плодови и горски храсти, дървета върху джудже подложка;
- ако подземните води са на дълбочина над 2 м, могат да се отглеждат овощни дървета;
- оптималната дълбочина на подпочвените води за земеделие е от 3,5 m.
Имате ли нужда от дренаж на сайта
Запишете вашите наблюдения поне за известно време. Вие сами можете да разберете колко дренаж е необходим.
Може би има смисъл просто да пренасочите разтопената и утаената вода по байпасен канал, вместо да ги оставите да текат през вашия сайт?
Може би е необходимо да се проектира и оборудва дренажен канал и да се подобри съставът на почвата и това ще бъде достатъчно?
Или си струва да се направи дренажна система само за овощни и декоративни дървета?
Точният отговор ще ви бъде даден от специалист, на когото силно препоръчваме да се обадите. Но след като прочетете тази статия, ще придобиете известна осведоменост по този въпрос.
В края на технологичните и производствени задачи, свързани с подреждането на канализационната система в жилищна сграда, промишлена сграда, както и в частно домакинство, се изисква да се тества съответната система по метода на принудителното разливане. Тази задача се прилага за идентифициране на възможни дефекти или неправилна инсталация на цялата участваща канализационна част, а протоколът от изпитването за вътрешни канализационни системи и улуци ще бъде веществено доказателство за приемането на съоръжението.

Визуалната проверка трябва да бъде придружена от въвеждането в сертификата за изпитване на вътрешни канализационни системи и улуци съгласно SNIP, което в момента е представено от действащите разпоредби на приложението от серия "D", което съответства на SP 73.13330.2012 "Вътрешна санитарна технически системи на сградата ", наскоро беше приложено ново актуализирано работно издание за SNiP 3.05.01-85.
Ямата за зеленчуци е за съхранение на зеленчуци и плодове. Не е трудно да го изградите със собствените си ръце.Сухотата и добрият обмен на въздух са важни критерии за спасяване на посевите. Когато създавате условия за добър микроклимат, човек трябва да внимава при внезапни температурни промени. Вентилацията в зеленчуковата яма ще помогне да се избегнат неприятни миризми и остарял въздух, както и мухъл.
Оптимална температура в избата
Оптималната температура за избите е в рамките на + 2-5 ° C. Различните продукти имат своя оптимална температура на съхранение и за някои зеленчуци тя е в диапазона от 0 до + 2 ° C. Понякога, когато съхранявате зеленчуци и плодове, се оказва, че в различните страни на стаята температурата е малко по-различна. Това може да се използва и да се постави преграда там, което ще увеличи температурната разлика в една стая. По този начин храната може да се съхранява в най-благоприятните условия за всеки вид.
При оптимална температура, храните разбира се се съхраняват добре, но трябва да запомните, че по време на съхранение в тях се губят витамини и микроелементи. Някои от витамините започват да се разграждат в рамките на три часа след откъсването на зеленчуците или плодовете и дори дори идеални условия за съхранение няма да върнат тези витамини.
Оптималната температура в избата се поддържа и чрез вентилация. Ако избата стане много студена по време на вентилация, тя е изолирана.
Ще се радвам, ако статията е била полезна за вас. По-долу предлагам да разгледам други полезни статии по темата.
Допълнителна информация
Съхранението на реколтата може да бъде сериозен проблем за летния жител. Най-разумният изход е да се изгради и организира удобно мазе за съхранение на зеленчуци.


За какво е предназначен и какви характеристики трябва да има
Плодовете и зеленчуците, закупени или отгледани със собствени ръце, трябва да се съхраняват някъде през зимата. Хладилниците се използват за съхранение на зимни препарати и пресни зеленчуци в малки количества. Торба картофи и няколко кутии чесън и лук обаче няма да се поберат в хладилника. Следователно трябва самостоятелно да изградите специална стая, където можете да поставите обратите със зеленчуци. Микроклиматът в такива изби позволява да се поддържа реколтата свежа в продължение на 4-5 месеца.
Изграденото складово съоръжение трябва да има следните характеристики и характеристики:
- температурните показатели не трябва да надвишават четири градуса по Целзий;
- нивото на влажност в избата трябва да бъде в диапазона от 90-95%;
- във вътрешността на зеленчуковата яма винаги трябва да е тъмно и следователно осветлението се включва само когато човек е вътре;
- избата е оборудвана с висококачествена вентилационна система, която ще осигури нормална циркулация на въздуха.
Естествена вентилация на избата в гаража
Ако избата е в мазето, тогава могат да се използват два вида вентилация:
Последното е добро с това, че не изисква големи финансови разходи. Тя е предпочитана, когато избата е с обем над 20 m3. Естествената вентилация се състои от захранваща тръба и изпускателна тръба. С помощта на първия канал свежият въздух навлиза от улицата, с помощта на втория, сутеренният въздух се отстранява навън. За да се предотвратят студените места и стагнацията на въздуха в стаята, е необходимо да се монтират тръби в противоположните ъгли.


В избата качулката е направена възможно най-високо. Може да се монтира по 2 начина:
- през и през, през припокриването на пода на гаража с излаз към покрива;
- направете дупка в стената на избата.
В първата версия следва, че дължината на комина е с 50 см по-висока от билната част на покрива.Накрая, вентилационният канал трябва да бъде монтиран с козирка или дефлектор. Той ще предпази вентилацията от валежи и прах, ще създаде допълнителен вакуум.
Самите тръби могат да бъдат избрани от всякакъв материал, по-често това е канализационна пластмаса с диаметър 10-20 см. Можете да използвате азбест.Диаметърът на вентилационните канали се изчислява по следната формула: на всеки 1 м2 от помещението трябва да има 1,5 см от диаметъра на тръбата.
Важно! Захранващият канал е монтиран на 50 см по-високо от пода на мазето. Препоръчително е да затворите входа му с фина мрежа, която ще предотврати проникването на вредни насекоми и гризачи.
Каналите са оборудвани с амортисьори, така че тръбите могат лесно да се затварят по време на замръзване. Важно е да ги монтирате правилно, амортисьорите са кръгли и правоъгълни. Всеки тип вентилация е оборудван с тях, независимо дали става дума за жилищно или помощно помещение.
Оразмеряване
Преди да оборудвате гаражното пространство със зеленчукова яма, трябва да решите размера му.


При определяне на площта на избата се взема предвид дебелината на основата със стените. Също така, когато се изчислява оптималната площ, се взема предвид, че размерите на помещението за съхранение на зеленчуци трябва да бъдат удобни за човека вътре. Ето защо експертите съветват да се изкопае яма, чиято ширина ще бъде 70-80 сантиметра.
Тъй като ямата трябва да се намира под гаража, нейната дължина директно зависи от дължината на гаражното пространство, както и от количеството храна, което ще се съхранява в нея. Например, ако мазето е построено за малко количество осоляване, тогава дължината му може да бъде 2-3 метра.
Минималната дълбочина на избата за съхранение на кисели краставички е един и половина метра. Ако обаче собственикът на помещението е твърде висок, се изкопава яма с дълбочина 160-170 сантиметра.


Избор на седалка
Съоръжението за съхранение на запаси от зеленчуци и плодове трябва да служи повече от една година. За висококачествена сграда трябва да изберете подходящо място. При извършване на такава работа трябва да се вземат предвид някои особености. Например, мястото трябва да е на хълм, така че подземните води да не попадат в ямата, следователно нивото на тяхното появяване се определя предварително.
Проверката може да се извърши самостоятелно чрез пробиване на кладенец с дълбочина около 2,5 метра. В този вид се оставя за няколко дни и след това се проверява дали там се е появила вода. Ако мястото е сухо, тогава можете спокойно да започнете да подреждате съхранението. Друг вариант за изпитване е измерването на дълбочината в съседни кладенци.
Опитните майстори ви съветват да направите план за себе си, преди да започнете строителството. Това ще ви позволи да се ориентирате по-добре при извършване на работа.
Подготовка за работа
Отначало изграждането на изба със собствените си ръце може да изглежда като изключително трудна задача, но дори и начинаещ строител може да се справи. Най-трудната стъпка ще бъде изборът на точното място. Преди това се смяташе, че избата може да се намира изключително под къщата или в лятната вила. Но в действителност може дори да се организира в гараж. Ето защо собствениците на апартаменти не трябва да отказват да съхраняват реколтата си.
Преди да започнете изграждането на зеленчукова яма, трябва да изработите следните въпроси:
- Проверка на наличността на помощни програми. Ако ще построите изба в града, уверете се, че не докосвате електрическите кабели, тръбопроводи и газопроводи. В тази връзка е много по-добре да направите дупка във вече завършена стая - гараж или изба.
- Изследване на почвата. Най-често ще ви е необходима помощта на специалист, за да извършите този етап. Това ще помогне да се установят характеристиките на почвата и нивото на разпространение на подпочвените води. Тези фактори не могат да бъдат пренебрегнати, тъй като в противен случай рискувате да получите редовно наводнена зеленчукова яма. В идеалния случай подземните води трябва да са доста под предвиденото дъно на хранилището, в противен случай ще ви е необходима сложна хидроизолационна система. Това ще доведе до много пари и време. Повечето професионални строители вярват, че дори хидроизолацията няма да помогне - рано или късно водата все пак ще проникне в ямата.
- Разработване на проекти.Преди да започнете строителството, струва си да отделите време за изчисляване на площта на бъдещото съхранение и създаване на чертеж. Това ще намали възможните недостатъци и значително ще опрости работата ви.
Много хора смятат, че избата и ямата за съхранение на зеленчуци са взаимозаменяеми термини. Това твърдение е вярно, но избата все още е по-сложна структура, която не винаги е възможно да се изгради със собствените си ръце. Мини съхранение на зеленчуци може да се направи в мазето или гаража. Единственото условие е сухотата и херметичността на избраната стая.


Пример за проект за устройството на зеленчукова яма.
Избор на обект и последващо планиране
Първо, трябва да вземете решение за избора на мястото, където планирате да оборудвате зеленчуковата яма. Традиционно тя е подредена под складово помещение в частна къща или под градинска къща. За жителите на жилищни сгради е възможно да се организира удобно място за съхранение, като се оборудва зеленчукова яма в гаража.
Важно е да се отбележи, че въпреки привидната простота на дизайна, само изкопаването на яма не е достатъчно за оборудването на този вид изба.
Ако се интересувате от информацията за това как да направите зеленчукова яма, трябва да вземете предвид следната информация
Когато планирате строителство, трябва да вземете предвид няколко момента:
за да не повредите електрически кабел или тръби, които случайно лежат в земята, ще трябва да се уверите, че на това място няма инженерни комуникации
От тази гледна точка е по-удобно да се оборудва яма в мазето или гаража; необходимо е да се определят характеристиките на почвата - важно е да се събере информация за нивото на разположение на подпочвените води на планираната строителна площадка (за това може да се наложи да се свържете със специалист за помощ). За да бъде конструкцията достатъчно трайна, е необходимо да се избере място с ниво на подпочвените води под дъното на планираното съоръжение за съхранение - най-малко половин метър
Ако са разположени достатъчно близо, не трябва да пренебрегвате този проблем - в този случай ще трябва да оборудвате надеждна хидроизолационна система (в противен случай можете да получите зеленчукова яма, редовно загрята с вода). Подобна договореност ще доведе до осезаеми финансови и трудови разходи, а водата все още може да намери вратичка и да проникне вътре във времето; в магазин за зеленчуци ще трябва да осигурите подходящ режим на температура и влажност. За да се предотврати набръчкването и изсъхването на плодовете, оптимална е влажността от 85-95%, както и температурен режим малко над нулата (от 2 до 5 ° C). Съхранението при тези условия ще предпази продуктите от разваляне и ще ви позволи да запазите максимално полезните вещества в тях. Поставеният там термометър ще помогне да се следи температурата в зеленчуковата яма; за да се осигури приток на свеж въздух в хранилището, е необходимо да се оборудва вентилация в него - да се изведат захранващите и изпускателните тръби навън; освен това, за да се изключи покълването на зеленчуци по време на съхранение, ще е необходимо тази стая да е тъмна.
Организация на принудителен призов
Принудителната вентилация в сутерена на гаража се организира чрез добавяне на електрически вентилатори към системата. Не е трудно да се направи такава вентилация. Основното му предимство е поддържането на нормални условия на температура и влажност, независимо от сезона и капризите на времето.


Схема за монтаж на вентилатора на въздуховода.
Схемата на контролираното вентилационно устройство практически не се различава от принципите за създаване на естествена вентилация на избата под гаража: тръбите са закрепени по подобен принцип, след което вентилаторът е монтиран вътре в изпускателната тръба. Вентилаторът гарантира наличието на чист въздух, когато е необходимо. Трябва да се отбележи, че такава качулка може да бъде създадена не само с помощта на вентилатор.
Ето още няколко начина:
- Ротационен лопатест дифузор. Това устройство е монтирано в горната част на захранващата тръба и работи под налягане на вятъра.
- Ефективната вентилация в избата под гаража се осигурява и от дефлектор, който създава разредена въздушна зона и подобрява въздухообмена. В горната част на комина са монтирани дефлектори.
- Традиционният вариант е инсталирането на отоплителна крушка в комина. Това ще подобри аспиратора, който ще бъде осигурен чрез нагряване на въздуха, движещ се през тръбата.


Вентилаторът е вграден в комина.
Разбира се, най-модерният метод за организиране на принудителна вентилация на избата под гаража може да се нарече механизиран тип, когато циркулацията на въздуха се регулира от моноблок. Инсталираният в него софтуер напълно контролира модулната система, така че такава качулка е най-добрият вариант днес. Единственият проблем е високата цена на системата.
Консултант на сайт, строител-инсталатор с 8 години опит. Започва кариерата си като монтажник-довършител, в момента работи като бригадир във фирма, занимаваща се с крайградско строителство.
Въпросът за запазването на зеленчуковата реколта през зимния период винаги е бил актуален. Една от опциите за запазване на храна, по-специално зеленчуци, са зеленчукови ями (изби), оборудвани в гаража. Прочетете инструкциите за това как да направите изба в гаража на тази страница.


На снимката е показан пример за зеленчукова яма в гаража.
Спецификации
Оптимални условия за съхранение на храна в зеленчукова яма:
- температурата на въздуха трябва да бъде от два до пет градуса по Целзий;
- влажността на въздуха трябва да бъде между 85% и 90%;
- потъмняването винаги трябва да остане в зеленчуковата яма, осветлението се използва само когато хората са в магазина за зеленчуци;
- задължително оборудване за подаване на чист въздух.
Устройство
Оформлението на инспекционните и зеленчукови ями в гаража започва с разработването на следните въпроси:
- определяне на типа характеристика на почвата за даден район;
- нивото на замръзване на почвата и нивото на разпространение на подпочвените води;
- проверка за наличие на подземни комуникации, което е много важно, ако гаражът се намира в рамките на града;
- тогава се изготвя проект за гараж със зеленчукова яма.
Проектът трябва да включва следните елементи:
- прогнозни размери (дълбочина и ширина);
- хидроизолация, ако е необходимо, оборудване на дренажната система;
- подреждане на топлоизолация;
- подреждане на пода;
- оборудване за захранване и изпускателна вентилация.


Пример за дизайнерска схема за гараж със зеленчукова яма (изба) на фигурата
Подреждането на зеленчукова яма прави избата перфектна
Ямата за съхранение в гаража, както казахме, трябва да бъде хидроизолирана. Може дори да се наложи да направите кръгла дренажна система в избата. Такива мерки се извършват в случаите, когато подпочвените води са близо до дъното на магазина за зеленчуци.


Хидроизолация на ямата за съхранение на култури
Най-лесният начин за предпазване на подовата повърхност на зеленчукова яма от влага е както следва:
- обработвате пода с битумен разтвор (за надеждност - два пъти);
- полагайте листове покривен материал върху битум;
- повторно нанесете разтвора;
- направете пълнеж върху покривен материал, като използвате едър пясък.
Стените на хранилището също могат да бъдат покрити с битум или може да се използва по-скъпа проникваща хидроизолация.
Последният щрих е инсталирането на вентилация в мазето. Най-лесният начин е да направите естествена система за подаване и изпускане. За да направите това, трябва да поставите две тръби (за изпускане и подаване на свеж въздух) на определена височина от пода. Инсталирането на принудителна вентилация ще изисква повече разходи. Ще трябва да закупите специален електрически вентилатор и да го поставите в тръба с две клапи. Вашата зеленчукова изба е готова!
Това е интересно: Колко тухли са ви необходими за гаража - ние ще напишем във всички подробности
Добавяне на коментар Отказ на отговор
Трябва да влезете, за да публикувате коментар.
В дворовете на частни къщи по правило има изби. И къде другаде да съхранявате запаси от зеленчуци, плодове и всякакви вкусни консерви. В такова икономическо съоръжение през зимата трябва да се осигури вентилация на избата. Правилният обмен на въздух ще предотврати влага и плесен в стаята. В крайна сметка неконтролираната постоянна циркулация на въздуха също разваля зеленчуците, те стават летаргични и сухи. За да се увеличи максимално естественият поток на чист въздух, е необходимо да се инсталира приточна и изпускателна вентилация. Само тогава може да се създаде желаната температура и влажност.
Принудителна вентилация на зеленчуковата яма


Ако зеленчуковата яма е в гаража, трябва да се предпочита принудителната обмяна на въздух. Подреждането на такава вентилация включва инсталирането не само на въздуховоди, но и на вентилатори.
Алгоритъм на устройството
- В близост до тавана на ямата е монтиран въздуховод за отстраняване на въздуха. Краят на тази тръба трябва да бъде с 0,5 м по-висок от покрива на гаража.
- На самото дъно на зеленчуковата яма, на разстояние 10 см от пода, е монтиран захранващ разклонителен канал. Той се простира на 0,25 см навън, свързва се с лакътя под ъгъл 90 ° и излиза през стената в долната част на сградата към улицата.
- При принудителна вентилация тази верига се усилва от вентилаторите. Работата на механичните устройства трябва да съответства на обема на проветривото помещение.
- Добър вариант може да бъде комбинация от естествени и принудителни системи за обмен на въздух. За това във вентилационния канал е монтиран изпускателен вентилатор, предназначен за отвеждане на въздуха. Той създава въздушен вихър, насилствено изхвърляйки въздушните потоци от зеленчуковата яма. Следователно, като същевременно се осигурява приток на свеж въздух от захранващия вентилационен канал.
Етапи на строителство
Изкопаването на дупка за съхранение на зеленчуци не е твърде трудно. Много по-трудно е да го оборудвате правилно. При изграждането на магазин за зеленчуци е необходимо да се вземат предвид въпросите за подреждането на пода и стените, организацията на хидро и топлоизолация, както и осигуряването на вентилация.
Ако поставяте яма на открито, а не в завършено мазе или гараж, първо изкопайте яма с правилния размер.
Подреждане на подове, стени и тавани
На дъното на ямата се полагат 10 см трошен камък и 15 см пясък. Всеки слой трябва да бъде внимателно набит. След приготвяне слоевете трябва да бъдат напълнени с битум или друго вещество със сходни свойства. В идеалния случай изсипете плоча от стоманобетон, след като предварително сте положили слой хидроизолационен материал. Ако тази опция не е възможна, можете да покриете пода с дървени дъски.
След това трябва да се справите със стените и тавана. Като алтернатива можете да поставите стените от тухли. В този случай е по-добре да поставите тавана на ямата със свод, като полагате тухли върху шаблони, изработени от дъски. Можете също така да подредите бетонен под. За да направите това, трябва да подготвите дървен кофраж и да поставите арматурната клетка вътре.
В процеса на работа с тавана трябва да оставите място за шахта. Най-добре е да го направите в средата на тавана. В този случай ще имате достатъчно място за поставяне на стелажите. На мястото на люка трябва да се монтира ограничител за капака.
Когато таванът е готов, е необходимо да го изолирате. За целта го покрийте с битум и го изолирайте с помощта на съществуващия изолационен материал (пяна, експандирана глина или шлака).
Хидроизолация
Висококачествената хидроизолация е предпоставка за дългосрочно съхранение на посевите. Този въпрос трябва да се вземе особено сериозно, ако нивото на подпочвените води в района е достатъчно високо. В този случай ще трябва да изградите кръгла дренажна система.
Топлоизолация
Натуралните зеленчукови продукти не понасят внезапни промени в температурата. Внезапното затопляне може да доведе до гниене и болести, а температурите на замръзване ще доведат до драстични промени във вкуса. Поради тази причина трябва да се уверите, че вашето хранилище се поддържа винаги на подходяща температура.Най-лесният начин да направите това е с подходяща топлоизолация.
По-добре е да изолирате стените от двете страни - външни и вътрешни. Но често собственикът на вече построената зеленчукова яма го получава, така че външната му изолация е невъзможна. След това остава да се изолират вътрешните му стени. Тази работа може да се извърши със собствените си ръце, като се използва всяка изолация на плоча. Не забравяйте да се уверите, че е устойчив на влага. Експертите смятат, че експандираният полистирол ще бъде най-добрият избор.
Осигуряване на вентилация
Постоянната циркулация на въздуха ще ви помогне да поддържате правилния микроклимат в магазина. Следователно последният етап от строителството трябва да бъде организирането на балансирана вентилационна система.


Вариант на вентилационното устройство в зеленчуковата яма, разположена в гаража.
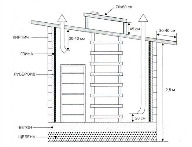
Най-простият вариант, който можете да изградите сами, е естествената вентилация с помощта на две тръби. Единият от тях ще бъде на входа, а другият на изхода. Те трябва да бъдат поставени на различна височина в противоположните ъгли на избата. Можете да използвате всякакви тръби, които имате, но пластмасови или азбесто-циментови тръби с диаметър 10-15 см са по-подходящи за зеленчукова яма. Захранващата тръба трябва да започва на 20 см от пода и да излиза на височина около 20 см над нивото на капака на избата. Ауспухът трябва да започва точно под тавана и да изтича възможно най-високо над покрива на стаята.
На тръбите трябва да се монтират клапани, които ще ви позволят да регулирате въздушния поток. За да се предпази хранилището от проникване на вредители, краят на подаващия въздуховод се затваря с фина метална мрежа. За да се предпази от валежи, горният край на комина е поставен под специална шапка-чадър.
Разликата в температурата и налягането ще осигури постоянен приток на чист въздух в помещението.
Отделно трябва да се каже за необходимостта от висококачествена вентилация на ямата, разположена в гаража. Отработените газове от автомобила трябва да се отстраняват своевременно и да не попадат върху храната.
Монтаж на стелажи
Поради факта, че площта на ямата често е малка, трябва разумно да се подходи към организацията на нейното пространство. Практиката показва, че стелажната система е идеална за съхранение на култури и продукти.
Като се вземат предвид особеностите на микроклимата на избата, някои собственици на къщи целенасочено правят рафтове от дърво. В този случай трябва да се даде предпочитание на бор, тъй като поради неговите специални свойства той ще предпази продуктите от вредители и гниене. Някои собственици предпочитат пластмаса или метал, но това не решава проблема с конденза. Когато се образува на рафтовете, той няма да се абсорбира, а ще попадне директно върху вашите запаси.


Вместо стелажи можете да използвате обикновени кутии, подредени една върху друга.
Най-често не е възможно да се намерят готови мебели, които идеално се вписват в размерите на ямата. Има две възможни решения. Първо, можете сами да направите рафтове или да ги поръчате според индивидуални скици. На второ място, можете да изоставите идеята за рафтове и да предпочетете чекмеджета. Те могат да се пълнят с храна и да се подреждат една върху друга. По този начин те няма да заемат много място.
По този начин ямата за съхранение на реколта е сграда, която можете да построите със собствените си ръце. Основните условия за успешното съхранение на храната са сухота, постоянна циркулация на въздуха и липса на внезапни промени в температурата. Ако изберете правилното място и следвате съветите в тази статия, можете да сте сигурни, че плодовете и зеленчуците ви ще останат пресни и вкусни дълго време.
Естествена вентилация в зеленчуковата яма
Яма за зеленчуци може да бъде построена в гараж или на открито. Ако се намира в гаража, вероятно ще бъде разделен от преграда с отвор за гледане. Въпреки това, където и да е построен, е необходимо да се мисли върху вентилационната система. Важен момент е материалът, от който е оборудван. Това може да бъде:
- дърво;
- бетонни плочи;
- тухла.
Висококачествената естествена вентилация на зеленчукови ями до голяма степен зависи от изолацията на помещението.
Най-простият вариант, ако ямата е разположена на улицата, може да бъде инсталирането на два въздуховода със същия диаметър на напречното сечение. Те трябва да бъдат монтирани в противоположни ъгли. Вентилационният канал за подаване на въздух е монтиран на разстояние 0,2 м от пода. Този канал ще минава през тавана. Навън коминът трябва да се издига над земята с поне 0,2 м. Коминът е монтиран под тавана в тавана. Той се извежда възможно най-високо от повърхността на тавана.
Поради притока и изтичането на въздух през вентилационните канали ще се осъществи естествена циркулация на въздуха. Тя се основава на разликата в налягането във и извън помещението. Ако навън през зимата има силни студове, вентилацията се изключва с помощта на амортисьори.
Единственият недостатък на естествения въздушен обмен е зависимостта от метеорологичните условия. През топлия сезон въздухът може да застоява поради липсата на нормално течение. Друг важен момент е защитата на вентилационните тръби от вредители и валежи. В първата версия можете да използвате мрежа, във втората - специален чадър, изработен от метал или пластмаса.
Хидроизолация на зеленчукови ями
Етап 1. Подготовка на повърхността
- Отстранете разхлабения бетон механично (с помощта на отборен чук, перфоратор или апарат с високо налягане (HPA) от типа KERCHER).
- Почистете бетонната повърхност с метална четка от четина от прах, мръсотия, мляко, лепило за плочки, боя и други материали, които предотвратяват проникването на активни химически компоненти в бетона.
- По цялата дължина на пукнатините, шевовете, фугите, опорите и около входа на комуналните услуги направете ленти с гълъбови опашки с дълбочина 30 и външна ширина 20 мм. При силно повреден бетон размерът на наказанието се увеличава.
- Почистете валовете с метална четина, тел с високо налягане.
- Ако армировката е изложена, отстранете достатъчно бетон зад армиращите пръти, докато те бъдат напълно почистени. Отстранете ръждата механично или химически (върху чист метал) и нанесете антикорозионно покритие (минерал, епоксидна смола или цинк) преди да нанесете материала, или
Етап 2. Хидроизолация на конструктивни елементи
б) фуги, пукнатини.
- Навлажнете стробоскопа добре.
- Пригответе материален разтвор
- Напълнете го плътно в линията (с линия 20 X 30 mm, разход на материал 1,35 kg / lm.)
Материалът има проникващ ефект, така че стробът под него не се нуждае от предварителна обработка с проникващи съединения, което благоприятно отличава линията материали KT Tron от други марки.
Етап 3. Нанасяне на хидроизолационно покритие
Хидроизолация на бетон с проникваща смес:
- Навлажнете добре бетонната повърхност.
- Пригответе разтвор от хидроизолационен материал, нанесете го на два слоя с четка от синтетични влакна.
- Нанесете първия слой върху мокър бетон с четка, като нанасяте удари в една посока (без размазване).
- Навлажнете повърхността, преди да нанесете втория слой. Нанесете втория слой върху свеж, но вече зададен първи слой; препоръчително е да нанесете слоевете в перпендикулярни посоки.
- Изчисляване на материала за двуслойно нанасяне върху гладка повърхност от 0,8 kg / m2, върху грапава повърхност - 1,0 kg / m2.
Стъпка 4. Грижа за повърхността
Необходимо е да се гарантира, че повърхностите, обработени с хидроизолационните материали на системата "KT Tron", остават мокри в продължение на 3 дни, не трябва да се наблюдават пукнатини и лющене на покритието, спазва се температурният режим.
За овлажняване на обработените повърхности при хидроизолация на зеленчукови ями обикновено се използват следните методи: пръскане с вода, покриване на бетонната повърхност с найлоново фолио.
Предговор
... Самоизолацията на инспекционната яма в гаража е цял набор от работи, които са насочени към защита на конструкцията от влага от почвата. Но какви материали да изберете, как да хидроизолирате инспекционната яма и да я инсталирате правилно? Всичко това ще бъде разказано и показано във видеото от тази статия, която съдържа само информация, проверена от собствения ни опит.
Всеки собственик на автомобил иска неговият железен кон да служи дълго време и за това е необходимо да осигурите на автомобила своевременен ремонт и поддръжка. Много ентусиасти на автомобили, въз основа на своя опит, предпочитат сами да извършват малки ремонти в гаража. И това изисква гараж, оборудван с инструменти и аксесоари.
Изграждане на ями
След внимателно планиране можете да започнете да изграждате своя собствена зеленчукова яма. Първата стъпка е да се изкопае яма за бъдещата изба. След това трябва да изкопаете изкоп в него, в който ще бъде инсталирана основата. Натрошен камък се изсипва отдолу (дебелината на слоя му трябва да бъде най-малко десет сантиметра), а отгоре - изграждане на пясък със слой от петнадесет сантиметра. И двете нива трябва да бъдат правилно трамбовани и изравнени.
След това можете да напълните основата с нагрет битум или друг подобен състав. Ако искате да направите съхранението много надеждно, можете да поставите хидроизолационен материал точно върху пясъка - например покривен материал - и да го покриете със стоманобетон отгоре. Подобна работа обаче ще отнеме повече време и ще струва много повече. Не във всички случаи е необходима такава мощна хидроизолация. Понякога дървени дъски се поставят на пода върху бетона.
След като подът в зеленчуковата яма на гараж или частна къща се излее, можете да преминете към стените. Най-често се изграждат от бетон или тухла. За тях се установяват следните изисквания:
- за здравина бетонът трябва да бъде обвързан с пръти от стоманена армировка;
- тухлената зидария трябва да е с дебелина поне половин тухла, но по-добре - цяла или дори една и половина.
Силата на тавана е особено важна, ако над избата има сграда. След като направихте зеленчукова яма в гаража, струва си да запомните, че над нея ще има кола. В случая с частна къща това е още по-сериозно. Ако секцията в горната част е празна, тогава изискванията за конструкцията са малко намалени - основното е, че тя е надеждна и не се срутва надолу.
Таванът може да бъде разположен или от тухли, положени върху дъски, или от бетон - в този случай ще ви е необходима рамка, направена от армировка. На този етап е необходимо да се осигурят всички необходими отвори: входът, където ще бъдат монтирани стълбата и люкът, и местата за проход за вентилация. Най-удобното място за шахта е в центъра на подовата настилка. В този случай всички стени ще останат свободни, по които ще бъде възможно да се инсталират много стелажи. Последният етап е изолацията на тавана. За да направите това, той е покрит с битум и изолиран с пяна или експандирана глина.
Направи си сам отопление на вода в частна къща и нейното инсталиране
Зеленчукова яма: производствени характеристики
Изграждането на зеленчукова яма в гаража започва с избора на правилното място, на което водната маса ще бъде съответно по-ниска от предвидената яма, защото това е важно условие. Ако обаче няма такова място, тогава ще трябва да помислите за хидроизолация (вж
).
В крайна сметка гаражите, като правило, нямат голяма площ и изборът на място няма да бъде голям. Цялата работа ще се извършва на ръка и затова всичко трябва да се извършва ефективно и правилно.


Така:
- Веднага след като проблемът с водата бъде решен, можете да започнете да копаете яма, която естествено трябва да има необходимите размери, в нея се прави изкоп под основата, след което се изсипва развалини. Всичко това трябва да се трамбова и бетонира.
- Сега трябва да поставите стените с дебелина една и половина тухли, като ги покриете с горещ битум. Тук трябва да направим висококачествена зидария. Не забравяйте, че на тавана на ямата ще има кола и тя не трябва да се извършва.
- Ако има желание, тогава таванът може просто да се бетонира, както често правят много собственици.


- Зидарията в тази версия се извършва върху циментов разтвор. За това, например, за M300, е необходимо да се предвиди съотношението на пясък и цимент 3/1.
- Когато полагате тухли, трябва да наблюдавате превръзката. Шевът не трябва да съвпада. В противен случай структурата няма да продължи дълго.
- След полагане на стените, оставете ги да изсъхнат напълно. И след това започваме да правим тавана. За това се нуждаем от канал и фитинги. Не забравяме и за шалевката. Той ще е необходим за кофража.
- Нарязахме shalyov до размер, равен на ширината на ямата. За предпочитане няма разрешение.
- Разстиламе го на плоска равнина и го чукваме в щит.
- Сега ще трябва да направим опори. Всички дневници са най-подходящи за това.
- Поставяме щита и го поддържаме с трупи. В ямата имаме дървен таван.
- Сега изрязваме канала и фитингите до желания размер. Това се прави с мелница и отрязващо колело.
- Поставяме канал по периметъра на ямата и го заваряваме заедно.
Как да проектирате зеленчукова яма в гаража със собствените си ръце
За да изградите правилно зеленчукова яма, ще трябва да се справите с основните етапи на строителството.
Изграждаме яма
Избата започва да се създава чрез изкопаване на яма, в която ще бъде изградено мазе за съхранение на зеленчуци с консерви. След това те извършват подреждането на пода. За да направи настилката надеждна, тя е направена от няколко слоя. Първо, дъното е покрито с малък слой чакъл, който е трамбован с вибрационна плоча. След това уплътненият трошен камък се пълни със строителен пясък и се излива с бетон.
Когато настилката се втвърди, стените са завършени. За това е подходяща масивна тухла, която е устойчива на висока влажност. Стените са разположени по такъв начин, че шевовете на всеки следващ ред тухли да не съвпадат с предишния.


След създаването на стените се прави надежден таван, който може да издържи на всяко натоварване. При производството на тавана в горната част на ямата се полагат дъски, върху които се полага армировка и се излива бетон. След като завършите с тавана, можете да направите стълбище, което е инсталирано близо до входа отвътре.
Обезводняване
Преди да задействате зеленчуковата яма, стаята се изсушава, така че стените с тавана и пода да са напълно сухи. Има няколко метода, които помагат за изсушаването на избата:
- Поставете метална кофа в центъра на мазето, напълнете я с дърва и запалете огън. Използвайки този метод, ще трябва да поддържате огъня за час и половина.
- Извадете метална тръба навън и инсталирайте горяща свещ под нея, която ще осигури естествено течение.


Хидроизолация
Понякога зеленчукови ями се правят в район с високо ниво на подпочвените води, поради което влажността се увеличава. В този случай трябва да се монтира хидроизолация вътре в мазето, което ще помогне да се поддържа нивото на влажност в нормални граници.
Изборът на изолация
За да се поддържа оптималната температура в избата, ще е необходима допълнителна топлоизолация. Избраният топлоизолационен материал трябва да има следните свойства:
- екологичност;
- химическа безопасност;
- надеждност;
- защита от влага.


За да изолирате склад за зеленчуци, използвайте полистирол или експандиран полистирол.
Вентилационно устройство
Във всяка изба трябва да има вентилация, тъй като тя е тази, която е отговорна за циркулацията на кислород вътре. Когато организират вентилационната система, те инсталират захранващите и изпускателните тръби. Захранващият въздух се намира близо до пода, а отработените газове се извеждат през покрива.
Метална яма за съхранение на зеленчуци и вентилационна система в нея
Днес металните кесони са в голямо търсене. Популярността на железните ями за съхранение на зеленчуци се дължи на факта, че този дизайн напълно предпазва съдържанието на резервоара от външни дразнители.


Днес металните кесони са доста популярни за съхранение на култури.
По принцип те купуват готови метални конструкции и ги инсталират на сайта с помощта на специално оборудване. Предимството на желязната яма пред другите магазини за зеленчуци е в трайността.
Ако е възможно, пространството между ямата и металния контейнер трябва да бъде покрито със смес от чакъл. Две дренажни тръби са монтирани вертикално по стените. По време на проектирането на ямата трябва да помислите какъв вид вентилационна система ще инсталирате. Безопасността на зеленчуците ще зависи от това колко добре е направена вентилацията. Ако има недостатъчна циркулация на въздуха, на дъното на контейнера ще се събере конденз.
Най-често те отдават предпочитание на захранващите и изпускателните системи. За вентилация се използват железни тръби. Те са заварени директно в металната конструкция. Както и в предишните версии, захранващата тръба е фиксирана възможно най-близо до пода от едната страна на стаята, а изпускателната тръба от другата страна на стаята, колкото е възможно по-близо до тавана. захранващите и изпускателните тръби, толкова по-добра ще бъде вентилацията. Влажността на въздуха може да бъде намалена чрез допълнително инсталиране на кутия с готварска сол в стаята.
Устройство за захранваща тръба
Правилното разположение на тръбата е близо, но не е близо до стената на избата. Краят на канала ще бъде на около 20-50 сантиметра от пода. Краят на тръбата трябва да се изведе през основния блок на гаража. За да се предпази помещението от проникване на гризачи и други вредители, на изхода за вентилация трябва да се монтира мрежа с фини мрежи. Изходът трябва да бъде разположен точно над фундаментните блокове, малко по-далеч от основните стени на сградата. По този начин може да се получи оптимален приток на чист въздух в избата. Тази схема се използва при организиране на принудителна и естествена вентилация.
Важни съвети при инсталиране на вентилация на чист въздух:
- Всмукването на въздух трябва да става извън стените на гаража и други помещения, за предпочитане далеч от портата, така че отработените газове да не навлизат в комина при влизане в комина. Можете да измислите вариант захранващата тръба да бъде разположена по-далеч от стените на гаража, но трябва да помислите за поставяне без завои и прави ъгли.
- Можете да направите такъв вентилационен канал дори на етапа на изграждане на избата. За да направите това, пространството в тухлената зидария е ограничено в стената, с размери около половин тухла. Зидарията трябва да се извърши съгласно всички правила, като се използва един и същ хоросан, но отдолу има достатъчно голяма дупка, чийто край ще бъде изведен на улицата през гаражния блок.
- Дупката в зиданата стена или тръба трябва да е на поне 25 сантиметра от стените на гаража. По този начин се осигурява нормален обмен на въздух.
- Диаметърът на тръбата също има значение. Твърде малкият няма да осигури нормален въздушен поток, а големият диаметър ще направи работата неефективна поради топлинни загуби. Изчислението може да се вземе по следния начин: за всеки кубичен метър от помещението трябва да има поне 15 мм тръба. Простите изчисления ще ви позволят да получите повече или по-малко правилен размер на раздела. Същите правила се прилагат за дизайна на комина, така че е по-добре те да са еднакви. Това допълнително ще помогне за правилното организиране на обмяната на въздух без излишни проблеми.
- За зимното време е необходимо да се предвиди изолация на външната част на тръбата. За тези цели можете да използвате всякакъв изолационен материал, до парцали. При редовно замразяване можете да помислите за система за бързо размразяване, например да изолирате края с незапалими материали и да направите огън под него.
- От вътрешната страна на захранващата вентилация трябва да се осигури амортисьор, за да се предотврати замръзването на храната при отрицателни външни температури.Препоръчително е да не се затваря напълно дупката, дори при силен студ свежият въздух трябва да попадне в избата.
- За да предотвратите снега да покрие дупката през зимата, трябва периодично да почиствате района или да използвате голяма кутия от шперплат. Той ще осигури необходимата защита и въздухът няма да е толкова студен в сравнение с другия вариант.
Пластмасовата версия може да се използва като подходящ материал за монтиране на захранващата тръба. Напречното сечение на тръбата трябва да бъде от 8 сантиметра, в зависимост от размера на избата, можете да вземете още повече. Пластмасовите тръби се оказаха отлични за такава работа. Те не корозират, не плесняват и не гният. Дори ако на повърхността се появят гъбички или плесени, е доста лесно да се обработят с годишната дезинфекция на мазето.
Най-простият дизайн на комина: в основния блок на гаража трябва да направите дупка с диаметър най-малко 8 - 10 см. След това извадете тръба с подходящо напречно сечение, а също така инсталирайте мрежа от вредители. Такава схема няма да помогне за осигуряване на добър въздушен поток, но при липса на друга ще бъде осигурена вентилация в мазето.
Особеността на въздушния обмен в избата през зимата


В избите вентилационната система се състои от тръби, чийто брой зависи от размера на избата. На малки площи е достатъчна 1 тръба с два вентила. С тяхна помощ е възможно да се регулира отстраняването на въздуха и неговото подаване.
Вентилацията на избата през зимата изисква определена поддръжка - преди сезонни промени се препоръчва кутията да се изолира с минерална вата и да се покрие с хидроизолационен материал. Това ще осигури нормалната, безпроблемна работа на вентилационната система.
В мразовити дни студеният въздух циркулира по-бързо, така че температурата в стаята може да спадне рязко. Поради това се препоръчва да регулирате клапаните на захранващите и изпускателните тръби. При силни студове клапаните са затворени. В зависимост от температурните разлики, дали да се затвори вентилацията на избата през зимата, частично или изцяло, собственикът решава сам, като взема предвид характеристиките на определен обект.
Понякога дори при добра вентилационна изолация, през зимата може да се образува замръзване върху комина или кондензът да замръзне. Естествено, това ще попречи на нормалната циркулация на въздуха. Можете да направите тази част от тръбата подвижна за по-лесно почистване. Като алтернатива, в края на тръбата може да се монтира коляно.
Кондензация на причина и следствие


Кондензът в зеленчукова яма е опасност за хората
Как да направим вентилация в зеленчукова яма, така че да не се появява конденз в стаята по време на демисезонни периоди. Всъщност, поради образуването му, не само въздуховодите могат да се срутят, но и влажните стени на зеленчуковата яма могат да се срутят. За да се предпазите, трябва да изолирате вентилационната тръба. В идеалния случай по цялата дължина. Ако това не е възможно, топлоизолацията се извършва само в зоната от тавана до чадъра, монтиран в края на канала. При подходяща изолация животът на вентилационния канал ще се увеличи, плюс кондензатът също ще бъде отстранен.
Не забравяйте за изолацията на стените на зеленчуковата яма, защото този фактор също така предотвратява образуването на конденз. Това може да стане с полиуретанова пяна. Помага да се постигне пълно запечатване на ямата. Има разпенена консистенция. Когато удари повърхността, той се втвърдява. Не образува шевове и фуги, запазва свойствата си до 50 години.
Правилното проветряване допринася за запазването на зеленчуците през есенно-пролетния период. За да може въздушният обмен да се извърши според очакванията, трябва да знаете, че честотата му в гаража и други стопански постройки трябва да отговаря на стандартите SNiP и да бъде равна на 180 m3 / на час.
n е скоростта на обмен на въздух в дадена стая
V е обемът на зеленчуковата яма, изразен в m3.
L е въздушният поток.
След цялата свършена работа си струва да тествате вентилационната система - проверете сцеплението с лист хартия.
В края на градинарския период възниква проблемът с дългосрочното съхранение на витаминни препарати. Получаването на подходящо място за поставяне на вашите култури не е трудно чрез оборудване на зеленчукова яма - тя може да бъде поставена под къща, в мазе, гараж и дори под лоджия. Вашите консумативи ще останат свежи дълго време, без да са необходими енергийни разходи. Напълно възможно е сами да оборудвате такъв склад за зеленчуци, докато можете да използвате най-простите инструменти и материали.
Направи си сам или плодови и зеленчукови продукти, закупени за зимата, ще трябва да се съхраняват някъде. Никой хладилник не може да побере няколко кутии с лук и моркови или чували с картофи. Възможно е да улесните живота си, като организирате удобна изба за поставяне на зеленчуци - по подобен начин можете да организирате място за съхранение в естествени условия, с определен микроклимат. В такова хранилище реколтата ще остане дълго време свежа.
Най-удобният за използване е така нареченият подземен - зеленчукова яма в къщата или в гаража, защото няма да заема допълнително място на площадката, освен това ще бъде много по-удобно да се използва такова хранилище за витамин препарати, включително в студа, отколкото изба на улицата ...
Монтаж на вентилация в магазин за зеленчуци
Преди да започнете да правите вентилация в зеленчуковата яма на гаража, всичко трябва да бъде изчислено и всички необходими материали трябва да бъдат подготвени предварително. Също така, не трябва да се пренебрегва съставянето на малък план на стаята с указание на точките на местоположение на въздуховодите.
Изглежда, че трябва да се направят само няколко вентилационни канала. Но без предварителен чертеж, дори и с тяхната инсталация, можете да излъжете нещо.
За да се организира естествена вентилация в разглежданата стая, ще са необходими тръби с дължина 8–9 метра (3,5–4 m за входящия и най-малко 4 m за отработените газове). Това се взема предвид наличието на отвор за гледане.
Ако не е там, тогава е необходимо да се надгражда дълбочината на избата и височината на тавана на гаражната кутия. Освен това ще ви трябва чаша за кондензат с дренажен кран, метални решетки за вентилационни отвори от улицата и капачка или дефлектор.


Захранващите и изпускателните тръби трябва да се отвеждат диагонално към противоположните ъгли на магазина за зеленчуци, така че циркулацията на въздуха да улавя всичките му ъгли
Монтажът на вентилация в гаража и зеленчуковата яма е както следва:
- Дупки за захранваща тръба са направени в стената близо до гаражната врата с отстъп от земята 20-30 см и през таваните надолу в мазето.
- Дупки за качулката са направени в покрива на гаража и тавана на ямата.
- Монтирани са вентилационни тръби (в долната част на аспиратора е монтиран кондензатен колектор).
- На тръбата за всмукване на въздух е монтиран клапан.
- Ако е необходимо, вентилационните канали са изолирани с влагоустойчива пяна или пяна.
- Върху изпускателната тръба е монтирана качулка за дъжд.
За да се предотврати проникването на гризачи през вентилацията в магазина за зеленчуци, върху отворите на въздушния поток от улицата трябва да се монтира метална решетка. В този случай разстоянието от ръба на изпускателната тръба до тавана на зеленчуковата яма не трябва да надвишава 20 cm, а захранващата тръба трябва да се издига над пода си с максимум 50 cm.
Входящият канал в ямата трябва да бъде разположен така, че входящият външен въздух да не попада върху консерви и зеленчуци. През зимата е студено и в началото трябва да се затопли малко.
В противен случай общата температура в избата ще бъде на + 5 ° C, а на местно ниво, близо до вентилационната тръба, всичко ще замръзне. По същата причина този вентилационен канал трябва да бъде отстранен от стената с поне 30-50 см, така че до него да не расте слана.
Следващата статия ще ви запознае с правилата и формулите за изчисляване на площта на въздуховодите, които препоръчваме на независими домашни майстори.
Основни изисквания към строителната технология
Има няколко ключови изисквания за зеленчукова яма
При изпълнение на проект е необходимо в него да се посочат размерите на бъдещата яма. Неговата дълбочина, в идеалния случай, трябва да бъде приблизително 2-2,2 метра, ширина - 1,5. Ще бъде доста удобно да бъдете в него, а температурата може лесно да се поддържа на ниво от +5 градуса.
Това е оптимално за съхранение на зеленчуци - те няма да се влошат и да задържат максимум полезни вещества. Влажността трябва да се поддържа на 90% - зеленчуците няма да се набръчкат и изсъхнат.
Ако нивото на подпочвените води се колебае на около 1-1,5 метра от повърхността и е трудно да се избере друго място за ямата, можете да опитате да организирате дренажна система. В някои случаи може да се наложи и организиране на добра хидроизолация.
Разбира се, това ще доведе до някои разходи, както по отношение на финансите, така и на труда. Но ако пренебрегнете този етап, трябва да се подготвите за факта, че рано или късно водата ще намери вратичка за себе си и ще проникне вътре.
Препоръчва се да се изолират стените - за това е подходящ всеки топлоизолационен материал под формата на плочи, който добре се противопоставя на влагата, например експандиран полистирол.
На дъното се полагат пясък и трошен камък, след което върху тази възглавница се изсипва битум или друг подобен материал. Най-добре е да подредите подовата настилка под формата на стоманобетонна плоча. Ако е невъзможно да се осигури такава опция, върху основата се полагат здрави дъски.
Най-простият вариант е изграждането на естествена вентилация, за която се използват две тръби, като се поставят на различни височини от подовата повърхност в гаража. Едната тръба е входна, другата е изпускателна и външните им краища трябва да бъдат изведени възможно най-високо.
Това осигурява постоянен приток на чист въздух. Това помага да се запазят зеленчуците годни за консумация по-дълго.
Монтаж на конструкцията в ямата


Първо металната кутия трябва да бъде покрита с антикорозионно съединение, както и хидроизолационни материали, за които можете да използвате мастика или битум. Размерите на подготвената яма трябва да бъдат повече от самата кутия с 50 сантиметра от всяка страна. Дъното на изкопания отвор се изравнява и уплътнява, след което върху него се поставя хидроизолационна глинена подложка с дебелина 25 сантиметра. Отгоре допълнително се излива слой бетон с малка дебелина. Направи си сам конструкция на зеленчукова яма е придружена от монтиране на дървен кофраж между металната изба и стената на ямата. Между кутията и дъските се полага глина, която предварително се нарязва на плочи. След запълване на кухото пространство и набиване на материала, можете да започнете запълване на изкопаната почва.
Характеристики и видове
Гъвкав маркуч за свързване на водопровод е маркуч с различна дължина, изработен от нетоксичен синтетичен каучук. Благодарение на еластичността и мекотата на материала, той лесно заема желаното положение и позволява монтаж на труднодостъпни места. За да се предпази гъвкавият маркуч, има горен подсилващ слой под формата на плитка, който е направен от следните материали:
- Алуминий. Такива модели могат да издържат не повече от +80 ° C и да останат функционални в продължение на 3 години. При висока влажност алуминиевата оплетка е склонна към ръжда.
- От неръждаема стомана. Благодарение на този подсилващ слой, експлоатационният живот на гъвкавия маркуч за вода е най-малко 10 години, а максималната температура на транспортираната среда е +95 ° C.
- Найлон. Тази плитка се използва за направа на подсилени модели, които могат да издържат на температури до +110 ° C и са предназначени за интензивна употреба в продължение на 15 години.
Като крепежни елементи се използват двойки гайка-гайка и съединение гайка, които са изработени от месинг или неръждаема стомана. Устройствата с различни допустими температури се различават по цвета на плитката.Сините се използват за свързване към тръбопровода за студена вода, а червените - с топла вода.
Когато избирате очна линия за вода, трябва да обърнете внимание на нейната еластичност, надеждност на крепежни елементи и предназначение. Също така е задължително да имате сертификат, който изключва емисиите на токсични компоненти от каучук по време на работа.
Заспи, таран и изравни пода
Ако се използват няколко вида запълване, всеки запълнен слой трябва да се уплътни с ръчен трамбовка. Помислете за ситуация, когато се използва трошен камък с пясък. Първо, натрошен камък се изсипва на дъното на ямата, извършва се трамбоване. Дебелината на уплътнения слой трябва да бъде най-малко сто милиметра.


След това се изсипва и уплътнява пясък (дебелина на слоя - петдесет милиметра). След това се изсипва натрошен камък (дебелина на слоя - пет сантиметра). Можете да направите само 2 слоя от сто милиметра. Всичко зависи от това колко влажна е почвата. След пълнене и набиване подът се изравнява, за което можете да използвате същото ръчно набиване.
Споделям линк:
Технически характеристики на вентилационните канали


При проектирането на вентилация е необходимо да се реши от кой материал да се монтира вентилационната тръба. Не може да бъде:
- метални тръби;
- PVC тръби;
- азбестови тръби.
Вариантите за метални вентилационни канали са разнообразни. Може да бъде от неръждаема стомана, поцинкована стомана, алуминий.
Канали от неръждаема стомана
Тръбите от неръждаема стомана издържат добре на температурни крайности, не корозират, издръжливи са, огнеустойчиви. Следователно, като инсталирате такъв въздуховод, можете да защитите вентилационната система от растежа на гъбички и плесени в нея.
Поцинковани тръби
Въздуховодите от поцинкована стомана могат да издържат на температури до +85 C °, устойчиви са на умерена влажност на въздуха - до 60%. Сравнително малко тегло, така че не се изискват допълнителни усилия при инсталиране на вентилационния канал. Те често се инсталират в сухи помещения с вентилационно оборудване.
Алуминиеви тръби
Те са полутвърди и гъвкави. Изработени са от алуминиево фолио с дебелина 0,08-012 мм. Те могат лесно да се огъват. Те са топлоустойчиви, издържат на + 135 ° C, гъвкави и твърди въздуховоди могат да издържат на температури до + 300 ° C. Според всички характеристики полутвърдите въздуховоди могат да се монтират на открито.
Азбестови въздуховоди
Азбестоциментова тръба може да бъде с дължина до 5 m. Диаметърът на профилите варира от 100 до 500 mm. Те се класифицират на налягане и неналягане. Тръбите могат да издържат на температури от + 300 ° C. В тях се абсорбира конденз. Тези канали не са обект на корозия, но са много крехки. Съществува версия, че азбестът е вреден за здравето (директива 1999/77 / EC за забрана на употребата на азбест).
PVC тръби
PVC вентилационните канали често се използват за организиране на вентилация в жилищни и бизнес помещения. Тръбите могат да издържат на температури от -30 ° C до + 70 ° C. Гладката вътрешна повърхност на вътрешната част създава ниско динамично съпротивление по време на преминаването на въздушни течения. Тръбите са устойчиви на влага. Обхватът на диаметрите на напречното сечение и дължините на въздуховодите е много широк.