Уважаеми клиенти ...
Страница 2
- Картина
- Текст
2
Уважаеми клиенти!
Закупили сте газови проточни бойлери с електронно устройство
vom, което му позволява автоматично да се запали, когато отворите крана за топла вода.
Устройството има цифров индикатор, който ви позволява да контролирате температурата
кръг от нагряване на водата, изтичаща от крана (само за модел JSD20-W).
Благодарим ви, че избрахте нашия бойлер. Когато купувате устройството, проверете пълнотата и също така изисквайте попълване
организация на продажбите на талони за гаранционен ремонт.
Това ръководство с инструкции съдържа информация как да инсталирате
устройство, правила за употреба и поддръжка, за мерки за безопасност по време на работа на устройството, спазването на които ще осигури дългосрочна безпроблемна и безопасна работа на продукта. Моля, прочетете го внимателно и следвайте указанията в него.
Бойлерите VEKTOR имат всички необходими сертификати и са разрешени
да инсталираш.
Инсталиране на устройството, инструктиране на собственика относно принципите на работа и правилата
работата на апарата, поддръжката се извършва от оперативната организация на газовата икономика или други организации, лицензиран
за този вид дейност.
Проверка и почистване на комина, ремонт и мониторинг на водоснабдителната система-
комуникациите се извършват от собственика на устройството или управлението на къщата.
Отговорност за безопасната експлоатация на машината и за нейното поддържане
правилното състояние се носи от собственика му.
Ако имате някакви въпроси относно качеството, не можете да обясните всички предимства
собственост на бойлери VEKTOR или не е обяснил принципа на работа, моля свържете се със следните телефонни номера:
—
в Санкт Петербург (многоканален)
—
в Москва, 741-77-67
—
в Краснодар, 68-09-52
Моля, имайте предвид, че бойлерите, изброени в това ръководство, са проектирани
маниаци само за домашна употреба.
Благодарим ви за покупката
нашият бойлер!

Характеристики на вектор за гейзер
Газов бойлер Vector
Най-популярните модели газови бойлери са китайски продукт - "газова колона Vector". Поръчките на този продукт се контролират от клиенти от Русия.
Изпитването и контролът на качеството на газовите бойлери се извършват в завода. Всичко това се извършва от квалифицирани специалисти.
Газов бойлер "Вектор" е популярен модел сред потребителите на руския пазар. Но отзивите за газовата колона "Вектор" са противоречиви.
1 Предимство на единицата
style = "display: block" data-ad-client = "ca-pub-9337857885889635 ″ data-ad-slot =" 9967522739 ″ data-ad-format = "auto">
Китайският продукт е много добре обмислен в системата за сигурност. Майсторите взеха предвид всички подробности за работата на газовата колона. Системата за безопасност предотвратява изгарянето на колоната без водоснабдяване, тук се задейства автоматично изключване, когато колоната прегрее или ако водата заври.
Предвидено е и автоматично изключване на устройството при липса на тяга на комина. Гейзерът "Vector jsd20 w" беше оборудван с вградено автоматично електрическо запалване. Има и много повече положителни аспекти при използването на този продукт.
Ако погледнете модела за газов бойлер Lux Eco вектор, тогава такива модели са оборудвани с часовник на дисплеите, който дава информация за температурата на водата в резервоара. Това е много удобна функция. А инсталирането на газов бойлер също не изисква прекомерни познания.
"Vector Lux" има добра мощност, която може лесно да осигури няколко точки на прием на вода, например в кухнята и банята. И това е всичко важно. Трябва да се отбележи, че този продукт обикновен в управлението.
Газов бойлер Vector в частна къща
Квалифициран майстор е винаги ще обясни и ще намери причината за повредата на този продукт. Цените за резервни части и почистване на газови бойлери Vector са под средните, което позволява ремонт, а това няма да струва много.
2 Недостатъци на гейзерите Vektor
Когато използвате устройството, най-честите неизправности на газовата колона Vector са слабите батерии, които осигуряват автоматично запалване - те трябва да се сменят често.
В този случай трябва да използвате скъпи висококачествени батерии. Също така недостатъкът е, че системата за защита е конфигурирана твърде плътно в устройството. За нормална работа са необходими стабилно налягане на водата и добър воден поток.
Има недостатъци при промяна на температурата на изходната вода и това се случва, ако има големи спада на налягането. В тези случаи се използва автоматична настройка на температурата и газовата колона Vector няма.
Прилича на газов бойлер Vektor
Ще бъде трудно да зададете тези настройки ръчно. Най-честите разбивки са както следва:
- газова колона Вектор не светва;
- няма искра на газовата колона Vector.
Това са най-честите повреди. Освен това повредите са по-редки, като напукана тръба на топлообменника. Устройството на газовата колона Vector не е удобно, тъй като при премахване на топлообменния блок за почистване на блока ще срещнете много трудности.
Внимание! Ако вашата газова колона Vector не светне, тогава трябва незабавно да се обадите на съветника, тъй като отстраняването на повреда в такива модели със собствените си ръце е голяма опасност (експлозия, пожар).
Трябва да се отбележи, че не всеки магазин има пълен списък с резервни части за устройството. Има и случаи, че дори "GORGAZ" отказва да ремонтира даде единицата, тъй като служителите не са запознати с устройството на колоната.
Те поискаха схема за газов бойлер Vector, но потребителят често не я намери. Значителен недостатък на това устройство е, че при продължителна употреба процесът на включване често се разваля. Експлозия може да възникне поради ненавременно запалване на газа. В същото време потребителите изпитват страх, когато включат колоната. Ако не го направите включва се газов бойлер Vector, по-добре е да се обадите на квалифициран техник.
Ако слушате многобройни рецензии, можете да стигнете до заключението, че газовият бойлер Vector не се управлява толкова лесно, колкото изглежда на пръв поглед. Такова устройство изисква разбиране на няколко основни принципа на това устройство. Дори опитни специалисти имат въпроса как да разглобяват газовата колона Vector?
2.1 Дизайн и принцип на действие на колоната Vector
Дизайнът на устройството е много прост. По принцип тя не се различава от своите събратя. Включва:
- Горелка основен;
- Запалване;
- Топлообменник.
Газовият бойлер Vector Lux се състои от боядисана метална рамка, която много прилича на обикновен кухненски шкаф. Горните елементи се намират вътре в тази рамка. От дъното на рамката излизат две тръби. Едната за доставка на газ, другата за вода.
Устройство за газова колона Vektor
Принципът на действие на уреда също е прост. Всички модели имат автоматичен тип запалване. Това означава, че колоната се включва, след като завъртите стреловия кран.
След като отворите ротационния клапан, в системата на колоната се задейства клапан, който бавно пропуска газ в пилотната горелка и след това в основната горелка. След това газът изгаря и колоната отделя топлина и енергия за бързо загряване на студената вода. Студената вода преминава през спирален кран (топлообменник) и горещата вода се подава към крана. Трябва да се отбележи, че газовият бойлер Vector може да работи без комин и това се отразява на ниските разходи за монтаж.
Източник: https://seositi.ru/otoplenie/kotly/gazovaya-kolonka-vektor.html
ПРЕДПАЗНИ МЕРКИ …………………………… ..
Страница 3
- Картина
- Текст
3
СЪДЪРЖАНИЕ
МЕРКИ ЗА БЕЗОПАСНОСТ ………………………………………………………………… 4
ОПИСАНИЕ И РАБОТА НА ПРОДУКТА ………………………………………………………………………… .. 5
2.1 Предназначение на продукта ………………………………………………………………………………… .. 5 2.2 Технически характеристики …………………… … …………………………………………………. 5 2.3 Състав на продукта ………………………………………………………………………………………………. 5 2.4 Описание на апаратурата и предназначението на основните единици …………………………………………. 8 2.5 Габаритни и монтажни размери …………………………………………………………… .. 9 2.6 Електрическа верига …………………………………… ... ………………………………………….. 12
ПРОЦЕДУРА НА ИНСТАЛИРАНЕ ………………………………………………………………………………… .. 13
3.1 Място на инсталиране ……………………………………………………………………………………………. 13 3.2 Инсталиране на устройството …………………………………………………………………………………… .. 13 3.3 Връзка за вода ……………… … ………………………………………………………………… .. 14 3.4 Газова връзка ……………………………………………… … ……………………………………. 17
3.5 Свързване на устройството към бутилка с втечнен газ ……………………………… .. 17
3.6 Монтаж на димоотводни газове (с изключение на модел JSD11-N) 17 3.7 Монтаж на бойлер JSD11-N (без връзка с димоотвод) ……………………………………………… ………………………………………………………………………………………………………………………………………… ………
ИЗПОЛЗВАНЕ НА МАШИНАТА ……………………………………………………………………………. 20.
4.1 Включване на устройството ………………………………………………………………………………… 20 4.2 Регулиране на степента на нагряване на водата …………… ………… …………………………………. 20 4.3 Изключване на устройството за дълго време ……………………………………………… .. 21 4.4 Защита срещу замръзване ……………………………………… ………… ……………………. 21.
ПОДДРЪЖКА ……………………………………………………………… .. 22
5.1 Инспекция …………………………………………………………………………………………………………. 22 5.2 Грижи ……………………………………………………………………………………………………… .. 22 5.3 Поддръжка ... …… …………………………………………………………………. 23.
5.3.1
Почистване на горелката
…………………………………………………………………………………………………………. 23
5.3.2
Почистване на филтри за вода и газ
………………………………………………………………………………. 23
5.3.3
Почистване на топлообменника
…………………………………………………………………………………………. 23
5.3.4
Подмяна на уплътнителните фуги
…………………………………………………………………. 24
5.3.5
Проверка на плътността на газовите и водните системи на апарата
……………………… 24
5.3.6
Проверка на работата на сензора за тяга
………………………………………………………. 24
5.3.7
Проверка на работата на сензора за прегряване на топлообменника
…………….. 24
5.3.8
Извънредно почистване на машината
……………………………………………………………………………. 24
5.3.9
Проверка на работата на сензора за ODS система (за модел JSD11-N)
ВЪЗМОЖНИ НЕИЗПРАВНОСТИ НА УСТРОЙСТВОТО И МЕТОДИ ЗА ТЯХНОТО ЕЛИМИНИРАНЕ…. 25
ПРАВИЛА ЗА СЪХРАНЕНИЕ ………………………………………………………………………………………. 27
ГАРАНЦИЯ ………………………………………………………………. 28
УДОСТОВЕРЕНИЕ ЗА ПРИЕМАНЕ …………………………………………………………………………… 28
10 БЕЛЕЖКА ЗА МОНТАЖ НА УРЕДА И ИЗПЪЛНЕНИЕ НА ПОДДРЪЖКА ……………………………………………………………………………………………… 29
teplomex.ru
Газови колони Вектор се появи на руския пазар за дълго време. Тези проточни газови бойлери са сглобени в Русия от китайски компоненти и резервни части.
Поради ниската си цена и компактните си размери, Vektor JSD 20-W гейзер бързо зае своята ниша: евтин и модерен газов бойлер, както се вижда от многобройни рецензии на колоните Vector.
Днес ще разгледаме също моделната гама и тяхното устройство, предимства и недостатъци, както и техническите характеристики и резервни части на китайски говорители с марката Vector, и ще изготвим субективна инструкция за употреба.
Моделна гама високоговорители с марка Vektor и тяхната цена
Гейзерите с марката Vector се предлагат в две основни конфигурации:
— Vektor JSD 20-W; — Vektor Lux Eco 20-3 (-2).


Гейзери Vektor Lux Eco
Гейзерите на модела Vektor JSD 20-W бяха много популярни в началото на този век. Всъщност по това време това бяха най-евтините газови бойлери, те можеха да бъдат закупени за 3500-4000 рубли. В допълнение към ниската си цена, те имаха компактни размери, цифров дисплей отпред на устройството, автоматично запалване от батерии и се произвеждаха в три цвята: бял, сребърен и златен.
През последните години компанията стартира производството на газови бойлери Vector от серията Lux Eco на цена от 7000-8000 рубли. Подобно на моделите Vektor JSD 20-W, тези дозатори са оборудвани с меден топлообменник, автоматично електрическо запалване, защита от прегряване, която предотвратява възможни неизправности на бойлера и зимно-лятна система.
Тази система ви позволява да зададете желания температурен режим с помощта на специален регулатор на контролния панел, в зависимост от температурата на водата на входа на устройството, която е различна в различните периоди от годината: например през зимата + 4 и през лятото + 10.
Газови бойлери Vector Lux се произвеждат със стъклен преден панел, като газовите бойлери Zanussi, които имат различен модел. Благодарение на това купувачът може да избере устройство, което съответства на стила и цвета на неговата баня или кухня.
Освен това колоните от серията "Vektor Lux Eco" са оборудвани с най-новата система за изпускане на дим "Eco", а отворената горивна камера има специално водно охлаждане.
Устройство за газова колона Vector


Вътрешната структура на газовата колона Vector
1 - корпус на дозатора 2 - рамка 3 - водно-газов блок 4 - регулатор на налягането на водата 5 - регулатор на температурата на водата 6 - соленоиден клапан 7 - газова горелка 8 - топлообменник 9 - сензор за защита от прегряване 10 - сензор за тяга 11 - GOU 12 - запалване електрод 13 - монитор на пламъка 14 - кутия за батерии 15 - блок за управление 16 - дисплей 17 - стъкло за наблюдение 18 - микропревключвател 19 - вход за студена вода 20 - вход за газ 21 - изход за топла вода 22 - предпазен клапан 23 - сензор за температура на водата на изхода
Основни елементи и резервни части на газов бойлер
1. Топлообменникът е основният елемент на водната система на газовата колона. Има тръбна структура, вътре в която се подава студена вода. Благодарение на горещите пари, отделяни от газовата горелка, водата в тръбите на топлообменника се загрява до зададената температура.
2. Водно-газовият агрегат на газовия бойлер включва устройството при отваряне на крана и също така отговаря за температурата на водата и подаването на газ към горелката. Водният регулатор отваря газовия клапан само за подаване на газ към газовата горелка, когато има достатъчно водно налягане. Газовият регулатор се освобождава и контролира подаването на газ към горелката.
3. Газовата горелка изгаря въздушно-газовата смес за последващото й подаване в горивната камера на колоната.
4. Устройство за изпускане на газ (GOU) се използва за отклоняване на продукти от горивната камера в комина, където е монтиран датчик за тяга, който изключва колоната при липса на нормална тяга.
5. Сензорът за прегряване автоматично изключва колоната, когато температурата на водата достигне 80 градуса, електродът за управление на пламъка автоматично изключва подаването на газ, когато пламъкът на горелката изчезне, а запалващият електрод дава необходимата искра за запалване на горелката.
6. Предпазният клапан служи за облекчаване на излишното водно налягане, както и за източване на водата от колоната.
Спецификации


Вектор на високоговорителите: Спецификации
Гейзерите Vector могат да работят с природен и втечнен газ. Устройството се запалва при минимално водно налягане в системата от 0,2 атмосфери. Производителността на топлата вода е 10 л / мин., Което е напълно достатъчно за едно кранче: кухня или баня.Диаметърът на коминната тръба за този модел е 110 мм, връзките за вода и газ са 1/2 '.
Предимства на гейзерите Vector
- ниска цена - модерен дизайн - компактни размери - евтини резервни части
Недостатъци на гейзерите с марката Vector
- качество на компонентите - тънки стени на топлообменника - ниска производителност (една точка на изтегляне) - липса на модулация на пламъка на горелката (автоматично поддържане на температурата на водата)
Днес заедно с вас изследвахме гейзерите Vektor Lux Eco и Vektor JSD 20-W. Разглоби вътрешната конструкция и нейните основни елементи, моделната гама и техническите характеристики на китайските газови бойлери.
На гейзерите Vector отзивите пишат противоречиво: някой не е доволен от качеството, но някой, напротив, е доволен от ниската цена на устройството. Не забравяйте, че този бойлер принадлежи към сегмента на евтините газови бойлери и не бива да очаквате твърде много от него, но напълно оправдава парите си. Гледане на видеоклипа.
W размери като цяло и монтаж ...
Страница 10
- Картина
- Текст
10
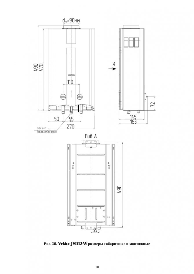
Фиг. 2б. Vektor JSD12-W размери като цяло и монтаж


Коментари (1)
Акцент → Тук намерих инструкции за моя бойлер! #manualza
- Щракнете върху →
Ако не го искате по приятелски начин, ще следвате инструкциите!
Manualza! Manualza.ru
Все още не сте с нас?
Достойнство
Първият и най-важен момент, който е добре обмислена система за безопасност, която предотвратява възможността за изгаряне без водоснабдяване, автоматично изключване при прегряване на топлообменника или кипене, при липса на течност в комина.
Собствениците на жилища, които са използвали Vektor от една година или повече, ще оценят удобството на вграденото автоматично електрическо запалване.
Наличието на часовник и дисплей, даващ информация за температурата на водата, изглеждаше важно за потребителите. Колоната има достатъчно мощност, за да осигури няколко точки за прием на вода (например баня-кухня), тя е лека и лесна за използване.
Положително мнение за колоната Vector също се формира поради достъпната му цена, възможността за закупуване на устройството във всеки магазин в няколко цветови варианта. Някои потребители харесаха присъствието на зимно-летния режим, но има и забележки, че е невъзможно да се разбере защо съществуват точно тези режими и как се различават.
В повечето отзиви за газовия бойлер Vector се отбелязва, че магазините винаги разполагат с резервни части, необходими за ремонт на колоната, възможно е да се използва сервиз или услугите на квалифициран майстор, въпреки че има забележки за липсата и на двата сервизни центрове и специалисти по ремонт.
Намиране и отстраняване на причините
И така, защо газовият бойлер не се включва? Редица ситуации могат да бъдат виновни:
- Грешка при свързване на тръби;
- Липса на течение в комина
; - Висока чувствителност на защитното реле
; - Разредени запалителни батерии
; - Слабо водно налягане или пълното му отсъствие
; - Мръсни филтри
; - Деформация на мембраната
.
Нека разгледаме всички горепосочени причини по-подробно и да анализираме ефективни методи за тяхното отстраняване:
Причина номер 1: грешка при свързване на тръби
Самата система за защита на бойлера спира подаването на газ, ако се допуснат грешки при свързването на тръбите. За да предотвратите това, просто се придържайте към проста и разбираема схема:
Също така, ако газът не тече в газовата колона, проверете положението на всички спирателни кранове, които могат да бъдат монтирани на газопровода. Възможно е след инсталирането на устройството просто да не сте отворили един от крановете.
Причина номер 2: липса на тяга в комина
Поради замърсяването на комина в резултат на натрупването на сажди или проникването на отломки в него, векторът на движение на продуктите от горенето се променя на противоположния. Това крие две опасности:
- Връщащата се смес от въглероден окис / въздух гаси горелката
... В резултат на това системата за защита се задейства и работата на газовия бойлер е блокирана;
- Връщащата се смес от въглероден окис / въздух се просмуква в жилищните помещения
... Тази опция е още по-лоша, тъй като представлява опасност за здравето и дори за живота на членовете на домакинството. Възможно е в случая, когато силата на „преобърнатия“ тласък не е достатъчна за потушаване на пожара.
Много е лесно да проверите състоянието на вентилационния канал със собствените си ръце. Достатъчно е да донесете запален кибрит на входа: ако пламъкът се отклонява навътре, тогава коминът работи ефективно, ако не, трябва да се вземат подходящи мерки.
Нека разберем какво да правим в описаната ситуация:
| Снимка | Описание |
| Проверете първо Нека някой инсталира сателитна антена над изхода на вентилационната шахта. Това може да е достатъчно, за да се създаде ефект на обратна тяга. В този случай проблемът може да бъде решен чрез преговори със съседи, без да се обадите на специалист по почистване на комини. | |
| Обадете се на специалист, който да почисти вентилационния канал. Ако никакви външни фактори не пречат на отделянето на продуктите от горенето, тогава причината за липсата на сцепление е очевидно запушването на комина. Можете да опитате да го почистите сами, но има опасност да повредите съседните клони с действията си без подходящ опит. |
Причина # 3: висока чувствителност на защитното реле
Светва ли газовата колона, след което скоро избледнява? В този случай проблемът най-вероятно се крие в твърде чувствителното реле, което се задейства от защита от прегряване. Има две възможности за решаване на проблема:
- Временно
... Отворете прозореца, за да намалите температурата в стаята;
- Радикален
... Проблемът може да бъде решен окончателно само чрез подмяна на релето.
Причина номер 4: разредени батерии на запалителната система
Друга причина, поради която основната горелка не свети, може да са изтощени батерии. Това може да се определи от щраканията на празен ход на пиезо запалителния елемент при включване на гореща вода.
Също така си струва да се отбележи, че описаният проблем се отнася изключително за бойлери, оборудвани с автоматична превключваща система.
Причина номер 5: недостатъчно силен воден поток или пълното му отсъствие
За да се включи газовата колона, трябва да има налягане на вода с определена сила. Ако е твърде слаб, устройството няма да се включи. В този случай първо трябва да изясните източника на проблема, като отворите крана със студена вода в банята:
- Ако нивото на водоснабдяване също е слабо там
, означава, че въпросът е в градската водоснабдителна система. С това не можете да направите нищо, трябва да изчакате;
- Ако течността протича нормално
най-вероятно самата колона е запушена.
Във втория случай можете да се обадите на съветника или да опитате сами да почистите устройството. Инструкцията изглежда така:
- Затворете подаването на газ
; - Развиваме тръбите
;
- Изваждаме газовия бойлер от пантите
;
- Инсталирайте го с главата надолу на масата
; - Налейте вътре специална течност за почистване със спринцовка.
Цената на такава смес не е много висока и можете да я закупите във всеки специализиран магазин; - Оставяме устройството за няколко часа
.
Причина # 6: Мръсни филтри
Друга причина за неправилната работа на колоната може да бъде запушването на филтрите. Нагар, ръжда и други неразтворими примеси с времето запушват решетките и те трябва да бъдат почистени. В този случай говорим не за един обект, а за няколко наведнъж:
| Снимка | Име и местоположение на филтъра |
| Воден възел в самата колона ... В някои случаи може да се почисти, както е описано по-горе, в други ще е необходимо да разглобите устройството и да почистите ръчно решетката или да я смените напълно. | |
| Груб филтър ... Той се намира на тръбата, подаваща студена вода към бойлера. | |
| Смесител филтър . |
Причина # 7: деформация на мембраната
Газовата колона също не работи в случай на пукнатини, разкъсвания или други деформации на мембраната. В този случай той трябва да бъде заменен.