Кухнята по прозореца не е страшна!
Вечният проблем е липсата на пространство. Особено в кухните на старите къщи, където тази стая нямаше достатъчно място и повечето от тях днес са от 6 до 9 квадрата, което е много малко. Човек трябва само да погледне снимката на такава стая, веднага се чудите как да я подредите правилно, за да не намалите пространството и да поберете всичко необходимо.
Някои хора решават този проблем с квадратура, като комбинират няколко стаи или като правят студийна кухня, тоест отделен кът за готвене и хол или трапезария. Това е достатъчно добра опция, но не всички са съгласни, особено ако апартаментът е едностаен. От една страна, кухнята автоматично става визуално по-голяма, а от друга, получавате усещането за сън в трапезарията.
Алтернатива
Разбира се, можете да спестите място с мебели. Например поставете кухненски остров с всичко необходимо за готвене или малък ъгъл, оборудван с всичко необходимо. Това обаче няма да реши особено проблема, особено ако има голям прозорец и искате широк перваз на прозореца, който също ще заема част от пространството. Има добър вариант - да съчетаете бизнеса с удоволствието.

Поставянето на кухнята покрай прозореца не е ново дизайнерско решение, но е много популярно. Особено когато става въпрос за малки пространства. Обикновено цялата стена по прозореца е празна, ако мебелите са поставени на други стени. И се оказва не съвсем рационално използване на пространството. Ако мебелите и интериорните предмети са поставени по протежение на стената с прозорец, тогава два други могат да се използват за организиране на ъгъл за почивка и кът за хранене.


Тази опция има още един плюс - светлина и въздух. Тоест, оказва се, в случай на силно дете, в допълнение към качулката, можете да отворите прозорец и бързо да проветрите стаята, като се отървете от тежки миризми. Има обаче и друга страна на монетата. В случай на слънчева страна, ярката светлина може да попречи на готвенето, следователно, ако решението за инсталиране на кухнята по прозореца е твърдо, можете да затворите прозореца със специални щори или капаци, за да предпазите от яркото слънце. Също така важен детайл при това подреждане на стаята е липсата на завеси и завеси. Те не само ще бъдат неподходящи, но и опасни, защото наблизо трябва да има печка или котлон.
Батерия
Друга привидна пречка за завладяването на космоса е батерията. Далеч от тайната е, че в повечето стаи батерията е разположена строго под прозореца. Когато инсталирате мебели там, трябва да измислите добър изход от ситуацията. По принцип можете да отидете по два начина: труден и по-прост.
Прехвърляне на батерията
Това е доста труден път. В края на краищата е невъзможно да се направи това самостоятелно, без умения и най-важното, специално оборудване. По-точно, възможно е, разбира се, но този, който го прави, ще носи отговорност за последствията. В тази ситуация старите фитинги заедно с тръбите се отрязват. От останалите краища на тръбите към правилното място, където ще бъде разположена батерията, се изтеглят специални полипропилен или други полимерни продукти, предназначени за този продукт. След това всичко се заварява обратно.
Декориране


Мебелите могат да бъдат поставени под перваза на прозореца, оставяйки празнина за батерията. Можете да го покриете с декоративен екран или да го украсите сами. Например, рисувайте по оригинален начин.Ако например цветът на мебелите е черен или бял, можете да го нарисувате в духа на пиано с клавиши, но ако кухнята е многоцветна и предполага наличието на ярки цветове, тогава би било подходящо да боядисвайте батерията в дъгов ред.
Скрий и забрави


Друг неусложнен начин може да бъде маскирането на батерията, например под фалшива стена. За да направите това, достатъчно е да направите щайга от метален профил и след това да затегнете всичко с гипсокартон, оставяйки специална вентилация или отвори с врати. В този случай стената ще изглежда доста спретнато заедно с мебелите.
Заключение
Поставянето на мебели е важен въпрос, особено при малките стаи, така че си струва да планирате и обмислите нещата няколко пъти, преди да продължите.
Монтаж на радиатор за отопление
Основният начин за регулиране на необходимото разстояние до стените е качествена и компетентна инсталация на отоплителни устройства със собствените си ръце или с помощта на специалисти. Нека се спрем на този аспект по-подробно.
Монтаж на подови изгледи
Тази опция за монтиране е оптимална за продукти с голямо тегло и направени предимно от чугун. Такива батерии са оборудвани с подвижни или неподвижни крака, които са фиксирани към пода. В зависимост от основния материал, закрепването може да се извърши с самонарезни винтове за дърво, самонарезни винтове и пластмасови дюбели, дюбели-пирони.


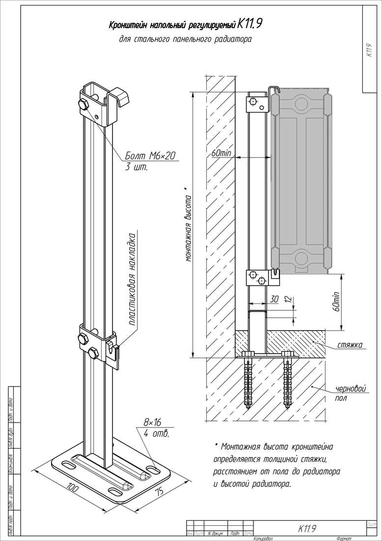
Най-проста опция за инсталиране
Стенната конзола също е необходим елемент от инсталацията за подово отопление. Той се настройва на необходимата височина, която се определя като желаното разстояние от пода до горната надлъжна тръба на радиатора, като се вземе предвид празнината. С помощта на крепежни елементи и маркиране на местата за монтажа им се постига оптималното разстояние до пода, стената и перваза на прозореца.
Закачаме стенен радиатор
Всяко отоплително устройство е окомплектовано с един или друг тип закачалки, използвани за монтаж на стени. Характеристиките на материала и якостта на скобите трябва да съответстват на масата на отоплителната батерия, като се има предвид пълненето й с охлаждаща течност. В противен случай системата може да изтече.


Един вид стенно монтиране
Преди директен монтаж е необходимо да се определи мястото на инсталиране и необходимите разстояния до основните повърхности.
За да направите това, изпълнете следните стъпки:
- Ще определим центъра на прозореца и ще приложим маркировката на стената за последващо подравняване с центъра на радиатора.
- Измерваме разстоянието от долния ръб на батериите до горната тръба и добавяме 12 см. Определяме този размер от пода на местата, където са монтирани скобите, като проверяваме хоризонталността на точките за закрепване по нивото.
- На местата, където са монтирани окачванията, пробиваме дупки с победоносна бормашина, инсталираме дюбели в тях и фиксираме скобите с самонарезни винтове.
Забележка! Подобна инструкция е приложена към всеки пакет от продадени радиатори. Разликите могат да се крият в конкретния тип окачвания и характеристиките на тяхното инсталиране.


Снимка на обикновена скоба
Измиване под прозореца
Тази опция за оформление позволява на домакинята да се възхищава на гледката от прозореца, а също така прикрива радиаторите в стаята. Когато поставяте мивката до прозореца, трябва внимателно да обмислите подробностите, преди да започнете инсталацията.
На островната част има котлон и зона за готвене. Десният надвес на мебелната конструкция може да се използва като малък бар брояч.


Кухня в селски стил с остров и работна зона близо до прозореца
Изберете компактен миксер, в противен случай кранът ще попречи на отварянето на рамките. По-добре е да закупите модел, при който водният поток е насочен надолу, така че влагата да не попада върху перваза на прозореца.


Минималистична ъглова кухня с черен плот
Ролетните щори са цветен акцент в този интериор. Те не заемат много място и при необходимост затварят отвора от слънцето.


Ярки ролетни щори в кухнята в кънтри стил
U-образен комплект с мивка близо до отвора на прозореца. За да се мият чиниите с комфорт, в сутеренната част беше направена вдлъбнатина за краката. Кранът с висок чучур не пречи на отварянето на рамката, поради системата от плъзгащи се стъкла.


Бяла u-образна кухня с мивка близо до прозореца
Над мивката е направена допълнителна лампа, която е полезна само на тъмно.
Работна повърхност по протежение на прозореца
Ако батерията под прозореца е затворена, идеалният вариант за отопление в този случай е системата "Топъл под" или компактен конвектор, монтиран под плота. По този начин шкафовете няма да възпрепятстват притока на топлина в стаята.
Дълбочината на шкафовете в частта на отвора на прозореца може да бъде по-малка от стандартните 600 mm. За поставяне на съдовете са достатъчни 400 мм.


Работна зона до прозореца в кухнята в селски стил
Ако искате да допълните стила на страната с удължена завеса, откажете се от купчините текстил. По-добре е да изберете малък тюл в комбинация с една дълга завеса, както в примера на реализирания интериор.


Декорация на прозорци с текстил до работната зона
За миниатюрна стая в хрушчов, използването на зоната близо до отвора на прозореца е отлична възможност да се настанят всички необходими функции и да се направи пълноценна кухня.


Като работна повърхност се използва плот, подобен на дърво; тук можете да направите и зона за хранене. Тъй като в тази част няма по-ниски модули, ще бъде доста удобно да седнете на бара.


Бар плот под прозореца в кухнята
Просторната работна повърхност позволява на цялото семейство да готви в една и съща кухня, без да си пречи.


Текстура от тъмно дърво в интериорната декорация
U-образен комплект с голяма работна площ близо до прозореца.


Продължаване на работната зона на кухнята на ниво с перваза на прозореца
Практични щори в дизайна на U-образната кухня с бар плот.


Бял и зелен комплект с работна зона вместо перваза на прозореца
Класическите завеси заемат много място и ще пречат в работната зона. По-добре да изберете щори, плисе щори, римски или ролетни щори. Този дизайн може да се комбинира с всеки стил в интериора, като изберете правилния материал и сянка.


Кухня в еко стил с просторна работна зона
В тясна стая е по-добре да откажете люлеещите се врати. За удобство конструирайте долния слой от модули с чекмеджета. Тази опция ще ви позволи да сортирате всички елементи в различни отдели.
Подготвителна работа и избор на радиатор
Магазините за отоплителна техника разполагат с толкова широк набор от оборудване, че направо заслепяват. Струва си да се каже, че цялата гама е предназначена за различни купувачи и следователно има различни разходи, но всеки, който иска да купи, има един и същ въпрос: как да инсталирате отоплителния радиатор? Ние ще ви помогнем да разберете този проблем.
Неправилно е да се изгражда процесът на избор на отоплителни устройства според принципа: колкото по-скъпо, толкова по-добре.
Той трябва да бъде избран индивидуално въз основа на:
- Местоживеене;
- Окабеляване на отоплителна система;
- От какъв метод ще се извърши инсталирането на отоплителни радиатори;
- Температурен режим в отоплителната система;
- Отчитане на това какъв материал е взет за производството на тръби;
- Необходимостта от регулиращи елементи и фитинги;
- Местоположението на помещенията в сградата.
Едва след извършване на анализа на цялата информация се извършва избор на батерии. Ако се интересувате от характеристиките на устройствата, тогава в Интернет има много фото и видео материали, които разкриват техните свойства. Бихме ви посъветвали да се консултирате с професионални монтажници.
Както вече казахме, пазарът на отоплително оборудване е голям, той е в състояние да ви предложи следните отоплителни устройства:
- Стомана;
- Вакуум;
- Алуминий;
- Излято желязо;
- Биметални.
Съвет! За да направите правилния избор, ви съветваме да се запознаете с описанията и рецензиите на всички модели и след това да формирате вашата гледна точка за необходимостта от определен тип устройство. След това използвайте съветите на компетентни специалисти и сравнете вашето мнение и специалист. Сега можете спокойно да направите заключение.
Колко раздела да сложа
Инсталирането на чугунени отоплителни радиатори и други видове започва с процеса на изчисляване на необходимия брой секции. Тази информация може да бъде предоставена от продавача в зависимост от обема на вашите помещения, но тя ще бъде доста приблизителна.
Можете да направите малко изчисление със собствените си ръце, точно това мислят продавачите. Често хората се ръководят по следния начин.
В апартамент с тавани с височина не повече от три метра една секция се приравнява на два квадратни метра. Полученият брой секции се закръглява до по-голямо цяло число.
Можете да кажете, че отоплението на една стая в стара "Хрушчов" или добре изолирана стая в нова къща са две напълно различни задачи. И ще бъдете прави, тъй като изборът на броя секции за всяка стая е индивидуален процес и не е съвсем правилно да се вземат насоки за метода на избор на секции въз основа на площта на стаята.
Ако говорим за отопление на старите "Хрушчов" и нови сгради, тогава цената на тези две опции ще се различава значително.
Работете преди старта
Много хора питат как правилно да инсталирате отоплителни радиатори? Ние отговаряме: първо, трябва да извършите такива мерки и да имате на склад:
- Комплекти с инструменти, които ще са необходими по време на инсталацията;
- Необходими изчисления и измервания, например подбор на броя на секциите;
- Проучване на спомагателни механизми за бъдещи ремонти;
- Ще ви е необходима схема на монтаж на отоплителни радиатори (диагонални, едностранни и др.), Както и стандарти за монтаж на отоплителни радиатори (пролуки, разстояния и др.);
- Имайте всичко по-горе, плюс търпение за всичко, тъй като премахването и инсталирането на радиатора на нагревателя е лесен, но отнемащ време процес.


Инструмент за сглобяване
Правилната инсталация на отоплителни устройства е невъзможна без такива инструменти:
- Кутия с комплекти ключове с отворен край;
- Клещи;
- Комплект тренировки с победоносни върхове и перфоратор;
- Отвертка;
- Хидравлично ниво;
- Рулетка;
- Молив.
Кухня по прозореца [15 ергономични опции за дома]
Интериор в модерен стил
Работната зона, разположена по протежение на прозореца, може да се намери рядко, поради което има няколко причини под формата на батерия и липсата на необходимия достъп до прозореца. В някои ситуации обаче такъв дизайн е единственият начин да се получи най-оптималното решение за организиране на пространството. В какви случаи оправдано е разположението на кухненския комплект по прозореца и има ли такова кухненско оформление свои собствени характеристики?
Големите прозорци изпълват кухнята с естествена светлина
Предимства на оформлението
Собствениците на малка площ от 6-9 кв. m всеки сантиметър пространство е важно, в такава ситуация просто не е възможно да оставите ъгъл неизползван. А за собствениците на тясна кухня да поставят комплект покрай стената означава да я направят още по-тясна. В този случай разположението на работната зона по протежение на прозореца ще помогне за балансиране на удължения размер. В допълнение към принудителната необходимост, този дизайн има и някои предимства:
- Функционалност.
В малка стая използването на пространство по прозореца дава възможност да се увеличи площта на слушалките, без да се затрупва пространството. - Стилност.
В чужбина оформлението на кухнята под прозореца е много популярно. Този дизайн отговаря на всички съвременни тенденции и изглежда супер стилно. - Прозорец
може да се използва и чрез увеличаване на работния плот с перваза на прозореца и по този начин разширяване на работната площ. - Осветление.
Работейки до прозореца през деня, вие получавате естествена светлина в кухнята и чудесна гледка от прозореца едновременно. Не е ли по-приятно да гледаш дървета, отколкото празна стена? - Оригиналност.
Колко често можете да намерите такова оформление? Използването на прозорец ще направи интериора по-модерен и необичаен.
Използването на пространство до прозореца ще направи кухнята визуално по-голяма
Ефектна идея с огледални вложки
Съвет! Не поставяйте под прозорец
котлон.Инсталирайте качулкатаи в този случай ще бъде трудно да се спазват всички правила за безопасност. Има още интересни идеи за използване на прозореца.
Плот на масата
В малка кухня работните плотове a, разположени по протежение на прозореца, са удобни, функционални и красиви. Такъв дизайн изисква спазване на определено правило: работната повърхност трябва да бъде изравнена с перваза на прозореца.
Съвет! Когато планирате да използвате прозорец, уверете се, че продължението на плота изглежда хармонично. Преди да продължите с ремонта, имате нужда
изчислете размерите на слушалките
.
Первазът на прозореца може да се използва като част от работната повърхност
Стандартното оформление включва поставяне на батерията под перваза на прозореца. Ако това е вашата опция, тогава, когато инсталирате плота под прозореца, радиаторите ще трябва да бъдат преместени. Обикновено под работната повърхност има шкафове, в които се съхраняват кухненски прибори. Когато избирате слушалки, винаги си струва да започнете от зоната на кухнята.
Например, малка стая е чудесна за работен плот, който преминава в
бар брояч... А средният размер ви позволява да го направите отделна работна зона, без да комбинирате страпезария
.
Плот за маса, който се превръща в маса за хранене: удобен и практичен
При изпълнението на такъв дизайнерски проект се изисква да се остави свободно пространство, за да може лесно да се отварят крилата на прозорците. Достатъчно е да не затрупвате повърхността с високи предмети и аксесоари. Ако това не е възможно, инсталирайте плъзгащи се врати, които се отварят по същия начин като гардероба.
Съвет! За много малки пространства те често се използват
сгъваеми плотове- те са удобно регулируеми и ви позволяват да освободите място
.
Деликатна декорация в пастелни цветове
Съвет! Ако кухненската зона позволява, можете да инсталирате
ъглов комплектпо прозореца. Такова решение се отличава със своята красота и удобство, особено ако в кухнята има не само един прозорец.
Особености на инсталирането на отоплителни радиатори за различни видове прозоречни конструкции
Правилното инсталиране на радиатор зависи от вида и конструкцията на прозорците. За прозорци с различен дизайн се използват батерии, чиито размери съответстват на размерите на пространството под тях.
Въз основа на това има няколко основни опции за това как да поставите конвектора под прозореца:
- Стандартно разположение спрямо прозореца на батерията.
- Монтаж на конвектори срещу стени в балконни блокове с врата.
- Плоски конвектори за панорамни прозорци.
- Конвектор в пода под витража.
- Скрит монтаж на радиатора под перваза на прозореца.
- Подови батерии под панорамния модул.
Повечето от тези методи не са ясно регламентирани в SNiP, следователно, за да окачите правилно отоплителната батерия, е необходимо да вземете предвид препоръките на производителите и строителите.
Стандартно поставяне на батерията
Правилното местоположение по отношение на прозореца на батерията се определя от строителните норми. Професионалистите обаче препоръчват да закачите радиатора така, че да излиза на ¼ от ширината си извън перваза на прозореца. Това ще създаде най-ефективния топлинен щит около прозореца.
Освен това се препоръчва да изберете конвектор за голям отвор на прозореца с вътрешно оребряване, за да увеличите максимално процеса на конвекция.
В балконски блокове
Препоръчва се конвекторът да се монтира под стъкления блок на балконния блок по цялата ширина на перваза на прозореца. Препоръчително е да поставите ръба на батерията с лице към вратата на блока на разстояние 3-4 см от него.Не се препоръчва на това място да се монтират спирателни кранове или регулатори на температурата. За инсталиране е избрано устройство, чиято мощност е с 10-15% повече от изчислената за тази стая.
Специални конвектори за панорамни прозорци
Отоплителните радиатори за панорамни прозорци се избират въз основа на размера на пространството под прозореца. Често се случва панорамен прозорец да започва на нивото на пода, без перваза на прозореца. В този случай се препоръчва да инсталирате батерия в подов вариант близо до прозореца. Ако разположението на пода на радиатора не се вписва в интериорната концепция, можете да инсталирате конвектора под пода, покривайки го с декоративна решетка.
Конвектор в пода под витражите
Прозорците с витражи напоследък стават все по-популярни не само за декориране на стълбища и зимни градини, но и за офиси и дневни. И ако в стаята има такъв прозорец, тогава се препоръчва да се монтират радиатори за витражи, така че те да не отвличат вниманието и хармонично да се впишат в интериора. Специфичността на монтажа на такива устройства е да осигури най-ефективното насочване на топлия въздух към витражния прозорец.
Традиционният витражен прозорец с оловна или калаена рамка от стъкло позволява да се премине много повече студ, отколкото обикновен стъклен модул. Следователно, в нишата под перваза на прозореца, в допълнение към обичайния радиатор, често се инсталира допълнителен електрически нагревател.
Скрит монтаж на радиатори под перваза на прозореца
Удоволствието да имате широк перваз на прозореца и да гледате падащия сняг не е допустимо за мнозина. Обикновено такива широки первази на прозореца се срещат в стари къщи с широки стени. Следователно, за да бъде леглото не само удобно, но и топло под перваза на прозореца, трябва да има масивен радиатор, способен да отоплява голяма площ на перваза на прозореца. И за да проникне топлината в стаята, се правят дупки в тялото на перваза на прозореца.
Батерия под прозореца
Ако радиаторът пречи и ви пречи да постигнете желания дизайн, има няколко решения, които трябва да обмислите.
- Сменете батерията стопъл поднапълно го премахнете.
Предимството на това решение е възможността да се използват различни слушалки, без да се приспособяват към инсталираното отопление. Но не всяко подово покритие може да бъде изолирано, освен това разходите ще се увеличат. - Преместете се на друга стена.
Преместването на батерията също ще изисква допълнителни разходи, но достъпът ще бъде отворен и слушалките ще се поберат без никакви затруднения. - Направете кутия под батерията.
Тази опция е подходяща, ако под прозореца се планира да се монтира мивка. Чекмеджетата могат да бъдат трудни, но в краен случай могат да се използват отварящи се врати. - Потопете радиатора дълбоко в стената.
Това ще изисква частично разрушаване, за да се освободи място. На пръв поглед опцията изглежда трудоемка, но специалист ще направи всичко за няколко часа и цената ще бъде по-ниска.
Малка стилна кухня
Изберете най-добрия вариант, като вземете предвид всички характеристики на вашата кухня, оформление и желания. Ако в апартамента батерията вече е разположена в стената, тогава ще бъде по-лесно да създадете кухненски дизайн по ваш вкус.
батерии на прозорците - така ли е? : Механика и техника
И според мен е погрешно да се отоплява студен прозорец, като се организира конвекция близо до него. Топлопроводимостта на въздуха е много ниска и е необходима конвекция за охлаждане на стаята от прозореца. И батериите бяха поставени под прозореца, така че имаше къде да подредят мебелите, а след това просто измисляха различни оправдания. Имам стая вкъщи с врата към балкона, батерията е разположена на стената и е наполовина по-малка. Тази стая не е по-студена и прозорецът (балконската врата) никога не плаче. Плюс: инфрачервеното лъчение загрява студената стена под прозореца. Сравнете с дланта на ръката си с други (неотопляеми) участъци на външната стена. В тази връзка е най-добре да поставите батерията на най-дебелата и изолирана външна стена, наличието на прозорец е минус, но не е от съществено значение.
- четвъртък 17 март 2011 13:23:58 -
Като цяло съвременните прозорци с двоен стъклопакет не отстъпват или дори надминават тухлените стени по отношение на топлоизолационните свойства. Така че съвременните архитекти и дизайнери получават много повече свобода.
На практика по някаква причина не е така. Прозорецът винаги е най-студеното място. Въпреки че, ако стените са в пода на тухла, това може да е така.
- четвъртък 17 март 2011 13:35:33 -
Кой от двата ефекта е по-силен, не знам. Но има и трети ефект - опитайте, когато навън е минус 30, изключете крана на батерията и седнете близо до прозореца. IMHO този ефект е най-важният - дори и да се дължи на топлинни загуби. В крайна сметка, IMHO, основната цел на отоплението в къщата е нашият комфорт. И едва тогава - икономия на топлина.
Течения духат от пукнатините около прозореца и освен това има конвекционен поток на студен въздух надолу. Ако запушите всички пукнатини и направите запечатана рамка, тогава в стаята няма да има течение и в същото време вентилация. Ако окачите завесите, конвекцията ще спре. Можете да поставите батерията (конвектора) под прозореца и да издухате конвекционния поток от топъл въздух от дъното на прозореца. Тогава половината гориво ще бъде използвано за отопление на прозореца. В същото време нагряването на стъклото от дъното генерира конвекция във вътрешността на стъклото и в резултат на това се увеличава топлопроводимостта на прозореца като система. Накратко, резултатът е пълно лошо управление.
В допълнение, поставянето на батерията под прозореца увеличава общата конвекция, потока прах от пода и по този начин разгражда въздуха в къщата.
- четвъртък 17 март 2011 13:40:37 -
Има мнение, че за отопление е необходимо да се загрее въздухът. Някога и аз така мислех. Това мнение възникна поради факта, че конвекционните системи, тъй като са по-прости и по-евтини, се използват навсякъде. Но се оказва, че е точно обратното: за комфортно отопление е необходимо да се нагряват обекти с висока топлинна радиация. Конвекционното отопление, изобретение от 19-ти век, е евтин заместител на традиционното лъчисто отопление.
- четвъртък 17 март 2011 13:52:43 -
Между другото - прозорецът с двоен стъклопакет е грешно изобретение, тъй като рамката предава много добре топлината.
Това означава, че вътрешното стъкло е слабо изолирано от външното; преносът на топлина върви по рамката. За да се изолира по-добре вътрешното стъкло, е необходимо да се увеличи разстоянието между стъклата. По-добре да направите двойни рамки с голямо разстояние.
dxdy.ru
Зона за почивка
Поставянето на маса за хранене или малък диван до прозореца е чудесен вариант за средно голяма кухня от 9-15 квадратни метра. м. Ако зоната не позволява комбиниране на кухнята с хола, тогава можете да създадете зона за хранене в кухнята. Като правило е по-добре да поставите маса със столове до прозореца. Също така, този дизайнерски проект е подходящ за малка кухня с два прозореца. Така че, от една страна, има работна зона, а от друга, зона за хранене.
Чудесен вариант за поставяне на маса за хранене
Има малко повече възможности в дизайна на прозореца в зоната за отдих, защото красивите завеси до пода са доста подходящи за пиене на чай, стайните растения ще изглеждат страхотно на перваза на прозореца. Може да се направи в същия стил като работната зона или да се превърне в светло петно.
Например за
скандинавски стилдобавянето на сини, сиви или черешови нюанси е характерно, за да направи бялата кухня още по-контрастна и лека
.
Тази опция е особено подходяща, ако няма лоджия, където можете да прекарате време, да се отпуснете и да се храните. Ако е необходимо, в такава кухня можете дори да инсталирате маса, като направите мини-шкаф.
Съвет! Помислете за вариант
Г-образно оформлениекато поставите всички мебели по протежение на празната стена и заснемете част от стената с прозорец. Такъв дизайн ще помогне да се спести място и визуално да се разшири пространството.
Ако отстъпът е правилен
Когато отоплителният уред е в непосредствена близост до стена, значителна част от топлинното излъчване се абсорбира.Ето защо експертите започнаха да мислят колко далеч от стената да окачат радиатора, за да подобрят ефективността на отоплението на стаята.
С увеличаване на междината загубата на топлина намалява, тъй като страничната повърхност се загрява по-малко. Въпреки това, твърде много вдлъбнатини задължително ще повлияят на естетическите характеристики.
Като се вземат предвид горните обстоятелства, се препоръчва да оставите място в рамките на 3-5 cm.
- При такова разстояние значително се подобрява топлинната мощност на отоплителните устройства.
- Такава празнина дава възможност за почистване зад радиаторите в комфортна обстановка.
- Пространството от 3 до 5 см ви позволява да спестите полезно пространство, без да нарушавате естетическото възприятие на конструкциите.
- Радиаторът на системата за отопление на дома ще работи възможно най-ефективно, ако има пролука от пода най-малко 7 см. Благодарение на тази пролука почистването на долната част на помещението също е по-лесно.
- Препоръчително е да оставите поне 10 см свободно пространство от перваза на прозореца до уреда. Тогава топлинните загуби ще бъдат минимални, което означава, че ще бъде възможно да се спести от отопление на жилището.
- Ако стените на сградата са направени от материали с малък запас на безопасност, препоръчително е да инсталирате батериите на пода, като използвате специални скоби.
- За максимална ефективност използвайте диагонална верига, когато се свързвате към обща система. С тази опция входният тръбопровод е свързан с горната част, а изходният тръбопровод към долната.
- Не се препоръчва използването на декоративни екрани за отоплителни устройства, ако нивото на топлинни загуби на сградата е много високо. Също така е необходимо да се избягва устройството на скрита очна линия.
- Отражателната изолация не трябва да се фиксира с малки скоби или пирони, за да не се наруши целостта на платното. Най-добре е да използвате различни лепила, които имат надеждна адхезия към повърхността.
- Когато се монтират скоби и куки на бетонна основа, трябва да се използват анкерни тапи. Елементите на системата могат да бъдат монтирани към стени и подове от дърво с помощта на самонарезни винтове.
- Ако е необходимо, секции се изграждат преди инсталирането. В този случай за свързване на модулите се използва радиаторен ключ. Винаги има уплътнение между съставните части.
- Докинг на радиатори с полипропиленови тръбопроводи се извършва с предварителна инсталация на съединителя. Провеждащите елементи се вкарват в него и се фиксират чрез запояване.


Кухненски дизайн по прозореца [10 снимки] ✅️ Супер идеи и препоръки за интериора!


Не е толкова лесно да украсите малка кухня, но след това се отваря хоризонт от фантазии и интересни идеи, за да се използва възможно най-изгодно цялото пространство. Следователно трябва да се вземе предвид и мястото близо до прозореца. Как тогава е правилната подредба на мебелите?
Какво може и какво не може да се постави по прозореца? Нека да разгледаме няколко начина, които ще ви помогнат и ще ви подтикнат да измисляте интересни идеи за използването на собствено пространство.
Кухня с мивка до прозореца


Как можете да разнообразите рутинното миене на съдове? Разбира се, инсталирайте мивка под прозореца, след което можете да се възхищавате на околността и освен това да спестите от електричество, тъй като през деня ще имате достатъчно светлина.


Разбира се, ако не живеете в частна къща, а в апартамент, ще са необходими известни усилия, тъй като ще е необходимо да се удължат водните комуникации от отводнителния щранг и да се вгради в перваза на плота на прозореца, свързан към слушалките.


Когато избирате такова дизайнерско решение, имайте предвид, че стените и склоновете трябва да бъдат обработени с антисептичен грунд, така че да не се появява мухъл. В работния плот подредете вентилационна скара, за да циркулира въздух от радиатора към стъклото.
И защо преместването на радиатор може да наруши отоплителната система
Качеството на отоплението директно зависи от местоположението на отоплителните устройства.
Изглежда, добре, какви проблеми може да има тук: строителите са решили всичко за нас отдавна. Проблемът е, че не всички строители "окачват" радиаторите правилно. И да живееш с тези батерии - ти.


Пример за доказване на моята теза е този радиатор на входа на апартамента. Устройството за отопление се появи тук очевидно не в резултат на работата на професионалисти. И дизайнерът на проекта трябваше да го маскира от отчаяние - прехвърлянето едва ли беше възможно.
Мислите ли за изолиран случай? - О, колко грешиш!


Защо батериите се поставят под прозорците
И не до тях, нито на разстояние от метър, нито в задната част на стаята? За да отговорите, достатъчно е да отворите училищен учебник по физика.
Равнината на прозореца е много по-студена от вътрешната повърхност на външната стена на сградата. Например, в съвременните сгради устойчивостта на топлопредаване на външните стени, като правило, е 3,0 ... 3,5 м2 град / W, а за прозорци - само 0,6 ... 0,7 м2 градуса / W. Тоест, прозорците са няколко пъти по-студени от стените.
Препоръки


- Изберете дълбоки мивки за вашия дизайн, в противен случай прозорецът ви постоянно ще се пръска от вода.
- Украсете пространството между прозореца и мивката със стайни цветя, те ще имат достатъчно светлина и най-важното, няма да забравите да ги поливате.
- Въпреки че дневната светлина ще ви бъде достатъчна, уверете се, че мивката е осветена.
- Когато избирате завеси за такъв прозорец, най-добре е да се спрете на тези, които имат функция за повдигане.
Трапезария до прозореца


Ако за вас най-важното в пространството на една стая не е работна зона, а където можете да седнете с цялото семейство и да хапнете, отлети с мислите си някъде в заветните си мечти и освен това да получите естетическо удоволствие от красиви завеси, тогава не забравяйте да организирате уютна трапезария.


Ако пространството ви позволява, тогава можете да поставите само маса до прозореца, а ако не, тогава сгъваемата маса ще бъде вашият спестяващ и удобен вариант. Пейката покрай прозореца ще изглежда красива, освен това ще осигури повече места за сядане, отколкото столове, а под седалките може да бъде оборудвана с чекмеджета за съхранение на кухненски прибори.
възможни проблеми, инструкции стъпка по стъпка, изчисления, алтернатива
Много често в живота ни има ситуации, в които трябва да направите всичко сами, понякога дори осъзнавайки, че резултатът може да е далеч от идеалния. Това се отнася и за темата на днешната ни статия - сами да фиксирате радиаторите към стената. Както разбирате, за да направите отоплителните кабели във вашето частно домакинство, трябва да знаете много, да можете и да правите всичко точно и ясно в съответствие с инструкциите.
Невниманието не е безопасно
За тези, които не са напълно наясно с отговорността, която поемат, ние изброяваме възможните проблеми, които възникват при неправилна инсталация:
- Батериите в неправилно положение могат да се задушат и изобщо да не се затоплят.


Батерии от различни видове и размери
- Неправилно планираната система може да има твърде много вода и да отоплява лошо помещенията.
- Редовното изтичане от системата може да доведе до кипене на останалата вода, повреда на оборудването, тръбите, имуществото. Пример за небрежност е случаят, когато в същия пакет има котли за дърва и газ, водата изтече, котелът на твърдо гориво заври и по чудо няма експлозия, която би могла да причини експлозия на газ. Ето защо е по-добре да инсталирате инсталацията заедно с опитни специалисти и ако имате съмнения относно проблеми с отоплителната система, не се колебайте да се обадите на професионалисти!
Етапи на работа
Съвсем различен е въпросът, ако просто сте решили да смените батерията на чистачките с друга, по-икономична или продуктивна, или имате уменията да комуникирате с подобни системи.
Кратка инструкция за стъпка по стъпка, какво и как трябва да направите, за да инсталирате батерии у дома със собствените си ръце, е както следва:
- Подгответе материали, оборудване.
- Изчислете местоположението си.
- Инсталирайте скобите.
- Извършете действителната инсталация.
- Спойка или запечатване на ставите.
- Проверете системата.
Прочетете повече за всяко действие по-долу.
Монтаж на отоплителна система
Обучение
Разбира се, преди да пристъпите към закрепването на секциите на отоплителния радиатор, трябва внимателно да се подготвите. Ще трябва да разберете коя отоплителна система имате - една или две тръби. Ако първата опция, в допълнение към задължителния набор, изброени по-долу, трябва да се добави байпас. Той служи така, че в случай на нещо да не можете да изключите цялата система, а само да блокирате този радиатор. В студено време е по-добре да не правите подобни манипулации, особено сами. Стандартният комплект за инсталиране на батерия на отоплителна система включва:
- Ъгли.
- Клапани.
- Съединители.
- Drivens.
- Втулки.
- Адаптери.
- Скоби.
- Зърната.
- Крановете на Маевски. Ако не знаете, това е специален клапан, предназначен за изпускане на въздух от системата. Най-често съвременните радиатори вече са оборудвани с тях, но ако не, не забравяйте да закупите, това ще подобри производителността и ще предпази вашата отоплителна система от проветряване, която сглобявате със собствените си ръце.
Изчисляване на местоположението
Както бе споменато по-горе, правилното изчисление е много важно, за да могат батериите да работят с пълния си капацитет, а не да събират въздух, протичащ през системата.
За да се осигури нормалната работа на всички радиатори, участъците на захранващите тръби трябва да бъдат поставени под лек наклон по протежение на движението. Минималният наклон на метровата тръба трябва да бъде половин сантиметър. Също така батерията трябва да се намира на разстояние:
- На около 10 сантиметра от пода.
- От перваза на прозореца от 5 до 10 сантиметра.
- 3-5 сантиметра от стената.
Ако се страхувате от недостатъчно генериране на топлина или искате да намалите разходите си за отопление, след батерията е инсталиран топлоотразяващ екран. Това може да бъде нагревател с рефлектор на топлина или специално отразяващо топло съединение, което просто се нанася върху стената.
Инсталиране на скоби и инсталиране на батерията
Изчислили ли сте необходимия брой скоби? Не сте сигурни как да направите това? Изчислението е просто: минималният брой скоби е 1 на 1 квадратен метър от радиатора. Ако имате обща площ на батерията от 1 квадратен метър, все още имате нужда от 2 скоби. Номерът винаги се закръглява нагоре, за да се гарантира безопасността на системата. Обемът на секциите, необходим за отопление на помещение, се изчислява от площта и техническите характеристики на батерията, която планирате да инсталирате в системата.
С подредени материали, сега инсталирането на скобите. Маркираме местоположението им, още веднъж проверяваме с ниво и лента правилността на маркировката, ако пробием всичко правилно, поставяме дюбелите, завиваме крепежните елементи. Сега трябва да затворите батерията. Ако сте направили всичко правилно, веднага ще забележите колко плътно и равномерно лежи батерията върху стойките. Натоварването трябва да бъде равномерно разпределено, батерията здраво закрепена. Свръхмощен? Страхотен!


Свързване на радиатора към отоплението
Сега трябва да свържете радиатора към отоплителната система. Не забравяйте, че за да се постигне необходимата плътност на фугите, се полагат специални материали, за да се осигури оптималното му ниво. Ако не сте стегнали или усукали, тогава се гарантира теч под налягане, което не може да доведе до нищо добро! За монтаж ще ви трябва теглене с боя, уплътнител или уплътнител. За целите на застраховането не забравяйте, че преди да започнете инсталацията, трябва или да изключите секцията на системата, на която ще се работи за подмяна на батерията, или да източите цялата система, ако нямате спирателни клапани.
За пореден път проверяваме с нивото правилността на закрепване на отоплителните батерии към стената, развиваме всички щепсели, свързваме байпаса с клапан, чистачки, внимателно ги обвиваме с уплътнителен материал или прибягваме до заваряване. Без да сваляте защитната обвивка, извършете изпитването под налягане. Препоръчително е на този етап да имате водопроводчик със себе си. Той допълнително ще провери правилността на закрепването, ще коригира възможните недостатъци и ще доведе работата до логичния си завършек. Това е, което се отнася до съвременните радиатори - стоманени, алуминиеви, биметални.
Чугунните радиатори се различават от изброените по-горе, затова ще се спрем на тяхната инсталация. Те се инсталират от тези, които искат да постигнат възможно най-дълъг пренос на топлина и бавно охлаждане на системата. За да инсталирате такъв радиатор, трябва да го развиете, да регулирате нипелите и да сглобите отново. Такава батерия се разглобява заедно на работна маса с помощта на ключове и лост, като се развиват и двете зърна наведнъж - горната и долната.
Монтаж на радиатор за отопление
Сега сглобявате батерията в обратен ред, натискате я. Преди да инсталирате чугунени батерии, помислете дали стените ви могат да издържат на голямо тегло. Ако стените например са направени от дърво и сте закупили чугунени секции, тогава допълнително ще се нуждаете от специални опорни стойки. Не забравяйте за байпаса с еднотръбна система и задължителното инсталиране на кран на Маевски. Не се изисква заваряване, монтажът се извършва с помощта на чистачки и уплътнителни материали.
Алтернативни методи за отопление
Ако не искате да правите отопление по старомоден начин, с батерии, тогава можете лесно да прибегнете до инсталиране на топъл под. Също така подобна иновация се използва като допълнение към конвенционална отоплителна система в помещения, където е необходимо подово отопление, например в баня или детска стая. Красотата на тази технология се крие във факта, че отоплявате района, в който често се намирате, а не отоплявате тавана. Икономичността на този тип отопление се дължи на поддържането на температурата много по-ниска от тази, която трябва да бъде в радиатора, за да се осигури нормален живот. Например 30 градуса в тръбите за подово отопление ще ви бъдат напълно достатъчни, при 65 в радиатора. Това на практика е двойна полза и тогава комфортът е много по-висок, тъй като не стъпвате на студена повърхност, а ходите по топъл под.
Има два вида подово отопление - електрическо и водно. В първия случай специален кабел осигурява топлина, във втория - водна тръба. Вторият вариант е по-икономичен, както по отношение на разходите за монтаж, така и при експлоатация, особено ако имате добра отоплителна система и използвате топъл под като допълнителен. Когато изчислявате площта, не бройте местата, където ще стоят мебели или уреди.
За да извършите инсталацията, ще трябва да поставите изолационен материал, например експандиран полистирол, да разстилате фолиото, да поставите армиращата мрежа, да фиксирате тръбата на всеки 75 сантиметра. Оформлението на подовото отопление трябва да се спазва стриктно и внимателно да се съхранява, за да се улеснят ремонтните дейности в случай на неизправност. Топлият под се излива с бетонен разтвор с дебелина около 6 - 10 сантиметра. Контролът на температурата се извършва с помощта на клапани или специално устройство, което е част от системата. Разстоянието между бримките на топлия воден под е 15-25 сантиметра. За стени, свободни от мебели и уреди, тя може да бъде по-малка и да бъде само 8-10 сантиметра. При изливане на бетон не трябва да се забравя за буферното пространство за разширяване на бетона при нагряване, това се постига чрез полагане на амортисьорна лента, като се вземат предвид следните параметри: при нагряване от 25 градуса 1 метър бетон се разширява с 0,3 милиметра . Максималната температура на отопление на топлия под е 45 градуса.
Независимо коя отоплителна система предпочитате, кои радиатори изберете, не забравяйте, че целият процес на монтаж трябва да бъде внимателно обмислен, всеки етап се проверява няколко пъти и крайният резултат се изследва от специалист. Не забравяйте, че предпазните мерки никога не са прекалени! Надяваме се нашите съвети да ви помогнат! Топлота в дома ви!
remvizor.ru
Как да скрия батерията?
Когато купуват кухня, почти всеки се замисля какво да прави с батерията? Има няколко решения, нека ги разгледаме.


- Най-скъпият начин е да демонтирате батерията и да инсталирате топъл под. Но тази опция замества много проблеми, свързани с свързването и инсталирането на отопление.
- Инсталиране на батерията в специална вдлъбнатина, например плот за маса. В този случай не забравяйте за решетката за пренос на топлина.
- Можете да го затворите с шкаф с мивка, който просто няма задна стена.


Няма нужда да се разстройвате, ако размерът на вашата кухня не е това, което бихте искали, това е прозорецът, който ще ви помогне да намерите решение в подреждането на мебелите. За съвет можете да се свържете с дизайнерите или да планирате всичко сами, като прегледате готовите снимки на интериора.
Правилна инсталация
Правилата за инсталиране на отоплителни радиатори са еднакви за всички видове отоплителни устройства, независимо дали са вакуумни, алуминиеви или стоманени батерии. Изискванията по-долу също се потвърждават от SNIP.
Спазването на тези правила ще ви помогне да създадете висококачествена циркулация и отопление на помещенията:
- За добра циркулация на въздуха е необходимо да се изгради празнина от около пет до десет сантиметра от горната част на устройството до перваза на прозореца;
- Между дъното на батерията и пода трябва да има поне десет сантиметра;
- Разстоянието от стената до устройството трябва да бъде най-малко два сантиметра и не повече от пет. Ако стената е снабдена с отразяваща изолация, тогава се купуват специални скоби, които имат по-голяма дължина от обикновените.










