В апартаменти, в които е невъзможно да се инсталира обикновена камина, отопляема с дърва, е възможно да се изгради електрическа камина с имитация на пламък. Тези устройства станаха много популярни напоследък. Камината с електрическо задвижване, вградена в портал или стена, може да се превърне не само в декорация за стая, но и в допълнителен източник на топлина. Най-популярното решение в този случай е изграждането на портал за камина от гипсокартон, евтин и красив дизайн, който може да направи интериора шик.
Гипсокартонът е просто обработен материал, който стана популярен напоследък. ОТ с плочи от гипсокартон можете да изградите права или къдрава конструкция, като я изградите в множество нива или декор. В допълнение, такъв портал от гипсокартон тежи малко, което е категоричен плюс при изграждането му в апартамент, където е нежелателно да се създават допълнителни натоварвания върху основата, няма нужда да се излива основата под него. Що се отнася до дизайна на тази структура, можете да направите всичко: от висулка или класика до ъглова камина.
Изграждане на портал
Както писахме по-рано, порталът може да бъде под всякаква форма и напълно произволен по дизайн, но за това трябва да се съобразите с определени изисквания:
- Порталът трябва да съответства на площта на помещението, в което е изграден. Също така си струва да се разгледа площта на самата електрическа камина.
- Можете да изградите портал само след като изберете модел на камина или след закупуването му. Това трябва да се направи, тъй като електрическото устройство се нуждае от вентилация, която трябва да бъде предвидена в конструкция от гипсокартон. Освен това си струва да се определи къде ще бъде разположен електрическият контакт за свързване.
- Ако искате да поставите камина до ъгъла, тогава изградете ъглов портал. Тази система ще изглежда пропорционално в стаята и освен това ще заема ъгъл, който е безполезен в интериора.

- Порталът трябва да бъде проектиран по същия начин като целия интериор на апартамента. Ако стаята е декорирана в ретро стил, тогава високотехнологичният портал ще изглежда неорганично.
- Трябва предварително да вземете решение за облицовъчния материал. Ако искате да украсите камината с камък или керамичен гранит, тогава скелетът на конструкцията трябва да бъде допълнително подсилен, например, да нанесете два слоя гипсокартон или да подсилите профилите с дървени решетки.
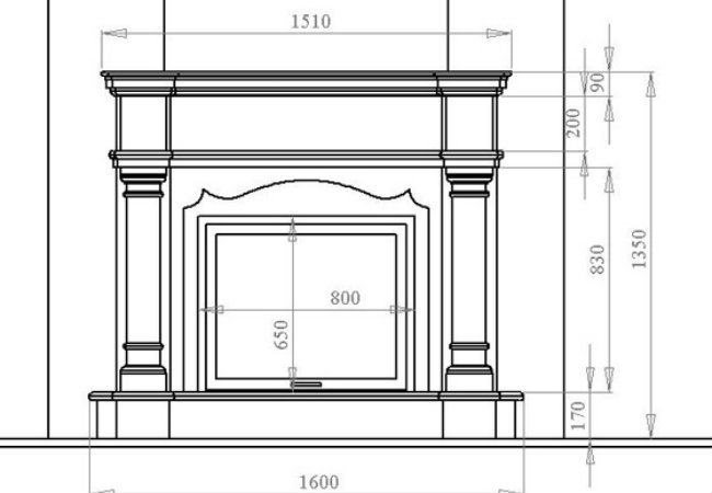
- Преди да започнете сглобяването, нарисувайте бъдещата си камина, след това съставете подробен чертеж с всички размери и марки. След това нарисувайте своя дизайн на пода, това ще ви помогне да избегнете грешки при избора на размер.


След всички приготовления можете да отидете за материала за портала и да подготвите инструментариума.
Дизайн
Порталите се различават по стил, както следва:
- Класически стил. Най-често срещаният тип портали. Тяхната отличителна черта е строгостта на дизайна, яснотата на линиите. Като правило те не изискват никакви допълнителни декорации. Боядисайте портала с бяла боя, можете да добавите малко позлата;
- Държавен стил. Ако искате да изберете такъв дизайн за вашия портал от гипсокартон, украсете го с плочки като естествен камък или тухла. Поставете бронзови дрехи на камината като декорации;
- Високотехнологичен стил. По принцип такива портали са направени от стомана и стъкло, но ако сте решени да направите своя портал точно в този стил, залепете го със самозалепващ се лъскав филм в черно, добавете огледални или стъклени вложки, поставете стъклото върху камината. Можете да закачите телевизор отгоре;
- Арт нуво стил.Отличителна черта на този тип портали е смесицата от класически и модерни изследвания. Такива портали са подходящи за почти всеки интериор.
Необходими материали и инструменти
Така че, за да изградите конструкция за електрическа камина, имате нужда от:
- GKL въз основа на дизайна на 8 или 12 mm;
- профил, едновременно монтиран в багажник и водач;
- крепежни елементи за гипсокартон и профил;
- серпянка, шпакловка, ъгли, шпатули;


- довършителни материали;
- електрическо оборудване;
- нож и ножици за желязо;
- рулетка;
- ниво;
- перфоратор;
- отвертка;
- нож;
- клещи.


След като се извърши цялата подготовка, инсталацията може да започне. Помислете за най-често срещания и най-сложния портал за гипсокартон.
Дизайн
- Първо изберете вида на камината, за която ще изградите портал от гипсокартон. Ако живеете в градски апартамент, най-добре е да изберете електрическа или био камина;
- Решете за формата и размера на портала. Избраната камина трябва да се побере свободно в нея. Също така е необходимо да съотнесете желания размер на портала с параметрите на стаята, не го правете твърде голям или твърде малък;
- След това подготвяме подробна диаграма, на която посочваме размерите на всички елементи на портала, изчисляваме количеството материали, необходими за конструкцията. Вземете под внимание всички нюанси и проверете два пъти получените данни няколко пъти - това е много по-лесно, отколкото да преработите нещо, което вече е в процеса на проектиране.
Ъглов портал за камина
Тази структура е незаменима в стая с малка площ. Ъгловият портал за камина със собствените си ръце от гипсокартон заема малко място, освен това заема минимум полезно пространство, заемайки мъртва зона в стаята. Можете да го поставите във всеки ъгъл. Те конструират конструкция съгласно предварително подготвена скица, докато си струва стриктно да се следват инструкциите на производителя на електрическата камина, в която са написани параметрите на вентилационния отвор.


Ъглов портал от гипсокартон
Работата се извършва съгласно следния алгоритъм:
- Маркирайте профилите според скицата и ги изрежете до необходимия размер, за това можете да използвате ножовка за метал или ножица.
- Всички конструктивни елементи трябва да бъдат свързани заедно с малки самонарезни винтове. Това е лесно да се направи, поставете профила на стената в водача и затегнете крепежните елементи с отвертка.
- Ако сте избрали тежък материал като завършек, тогава цялата конструкция трябва да бъде фиксирана към стената или да се направи специална основа за нея, която трябва да е с 30 см по-голяма от самата конструкция. Този подход към конструкцията ви позволява да изграждате имитация на дървена купчина дърва за огрев в основата.


- По време на сглобяването на рамката си струва непрекъснато да се проверяват параметрите; за това към ниша се прилага електрическа камина. Това ще ви помогне да не сгрешите и да направите правилното електрическо окабеляване за свързване на устройството.
- Веднага след като рамката е напълно готова, трябва да й подадете електричество, така че да ви е удобно да включите камината.
- Гипсокартонът трябва да се реже веднага според скицата, така че ще бъде по-удобно да се работи.
- Рамката е обшита с гипсокартон с помощта на черни самонарезни винтове и отвертка. За да се улесни завършването на конструкцията, главите на винтовете са леко потънали в материала, но се уверете, че крепежните елементи не пробиват картонения слой.


- GKL шевовете са бродирани и запечатани, не забравяйте да ги подсилите с армираща лента. В ъглите на конструкцията към мазилката е фиксиран перфориран ъгъл.
- Повърхността на фалшивата камина трябва да бъде шпаклована с основен слой шпакловка, оставена да изсъхне.
- Вторият слой ще бъде завършващият слой и след изсъхване го шлайфайте добре.
Порталът за камина от гипсокартон е готов за окончателната облицовка. Какъв вид довършителни материали може да бъде избран за вашата камина, ще ви кажем по-долу.
Работа по проект
Преди да направите камина от гипсокартон, трябва да изготвите чертеж от нея.
Структурният дизайн изисква разглеждане на следните въпроси:
- Къде ще бъде разположена камината?
- Колко голям ще бъде портала?
- Каква ще бъде формата и външният вид?
Най-често камините се намират в хола: ако има достатъчно място, това може да бъде централната зона на една от стените на стаята. В малките стаи е по-добре да изберете опцията с ъглова имитация на камина от гипсокартон. Поради външната прилика, декоративна камина често се комбинира с телевизионна зона: например, екран може да бъде окачен над портал. За да може фалшивата камина да играе не само естетическа, но и практическа роля, в нейния състав могат да бъдат включени рафтове и кутии за съхранение на малки неща. Друг вариант е да използвате конструкцията като стойка за телевизор.


Такива препоръки не са правило - понякога порталът и телевизорът са монтирани на различни стени. След като сте решили местоположението на декоративната камина, е необходимо да изчислите нейните размери и да направите чертеж на продукта. В този случай не е необходимо да се постига конструктивна идентичност с настоящото устройство. Основното е, че тя трябва да бъде външно красива и хармонично да се впише в цялостния интериорен дизайн. Конструкцията се основава на метална рамка на профила. Профилът в това отношение е много удобен, тъй като може да се използва за изграждане на всяка подходяща конструкция.


Понякога, когато самостоятелно създавате чертеж на декоративна камина от гипсокартон със собствените си ръце, могат да възникнат проблеми. В този случай можете да разгледате готови проекти на специализирани сайтове: разрешено е да се коригират готови чертежи, като се приспособяват към конкретна архитектурна ситуация във вашия дом. Например, ако се планира да се инсталира електрическа камина вътре в декоративен портал, тогава при изграждането на конструкция ще трябва да се вземат предвид размерите на домакински нагревател. Най-удобно е, когато скици с няколко опции за окончателния дизайн на камина от гипсокартон със собствените си ръце са прикрепени към готовия проект: в този случай камината се вписва във вътрешността на стаята възможно най-органично. Подробен списък с размерите на всяка част също е важен.
Довършителни работи на портала - опции
Целият дизайн на сградата ще зависи от стила. За окончателно довършване можете да изберете следните опции:
- Боядисвайте конструкцията с всяка боя на водна основа.
- Порталите за електрическа камина, украсени с декоративен камък или плочки, изглеждат страхотно, почти невъзможно е да се разграничат от истинските.
- Мозайката ще придаде на сградата шикозен вид.
- Можете да направите камина от циментова мазилка, която е залепена към обикновена мазилка за вътрешна употреба.


- Камината ще добави завършеност и красота към портала. Може да се направи от всякакъв материал, но в някои случаи, за да се спестят пари, той е изграден от обикновен гипсокартон.
- Всяка камина може да бъде украсена с гипсови елементи, те са евтини, но дизайнът става особено красив.
- Ако в селска къща се изгражда камина, тогава декорирането на портала с дървен рафт и завършването с декоративен камък, като тухла, няма да навреди. В този случай си струва да поставите няколко естествени трупи пред фалшивата камина. Тази сграда изглежда много реалистично и може да се превърне в декорация на къщата.


- В офиса е по-добре да украсите камината с декоративна мазилка, която няма да се различава по тон от стените. В тази версия не трябва да има ярки и претенциозни елементи, само няколко рамки със снимки, инсталирани на камината.
- Штукатурка с позлата може да украси стая в романски стил. Почти е невъзможно да направим сами мазилка, затова отиваме в специален магазин и купуваме. Штукатурата се залепва към всяко лепило за монтаж, след което може да бъде позлатена или боядисана в тон, контрастиращ на портала.


Струва си да се отбележи, че е по-добре да не се прекалява с декорацията, тъй като претенциозната декорация може да засенчи основната декорация на всяка камина - пламъкът, който се люлее красиво в електрическата камина.
Изпълнение на произведения
Технологията за създаване на камина със собствените си ръце изисква точност и постоянно съгласуване с плана.
Монтаж на рамка
Инструкция стъпка по стъпка:
- Поставя се маркировка. Той трябва да е напълно в съответствие с проекта.
- Изрязват се части с необходимия размер.
- Профилите се фиксират първо към основата, за закрепване се използват дюбели. Всичко се проверява по ниво и помежду им.
- Поставени са вертикални стелажи, които са подсилени с джъмпери със стъпка 30 cm.
- Оборудвана е ниша. Ако се планира да се поставят симулационни или нагревателни устройства, то те трябва да бъдат направени по-надеждни. За това металните части са подсилени.
- След издигането към основната рамка може да бъде завършена изпъкнала основа.
- Ако камината има сводест вид, тогава краищата на фрагмента на профила се изрязват, след което елементът се огъва до желаната форма и се фиксира.
Рамката не е напразно наречена носеща, външният вид и здравината на бъдещата конструкция пряко зависи от качеството на нейното сглобяване
Пълният ред на сглобяване се определя изключително от съставения план, поради което местоположението на профилите, които ще бъдат монтирани в дълбочината на конструкцията, се обмисля предварително.
Обшивка от гипсокартон
Стъпка по стъпка алгоритъм на процеса:
- Подробности се подготвят. За това плочата се нарязва по размер на елементи. Ако подрязването се извършва със строителен нож, тогава краищата трябва да бъдат преработени с равнина, така че е препоръчително да изрежете фрагментите с електрически прободен трион.
- Съединенията задължително се образуват между съседни части. Възможно е да се изравни появата на пролуки, като се съединят фугите: всеки прав шев трябва да има V-образна форма. Ъгловите фрагменти от гипсокартон се припокриват.
- Ако искате да завършите сводестата ниша на камината, тогава най-простият метод е да създадете шаблон. Алтернативен метод включва примамка на GCR частта с контур, очертан от страната на шева.
- Фиксирането на материала се извършва стандартно, винтовете се завинтват изравнено. Стъпката се избира индивидуално, в зависимост от размера на елемента.
Ако кутията от метални профили е сглобена правилно, тогава няма да е трудно да изрежете и закрепите листовете от гипсокартон към основата.
Не е трудно сами да обковате рамковата конструкция. Довършителните работи се извършват съгласно инструкциите:
- Фугите се грундират и покриват с еластична шпакловка, а отгоре се нанася подсилваща лента.
- Цялата повърхност е обработена със смес за дълбоко проникване.
- Ако е необходимо, се инсталират перфорирани ъгли.
- Нанася се изравняваща смес. Дебелината на слоя трябва да бъде сведена до минимум.
Тази процедура опростява последващия дизайн на камината чрез подобряване на сцеплението и също така ви позволява да промените покритието, без да повредите гипсокартона.
Декорация на портала
Можете да украсите структурата, като използвате различни опции, изборът зависи от стила на интериора и индивидуалните предпочитания:
- Изкуствен камък или тухла. За работа е по-добре да изберете отлежали сортове. Полагането се извършва в зависимост от формата на конструкцията. За да се подобри антуражът, вътрешната част на камината и прилежащите зони са оцветени в тъмно или специално изстреляни.
- Тапет. Най-простото решение. Продуктите се подбират с имитация на естествени материали.
- Штукатурки и различни корнизи. В момента има много красиви декоративни елементи, които имат сложна структура и геометрия. За предпочитане е да се използват фрагменти под формата на колони по краищата и е по-добре да се облицоват изпъкналите части с къдрави детайли.
- Ковани предмети. Продуктите изглеждат интересни под формата на контур или частичен ограничител за камината.
Капакът се изработва отделно, може да бъде с различна дебелина и форма.
Всъщност има голям брой различни материали, което дава място за въображение.
Опции за декор за фалшиви камини
Селекция от снимки на готови портали за камина от гипсокартон
Предимства на камините GKL
Декоративните модели камини са проектирани по няколко причини. Основните причини да направите конструкцията сами:
- Охрана на помещенията. Истинска камина, предназначена за отопление, се счита за опасна от пожар, но по принцип, ако я инсталирате в апартамент, те няма какво да отопляват. В тази ситуация хората придобиват специални устройства, които работят на електричество и симулират пламъка на горяща камина. В такива камини има електрически части, така че е подходящо те да използват материал с огнеупорни свойства.
- За целите на декорацията на дома. Фалшивата камина перфектно украсява стая; тя може да действа като основен декоративен елемент, който често се подчертава. Тази опция не излъчва топлина, но изглежда страхотно до ламината на пода. Как да работите с ламинат, вижте нашата статия. За целите на дизайна се използват различни гипсокартонени плоскости.
По такива основни причини хората решават да направят декоративна камина от гипсокартон със собствените си ръце. Независимо от избраната опция, редът на работа е почти идентичен.
Причините, поради които хората все повече отдават предпочитание на такива дизайни:
- Пожарна безопасност. Тези опции не могат да работят от пряк огън. И дори ако камината все още отоплява помещението, използвайки огнеупорен гипсокартон, рискът от пожар се приравнява на нула.
- Проста конструкция. Поради това предимство камините могат лесно да бъдат конструирани самостоятелно. И ако желаете, можете да направите сложен дизайн на декоративни камини.
- Голям избор от форми. Тъй като за конструкцията се използва гипсокартон, може да се проектира всяка форма на имитация на камина. Често правят имитация с комин, така че камината изглежда завършена.
- Размери на стаята. За да проектирате такава конструкция, размерът на стаята не е важен, защото вие сами избирате размера на завършената конструкция.
- Изправени пред. Изработен е от всякакъв довършителен материал. Това позволява да се комбинира с всякакви довършителни материали в стаята. Ето защо, ако вече сте направили саморазливен под със собствените си ръце според нашите инструкции, не се притеснявайте, камината ще пасне идеално с него.
Много, започвайки от редица предимства, решават да направят камина със собствените си ръце от гипсокартон.
Инструменти и материали
За да сглобите структурата на портал за камина от гипсокартон, ще ви трябват следните инструменти:
- Отвертка, перфоратор и строителен миксер (или бъркалка за забиване на шпакловка и бормашина).
- Ножици за метал или мелница, строителен нож, телбод.
- Рулетка, ниво на сграда, квадрат, конец за рязане, правило.
- Отвертка, чук, комплект шпатула.
- Тава, четка и валяк за боядисване.
Ако всички необходими инструменти не са на разположение, те могат да бъдат наети или взети назаем от съседите, тъй като процесът на сглобяване на камина от гипсокартон ще отнеме не повече от 2 дни.
За да определите количеството необходими материали, трябва да направите приблизителен чертеж на портала с размерите на неговите структурни части. След изучаване на технологията за сглобяване на рамка от гипсокартон, сглобяването на портал със собствените си ръце не е трудно.
Материали, необходими за създаване на фалшива камина:
- гипсокартон (можете да използвате тавана, за да спестите пари);
- метални профили UD, CD, съединители за профили (по избор);
- дюбели 6 × 60 mm (гъбички), самонарезни винтове за метал за гипсокартон 35 mm, "бълхи";
- за бормашина с чук се нуждаете от бормашина, съответстваща на диаметъра на дюбелите (в случая 6 мм), напречен бит за отвертка;
- серпянка, перфорирани метални и сводести пластмасови ъгли, шмиргел, скоби за телбод, сменяеми остриета за нож;
- ако планирате да покриете портала с камък или плочка, трябва да закупите специално лепило, ще ви трябва и грунд, шпакловка, боя на водна основа и цветове.
Практическо използване на строителни материали. Занаяти от гипсокартон
Поръчка за сглобяване
Не е лесно да сглобите портал за гипсокартон, но като се придържате към препоръките и приложите малко изобретателност, това може да стане доста бързо.


Когато сглобявате камина от гипсокартон, е необходимо да изучите много информация, но нека приложим изобретателност - това може да стане достатъчно бързо
Монтаж на рамка
- Според чертежа започваме да маркираме стената и пода, да определяме точките на закрепване по периметъра на конструкцията на направляващите профили на UD. Важно е постоянно да наблюдавате яснотата на размерите и успоредността на ръбовете.
- Пробийте профила с бормашина, за да го прикрепите към стената с дюбел. Чук в закопчалките.
- Използвайте бълхите, за да свържете CD и UD профилите.
- Според чертежа е необходимо да се монтира ниша, в която ще бъде разположен източникът на "огън". Преди да го сглобите, внимателно измерете размерите на електрическата камина или друго устройство, което планирате да инсталирате в нишата. Размерът на рамката в нишата трябва да бъде малко по-голям от планирания, тъй като гипсокартонът и облицовката все още ще бъдат монтирани там.
- Порталната рамка трябва да бъде твърда и да може да понесе необходимото натоварване. За да направите заоблени аркови елементи, използвайте облицовката на UD профила на стъпки от 5 cm.
Обшивка от гипсокартон
След като сте събрали "гръбнака" на бъдещата камина, преминете към обшивката му с гипсокартон. Не забравяйте да завъртите елементите с самонарезни винтове със стъпка между крепежни елементи не повече от 20 cm.
- Започнете от задната страна на горивната камера, след това зашийте отстрани и отпред.
- Листовете от гипсокартон трябва да прилягат плътно, образувайки ясни ъгли, без изпъкнали части и пролуки.
- Гипсокартонът се завинтва в профил със самонарезни винтове. Необходимо е внимателно да потопите винта под нивото на картона, но така че да не го счупите.
- За да зашиете огънатите части, изрежете парче гипсокартон до правилния размер. От шевообразната страна на листа по ширината трябва да маркирате линиите на разстояние 5 см и да изрежете картона с нож. Леко разчупвайки мазилката по прорезите, получаваме необходимия елемент за сводестата част.


Когато обшивате рамката с гипсокартон, завийте самонарезните винтове на стъпки от не повече от 20 cm
Декорация и декорация на камина
Следва мазилка на рамката с гипсокартон. На този етап размерите от рамката се прехвърлят върху листовете от гипсокартон, след което се изрязват необходимите части. Тези части трябва да бъдат фиксирани към кутията с помощта на самонарезни винтове.
Пети етап - декоративно довършване. Има много начини да завършите повдигната камина с помощта на различни материали.
Най-простото и икономично е простото боядисване на цялата конструкция. Но си струва да запомните, че повърхността на камината трябва да бъде подготвена преди боядисване. Този препарат включва шпакловка и шлифоване на повърхността.
Камината може да бъде просто покрита със самозалепващо се фолио. Този метод също е доста икономичен. Освен това можете да изберете филм с модел, който имитира естествен камък или тухла.
Един от най-популярните покрития е декоративното измазване. Сухите смеси могат да бъдат закупени в почти всеки магазин за строителни материали, те са лесни за разреждане и също така са лесни за нанасяне на всякакви повърхности.
Ако камината е украсена с керамични плочки, не забравяйте за предварителното грундиране на гипсокартон и използването на спомагателна армираща мрежа. Той е прикрепен към повърхността на гипсокартона и осигурява здрава връзка между две контактни повърхности.
Можете също да изберете декоративен полиуретан. Той е монтиран с помощта на специални лепилни разтвори и имитира класически мазилки.
И накрая, декорацията на камината.Класическа камина не може да си представим без камина, поради което много често, когато правите фалшива камина самостоятелно, конструкцията също е допълнена с шарнирен рафт. Върху него имам всякакви аксесоари, които са в хармония с цялостния интериор на стаята. Допълнителни аксесоари (под формата на решетка, изкуствени дърва за огрев, свещи, огледала и други декоративни елементи) могат допълнително да бъдат поставени на пода близо до самата камина.
По този начин създаването на декоративна камина е много прост процес. Разбира се, ще отнеме време, умения и търпение, но крайният резултат ще радва не само капитана, но и всички членове на семейството в продължение на много години.
Няколко полезни съвета
Някои малки неща в процеса на работа могат да изпаднат от погледа. Няколко съвета ще ви помогнат да не пропускате важни точки.
- Всички окабелявания трябва да бъдат положени между етапите на сглобяване на рамката и облицовката от гипсокартон.
- Когато използвате свещи или електрическа камина вместо анимиран огън, трябва да се погрижите за мерките за пожарна безопасност, като изберете подходящи материали за нишата.
- Конструкцията трябва да бъде изключително статична, фиксирана към стената и пода.
- Необходимо е да се подреди малък вентилационен отвор с диаметър 0,4 × 0,1 m в средата на горния фланец на портала.
Следвайки съветите и препоръките, дадени в статията, всеки може самостоятелно да направи портал за камина със собствените си ръце. Красотата и комфортът в къщата изцяло зависят от нашите желания и усилия.
Изработване на портал за камина - възможни варианти, инструкции стъпка по стъпка
Когато избирате този или онзи материал за производството на портал за камина, вземете предвид не само личните предпочитания, но и дизайна на определена стая и наличните средства. В повечето случаи камините, които са оборудвани с портали, почти не се нагряват по време на работа, а теглото им е само няколко килограма. Следователно практически няма специални изисквания за термична стабилност или характеристики на якост на избрания материал.


Можете лесно да вземете естествен камък или декоративни тухли, пластмаса или стъкло, гипсокартон, метал и дори дървени плочи. Според експерти за портала не трябва да се използват само листове от масивно дърво и шперплат, тъй като тези материали се различават по това, че бързо се влошават при условия на високи температури. В допълнение към изброените по-горе опции, порталите за камини често се изработват от гипс, полиуретан.
Що се отнася до останалите точки, всичко тук отново ще зависи от вашия вкус. По-долу сме предоставили няколко подробни инструкции стъпка по стъпка за изграждане на декоративна рамка от най-лесните за използване и следователно най-популярните материали.
Каминален портален декор
Облицовката не е напълно завършена работа. Можете да направите такъв дизайн, който да привлече всички ваши гости и да радва окото дълго време.
Красива светлина може да се постигне чрез облицоване на портала с огледални панели. Вътре, по цялата площ на кутията, можете да пропуснете LED лентата, която ще бъде красиво отразена в огледалата. Там могат да се поставят и няколко свещи.


Вътре в нишата можете да инсталирате LCD екран с имитация на пращене на трупи и пламъци. Ако искате да осигурите истински пламък, можете да поставите отделна малка биокамина в нишата. Той работи на биогориво, лесно се зарежда и е безопасен, когато се използва правилно.


_home_store
Растенията, сухите клонки, шишарки и свещи също са подходящи за декор. Те ще създадат специален уют и празнична атмосфера. На горната ниша можете да поставите рамки с фотографии, фигурки или вази с интересни орнаменти.
На стената в съседство с устройството може да се постави плосък телевизор или картина. В малка стая над него можете да поставите огледало, което визуално ще разшири пространството.










































