Публикувани от lpunity през 12.11.2018г
Всички сгради и апартаменти, които са свързани към топлофикационната мрежа, използват топлина, за да организират и поддържат оптималната температура за потребителите. Устройството, което организира контрола на количеството енергия, се нарича топломер. Такова устройство трябва да отговаря на изискванията за единици за измерване на топлина в съответствие с договора, сключен с представители на отоплителната мрежа. Той може също така да наблюдава показанията и параметрите по време на работа на топлоносители (вода и пара, циркулиращи в отоплителни устройства) при потребителите.
Правила за организация на търговско измерване на топлинна енергия
Когато използва топломер по договор, потребителят плаща само за количеството произведена топлина. Това устройство е необходимо за организиране на спестяванията в количеството консумирана топлина и намаляване на разхода на гориво в съответствие с подписания договор след приемането на акта. Техническото измерване на топлинната енергия е необходима организация в модерна сграда за управление на оборудването на електрическите мрежи.
Изискванията към търговските измервателни уреди казват, че това са устройства за организиране на измерването на температурата и обема на топлинната енергия. Според правилата те се състоят от разходомер, температурни сензори на входа и изхода и електронен калкулатор. Като се вземе предвид информацията за масата на потока, потребителят може да определи обема вода и пара, които оборудването произвежда от измервателния уред.
За да организират измервания на параметрите, потребителите могат да използват следната формула: произведената маса топлина е равна на обема на топлината, подавана през разходомера, умножена по разликата в температурата в захранващия и връщащия тръбопровод. Този показател се умножава по коефициента на топлопреминаване, който характеризира параметрите на оборудването съгласно договора за експлоатация.

Настоящите технически условия и паспортът на измервателното устройство определят правилата за монтаж. Например, топломер трябва да бъде включен в регистъра на измервателните уреди, както всяко друго метрологично устройство.
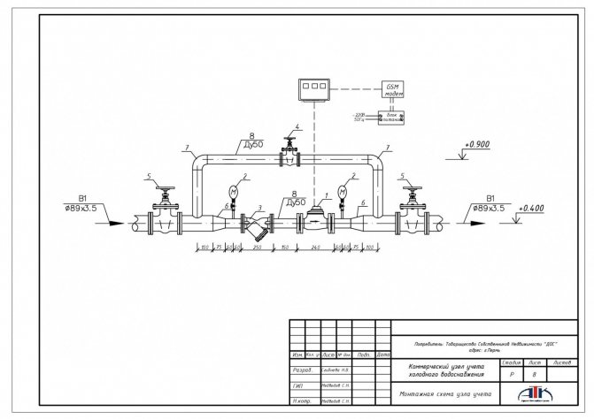
В съответствие с техническите спецификации за организацията на инсталирането на топломери, те се монтират на прави участъци от системата, а температурните сензори - на тръбопроводи с диаметър най-малко 70 mm с включване на допълнителни фитинги (филтри, сферични кранове, измервателни манометри и термометри). Работата се извършва от представители на отоплителната мрежа.
Този комплект оборудване за системата за топлоснабдяване, съгласно правилата на организацията, се нарича търговско измервателно устройство. Изискванията за работа по неговото инсталиране са регламентирани в член 19 (Организация на търговско измерване на топлинна енергия, топлоносител Федерален закон "За топлоснабдяване").
Обслужване на топломер
Естествени въпроси възникват от собствениците на топломера
- Ако топломерът е инсталиран от държавата, тогава кой трябва да плати за държавната проверка?
- Имаме ли нужда от сервизна организация?
- Има ли закон, който да го има?
- Какво ни очаква, ако откажем услугата?
- Какво е включено в услугата за поддръжка?
Нека да разберем, с всички въпроси по ред.
Топломерът от страна на собственика не изисква специални грижи. Литиевата батерия, от която се захранва топломерът, не е подходяща за повторна употреба, но изисква изхвърляне.Не е необходимо да се полагат специални грижи за батерията, обявеният от производителя експлоатационен живот е най-малко шест години, като правило не повече от пет години и това е равно на експлоатационния живот на измервателния уред, преди да бъде проверен (периодът на държавна проверка е четири и пет години за различни топломери). Специалист, който проверява или поддържа топломер, е длъжен да сменя батерията приблизително на всеки четири години. Ако вашите потокови преобразуватели също се захранват от батерии, тогава те трябва да се сменят на всеки две години.
Термична устойчивост - без поддръжка.
Това е теория - нека я анализираме на практика.
Топломер.
Клауза 23. Правила за търговско измерване на топлинна енергия, охлаждаща течност от 18 ноември 2013 г. N 1034 гласи, че показанията на измервателните устройства (включително тези, използващи телеметрични системи - системи за дистанционно отчитане) се извършват от потребителя.
Клауза 80. В рамките на срока, определен от договора, потребителят или упълномощено от него лице (прочетете организацията, обслужваща топломера) представя на топлоснабдителната организация доклад за потреблението на топлина, подписан от потребителя. Споразумението може да предвижда докладът за потреблението на топлина да се представя на хартия, на електронен носител или с помощта на диспечерски средства (с помощта на автоматизирана система за информация и измерване).
Следователно всички поддръжка на топломера и ежедневното наблюдение на правилната работа на топломера е поверено на потребителя.
Клауза 89. Ако бъдат открити нарушения във функционирането на измервателния блок, потребителят е длъжен уведомете сервизната организация за това в рамките на 24 часа и организация за топлоснабдяване и съставят акт, подписан от представители на потребителя и обслужващата организация. Потребителят представя този акт на топлоснабдителната организация заедно с доклад за потреблението на топлина за съответния период в рамките на срока, посочен в договора.
Клауза 90. При ненавременно уведомяване от потребителя за нарушения на функционирането на измервателния блок се прави изчисляване на потреблението на топлинна енергия, охлаждаща течност за отчетния период чрез изчисление.
Сега анализираме нашите разходи за обслужване на топломера.
Регистърът на отоплението е отменен от новите правила, това е добре, но ние, както и преди, сме длъжни да назначим отговорно лице за наблюдение на коректността на работата топломер. И за да забележи неизправност навреме, той трябва да разбере добре как работи топломера и най-важното - да има свободно време за това. Идеален вариант, ако на измервателната станция е инсталирана система за дистанционно отчитане, поддръжката ще бъде сведена до наблюдение на показанията, без да слизате в мазето и да посещавате топломера.
Всички параметри на консумацията на топлина ще бъдат видими на компютъра, лицето, отговорно за измерването, ще контролира, без да излиза от дома. Такъв контрол също няма да бъде безкористен, пари ще се искат от вас - колко? Ако човек е пенсионер и има съвест - 500 рубли, млад човек е не по-малко от 1000 рубли.
Спазваме параграф 80 от търговските счетоводни правила. Те пренесоха разпечатката в отоплителните мрежи - те имат основателен въпрос: Кой го направи? Грешна форма? В светлината на факта, че много често се опитват да подправят разпечатки, те трябва да познават човека и да изискват разпечатка в непроменена форма на производителя. Въпросът беше решен - и по този въпрос работим спокойно. Между другото, ние също отделяме много време за посещение на отоплителните мрежи, в края на месеца и отчетът обикновено се получава в рамките на 2-3 дни, винаги има опашки.
Ние анализираме действията си съгласно клаузи 83-85 от счетоводните правила, неизправност на инструмента. Ако броячът не успее, тогава кодът за грешка се показва на дисплея на калкулатора на количеството топлинна енергия и ще се показва, докато специалист премахне повредата. За да улесни максимално поддръжката, екранът показва възможно най-ясната информация. На практика това е малка мигаща икона, някъде в ъгъла.Символична буква или цифра, които са разбираеми само за специалист. 99% от хората не го забелязват.
Неизправността в отоплителните мрежи не е докладвана навреме и в съответствие с параграфи. 90 (в случай на ненавременно уведомяване от потребителя за неизправност на измервателния уред, изчисляването на потреблението на топлинна енергия, охлаждащата течност за отчетния период се извършва чрез изчисление.) Правила, ние бяхме таксувани за топлина според изчислените топлинни натоварвания посочени в Споразумението. Те също загубиха много пари.
Въпросът е какво би направила обслужващата организация в този случай?
Имайки право да демонтира, инсталира, провери и поправи оборудването, използвайки специални средства, тя ще намери деня и часа на повредата, ще възстанови загубените показания и топлинните мрежи ще приемат нейните данни.
Изглежда, че те са решили, че трябва да имат сервизна организация. Сега нека решим каква друга работа, скрита от очите ни, е необходима в отоплителното тяло.
Термични съпротивления - теоретично те не изискват поддръжка, но това е основният елемент, отговорен за правилните показания на температурата. За улеснение на поддръжката те се монтират универсално не директно в охлаждащата течност, а чрез термобутон. В обикновените хора гилза. Винаги трябва да се пълни с масло и то доста течно, не сгъстено - превърнато в смола под въздействието на температурата. Наличието на масло трябва да се проверява ежемесечно. Желателно е сервизната организация да може да проверява контактите на водещите проводници. Основата на термичното съпротивление е намотка с тел - мед, платина и др. Измервайки температурата, ние всъщност измерваме съпротивлението на тази намотка. Например 119,708 ома е 50 градуса, 123,613 ома е 60 градуса. Дори наличието на леко окислен или хлабав контакт е 3-5 ома. За тези, които не са запознати с електротехниката, обяснявам - много, много малко. Аналитична схема, вградена в битови топломери ще намали наполовина грешката. Два ома на масата е около 5 градуса. Прилага се за пететажна сграда с четири входа, 9,2 t / h x 5 gr = 0,046 Gcal / h. При Gcal цена от 1200 рубли, 0,046x24x30 x 1200 = 39744 рубли. Добра грешка? Приблизително 6 рубли на квадратен метър от общата площ. При внесените топломери, принципът е малко по-различен, няма схеми за компенсиране на съпротивлението на проводниците (в нашия случай грешки при четене), но тяхното съпротивление е платинено 500 или 1000 Ohm. Поради това грешката е малко по-малка, но диаметърът и дължината на проводниците от топломера до калкулатора на топлинна енергия са много силно повлияни.
Ако термичното съпротивление е монтирано директно в охлаждащата течност, тогава веднъж годишно, преди началото на отоплителния сезон, повърхността на термичното съпротивление трябва да бъде обезмаслена. Това е като в чайник с продължителна употреба. Scale също така въвежда голяма грешка в показанията. Как да проверите термичното съпротивление на място, ако плащането за топлина зависи толкова много от него. За тези цели в точката на нагряване задължително се монтират контролни термометри. Вярно е, че показанията им са по-малко точни от тези на термичните съпротивления, класът на точност и принципът на измерване не са еднакви. Добрата сервизна организация разполага със специални устройства за тези цели - електронни пирометри. Класът им на точност е много висок (с изключение на евтините китайски). Пирометрите измерват температурата не на охлаждащата течност, а на повърхността на тръбопроводите, но разликата в показанията между директния и връщащия тръбопровод е точна. Тази стойност се използва при изчисленията.
Необходимо е ежегодно почистване и промиване (прочетете демонтиране) разходомери всички видове с изключение на водомери. В измервателните станции с водомери те се ограничават до изплакване със специални разтвори и продухване на вътрешността на устройствата със сгъстен въздух. Процедурата трябва да се извършва много внимателно, в съответствие с инструкциите и само от обучен персонал. В противен случай ще има повече вреда от това.
Изисква се специален контрол Захранвания, стабилността на напрежението е ключът към правилната работа на топломера.
Ако вашата отоплителна единица съдържа Сензори за налягане (новите правила изискват инсталирането на датчици за налягане), е необходимо ежемесечно да се проверяват показанията им с показанията на механичните манометри. И не на последно място, състоянието на проводниците и окабеляването, заземяването и заземяването. Ако фирмата, която е инсталирала измервателния уред, е спестила пари върху тях или мазето ви е влажно или дори по-лошо, то е наводнено с вода, след три или четири години те могат да станат неизползваеми. А наличието на заземяване и заземяване трябва да се следи ежемесечно и да се измерва ежегодно.
И все пак, има ли закон, предписващ да има обслужваща организация?
В правилата за търговско счетоводство за обслужващата организация има само един ред в точка 89. Ако бъдат открити нарушения във функционирането на измервателния възел, потребителят е длъжен да уведоми сервизната организация и топлоснабдителната организация за това в рамките на 24 часа и съставете акт, подписан от представители на потребителя и сервизната организация. От това следва, че можете да стреляте, но ако има проблеми без сервизна организация, те няма да говорят с вас, ще напишат каквото искат. Съществува и 261-федерален закон "За спестяване на енергия и за повишаване на енергийната ефективност и за изменение на някои законодателни актове на Руската федерация", член 13, параграф 7 от този закон казва: "Собствениците на измервателни устройства за използваните енергийни ресурси са задължени за да се осигури правилната работа на тези измервателни устройства, тяхната безопасност, навременна подмяна ". Клауза 12 от същия член "организации (има предвид тези, които са инсталирали измервателното устройство или които доставят топлина) в случай на разкриване на фактите за неизпълнение от страна на собствениците на измервателните уреди на използваните енергийни ресурси на задължението да осигурят правилната експлоатация на тези измервателни уреди и не отстраняване на такова неизпълнение преди изтичането на два месеца от момента на откриването му също са длъжни да започнат да експлоатират тези измервателни уреди с разпределение на направените разходи на собствениците на тези измервателни уреди. Собствениците на тези измервателни уреди са длъжни да осигурят допускането на тези организации до измервателните уреди на използваните енергийни ресурси и да заплатят разходите на тези организации за тяхната експлоатация, а в случай на отказ за доброволно заплащане на разходите разходите, направени от тези организации във връзка с необходимостта от принудително събиране. " Добре казано. Струва си да се помисли.
Нека обобщим всичко по-горе: Услугите за поддръжка на топломери се състоят от:
1. Водене на записи за потреблението на топлина и отчитане на броячите веднъж месечно (задължително архивно съхранение, в електронен вид, най-малко 2 години).
2. Служба за анализ на състоянието на периферното оборудване и работата на топломера.
3. В някои случаи се предоставят услуги за ремонт и настройка на топломера. Много е добре, ако по време на ремонта ще ви бъде предоставен резервен топломер и като цяло е чудесно, ако е безплатен.
4. Услуга за предаване на отчета на топлоснабдителната организация. Между другото, това е много изгодно, не стойте на опашки, не слушайте "заяждане" и получавате сметката за топлината по пощата.
6. Услуга за демонтаж и монтаж на измервателния уред за проверка или подготовка за отоплителния сезон.
7. Служба за държавна проверка на измервателните уреди.
Колко може да струва всичко това и на кой етап е по-добре да сключите споразумение?
Посочените по-долу цени са актуални за град Ростов на Дон и Ростовска област. Не се изненадвайте, ако ви се струва скъпо, 50% от честната компания отива за данъци, 10-20% в зависимост от вида на договора за услуги, консумативи, транспорт. И само останалото за заплата.
1. Само вземане на показания от компанията 1100-1350 рубли.
2.Вземане на показания, мониторинг на изпълнението, прехвърляне на отчети към отоплителни мрежи 1500-1800 рубли.
3. Вземане на показания, мониторинг на ефективността, премахване на незначителни недостатъци, без да се премахват пломбите на топлоснабдителната организация, прехвърляне на доклади към отоплителни мрежи 1800-2000 рубли.
4. Вземане на показания, мониторинг на ефективността, отстраняване на малки недостатъци, без да се премахват пломбите на топлоснабдителната организация, настройка след ремонт, прехвърляне на отчети в отоплителни мрежи -1800 рубли.
5. Същото като точка 4, плюс обаждането на специалистите от отоплителната мрежа да премахнат пломбите преди ремонта и запечатването след ремонта 1850 рубли.
P.S. Извикването на специалисти при пускане в експлоатация на нов блок и след държавна проверка, както и веднъж годишно преди началото на отоплителния сезон, е безплатно, останалото зависи от региона и може да бъде платено.
6. Услуга с ремонт и осигуряване на резервен топломер от 2400 рубли. Цената на държавната проверка зависи от броя на периферните устройства в съоръжението и вида на топломера. От 25 000 рубли за моноблок с два термопреобразователя и 28 500 рубли за стандартно съоръжение с водоснабдяване с топла вода (4 тръбопровода). Разпределението на средствата тук е както следва, 55% плащане за услуги за държавна проверка (център за стандартизация и метрология - UCM), 25% услуги за наливане, 20% демонтаж, монтаж на устройства.
Както можете да видите, вашата обслужваща организация ще получи малки пари за работата, но отговорността е огромна и корекцията след проверка е като в ново съоръжение. Ако ви бъде предложено да извършите тази услуга по-евтино, най-вероятно никой няма да направи нищо, ще я сподели с когото трябва или дори ще подправи печатите. Има много такива случаи и такива спестявания определено ще се окажат лоши за вас.
Кога е най-доброто време за сключване на договор с доставчик на услуги?
Нашето мнение веднага. Разбира се, ако уредът е инсталиран от надеждна организация, имате сухо мазе, няма прекъсвания на електрозахранването, новите изолирани тръбопроводи определено ще работят година или две без ремонт. Но преди началото на отоплителния сезон разходомерите и термометрите изискват промиване, щяхте да го направите безплатно, сега за пари. Следващото допускане до експлоатация преди началото на отоплителния сезон също ще разкрие недостатъци, незначителни недостатъци и т.н. И всички те ще бъдат елиминирани за ваша сметка.
И накрая, много е добре, ако всички жители на къщата имат достъп до показанията за получената топлина. Председателят и сервизната компания могат да бъдат спокойни, никой няма да ги обвини в кражба или тайно споразумение с работниците по отопление. Но как да го направя в следващата статия.
Ако имате въпроси, свързани с поддръжката на измервателни уреди за топлинна енергия и охлаждаща течност, моля, обадете ни се на номерата, посочени на страницата за контакти, или изпратете имейл
Парамонов Ю.О. Ростов на Дон. 2012-17
Какво друго да прочетете по темата:
Свързани записи:
- Енциклопедия за измерване на топлина за HOA и жилищно-комунални услуги
- Кой трябва да плати държавната инспекция на топломера?
- Защо да инсталирате топломер
Монтаж на измервателна апаратура
Съгласно правилата за инсталиране на устройства за измерване на топлината има два начина за инсталиране на измервателни устройства:
- Измерването на температурата и енергийната маса изисква организирането на топломери на всеки топлоносител. За да получи общото потребление на топлинна маса за апартамент, потребителят трябва да добави данни за цялото оборудване през отчетния период.
- Организацията на едно измервателно устройство за консумация на топлина в щранг и температурни сензори се извършва на всеки топлоносител при потребителите. В този случай количеството работа по препрограмиране се определя от представители на отоплителната мрежа. Те също така добавят данни за всеки тръбопровод, за да получат общото потребление от потребителите.
Само еднотръбни хоризонтални системи позволяват измерване с един топломер. Такива устройства обаче са оборудвани само в промишлени и промишлени сгради.Ето защо ефективно решение на проблема, което не изисква значителни инвестиции и обновяване на помещенията, е инсталирането на търговски устройства за измерване на температурата.


Методи за обработка на показанията на измервателни топлинни комплекси.
Измервателен комплекс топлината може да изпълнява следните функции: - въвеждане и промяна на първоначалните условия и данни (процедура за настройка);
- периодично анкетиране и изчисляване на всички параметри на охлаждащата течност;
- изчисляване на дебита, обема, температурите и налягането на охлаждащата течност и изчисляването въз основа на консумираното количество топлинна енергия;
- извеждане на информация за текущите стойности на измерените и изчислени параметри (дебит, обем, налягане, температура и др.);
- показване при повикване на текущите стойности на показанията на сензорите, както и консумираните количеството топлинна енергия и стойностите на всички въведени и изчислени параметри;
- дистанционно предаване с помощта на допълнителен модем през стандартен интерфейс на всички изчислени, въведени и съхранени в паметта на коректора при поискване или според дадена програма;
- определяне на външно неразрешено влияние с цел въздействие върху процеса на изчисляване на обема и предоставяне на доклади за извънредни ситуации, аварии, неразрешени интервенции;
- почасово архивиране на основните параметри за 12 месеца;
- диагностика на функционалността на функционалните блокове;
- показване на измерените стойности на параметрите с индикация на час и дата;
- показване на дневната консумация на топлинна енергия и нейните параметри за текущия и последния месец;
- показва серийни номера на компонентите на комплекса.
Горните функционални възможности на измервателния комплекс позволяват получаването на необходимата информация без допълнителна обработка.












