Голямо разнообразие от нагревателни средства дава възможност да се изберат най-оптималните проби от тях. Така че не всички бойлерни устройства имат еднакви показатели и следователно разход на гориво. Ето защо, преди да закупите този или онзи модел, си струва да направите необходимите изчисления.
Ако правилно сте изчислили разхода на гориво, дизеловият котел ще работи ефективно и ще може да поддържа необходимата температура в помещението. В противен случай са възможни различни нюанси в работата на устройството и системата като цяло.
Оборудване за течно гориво и неговите характеристики
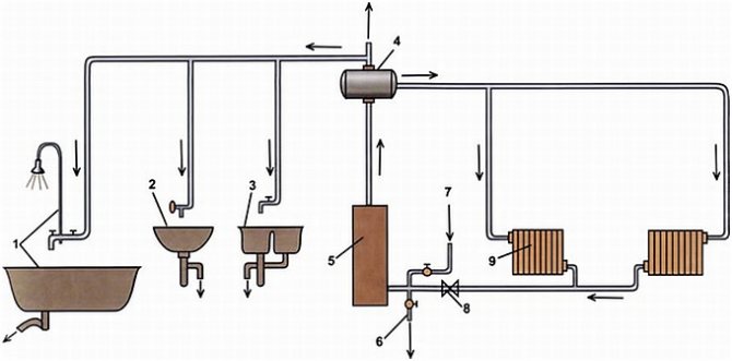
Устройствата, работещи с керосин, дизелово гориво или дизелово гориво, могат да се използват за отопление на промишлени и жилищни помещения.

Горивото за такива котли се съдържа в специален резервоар, който може да бъде разположен на всяко място, удобно за потребителя:
- В котелното
- На улицата
- Под земята
Тази функция е едно от основните предимства на устройствата с течно гориво.
Най-ефективното е използването на това отоплително оборудване в негазифицирани населени места, тъй като разходът на гориво на дизелов котел не е много висок. Принципът на неговото действие има незначителни разлики от устройствата, работещи на други видове енергийни носители.
Той има горивна камера, в която е разположена горелка, която е необходима за изгаряне на дизелово гориво. В хода на своята работа охлаждащата течност се загрява, която след това се подава към отоплителната система. Продуктите от горенето се отстраняват от апарата през комина. В същото време те преминават през топлообменника, частично отдавайки топлина към него, което помага да се увеличи ефективността на устройството.


Котлите за дизелово гориво най-често имат стоманен корпус, който практически не е обект на корозия.
Под него са разположени блокове за управление и автоматизация, които контролират работата на оборудването. Топлообменниците в дизеловите котли са изработени от стомана или чугун, така че да могат да издържат на продължително излагане на високи температури.
За да се намалят топлинните загуби по време на работа, както и да се накара дизеловият отоплителен котел да консумира по-малко гориво, под външния корпус на устройството се поставя топлоизолационно уплътнение, което също предпазва потребителите от изгаряния.
Двигатели
Миниваните от почти всяко поколение се отличават с голям избор от двигатели, които имат добри потенциали и нисък разход на гориво. Бензиновите модели се считат за по-малко надеждни от дизеловите. Въпреки че има много противоречия с дизеловите двигатели, някои казват, че те не са най-добрите, други експерти казват, че двигателите са перфектни.
Именно Volkswagen Transporter с дизелово гориво остава най-търсеното на вторичния пазар. Те не са причудливи, разходът на гориво е нисък, те са проектирани просто, поради което рядко се провалят. Освен това те могат да се поддържат.
От какво зависи разхода на гориво?
Отоплителната система се влияе от голям брой различни фактори и натоварвания.
То:
- Топлоизолация на помещението
- Къща
Естествено, колкото по-голям е вашият дом, толкова по-голяма ще бъде консумацията на дизелов отоплителен котел. Ефективността на устройствата, такива устройства, варира от 90 до 95%. Но този резултат може да се получи само при максимална скорост на устройството. Следователно, когато купувате отоплително оборудване, не трябва да го избирате с марж. Това ще помогне да се избегнат ненужни разходи, тъй като в този случай котлите за отопление с мазут ще консумират по-малко гориво.
Общи характеристики на дизеловите отоплителни котли
Възможности за отоплителни уреди:
- Инсталирането на дизелов агрегат не изисква никакви споразумения или специални разрешения.
- Устройството работи автономно за 100%.
- Работи без отделяне на въглеродни отлагания или замърсявания.
- Нуждае се от малка стая с вентилационна система и контейнер, в който трябва да се съхранява гориво. Контейнерът може да бъде направен от пластмаса или стомана, с възможност за побиране от 4 тона до 10 тона.
Важно е да се вземе предвид, че съдовете за съхранение на горимата смес предполагат специално оборудван бункер, той може да бъде и изолирана стая. Контейнерът с дизелово гориво, при мерки за безопасност, препоръчително е да се копае малко в земята.
Преди да направите покупка на оборудване, трябва внимателно да изчислите всичко и да проучите възможностите му до най-малкия детайл. Само в този случай изразходваните финанси ще донесат надеждност, ефективност и комфорт през отоплителния сезон.
На първо място, трябва да изчислите разхода на котел за дизелово гориво за отопление:
- Площта на стаята, която се нуждае от отопление у дома.
- Силата на самата единица.
- Колко дни котелът ще работи с максимален капацитет годишно.
- С какъв товар ще работи устройството през последните месеци.
Всичко по-горе са най-важните показатели за избор на дизелови котли.
Каква формула трябва да се използва за изчисляване
За да изчислите разхода на гориво на дизелов котел за определено помещение, можете да използвате приблизителни изчисления. Например, в средния статистически случай, за да получите мощност от 10 kW, ще трябва да консумирате 1 kg дизелово гориво на час.
Има и друга опция, тя се основава на показанията на мощността на горелката, които трябва да се умножат по коефициент 0,1. Резултатът е количеството гориво за 1 час работа на оборудването.
Познавайки тези показатели, можете да изчислите приблизителните цифри, които дизеловият котел консумира за отопление на помещение с определена площ. Например, за да отоплявате къщата си от 150 m², имате нужда от котел с мощност 15 kW. След това умножавайки тази стойност по 0,1, получаваме 1,5 kg / h.
Това означава, че когато работите на пълни обороти, вашето устройство ще изгаря 36 кг (1,5x24) на ден. И ако вземем 100 дни при пълно натоварване като средно време за работа и същото количество при половин натоварване, тогава се оказва: 100х36 + 100х18 = 5200 кг. Както можете да видите, повече от 5 тона дизелово гориво ще бъдат изразходвани за отопление на вашите помещения през есенно-зимния период.
MTZ 82 - какво влияе върху разхода на гориво на 100 км


За да увеличите "средния" показател за разхода на гориво може:
- Приставки, включително тези, които не са предназначени за електроцентралата на блока;
- Неизправности на двигателя;
- Неизправности и неизправности в горивната система;
- Скорост на превозното средство;
- Видове изпълнявани работи - оран, транспортиране на тежки товари и така нататък;
- Тип двигател - на модели MTZ 82 и MTZ 82.1. могат да се монтират силови агрегати D-240, D-243 и техните модификации;
- Свързване / изключване на задвижването на всички колела;
- Работа на по-високи или по-ниски предавки, общ стил на шофиране на трактора;
- “Трудни” почви;
- Дълбочината на обработка, влага в почвата;
- Ниско качество на горивата и смазочните материали;
- Метеорологично време.
Възможно е да се намалят загубите на дизелово гориво по време на експлоатация на трактори Беларус MTZ 82 чрез правилно регулиране на дюзите на горивната система, избягване на „агресивния“ стил на шофиране и поддържане на трактора и прикачното / тегленото оборудване в добро техническо състояние.
Влиянието на много фактори води до факта, че цифрата „скача“, обаче такива „скокове“ значително усложняват планирането и контрола на разхода на гориво.
Като ориентир можете да използвате средния разход на гориво на тракторите MTZ 82, 82,1, създаден през 2012 г. за продуктите на Минския тракторен завод от Министерството на транспорта и съобщенията на Република Беларус. Тези норми могат да бъдат пренесени в руската реалност.
Разход на гориво за трактора MTZ 82 - средни стойности
Нормативният документ разглежда основните възможности за използване на тракторите Беларус MTZ 82 и MTZ 82.1, при условие че работят на „средни“ почви при приемливи метеорологични условия.
За автомобили с двигатели D-243:
МТЗ-82 с ремарке PSE-F-12.5;
- режим на транспорт - 7,7 л / машиночас;
- режим на транспорт (при изключен преден мост) - 7 л / каш.ч.
MTZ-82 с количка PL-7 и хидравличен манипулатор Nokka - 7,3 л / машинен час. MTZ-82;
- режим на транспорт с ремарке 2PTS-4 - 6,8 л / машинен час;
- режим на транспорт с ремарке 2PTS-4.5 - 7.0 л / машиночас;
- режим на транспорт с ремарке 2PTS-5 - 7,5 л / машинен час;
- режим на транспорт с метачна машина Brodway Wasa 3000 - 11,0 л / машинен час;
- режим на транспорт - 5,5 л / машиночас;
- метене с четка - 4,3 л / машинен час;
- снегопочистване със сметище - 6,6 л / машиночас;
- снегопочистване с острие и четка - 6,9 л / машинен час.
MTZ-82.1 с машина за поливане MP-5A;
- режим на транспорт - 6 л / машиночас;
- работа на помпата 32-3А - 5 л / маш.час;
- работа на помпата NPO-60M2 - 4.6 л / маш.ч.
MTZ-82.1;
- режим на транспорт - 5,5 л / машиночас;
- режим на транспорт с ремарке 2PTS-4 - 6,8 л / машинен час;
- режим на транспорт с ремарке 2PTS-4.5 - 7,0 л / машинен час;
- режим на транспорт с ремарке 2PTS-5 - 7,5 л / машинен час;
- режим на транспорт с ремарке PSE-F-12.5V - 6.5 л / машиночас;
- режим на транспорт с ремарке PST-9 - 8,0 л / машинен час;
- режим на транспорт с ремарке PST-11 - 10,4 л / машинен час;
- режим на транспорт с платформата PTK-10-2 - 9,4 л / машинен час;
- метене с четка - 4,3 л / машинен час;
- снегопочистване с четка - 6,3 л / машинен час;
- снегопочистване със сметище - 6,6 л / машиночас;
- снегопочистване с острие и четка 6,9 л / машинен час;
- режим на транспорт с мелница за дървесни отпадъци IDO-25 "Ивета" - 5,5 л / каш.-час;
- работа на мелницата за дървесни отпадъци IDO-25 "Ивета" - 4,8 л / машиночас;
- производство на дървесен чипс в завода DDO - 3,6 л / машинен час;
- работа с фреза - 4,2 л / машиночас;
- работа с гребло - 7,5 л / машиночас;
- работа с плоска фреза - 8,0 л / машиночас;
- косене на трева с косачка KDN-210 - 5,7 л / каш.час;
- отстраняване на асфалтобетонното легло с фреза FD-400S - 5,8 л / машинен час.
За автомобили с двигатели D-240:
MTZ-82;
- режим на транспорт - 5,3 л / машиночас;
- режим на транспорт с ремарке PSE-F-12.5B - 6,2 л / машинен час.
MTZ-82.1;
- режим на транспорт - 5,3 л / машиночас;
- режим на транспорт с ремарке 2PTS-4 - 6,0 л / машинен час.
* Разходът е посочен в дизелово гориво. Моля, обърнете внимание, че консумацията за работа на оборудването не се сумира с работата на двигателя, общата консумация се получава, когато консумацията за работа на приставките се добави към режима на транспорт. За работа на ремаркета е посочена общата стойност.
Имате ли още въпроси относно нормите за разход на гориво за тракторите MTZ 82 и 82.1, произведени от Минския тракторен завод? Попитайте нашите специалисти, като се обадите на безплатния номер, или използвайте услугата „Искайте обратно обаждане“.
Как да спестите гориво? И кое устройство да избера?


Устройствата за течно гориво могат да бъдат едно- или двуконтурни. Естествено, последният ще изисква по-голям разход на дизел за работа, което ще доведе до увеличени разходи. Ето защо за такива модели най-доброто решение е да се намали количеството топла вода, което ще спести гориво.
Още един съвет от експерти. Те препоръчват да се настрои по-ниска температура за охлаждащата течност, което също влияе върху разхода на дизел.
И последният начин е да инсталирате термостат в най-топлото помещение.
Използвайки тези съвети, можете да намалите количеството гориво, необходимо за експлоатацията на вашия нагревател и да спестите пари.


Много често се задава въпрос по форумите. Кое котелно оборудване е по-изгодно - електрическо или дизелово? Котел за дизелово отопление, какъв разход на гориво има?
Отговорът на него зависи от различни фактори, като топлоизолацията на помещенията, площта на къщата, броя на жителите, климатичната зона и, разбира се, цените на горивата. Познавайки ги, винаги можете да изчислите приблизителното потребление на дизел и електричество и да сравните разходите за тях.
Специфични показатели за разхода на гориво в дизеловите генератори и тяхното физическо значение
При закупуване на DG трябва да се приложи технически паспорт на двигателя - основният му работен възел. Но трябва да се разбере, че тези характеристики са дадени за работа с максимална скорост и не могат да дадат точен отговор на въпроса за ефективността на устройството и колко дълго работи без зареждане с гориво.
Сравнителният подход за оценка на данните ще бъде неправилен, тъй като първоначално съдържа значителна грешка.Изборът на генерални дирекции на съвременния руски пазар е огромен. Противопоставянето на една заблуда с друга само въз основа на паспортни данни може да не доведе до желания резултат, без да се вземе предвид цял набор от оперативни фактори.
Индикаторът за специфичен разход на гориво показва обобщена оценка за двигателите с вътрешно горене въз основа на разхода на единица мощност. Общоприетата система за оценка в Европа, Руската федерация и в много азиатски страни е количеството консумирано гориво в кг за всеки kW мощност на час.
С тази характеристика е лесно да изпробвате параметрите на работа на DG за вашите нужди и да изберете най-оптималния модел.












