Дизайнерски цени за отопление
| № | Длъжност | Описание | мерна единица | Цена в рубли |
| 1 | Дизайн на отоплителната система | Състав на проекта:
| м2 | 80 |
| 2 | Дизайн на системата за подово отопление | Състав на проекта:
| м2 | 80 |
| 3 | Проектни работи по водоснабдителната система | Състав на проекта:
| м2 | 50 |
| 4 | Проектни работи по канализационната система | Състав на проекта:
| м2 | 50 |
| 5 | Проектиране на вентилационна система | Състав на проекта:
| м2 | 60-120 |
| 6 | Проектиране на климатичната система | Състав на проекта:
| м2 | 70 |
| 7 | Проект за котелно помещение | Състав на проекта:
| комплект | от 7000 |
| 8 | Проект за слаботокови системи. | Състав на проекта:
| м2 | 70 |
| 9 | Визуализация на проекта за котелно помещение в 3D | Състав на проекта:
| комплект | от 9600 |
| 10 | Отпътуване на дизайнера към обекта | При сключването на договора сумата се отчита към плащането за проектантска работа. | 2100 | |
| 11 | Топлотехническо изчисление | Изчисляване на топлинните загуби на сградата. | м2 | 25 |
| 12 | Прехвърляне на чертежи от хартия в електронна форма | м2 | 25 |
Проект на двуетажна отоплителна система за къща
Обект: двуетажна къща
Адрес: Московска област, село Минеево
Площ: 150 кв. метри
Проектна температура на външния въздух: през зимата -28 С; през лятото +26,3 C
Приблизителна температура на въздуха на жилищна сграда: +22 С
Консумация на топлина за отопление (топлинни загуби у дома): 32 kW
ОБЩИ УКАЗАНИЯ
Системата е проектирана да използва температурен режим от -75 / 55 C.
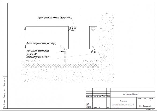
Като отоплителни уреди се предлагат стоманени панелни радиатори Kermi с долна връзка.
Термостатичните глави Luxor са инсталирани за автоматично управление на мощността на радиатора.
Оформлението на разпределителните тръбопроводи се приема като двутръбен последователен. Тръбопроводите на отоплителната система на радиатора са проектирани от тръби, изработени от покрит с фолио омрежен полиетилен Rehau Rautitan stabil.
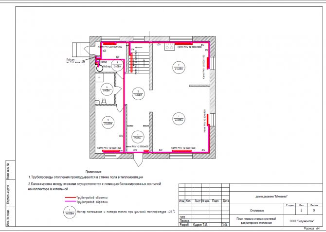
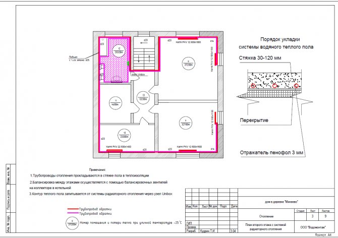
Отоплителната система се управлява от термостатични клапани. Всеки отоплителен етаж има собствен маршрут от колекторния котел. Балансирането между етажите се извършва с помощта на балансиращи клапани, монтирани на връщането на всеки етаж. Всички тръбопроводи за отопление са проектирани да се полагат скрито на пода. Всички тръбопроводи трябва да бъдат положени в изолация Thermaflex Super, за да се избегнат топлинни загуби.
Тръбопроводите на отоплителната система се полагат в съответствие с работните чертежи, като се вземат предвид необходимите наклони (min i = 0,002), за да се осигури пълно отвеждане на въздуха при пълнене и изпразване на системата.
Инсталирайте тръбопроводи в съответствие с инструкциите на производителя за инсталиране на тръбопроводната система. Разделянето на въздуха се извършва с помощта на автоматични и ръчни вентилационни отвори, инсталирани в котелното и радиаторите. Закрепване на тръбопроводите съгласно инструкциите на производителя според използваните диаметри.
След приключване на монтажните работи системата трябва да бъде тествана за херметичност при постоянна температура на водата, индивидуални тестове на оборудването, с изготвяне на съответни актове.
Хидравлично изпитване на тръбопроводи с тяхното скрито полагане трябва да се извърши преди тяхното затваряне със съставяне на акт за проверка на скрити работи. Изпитването на изолирани тръбопроводи трябва да се извърши преди нанасяне на изолация върху фугите.
В края на инсталацията отоплителната система трябва да се измие с вода, докато излезе без механични окачвания.
ИНСТРУКЦИИ ЗА ИЗОЛАЦИЯ
Върху припокриването на първия етаж поставете изолация от експандиран полистирол от типа Penoplex в 2 припокриващи се слоя. Дебелината на всеки слой трябва да бъде най-малко 50 mm.
Изолирайте покрива с изолация от минерална вата с дебелина най-малко 200 мм.
Общи данни за проекта |
План за отопление на партерния партер |
План за отопление на втори етаж |
План за подово отопление на първия етаж |
Аксонометрична диаграма на нагряване |
Схема на свързване на радиатора |
Свързване на колектор за подово отопление |
Схема за сглобяване на Unibox |
Схема за монтаж на котелно помещение |
Идеен проект
Проектът на проекта (ED) на отоплителната система има за цел да определи изискванията към решенията на обекта и да потвърди възможността за неговото създаване. Понякога етапът на проектиране на проекти се пропуска и цялата работа, предвидена на този етап, се изпълнява на етапа на проучване за осъществимост. Ние не възприемаме този подход.
Нашата компания е готова да предложи няколко опции още на етапа на ES. Проектът на проекта се извършва с изготвяне на обяснение на основното оборудване, марката на оборудването и производителя. Това ви позволява да изберете оптималния и по-евтин начин за решаване на проблема на най-ранния етап.
Техническо задание и търговско предложение
На втория етап въз основа на одобрения проект на проект и предварителни изчисления се разработват:
- документ, съдържащ текстово описание на създаваната отоплителна система - техническо задание (TOR);
- и възможни инвестиционни разходи за създаването му - търговско предложение (KP).
Клиентите често се обръщат към нас с въпроса: "Колко струват услугите на вашите специалисти и колко ще ми струва отоплителната система на моята къща (работилница, предприятие и т.н.)?" В същото време човекът, който е задал този въпрос, няма никакъв проект за желаната отоплителна система и понякога няма отговор на въпроса към себе си: „Какво искам от себе си?“. Естествено, ние не можем да дадем отговор на такъв въпрос „в полет“ и трябва много дълго време да обясняваме защо не можем да направим това. Следователно по-долу даваме стандартна форма на технически спецификации за проектиране на отоплителна система, от която ясно се вижда на колко въпроса трябва да отговори дизайнерът, за да завърши проектантската работа. И това далеч не е пълен набор от всички въпроси. И само въз основа на готовия проект оценителят вече има възможност да издаде оценка за обекта. И за нас, като специалисти, едно недвусмислено е ясно, че ако някой „в полет“ каже цената, това е просто безсрамна измама на клиента и нищо повече. Чудесата не се случват.
Проект за отопление - пълен пакет от проектна документация
Четвъртият етап е изпълнение на работата по изготвяне на пълни спецификации за отоплително оборудване и материали, както и проектиране на проектна документация във форма, която отговаря на установените норми и правила.
Извършването на работа на всичките четири етапа ви позволява да създадете пълен пакет от проектна документация, който се нарича проект за отопление. Предложените проекти за отоплителни системи ни позволяват да изпълняваме всички по-нататъшни монтажни работи по инсталирането на оборудване с високо качество.
Схема за отопление на частна къща


За да разберете схемата за отопление на частна къща, построена със собствените си ръце, трябва да знаете някои правила. Те се отнасят до монтажните работи, както и компетентния подбор на отоплително оборудване, тръбопроводи и вида на отоплителната система. В тази статия ще анализираме всички схеми и ще разберем какви нюанси трябва да бъдат взети под внимание, за да може системата да работи ефективно.
Веднага ще решим, че ще разгледаме само отоплението на водата с помощта на котли и тръби. Първо, тази система се счита за най-проста и надеждна. И второ, можете да изберете такава схема и да изградите такава система, че нейната работа да бъде ефективна и да се наблюдава практическата страна на въпроса.
Принципът на работа на такава отоплителна система е следният. Охлаждащата течност в отоплителния котел се загрява и преминава през тръбопровода към отоплителните устройства - радиатори. Тук той отделя топлина и се връща по обратната верига към котела. И целият процес се повтаря наново. Оказва се, че нагряването на водата е вид цикличен технологичен процес.
Видове схеми за отопление
И така, каква е най-добрата схема за отопление на частна къща? Има два от тях:
- Еднотръбна.
- Двутръбна.
Еднотръбна система
От двете по-горе това е най-евтината и проста система. Това е пръстен, в който са монтирани отоплителни радиатори в последователен ред. Охлаждащата течност се придвижва от радиатора към радиатора, докато всичко премине и се върне в котела. Много просто.
Изглежда, че такава схема трябва да бъде оптимална, тъй като простотата и икономичността често са основните фактори, влияещи върху избора.
Но не всичко е толкова просто, колкото изглежда на пръв поглед. Преценете сами. Топлоносителят, нагрят до определена температура (обикновено +75 C), се придвижва към първото отоплително устройство. Той му дава определено количество топлина, докато се охлажда с няколко градуса.
Схема за еднотръбно отопление
Във втория радиатор все още не е ясно, че охлаждащата течност е охладена. Но вече през четвъртия или петия това ще бъде забележимо.
След като достигне последния радиатор, охлаждащата течност ще има температура около +45 С. И стаята не може да се отоплява при такава температура.
Какво да правя? Има два изхода:
- Увеличете броя на секциите на последните радиатори, като по този начин увеличавате площта на топлопреминаване.
- Увеличете температурата на отоплителната среда, напускайки отоплителния котел. И това ще изисква повече разход на гориво.
И двата варианта имат икономически компонент, който, за съжаление, не се разпределя в посока на намаляване на разходите, а, напротив, в посока на увеличаване. И тук трябва да изберете кое е най-доброто за вас.
Има и друг вариант. Това е схема с принудителна циркулация на охлаждащата течност. Какво е?
Това е, когато в отоплителната система има блок, обикновено циркулационна помпа, който създава малко налягане вътре в него. Той осигурява равномерно разпределение на охлаждащата течност по всички радиатори. Освен това горещата вода се движи през системата с ниска скорост и това се отразява на инертността на системата, така че се получава бързо нагряване.
Тази опция е по-ефективна от първите две, но циркулационната помпа, инсталирана в системата, работи от електрическата мрежа. Какви са неудобствата?
- Първо, консумира малко електрическа енергия, но това е допълнителен разход.
- На второ място, ако няма електричество, тогава няма налягане вътре в отоплението. А през зимата изключването на електрозахранването в крайградските села не е необичайно.
Двутръбна система


Двутръбна отоплителна система на жилищна сграда
Да кажеш, че е по-добра от първата, означава да не кажеш нищо. Тази схема работи много по-ефективно, тъй като всеки радиатор има своя отделна тръба с охлаждаща течност. Но те имат само една обратна верига. И от всеки радиатор отделна тръба се спуска към връщането, през която се отстранява охлаждащата течност.
Като цяло тази система не е сложна. Необходимо е само да се избере как охлаждащата течност ще се подава към радиаторите - според схемата на лъча или колектора.
В първия случай захранващата тръба се издига до тавана на тавана, където нейната собствена тръба се отклонява от нея към всяка тръба. Оказва се един вид контур, подобен на слънцето, където в центъра има тръба от котела, а греди от тръби се разминават към радиаторите отстрани. Оттук и името му - лъч.
Колекторната верига се счита за по-модерна. На тавана е инсталирано специално устройство, което се нарича колектор. Състои се от тръбна конструкция, през която охлаждащата течност се разпределя в цялата система. Тук също са монтирани спирателни клапани, които прекъсват всяка верига.
Това прави системата удобна за работа и също така опростява процеса на ремонт, ако е необходимо. Така че можете да поправите не само отделна верига за захранване на стаята, но дори и самостоятелен радиатор.
Във всички отношения колекторната верига превъзхожда останалите. Но двутръбната система и още повече колекторната система има един съществен недостатък. Това е голямо количество материал, използван за изграждането на тази верига. Това включва тръба, спирателни клапани, устройства за наблюдение и контрол и сензори. Следователно ще трябва да се разклоните тук. Но ако искате в дома ви винаги да е топло във всички стаи, тогава точно такава схема ще ви помогне да направите това.


Едноконтурни системи с естествена циркулация
Може ли да се монтира циркулационна помпа в двутръбна отоплителна система? Доколко е уместно? Няма голяма нужда от това, тъй като двутръбната система с естествена циркулация работи ефективно. Така че няма нужда от допълнителни разходи.
Сега той се връща към въпроса дали е възможно да се изгради отоплителна система в частна къща със собствените си ръце.Тук, както и навсякъде, много ще зависи от уменията за използване на различни инструменти и опита при извършване на монтажни работи. Ако нямате нито едното, нито другото, последиците може да не са много розови.
На първо място, котелът ще заври и батериите ще бъдат студени. Ако наклонът на горния тръбопровод е направен неправилно, в стаите ще бъде хладно, дори и с горещ бойлер. Същото се отнася и за връщащия цикъл.
Ако инсталирате циркулационна помпа на грешното място, тя ще работи един сезон и ще спре, ще започне да тече, тоест ще се появят проблеми. Е, ако поставите разширителния резервоар неправилно, ще получите недостиг на охлаждаща течност в системата.
И има много повече такива нюанси. Така че в идеалния случай инсталирането на отоплителна система е дело на майсторите. Но ако искате да спестите пари и бюджетът ви е ограничен, тогава трябва да се научите.
Проектиране на отоплителна система за жилищна сграда
Продължавайки темата за инженерните системи, помислете за дизайна на отоплението на жилищна сграда. Подобно на водоснабдяването или електричеството, тази система е сложна по дизайн. Дори два апартамента с еднакъв размер, единият от които е ъглов, а другият в средата на сградата, са различни по отношение на отоплението на апартамента.
Нормите за отопление на жилищните сгради позволяват на всеки от жителите да се чувства комфортно. Например, за всекидневни, подходящ минимум е температура от + 20˚С. За кухнята и банята се счита, че оптималната температура е в диапазона от + 19˚C до + 21˚C, банята - от +24 до + 26˚C, коридорите между апартаментите - от +18 до + 20˚C.
Видове отоплителни системи
В повечето случаи къщите в градовете се отопляват с централизирана отоплителна система. Същността му е следната: в отоплителна станция отоплителните котли загряват водата до температура над 100˚С (следователно, за да се избегне кипене и изпаряване на водата, налягането в тръбите е около 10 kgf). Освен това водата се подава към всички сгради, свързани към отоплителната мрежа. Когато една къща е свързана към топлофикационна централа, се монтират входни клапани за контрол на подаването на топла вода към нея. Към тях също са свързани отоплителна единица и различно специализирано оборудване.


В случай на индивидуално отопление се осигурява инсталирането на собствено котелно помещение, с помощта на което се извършва автономно отопление на къщата. Такива системи имат редица предимства:
- Ефективен контрол на температурата в помещенията и поддържането му на дадено ниво, независимо от външната мрежа;
- По-икономични, стабилни и надеждни.
Сред недостатъците е значителна начална инвестиция за създаване на индивидуално отопление.


Отгоре и отдолу тръбопроводи
В зависимост от местоположението на отоплителните тръби водата може да се подава както отгоре надолу, така и отдолу-нагоре (когато се използва еднотръбна система), или едновременно до всички апартаменти (с двутръбна система).
С горното окабеляване захранващата тръба е подредена или на тавана, или на последния етаж (при липса на таванско помещение). Използва се, ако не е възможно да се извърши долното окабеляване. Предимствата на горното окабеляване са, че:
- Загубата на топлина е сведена до минимум;
- Лесен монтаж;
- Минимум обрати.
Основният недостатък на такова окабеляване е необходимостта от повече материали и задължителното присъствие на кранове на Маевски върху радиаторите (или по друг начин клапана за освобождаване на въздух STD7073V).
С дънните тръбопроводи захранващите тръби са разположени в мазето. Основното предимство е възможността за регулиране на процеса на нагряване на охлаждащата течност с помощта на термостат.


Еднотръбна и двутръбна отоплителна система
Въпреки факта, че можете да изберете оформлението на тръбите, както и метода на отопление (от централния основен или от вашия собствен котел), няма много избор при проектирането на отоплителната система на жилищна сграда. Всички къщи се отопляват приблизително еднакво.Всяка стая разполага с радиатор (главно чугун, размерите на който зависят от площта и предназначението на конкретно помещение), в който се подава охлаждащата течност, идваща от термичната станция.
Единствената разлика във водоснабдяването е дали в конкретна сграда е предвидена еднотръбна или двутръбна отоплителна система. Всеки от тях има свои плюсове и минуси. Затова накратко за всеки.


Еднотръбна отоплителна система: опростен, надежден и относително евтин дизайн. Такава система обаче не е много търсена. Топлоносителят (топла вода), попадайки в отоплителната система на къщата, трябва да премине през всички радиатори, преди да напусне обратния канал (или "връщане"). Загрявайки радиаторите един по един, охлаждащата течност губи температурата си и в резултат на това батериите едва се затоплят на горните етажи. Следователно такава система се използва рядко.


Двутръбна отоплителна система: еднотръбната система е лишена от недостатъците. Дизайнът се различава значително от предишната система. Топлата вода, преминавайки през отоплителния радиатор, влиза в обратния канал, а не в тръбата, водеща до следващия радиатор. От там - веднага обратно към отоплителната станция, където отново се загрява до желаната температура. Подобна система е по-скъпа за инсталиране и поддръжка. В същото време двутръбна отоплителна система осигурява еднаква температура във всички отопляеми сгради. И ви позволява да инсталирате отоплителен уред (поставен върху радиатора), така че собственикът на апартамента да може сам да регулира нивото на отопление на радиатора и да спести от сметките за отопление.
Видове радиатори за отопление на помещенията
Като се има предвид отоплението на апартамент и къща като цяло, не може да не се каже за радиаторите, защото те са основните доставчици на топлина за помещенията. Повечето хора са свикнали с чугунени радиатори, които са започнали да се инсталират преди почти век. Някой ги боядисва, скрива ги зад специални паравани, придърпва завеси. Такива мерки спомагат за намаляване на температурата. Ето защо много собственици на апартаменти предпочитат да инсталират модерни радиатори, изработени от различни материали. Нека разгледаме някои от тях.


Алуминий: лек материал с висока топлопроводимост. Алуминиевите радиатори изглеждат елегантни. Няма нужда от боядисване, бързо се загрява и отделя топлина за броени минути. Недостатъци: С течение на времето киселата вода може да причини непоправима вреда. Освен това алуминият е доста пластичен и мек материал и високото налягане (често на първите етажи на 12-16 етажни сгради) може просто да скъса батериите.


Стомана: също като алуминия, той бързо се загрява и отделя топлина в помещението. Поради високата якост на материала могат да бъдат направени миниатюрни радиатори, които могат да поддържат желаната температура. А високата якост е гаранция, че радиаторите няма да се повредят при високо налягане. Минус: - високото съдържание на кислород във водата може да повлияе отрицателно на вътрешната стена на батерията.


Чугун: не, не е напуснал безвъзвратно света на отоплението. Съвременните технологии правят възможно производството на миниатюрни и атрактивни чугунени радиатори. Те са не само силно издръжливи, но и не се страхуват от висока киселинност на водата или високо съдържание на кислород. Още един плюс на такива радиатори: те не се загряват бързо, но и бавно се охлаждат. Следователно такива радиатори са в състояние да предпазват от температурни промени, които влияят негативно на човешкото здраве.
Изисквания за отоплителни системи на жилищни сгради
При проектирането на отоплителна система за жилищни сгради трябва да се спазват следните изисквания:
- Осигуряване на жилищни помещения с достатъчно количество топлина;
- Като се вземат предвид параметрите на прозоречните конструкции, вентилационната система и други параметри, влияещи върху работата на отоплението. В този случай отоплителната система трябва да бъде напълно в съответствие с работата на други инженерни системи. Ето защо е най-добре да се развие цялата инженерна поддръжка на сгради в комплекса.;
- Отоплителната система трябва да се вписва в образа на сградата, без да я нарушава;
- Отоплителната система трябва да е безопасна, независимо от нейния тип. Най-строгите изисквания важат за отделните отоплителни уреди във всеки апартамент. Фокус върху пожарната безопасност и предотвратяването на изтичане на въглероден окис;
- Счетоводство, управление и изпращане: точно измерване на консумираната топлина (специални измервателни уреди) и възможност за контрол, включително дистанционно управление.
Характеристики на дизайна на отоплителната система на жилищна сграда
В процеса на проектиране на отоплителна система за жилищна сграда се решава набор от въпроси. При съставянето на изчислената част от проекта трябва да се вземат предвид следните характеристики:
- Загуба на топлина на сградата: в този случай е необходимо да се вземат предвид не само топлинните загуби през прозорци и стени, но и загуби в резултат на работата на вентилационната система;
- Определяне на необходимата температура на охлаждащата течност на входа на системата или мощността на котелното при индивидуалното отопление на жилищни помещения;
- Изчисляване на отоплението на жилище в сграда, което предполага изчисляване на мощността на радиатора във всяка от стаите;
- Разработване на температурни диаграми, които да помогнат за определяне на минималните и максималните натоварвания на отоплителната система у дома.
Процесът на разработване на отоплителната система е трудоемък и изисква много време и грижи. Неправилните изчисления ще доведат до увеличаване на оперативните разходи, неравномерно отопление на помещенията, възможни прекъсвания в топлоснабдяването и високи разходи за ремонт поради увеличени аварии.
Специалистите на компанията V-GRAND ще разработят система за отопление на дома според Вашите технически задания. Просто ни се обадете или оставете заявка на уебсайта. V-GRAND - качество, ефективност, резултат!
Кой отоплителен котел да изберете?


Не е тайна, че има доста голям избор от модерни отоплителни котли. Те са разделени на видове според горивото, върху което работят. Кой да изберете зависи от обстоятелствата. Тя се основава на горивото, което е най-лесно да намерите във вашия район и което е по-евтино от всички останали.
Сега производителите предлагат комбинирани модели с двойно гориво. Например газ и дърва за огрев, газ и електричество, въглища и електричество, дърва за огрев и дизелово гориво. Когато едно гориво свърши, то може да бъде заменено с друго. Ето защо съветът е да изберете котел, който е удобен за вас както по отношение на доставката на гориво, така и по отношение на експлоатацията и поддръжката.
Как да поръчате дизайна на отоплителна секция и да не се заблудите
] Smart Wei [/ anchor] винаги се интересува от дългосрочно сътрудничество, цени своята репутация. Ето защо ние предлагаме на всеки клиент да се запознае с примери за извършена преди това работа, ние ще изберем най-ефективния вариант за поставяне на отоплителната система и други комунални услуги. Това ще ви спести време и пари за одобрения, работа по договори, въвеждане в експлоатация и поддръжка на мрежата. Обадете ни се, ние ще ви посъветваме по всички ваши въпроси безплатно!
Отоплителни тръби


Металопластична тръба REHAU
Кои тръби са най-добри? За отопление с топла вода, най-добрият вариант са металопластиковите тръби, които могат да издържат на високи температури. Но ако в отоплителната система на частна къща е инсталиран котел на твърдо гориво, тогава е по-добре да използвате метални тръби. Всъщност понякога температурата на охлаждащата течност, напускаща котела, може да бъде повече от + 100C и пластмасата не може да го издържи.
Когато избирате схеми за инсталиране на отопление в частна къща, трябва да помислите внимателно за всичко, да претеглите и да одобрите бюджета изключително за отопление в семейния съвет. От парите ще трябва да танцувате. Ако бюджетът е голям, тогава можете да инсталирате двутръбна схема и дори с колектор и помпа. Ако е малък, тогава можете да направите с еднотръбна схема.Но ако добавите малко пари и си купите циркулационна помпа, тогава дори тази система ще работи добре.
- Пример 1. Проект на отоплителна система със свързващи радиатори по двутръбна схема
- Пример 2. Проект на отоплителна система със свързващи радиатори по еднотръбна схема
- Пример 3. Проект на отоплителна система със свързващи радиатори според колекторна верига
След хидравлично изчисление може да се окаже, че съпротивлението на отоплителната система е твърде високо. Можете, разбира се, да закупите по-мощна циркулационна помпа. Възможно е, както вече беше предложено в предишната статия, да се увеличат диаметрите на тръбите. Но има и друга опция: променете начина на свързване на радиаторите. Затова реших да добавя тази статия, която разглежда примери за проекти за отоплителни системи за същата къща.
В предишните материали направих изчисления за двутръбна отоплителна система. Можете да го замените с еднотръбен и да извършите всички изчисления на нов ...
Е, не всички, разбира се: загубата на топлина не трябва да се преброява отново. И също така няма нужда да преброявате секциите на радиаторите. Става въпрос само за хидравличното изчисление.
И така, както казах, по-долу има три примера за проекта на една и съща къща, но във всеки пример радиаторите са свързани по различен начин. Всички тези схеми вече са подредени, но мисля, че ще бъде полезно да освежите паметта си.
Електрически инсталации
- Как да отделя отоплителната система от котела?
Според мен два вида окабеляване заслужават внимание:
- Еднотръбен Ленинград (бутилиране по периметъра на пода с радиатори, свързани паралелно на неговата тръба). Монтира се изключително лесно, има минимален разход на материал (има само един пълнеж) и максимална безопасност при повреда: стига да има поне минимален спад на налягането в краищата на пълнежа, отоплителната верига ще функционира;


Най-простата и надеждна отоплителна система е еднотръбна Ленинград.
- Асоциирана двутръбна система (контур на Тихелман). За разлика от задънените системи, той не изисква балансиране (регулиране на радиаторите, най-близки до котела) и осигурява еднаква температура за всички отоплителни устройства.


Версия на пантата на Tichelmann за двуетажна къща.
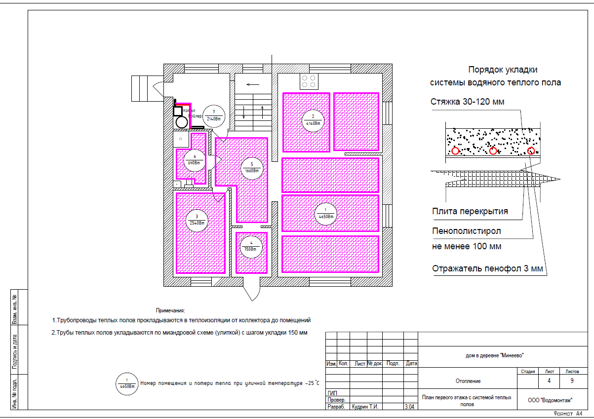
Отделно си струва да се спомене системата за подово отопление - топъл под. Положените в замазката тръби превръщат цялата повърхност на готовата настилка в отоплително устройство.
Максималната дължина на една верига на водно подово отопление е ограничена до 100 - 120 метра, тъй като тръбите имат малък диаметър и съответно достатъчно високо хидравлично съпротивление. Ето защо за отопление на голямо помещение е необходимо да се образуват няколко паралелни вериги с една и съща температура на охлаждащата течност, което предполага свързване на колектора.
Всеки изход на колектора има свой собствен дросел за регулиране на температурата на веригата.


Нискотемпературен отоплителен кръг с множество вериги.
Пример 1. Проект на отоплителна система със свързващи радиатори по двутръбна схема


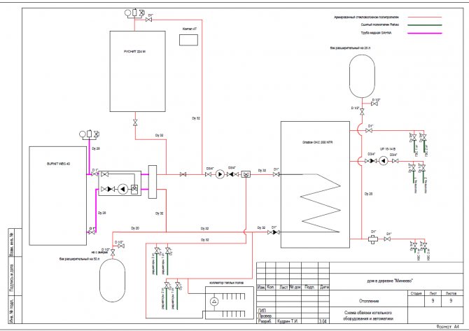
В котелното има котел (червен правоъгълник). Освен това веднага си струва да направите резервация: ако котелът е монтиран на стена, тогава не е необходимо да го инсталирате в котелното помещение, разрешено е да го инсталирате както в кухнята, така и в коридора. Но когато проектирате, трябва да помните за комина.
И така, да се върнем към отоплителната система.
Радиатори, както се очаква, под прозорците; на диаграмата радиатори в лилаво.
За да не се изтеглят тръби по периметъра на цялата къща, тръбопроводът е проектиран с два контура.
Захранващата тръба е маркирана в червено, връщащата тръба е синя. Черните точки на подаването и връщането са спирателни кранове (кранове на радиатора, термични глави и др.). Трябва да се монтират спирателни кранове - в случай че радиаторът по някаква причина се повреди и той ще трябва да бъде изключен от системата за подмяна или ремонт, без да спира цялата система.
В допълнение към спирателните кранове на всеки радиатор, едни и същи клапани са на захранването за всяко крило, непосредствено след котела.
Защо тук са монтирани спирателни клапани? Както можете да видите от схемата, дължината на контурите на системата не е една и съща: „крилото“, излизащо от котела (ако погледнете схемата), е по-кратко от това, което се спуска. Това означава, че съпротивлението на по-къс тръбопровод ще бъде по-малко. Следователно охлаждащата течност може да върви повече по-късото крило, тогава по-дългото "крило" ще бъде по-студено. Благодарение на крановете на захранващата тръба ще можем да регулираме равномерността на подаването на охлаждащата течност.
На обратния поток на двата контура са монтирани едни и същи кранове - пред котела.
Пример 2. Проект на отоплителна система със свързващи радиатори по еднотръбна схема
Диаграмата по-долу показва същия дизайн на къщата, но отоплителната система е еднотръбна.


По принцип тук изискванията са еднакви (спирателни кранове на всеки радиатор, на захранването и на връщането).
Единствената разлика е, че тръбата минава по целия периметър на къщата, а не в отделни вериги, както в примера с двутръбна система. Освен това трябва да се помни, че при еднотръбна система трябва да се постави тръба с по-малък диаметър под радиаторите (на схемата такива зони под радиаторите са маркирани с точки). Това е необходимо за равномерно нагряване на радиаторите. Можете да прочетете повече за нюансите на еднотръбна отоплителна система от отделна статия.
Пример за колекторна отоплителна система
Фигурата по-долу показва по-проста система от колектори (монтаж на колектор):
Колекторна единица на отоплителната система
Тук, както и в предишната версия, на всяка колекторна верига са инсталирани отделни помпи. Но всъщност това се прави само ако самата система е много голяма (дву-, триетажни къщи с големи площи). Ако нямате такива зони, тогава в колектора има достатъчно завои със собствени спирателни клапани и циркулационната помпа е инсталирана една обща за цялата система (обикновено на връщащата линия).
Е, и още няколко проекта за отоплителни системи.
Колекторна система:
План на къщата със схема на отоплителната система (колекторна отоплителна система)
Показани са веригите, във всяка от които охлаждащата течност се подава към собствения си радиатор. Но тук е необходимо да направите резервация, че във всяка верига може да има повече от един радиатор. Всичко останало е лесно да се следва според схемата, допълнителните коментари са излишни.











