За по-ефективна вентилация в помещението, захранващият въздух не трябва да тече на поток, а трябва да бъде равномерно разпределен в цялото пространство на помещението. В крайна сметка, когато въздухът тече в един поток, се създават течения и те влияят негативно на здравето на хората. Освен това само определена част от помещението се проветрява със струя въздух. Следователно, за да се проветри възможно най-ефективно пространството, се инсталират дифузори за вентилация.
Вентилационен дифузор - какво е това? Това е част от вентилационната система, чиято цел е да разсее входящите / изходящите въздушни потоци върху пространството на помещението.
Какво е дифузьор?
Дифузорът за вентилационна система е устройство, което има формата на решетка от външната страна. Целта на този уред е да разпределя равномерно входящите и изходящите въздушни маси на помещението. Има три вида устройства, които подпомагат дифузния въздушен поток:
- Подаване на въздух;
- Ауспух;
- Захранване и изпускане (универсално);
Дифузори в климатика
Целта на такива устройства е да разпределят равномерно въздушните потоци от климатик или вентилатор през въздуховодите към помещението.
Разлика между дифузьора и вентилационната решетка
Разликата между тези устройства е само в дизайна и интензивността на движението на въздуха.
Циркулацията на въздуха се взема предвид при изчисляването и проектирането на въздушно-дисперсионното оборудване. Следователно подреждането на лопатките и преградите на конструкцията се извършва така, че въздушните потоци да се смесват най-ефективно и равномерно да се разпределят върху пространството на помещението.
Дифузорът, подобно на вентилационните решетки, допринася за по-интензивен въздушен поток към въздуховодите от климатика, само че го прави в по-бавна и гладка форма.
Вентилационни дифузори: видове и материали
В зависимост от характеристиките на приложението се произвеждат вентилационни дифузори:
- подаващ въздух за равномерно разпределение на подавания въздух;
- изпускане - отстранете въздуха с минимално съпротивление;
- подаване и изпускане - доста ефективно и в двата случая;
- комбинирани модели - едновременна работа за подаване и отвеждане на въздух с подходяща връзка към изпускателната и захранващата мрежа.
В зависимост от използваните материали вентилационният дифузор може да бъде:
- пластмасов;
- метал от алуминий;
- метал от стомана.
Пластмасови модерни вентилационни дифузори най-приложими в жилищното строителство поради техните значителни предимства:
- най-ниската цена;
- трайност;
- липса на корозия;
- леко тегло;
- удобна връзка с пластмасови въздуховоди.
Метален вентилационен дифузор има следните предимства:
- повишена здравина;
- надеждност в работата;
- устойчивост на повреди по време на работа.
Много често се използват в промишлени и складови помещения. Материалите на продуктите могат да бъдат лек алуминий, обикновена стомана със защитни покрития, неръждаема стомана, която осигурява подобрен външен вид.
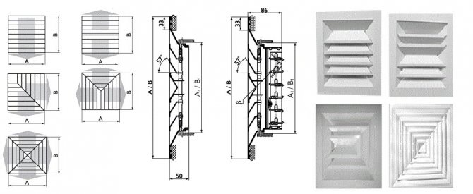
От геометрия се различават правоъгълни, кръгли, квадратни модели.

В зависимост от мястото на монтаж, вентилационният дифузор може да бъде:
- монтирани на стена;
- на открито;
- таван.
Подовите модели се използват рядко. Обикновено те са необходими при поставяне на блок за подаване на въздух в мазе. Стенните устройства също се монтират рядко.Най-приложими са таванните вентилационни дифузори поради лекотата на монтажа, разпространението на фалшивите тавани и предимствата на всмукването и потока на въздух в горните части на помещенията.
Приложение и принцип на работа на вентилационен дифузор
Въздухоразпределителят може да се използва за вентилационни системи на помещения с всякакво предназначение - жилищни сгради, офиси, в производство. С тези инструменти можете:
Премахване на чернови
Проектите имат отрицателно въздействие върху човешкото здраве. Хората със слаб имунитет са особено податливи на тяхното влияние. Те възникват в резултат на факта, че потоците въздушни маси образуват една струя. Това явление се елиминира от разпределителя на приточния въздух. Той насърчава разминаването и разсейването на въздушния поток.
Ефективна вентилация
Ако във вентилационната система няма блокове, с помощта на които е възможно да се разпръснат потоците въздушни маси, вентилира се само онази част от помещението, в която въздухът циркулира, тъй като притока на въздух се осъществява от струята метод. Когато се проветрява с въздушен разпределител, струйният въздушен поток е равномерно разпределен по цялото пространство на помещението. Разпръскването се извършва основно по принципа на вихъра. А вентилационните дефлектори помагат да се намали интензивността на движението на въздуха през гъвкав въздуховод или да се ускори движението на въздушните маси, които са влезли в изходната система.
Надградете изпускателната система
Изходящите (изпускателни) дифузори се използват за модернизиране на изпускателната система. Те са инсталирани във вентилационната система. Без наличието на въздушен разпределител, изпускателната структура, въпреки че изхвърля въздушните маси, все още образува струи въздушни потоци. Този фактор влияе отрицателно върху атмосферата на стаята. Плюс това, обемът на отработения въздух, влизащ в изпускателния отвор, директно зависи от промените в посоката на неговия поток - колкото по-голяма е промяната, толкова по-малка е производителността. С помощта на въздушен дифузор този проблем може да бъде решен.
Контролирайте въздушните потоци
Управлението на входящия / изходящия въздушен поток с помощта на дифузьора може да се извърши със специално конфигуриран контролен панел. По този начин можете да осигурите допълнителен комфорт и да предотвратите образуването на течения или некачествена вентилация. Друго предимство на това устройство е звукоизолацията. С помощта на този уред е възможно да се елиминира шумът от въздушните течения, "разхождащи се" в стаята.
Примери за монтаж на вихрови и шлицови дифузори
Вихър


Шелевой


Отлична статия 0
- Още по-интересно:
Дискусия: има 1 коментар
- Полин:
02.02.2018 в 19:06Струва ми се, че такава принудителна вентилация е необходима във всеки дом.
Отговарям
Класификация
Видове дифузори за вентилация Пазарът на вентилационно оборудване разполага с доста широка гама дифузори. Те са разделени на няколко типа според следните характеристики:
По материал на тялото
Пластмасови дифузори за вентилация.
Такива устройства са изработени от пластмаса, устойчиви на корозия и процеси на разпадане. Тези въздушни дифузори са много леки и се предлагат в различни форми и цветове.
Метални дифузори за вентилация
Тези въздушни дифузори са изработени от алуминий или стомана. Предимствата на тези продукти са тяхната висока якост. Те са надеждни в експлоатация и имат оптимален дизайн. Металните дифузори са значително по-тежки от пластмасовите. Също така, понякога може да има проблеми с тяхната инсталация.
Не бъркайте метален дифузор на подаващия въздух и дифузор.За разлика от дифузора, анемостатът може да се използва за контрол на обема на циркулиращите въздушни потоци (не е възможно в дифузорите). Също така корпусът на устройството е направен само в кръгла форма, а дифузьорът може да има различни форми (както кръгли, така и правоъгълни).
Цената на устройството зависи от материала, от който е направено тялото на дифузера. Стоманените тела са много по-скъпи от пластмасовите тела.
По форма
Кръгли (вихрови) дифузори за вентилация
Такива модели са разделени на:
- Назъбени - често се монтират в тавана, като се използват специално предоставени щипки. Тези модели въздушни дифузори са оборудвани с клапан за въздушен поток.
- Poppet - рядко се срещат в експлоатация, тъй като те не отговарят на изискванията за дизайн.
Слотови дифузори за вентилация
Кутиите за инсталиране на такива устройства са много компактни и практически невидими на повърхността. Поради формата си, те ви позволяват да регулирате посоката и ъгъла на въздушните потоци.
Монтирането на такива единици не изисква много усилия. Произвежда се с помощта на скоби.
По предварителна уговорка
Дифузори за захранващ въздух
Устройствата за захранваща вентилация са проектирани да загребват и бързо доставят в помещението или вентилационния блок потока от свежи въздушни маси отвън и тяхното равномерно разпределение.
Изпускателни дифузори
Те се използват за бързо отстраняване на отработения въздух от външната стая. В същото време те допринасят за равномерното разпределение на въздуха в цялото пространство на помещението и вентилация на максималната му площ.
Универсални (захранващи и изпускателни) дифузори
Такива агрегати се използват за входящ - изходящ въздух в помещението, както и за циркулация през вентилационната система.
Дифузори на дюзите
Такива единици се използват за създаване на тесни струйни въздушни потоци.
На мястото на монтаж
Таванни дифузори за вентилация
Тъй като смесването на въздушните потоци в помещението се извършва отгоре (под тавана), такива въздушни дифузори са много разпространени в експлоатация - 95%. Те се използват както за захранващи, така и за изпускателни вентилационни системи.
Подови дифузори за вентилация
Този тип приспособление се използва за помещения, в които захранващата вентилация се извършва през мазето.
Стенни дифузори за вентилация
Такива дифузори за вентилация са доста редки в експлоатация, тъй като вентилационните решетки се използват главно за стени.
По принцип такива единици се монтират, когато е необходимо да се инсталира вентилация през отвор в стената.
Дизайнерски характеристики


Вихър
Външната структура на такива разпределители на въздушния поток се състои от прегради и решетки, които са разположени по такъв начин, че да създадат завихряне на въздушните маси. Това прави възможно ускоряването на движението на въздушните маси и увеличаването на ефективността на такава система.
Често при вихровите дифузори разположението на мостовете е радиално. Те се използват в стаи с големи площи, високи тавани. Също така такива единици са подходящи за помещения, в които е необходима бърза смяна на въздуха (баня, тоалетна и т.н.).
Отвътре такава единица има формата на цилиндър. Решетката към нея може да бъде с различни форми. Освен това дупките му трябва да бъдат разположени само по обиколката.
Вихровите разпределители на въздушната маса за захранващата вентилационна система имат допълнително работно колело. Той се намира зад решетките, в корпуса на устройството. Тази част може да бъде подвижна и неподвижна, контролирана и неконтролирана. Контролираното работно колело може да има няколко работни скорости.
Вихровите дифузори могат да имат камера със статично налягане.С негова помощ се елиминира твърде активното движение на въздушните течения, като по този начин се предотвратява появата на течения.


Нарязан
Тези дифузори имат форма на прорези. Тъй като разпределението на въздушните масови потоци директно зависи от положението на преградите, тяхната форма, размер и посока, дизайнът на такива единици е специално разработен и изчислен.
Такива устройства се използват за помещения, в които има ниска или средна производителност на вентилационната система.
Устройствата с прорези за разсейване на въздушни потоци могат да се регулират и да променят посоката на подаваните въздушни маси (подобно на щорите на климатиците). Такива дифузори могат да имат камера за статично налягане.
Дизайнът на слотови дифузори и решетки за тях може да бъде с различни форми.


Регулируема
Тези вентилационни дифузори са оборудвани с регулируеми плъзгащи се плочи. Това е регулиращ елемент на конструкцията, поради което пропускателната способност на устройството се контролира.
Такива устройства се наричат анемостати. Потокът от въздушни маси се регулира поради движенията на централната част на устройството по посока на часовниковата стрелка или обратно. Ламелите в устройството са подвижно фиксирани. Това им позволява да сменят позицията си и да отварят или затварят процепа, за да генерират въздушни маси.
Има анемостати, оборудвани със сензори за присъствие и анализатори на състава на въздушните маси. Такива устройства са свързани към системата за контрол на климата в стаята. Такава система работи в автоматичен режим. Неговата задача е да поддържа даден вътрешен климат.
Разпределение на потока
Всеки производител произвежда устройства с различни форми и дизайн на въздушния дифузор. Няма строга класификация на дифузорите според характеристиките на въздушния поток, но те могат да бъдат разделени на следните типове:
- С прорези - разпределението на потока преминава през няколко процепа, както при решетките.
- Jet - въздухът се доставя с една или повече струи с висока скорост и на големи разстояния.
- Перфорирани - в тяхната повърхност са подредени голям брой малки дупки, през които въздухът влиза в помещението или се отстранява от него равномерно и с ниска скорост.
- Вихър - прорезите в тях са разположени така, че въздухът да влиза в помещението, завихряйки се под формата на фуния.
- Линейна - удължена с малък брой прорези.
Препоръчваме ви да се запознаете с: Хладилна сушилня за въздух
Има и други видове тесни приложения или за специфични системи.


Перфориран дифузьор
Направи си сам дифузер
Така че по време на монтажа на оборудването да няма проблеми, трябва предварително да подготвите отвора за монтаж. Отворът трябва да съответства на размера и формата на приспособлението.
Аксесоарните компоненти за монтиране на дифузора винаги се доставят със специални фиксиращи скоби. С тяхна помощ уредът може да бъде инсталиран както в гъвкав канал, така и в твърд канал.
Инсталационни характеристики:
Инсталиране на дифузьор в твърд канал
- Преди да закупите въздушен дифузор, трябва точно да измерите размера и формата на отвора за устройството. Уредът трябва да бъде избран в строго съответствие с тези параметри.
- Инсталирането на устройството се състои в плавно преместване на устройството в предварително подготвен отвор, докато се появи характерен звук - щракване. Инсталирането на устройството трябва да се извършва внимателно, за да се избегне повреда на корпуса (ако бъде натиснат здраво, корпусът може да се спука).
- След това трябва внимателно да огледате повърхността и да се уверите, че между отвора и блока няма неравности или издатини.
- Ако бъдат открити дефекти при инсталирането, трябва да проверите всички ключалки и да се уверите, че са работили.В противен случай трябва да натиснете необходимата част от устройството, докато не се фиксира.
Инсталиране на дифузера в мекия канал
- Първо, трябва да извадите втулката от отвора в стената и да прикрепите устройство за разсейване на въздушни потоци към нея.
- След това втулката се поставя в канала, последвана от единицата.
- Когато системата започне да влиза в контакт с повърхността на стената, трябва да фиксирате устройството. За да направите това, трябва бавно, без да полагате специални усилия, да натискате дифузора, докато закрепващите механизми заработят.
- Уверете се, че няма дефекти при монтажа (издатини, неравности над повърхността на стената).
Инсталиране на дифузора в изпускателна тръба без канал (отвор в стената)
- Първоначално трябва да подготвите отвор, в който ще бъде инсталиран модулът, за да дифузира въздушните потоци. За тези цели се препоръчва да се използва тръба, параметрите на която ще съответстват на размера на дифузера.
- Самият отвор в стената може да бъде направен от тръба. За да направите това, трябва да измерите дължината на отвора от външната стена до вътрешната, след което да настроите тръбата към тези размери.
- Поставете монтираната тръба в отвора и монтирайте устройството в нея съгласно принципа, описан по-горе.
- Закрепването на тръбата към отвора може да се извърши с монтажна пяна.
Ако аксесоарите на дифузора не включват скоби за закрепване, те могат да бъдат заменени с лепило, анкери, уплътнител или самонарезни винтове.
Таван дифузор: монтаж
Има два начина за свързване на дифузорите към вентилационните канали: директно или чрез адаптер (пленумна кутия). По-правилен е вторият вариант, но той изисква по-голяма разлика между основата и декоративния таван.
Ако формата и размерите на таванните дифузори и вентилационните тръби са еднакви
За да свържете таванния дифузор директно към вентилационните тръби (завои), тройник / сплитер се поставя във вентилационната тръба на мястото на инсталация. В безплатния - третият - излезте и сложете устройството.
Изрязването на отвор точно в тръбата за монтажа му не е правилното решение. Тялото излиза извън тръбата, което затруднява движението на въздуха, производителността на системата намалява, с течение на времето все още се образува запушалка за прах, която обикновено може да блокира лумена. Като цяло това трябва да се избягва.
Изберете крановете от основната тръба, така че да е удобно да ги свържете към дифузорите. Не е трудно да свържете кръгъл дифузор към кръгъл изход от въздуховода, а правоъгълен - към правоъгълен. Също така е важно размерите им да съвпадат. Тази проста истина трябва да се помни, когато създавате система, избирате тройници или правите завои със съответните параметри.


Ако формата и размерът съвпадат, инсталирането на таванен дифузьор не е проблем
Дифузори със същия размер се инсталират във вентилационните канали, като просто се поставят. Модели с малки размери и тегло могат да бъдат фиксирани към кутията с уплътнител (силиконов неутрален). Така обикновено се закрепват модели с кръгла основа.
За окачени тавани от различни видове (гипсокартон, пластмаса, Armstrong) е разработена специална система за фиксиране - Clip in. Това е дистанционер от вида, който се вижда на вградените таванни осветителни тела.
По-масивни квадратни / правоъгълни модели са прикрепени към стените на кутията с помощта на самонарезни винтове или окачени на тавана. Първият вариант е по-лесен, но е по-добре да не се използва, тъй като прахът се събира върху изпъкналия винт на самонарезния винт. Това, че дизайнът предвижда специални издатини за крепежни елементи. В противен случай с течение на времето на мястото, където стърчи саморезът, ще се образува плътна тапа, предотвратяваща преминаването на въздух.


Пример за използване на адаптер - кръгъл таванен дифузор е свързан към правоъгълен вентилационен канал
Ако огъването е направено от гофриран материал или има желание да се направи всичко "както трябва", тежки калъфи са окачени от тавана на фиби или закачалки.
Характеристики на избора на дифузьор
Дифузьор, какво е това? Това е вентилационен елемент, който трябва да изпълнява определени функции. Когато избирате устройство, на първо място трябва да решите какви функции са ви необходими, за да поддържате оптимален вътрешен климат.
Захранващи елементи - предназначени за бърз приток на чист въздух в стаята. Принципът им на действие се основава на улавяне на въздушни маси от улицата и транспортирането им до вентилационната система.
Изпускателни елементи - предназначени за бързо отвеждане на отработения въздух навън. Те работят на принципа на аспиратора и са добри за монтаж в помещения, където има висока влажност и образуване на домакински миризми.
Универсалните елементи - способни да работят както за изтичане, така и за приток на въздух Елементите на дюзата - са проектирани да създават насочен въздушен поток на дадено разстояние. Тези модели се използват в помещения, където е невъзможно да се положи цялостна вентилационна система.
Също така, когато избирате, трябва да обърнете внимание на материала на изпълнение. Металните елементи са по-трайни, имат дълъг експлоатационен живот и отлични технически характеристики
Най-често те са изработени от стомана или алуминий. Пластмасовите модели не корозират, имат по-ниска цена и могат да бъдат направени в различни цветове. Важен параметър при закупуване на устройство е наличието на регулиране на въздушния поток. В регулируемите модели са инсталирани специални решетки, които ви позволяват да променяте посоката и силата на въздушния поток.
Експертите съветват закупуването на дифузори от известни производители. Въпреки факта, че дизайнът на този елемент е доста прост, експлоатационният му живот ще зависи от качеството на изпълнението. За промишлени помещения и обществени съоръжения е по-добре да изберете метални елементи, те имат подобрени експлоатационни характеристики и са по-малко податливи на повреда.
Инсталация


Методът на монтаж зависи от вида на таванното покритие и формата на самия вентилационен елемент. Кръгли и квадратни таванни дифузори се използват за окачени гипсокартонени конструкции и опънати тавани. Тези работи трябва да се извършват на етапа на монтаж на окачени и опънати конструкции.
Акценти при инсталирането:
- Определете местоположението на дифузера. Тук не може да има много опции, тъй като той е прикрепен строго към изхода на вентилационния канал.
- Устройството се нанася върху повърхността и по неговия периметър се очертава контур по повърхността.
- Всичко, което остава вътре в контура, се пробива на малка дълбочина, като се фокусира върху факта, че решетката в крайна сметка е изравнена с тавана. Периметърът трябва да бъде леко разширен - 5-6 мм във всяка посока.
- Поставете отново устройството и маркирайте точките за закрепване.
- На маркираните места се правят дупки с бормашина или перфоратор. В получените отвори се вкарват дюбели.
- Периметърът на мястото за монтаж се обработва с уплътнител, който предотвратява проникването на въздух извън устройството.
- Сега дифузорът се нанася и фиксира към повърхността с помощта на самонарезни винтове.
Кръглите модели са почти незабележими, поради което се вписват безпроблемно във вътрешността на всеки таван.
Квадратните решетки най-често се използват за касетъчни тавани, те са фиксирани вместо декоративни плочки. Този модел таван осигурява лесен достъп до вентилационната система за поддръжка.


Необходимо е да се осигури лесна поддръжка при инсталиране на дифузьор. Той трябва органично да се впише в интериора и да изпълнява напълно функциите си.
Изборът на правилния дифузьор
Всяка конкретна вентилационна система изисква индивидуален подход при избора на компоненти. Продуктът за вентилация трябва да бъде избран въз основа на следните параметри:
- Размерите на напречното сечение трябва да бъдат равни на размерите на канала, за който е предназначено устройството.
- Мощността на разпределителя на въздуха се избира в съответствие с нуждите на помещението или сградата.
- Материалът на производство трябва да корелира с параметрите на транспортираните въздушни маси и характеристиките на експлоатираните помещения. За използване на открито най-подходящ е метален корпус, вътре - пластмасови изделия.
- Разумно е да изберете дизайна на конструкцията за съответния стил на интериорна декорация.
Освен това, когато избират подходящ модел въздушен дифузор, потребителите обръщат внимание на дизайна и цвета.
Подови дифузори
Подови вентилационни решетки заслужават специално внимание. Те се монтират на места, където са най-малко изложени на механично напрежение, а също така са изработени изключително от метал. Забранено е поставянето на подови дифузори директно под работното място. Вентилационното устройство трябва да е на най-малко 40 см от него. Подаването на въздух се извършва поради излишното статично налягане, което се образува в подово пространство или в специално проектирана камера. Предимствата на този тип включват: изключително ниско ниво на шум, равномерно разпределение на температурата в цялата обслужвана зона. Най-често този тип дифузьор се използва за вентилация на помещения в театри, аудитории, концертни зали и др.
Предимства и недостатъци на разпределителя на въздуха
Инсталирането на дифузьор като част от вентилационна система за всеки тип стая осигурява предимства с двойна употреба - функционални и декоративни:
- Това устройство е в състояние да осигури висококачествен въздушен обмен както в отделни помещения, така и в цялата сграда.
- С негова помощ можете да регулирате посоката на движение и мощността на въздушния поток.
- Дюзата ви позволява да гасите шума от работата на оборудването и движещите се въздушни потоци през проводимите канали.
- Устройството служи като защитен агент срещу попадане на чужди предмети, отломки, прах, мръсотия, насекоми и гризачи във вентилационната система.
- Стилният въздушен дифузор е прекрасен декоративен елемент, който може да украси всеки интериор във всеки стил.
Недостатъците на това устройство практически липсват при правилния избор и правилната инсталация. Определена характеристика може да се разглежда като възможност за проект. Този проблем обаче се решава чрез просто инсталиране на специална камера за стабилизиране на налягането.
Изход
С помощта на дифузори е възможно да се осигури не само посоката и обема на притока на въздух, но и неговото изтичане. В този случай правилното разпределение на въздушните маси се случва в цялата сграда или конкретно помещение, с минимални топлинни загуби.
Индустрията предлага модели, изработени от различни материали и различни цветове, така че когато избирате, трябва да обърнете внимание на техническите характеристики на устройствата.
Видеото в тази статия ще ви помогне да намерите допълнителна информация по тази тема.
Хареса ли ви статията? Абонирайте се за нашия канал Yandex.Zen
Нюанси на инсталацията
Монтажът се извършва след приключване на довършителните работи. И продуктът може да бъде монтиран по следните начини:
В метален маркуч (гофриране).
В отвора на стената (безканална вентилация).
В твърд ръкав (кутия).
Монтаж в метален маркуч (гофриране)
Краят на гофрирането се изтегля от канала.
Към гофрирането е прикрепен дифузер.
Гофрирането заедно с прикрепения дифузор внимателно се вкарва в канала.
Когато продуктът стигне, трябва внимателно да го натиснете, докато щракне, така че ключалките да щракнат на мястото си.
Монтаж в отвор за стена (безканална вентилация)
В стената се пробива (или изрязва) отвор, който да отговаря на размера на дифузора с запас от 5-10 мм.
Монтира се гнездо: тръбата се взема със същия размер като отвора на дифузора.Тръбата трябва да бъде отрязана до дебелината на стената.
Тапицерията се вкарва в отвор в стената и се закрепва с пяна.
В инсталирания контакт е поставен дифузор.


Дифузьорът се избира според формата и размера на канала.
Продуктът се вмъква в слота (кутията), докато щракне.
Правилно използване на устройството
Устройствата за разпределение на захранващия и отработения въздух от различни видове са разработени, като се вземат предвид особеностите на въздушния поток, което ще определи местоположението на работното колело и решетките спрямо основата. Поради тази причина са създадени модели, които могат да отговорят на различните нужди на потребителите: насочени и ненасочени вентилационни дифузори. Такива устройства се инсталират, като се вземат предвид желанията на собственика на дома.
В повечето случаи вентилационният дифузор е монтиран върху гипсокартонени конструкции (таван, стена). В същото време се увеличава ефективността на вентилационната тръба, вградена например зад окачения таван и свързана с основния канал на жилищна сграда.


Ако в стаята няма такива конструкции, можете да използвате най-простите дифузори, които в много отношения са подобни на вентилационните решетки.


Въпросните устройства работят без нужда от човешка намеса. Увеличение или намаляване на интензивността на притока / изтичането на въздуха се осигурява от такова явление като разреждане на въздушната среда. Благодарение на специално разработения дизайн, универсалният дифузор създава разлика в налягането. Това променя посоката на движение на въздушните молекули. Универсалните модели се управляват от дистанционно управление. В този случай режимът на работа се променя, което е придружено от промяна в посоката на въздушния поток.


Места на употреба и предназначение на дифузорите
Устройствата за разпределение на въздуха най-често се използват на места като:
- Офис стаи.
- Места за обществено хранене.
- Апартаменти с повишен комфорт.
- Търговски отдели.
Предназначението за монтаж на разпределителя на въздуха включва:
- Създаване на комфортен микроклимат в затворено проветриво помещение.
- Промяна на подаването на кислород в стаите.
- Разреждане на топлинното натоварване.
- Отстраняване на най-малките частици прах във въздуха с помощта на изпускателна система.
- Поддържане на зададената неравномерност на температурата и поддържане на скоростта на движение на въздуха.
С помощта на мембраната е възможно, ако е необходимо, да се регулира обема (увеличаване или намаляване) на кислорода, влизащ във вентилираното помещение.
Дизайнерски характеристики
Таванните дифузори се предлагат в различни дизайни. Има вихър и слот. Тези видове могат да бъдат направени от всякакъв материал, за всеки метод на монтаж. Но, както беше договорено, говорим за таванни модели.


Таванните дифузори се предлагат в различни дизайни
Вихър
В тях решетъчните прегради са разположени по такъв начин, че да създават турбуленции на въздушните маси. Това значително увеличава скоростта на смесване на въздуха, увеличава производителността на системата. Лесно е да ги разпознаете по характерното радиално разположение на мостовете. Вихров таванен дифузор се използва там, където се налага бърза смяна на въздуха. Има смисъл да ги инсталирате в бани и тоалетни - за бързо възстановяване на нормалната атмосфера, въпреки че обикновено се използват в помещения с голяма площ и височина на таваните.
Обхват на дифузорите
Препоръчително е да се монтира дифузор за вентилация във всички помещения, оборудвани със система за подаване на чист въздух. Устройствата Vortex са инсталирани под формата на декоративни довършителни панели с различни форми и цветове. За да се постигне най-висока ефективност в експлоатация, дифузорите се монтират с помощта на специално уплътнение.
Предната част е фиксирана с винтова връзка към задната кутия. Преди това се произвеждаха устройства с пръскане само в една посока, сега те пръскат потока във всички посоки.Осигурено е производството на модели за монтаж на влажни места, със специално влагоустойчиво покритие. Банските комплекси, басейни и промишлени съоръжения са оборудвани с такива устройства.






