Кога имате нужда от вентилационна система в басейна?
Вентилацията на басейна решава 3 проблема: доставя въздух за дишане, премахва влагата и миризмите. Овлажнителят премахва само влагата и въздухът остава остарял. Но:
Овлажнителят за басейн с огледало от 15 м2 е по-евтин от вентилацията. Всичко е свързано с началната цена. Първоначалната цена на всяка адекватна вентилационна система: 300 000 рубли. „Пълна конструкция“. Овлажнител за басейн от 15 м2 - същият Danvex DEH-600 ще струва по-малко - 170 000 рубли. Печелившо!
Вентилацията в басейн с водно огледало> 25 м2 ще бъде по-евтина и по-ефективна от изсушителя. Ако водното огледало е по-малко от 25 м2, инсталирайте влагоуловител.
Инсталация
Монтажът на вентилация в басейна се извършва на етапи съгласно разработената проектна документация.
- Доставката на оборудване и компоненти до съоръжението се извършва съгласно графика.
- Системите за въздуховоди на тялото се сглобяват и инсталират на местата, предвидени в проекта.
- Извършва се топлоизолация.
- Монтирани са изпускателни и захранващи блокове.
- Инсталирани са спомагателни конструктивни елементи (поточни нагреватели, сушилни, филтърни системи и др.)
- Извършват се дейности по въвеждане в експлоатация.
- Системата е доведена до проектния капацитет, отстранени са недостатъците, автоматизацията е тествана в различни режими на работа на оборудването.
Тук свършва работата по организирането на обмен на въздух.... Ако се спазват определени параметри, инсталацията се предава на клиента за експлоатация.
Климатикът се състои от няколко блока, всеки от които изпълнява необходимата функция:
- рекуперационната система повишава температурата на входящия въздух до комфортни параметри;
- изсушителят поддържа влажността в определените граници;
- нагревателят повишава температурата на входящия въздух до комфортни стойности;
- филтриращите елементи пречистват потока, влизащ отвътре;
- централата организира въздушния поток в определена посока с изчислена скорост;
- въздушните клапани са системи за управление;
- автоматизацията осигурява ефективна и икономична работа на оборудването.
Как да премахнете влагата чрез вентилация? Принцип на действие
През лятото, когато въздухът навън е влажен, ние просто духаме през басейна с увеличен обем въздух. За тези цели използваме отделни захранващи и изпускателни блокове.
През зимата, когато въздухът навън е студен и сух, ние просто го загряваме в захранващия блок и го доставяме в басейна. Захранващите струи са насочени към водното огледало, за да максимизират абсорбцията на влага. Закачаме захранващите и изпускателните възли под тавана на гаража или във всяко друго техническо помещение. Под тавана на басейна разстиламе мрежа от въздуховоди, през които извеждаме влажния въздух на улицата.
През зимата източването на басейна изисква 7 пъти по-малко въздух, отколкото през лятото. Климатичната инсталация работи минимум през зимата, така че не са необходими рекуператори.
По този начин вентилационните модули за басейни работят в 2 режима - летен и зимен.
Лято: Въздухът навън е топъл и влажен, поради което той се подава в помещението на басейна без отопление. Съдържанието на влага през лятото е много високо - 12,8 g / kg. Следователно, за да се отстрани влагата от басейна с вече влажния външен въздух, е необходимо да се продуха помещението в басейна с голям обем въздух, т.е. вземете не качество, а количество.
Зима: Ситуацията е обратна. Въздухът навън е студен и трябва да се нагрява, за да се подава към басейна. Но основното е, че е много сухо. Съдържанието му на влага е само 0,39 g / kg, т.е. зимен въздух 32 пъти по-сухо от лятото, което означава, че обемът на такъв въздух е необходим много по-малко.
например, за изсушаване на въздуха в басейн с водна повърхност 25 м2, през лятото се нуждаете от около 3000 м3 / ч въздух, а през зимата - само 400 м3 / ч, което е 7,5 пъти по-малък.
Колко струва вентилацията на басейна до ключ?
На компанията се дават различни цени. В таблицата по-долу съм дал най-добрите цени за пазара. Аз съм дизайнер и печеля пари от проектиране. Публикувам цените не с цел оказване на натиск върху инсталационните компании, а с цел клиентите ми да разберат реда на цените и да не припадат.
За разлика от същите влагоуловители, цената на вентилационното оборудване на практика не зависи от размера на басейна. Основната цена е в разклоняването на въздуховодната мрежа и разходите за монтажни работи.
| Зона на водно огледало | |||||
| Разходите | 15 м2 | 21 м2 | 28 м2 | 35 м2 | 40 м2 |
| Оборудване | 180 000 | 220 000 | 230 000 | 250 000 | 280 000 |
| Материали (редактиране) | 110 000 | 140 000 | 160 000 | 190 000 | 210 000 |
| Работа | 70 000 | 80 000 | 80 000 | 110 000 | 140 000 |
| Обща сума | 370 000 | 440 000 | 470 000 | 550 000 | 630 000 |
На пазара има повече от 20 марки вентилационно оборудване с различни ценови политики. Таблицата показва най-простата и ефективна система за вентилация на басейна, базирана на оборудване NED и Breezart. Без проект не можете да сте сигурни в правилността на решенията и инсталаторите не могат да сглобяват системата.
Разходи по проекта от 25 000 до 36 000 рубли.
° ССравнение с десиканти: Да, в някои случаи изсушителят ще бъде по-евтин от вентилацията. Например, в басейни с водна повърхност 25 м2, изсушителят е с 20% по-евтин. Но когато инсталирате влагоуловител, във всеки случай ще трябва да инсталирате проста вентилационна система за банална вентилация на помещението. В резултат на това комбинираната система за вентилация и изсушаване ще бъде много по-скъпа от пълната вентилация, предназначена за отстраняване на влагата. В басейни с огледало от 35 м2 или повече - цената на изсушителя и вентилацията е еднаква, но функционалността на изсушителя е много по-малка.
Видове вентилационни системи
Има няколко схеми за вентилационна система за басейна. Кой точно трябва да бъде избран, зависи от параметрите на стаята (нейния размер, колко често ще се използва, колко хора ще бъдат едновременно, какъв вид оформление).
Схемите могат условно да бъдат разделени на два вида:
- захранваща и изпускателна система;
- захранваща и изпускателна система със сушилня за въздух.
Използването само на един влагоуловител, без планирана вентилационна система, няма да даде специални резултати: необходимо е да се осигури подаването на свеж въздух и отстраняването на отработения въздух, а не само неговото овлажняване. Също така трябва да разберете, че в 99% от случаите се използват принудителни системи. Естествените схеми практически не се използват: те не осигуряват бърз обмен на въздух, не могат да се регулират нормално и тяхната ефективност до голяма степен зависи от метеорологичните условия. В резултат на това при висока влажност те ще обновят въздуха твърде дълго.
Доставка и изпускане
Както притокът, така и отвеждането на въздуха в тях се извършват през вентилаторите. Като алтернатива, в малки помещения (или в помещения с малък басейн и ниско ниво на влажност) само системата за отстраняване може да бъде принудена и входящият поток се извършва през клапани или прозорци.

Схема за вентилация на плувен басейн
Такава система се отличава със своята простота и относително ниска цена, тъй като не се изисква допълнително климатично оборудване (влагоуловители). Препоръчително е да го използвате за басейни с площ до 20 m² (водно огледало).
Понякога е достатъчно просто да отворите прозорец в стаята и то само за времето на проветряване (тоест след плуване).
Доставка и изпускане с изсушаване
Такава система предполага минимален (или, както го наричат още, санитарен) въздушен обмен. Влажността се намалява не поради отстраняване на въздуха, а поради специално оборудване: влагоуловители.
Препоръчително е да използвате такава система за помещения с басейн до 40 m² (водно огледало).
Схема за вентилация в басейна (видео)
Защо не можете веднага да се свържете с инсталационната компания?
Вентилацията на басейна е технологична система.НЕ се изчислява, като се използват стандартни методи за обмен на въздух и по този начин се различава коренно от вентилацията във вила, офис или ресторант. Следователно тези решения, които в 90% от случаите ще бъдат включени във вашата оценка от фирмите за монтаж, ще бъдат неправилни.
Ако вече имате прогноза за инсталацията, можете да ми я изпратите и аз ще ви кажа всичките им грешки.
Първо, В повечето частни басейни не са необходими специализирани инсталации с рекуператори и изсушител. Те са скъпи и се използват за много различни цели. Второ, Автоматизацията, която е вградена в повечето инсталации, изисква фабрична спецификация. Не можете да си купите никаква платформа и да я закачите. Такова оборудване няма да работи правилно. Устройствата трябва да бъдат програмирани в съответствие с графика за влажност. Трето, Инсталационните фирми избират инсталациите на случаен принцип. И това не е приплъзване на езика от моя страна. За да направят правилния избор, те трябва да ви попитат какво допълнително оборудване планирате да поставите в басейна и начина на включване на това оборудване. По-често никой не пита нищо. Например: За басейн с обратен поток се изисква оборудване за 1500m3 / h за 230 000 рубли, а за басейн без обратен поток - за 900m3 / h за 145 000 рубли. Един въпрос спестява на клиента от 85 000 рубли.
Изчисления като част от дизайна на вентилационната система
За да изберете правилното вентилационно оборудване, напречно сечение на въздуховода и конфигурация на системата, е необходимо да се извършат редица инженерни изчисления. Никой пълноправен проект за басейн не е немислим без изчислената част. Ето основните изчисления, които трябва да бъдат включени в състава му.
Определяне на ареалните характеристики
На този етап се събират първоначални данни за площта на огледалото на басейна, обема на помещението, размера на пътеките, пътеките на оградите, наличието на помощни помещения, конструктивните характеристики на сградата, брой къпещи се и др. Това ви позволява да изберете нормализираните стойности на характеристиките на въздуха за по-нататъшни изчисления в съответствие с текущите изисквания.
Изчисляване на температурни параметри
В зависимост от предназначението на басейна и неговите характеристики на площта се избират стандартизирани температурни параметри, които трябва да се осигурят от избраното вентилационно оборудване. В този случай е необходимо да се вземе предвид наличието на отоплителни системи, допълнително отделяне на топлина и топлинни загуби.
Идеалният вариант би бил да се избере вентилация на басейна с присъщата възможност за превключване към различни режими на работа. Това трябва да гарантира спазването на сезонните промени, както и промяна в предназначението на басейна, например от спортен към подобряващ здравето. Температурните изисквания за всеки сорт са изброени по-горе.
Определяне на проектните данни за постигане на оптимално ниво на влажност на въздуха
За приетите температурни условия се изчислява количеството изпарена влага и се определя капацитетът на сушилната инсталация.
Важен параметър за това изчисление е точката на оросяване (температурата, при която се образува конденз по прозорците, стените и носещите конструкции). Целта на вентилационната система на басейна е да поддържа условия, при които точката на оросяване няма да бъде достигната и нивото на относителна влажност ще бъде в рамките на нормалното.
Определяне на количеството генерирана влага
Основните източници на изпаряване на влагата в разглежданите помещения са:
- Водното огледало на самия басейн
- Обходни пътеки около него
- Подаване на въздушен поток от улицата
- Къпане на хора с голям брой от тях
- Водни пързалки и атракции, ако има такива
Когато басейнът не се използва, изпарението на водата също се намалява, намалявайки нивото на относителна влажност. Следователно климатикът е проектиран да работи в два режима.
Определяне на скоростта на движение на въздуха в басейна
Проектираният вентилационен блок трябва да осигурява подвижността на въздушните маси на ниво, не по-голямо от 0,2 метра в секунда. В противен случай увеличеният въздушен поток към кожата може да доведе до хипотермия и настинки.
Увеличаването на мобилността на въздуха също ще доведе до намаляване на допустимото ниво на влажност и намаляване на комфорта на къпещите се.
Изчисляване на характеристиките на въздухообмена
Друго важно изчисление, което трябва да се извърши при разработване на проектна документация, е изчисляването на обменния курс на въздуха. Тази характеристика показва колко пъти въздухът се заменя напълно в помещението на всеки час. Параметърът на обменния курс на въздуха се нормализира от настоящите нормативни документи.
В резултат на изчислението се определя капацитетът на вентилационния блок, както и напречното сечение на инсталираните въздуховоди.
Следните са взети като изходни данни за изчислението:
- Количеството вода, която се изпарява в басейна
- Районни характеристики на водното огледало и пътеки около него
- Специфичен индекс на отделяне на влага за използвано и неизползвано пространство
- Необходим приток на външни въздушни маси
Определяне на необходимия въздушен поток
Дебитът на външните въздушни маси, доставяни от климатика, не само осигурява необходимия въздушен обмен, но и компенсира отделянето на влага, поддържайки необходимото ниво на относителна влажност.
Този вид изчисления като част от дизайна на басейна е необходим, за да се вземе предвид компенсацията на генерирането на топлина и топлинните загуби поради характеристиките на консумираните външни въздушни маси.
Необходими първоначални данни:
- Количеството влага, която се изпарява от огледалото и други налични повърхности
- Съдържание на влага във външни и вътрешни въздушни маси
- Стойности на парциалното и параметричното налягане на водната пара отвътре и отвън
- Входяща топлина от отоплителни системи, осветителни тела, слънце, къпещи се и др.
- Ареални характеристики на стаята
- Температура на водата и въздуха
- Загуба на топлина през стени, врати и прозорци
- Нормализирани коефициенти на топлопреминаване
Според нормативните документи (SP 60.1330.2012 и SP 31-113-2004), консумираното количество външни въздушни маси трябва да бъде повече от 80 кубически метра на час за всеки къпещ се. Необходимо е да се постигне необходимата стойност чрез промяна на останалите параметри в правилната посока, чрез правилния подбор на оборудването.
Обменни курсове на въздуха в басейна
Основен басейн стандарт SP 310.1325800.2017
Ще разгледам най-важните изисквания:
1. Необходимо е да се поддържат 30 ° C на закрито през цялата година.от хората се разхождат голи, така че температурата на приточния въздух се изчислява не на 23 ° C, както в обикновените стаи, а на 30 ° C.
2. Относителна влажност на въздуха не повече от 55-65%. В басейните в дървени къщи влажността на въздуха трябва да бъде не повече от 45%. Промяна на влажността от най-малко 5% изисква промяна в обема на въздуха с 35%, следователно влажността за изчисляване на вентилацията на басейна е най-важният показател.
3. Въздушна подвижност 0,2 m / s. Поради това в басейна винаги има много големи вентилационни решетки. Скоростта на решетките трябва да бъде сведена до минимум, за да не настинат хората.
4. Качулките са по-големи от входящия. В залите за басейни обемът на подавания въздух е с 10% повече от обема на изходящия въздух. Това се прави така, че влажният въздух да не излиза в съседните помещения.


Монтаж на вентилация в закрит басейн
Инсталирането на вентилация в закрит басейн изисква спазване на някои правила. По-специално е необходимо да се извърши подготовка: изчисления на обмен на въздух, относителна влажност на вътрешната температура, време на средно отделяне на влага и други параметри:
- Измерете площта на залата, в която ще бъде оборудван басейнът.
- Изчислете необходимата порция въздух на човек.
- Анализирайте допустимия брой хора, тоест изчислете капацитета на басейна.
- Определете оптималната стайна температура.
- Измерете показанията на налягането.
Освен това трябва да се погрижите за благосъстоянието на бъдещите посетители. Комфортът ще бъде осигурен със следните параметри:
- 45-65% - стойности на относителна влажност;
- 2 ° C е максималната разлика между температурата на водата и въздуха.
Освен това не трябва да се допускат течения и силно движение на въздушни маси. Ако пренебрегнете това допълнение, посетителите ще бъдат хипотермични, което ще доведе до настинки.
Колко въздух е необходим за проветряване на басейна?
Консумацията на въздух за вентилация на басейна се изчислява в зависимост от отделянето на влага, т.е. количеството влага, отделено от водното огледало.
Количеството на излишната влага зависи от района на изграждане, наличието на изсушител, площта на купата (площта на водната повърхност), коефициента на скорост на изпарение (Δßb). Развлекателните разходки оказват сериозно влияние върху консумацията на въздух: водни пързалки, противопоток, масажор, подводни струи, фонтани и гейзери.


Характеристики на проекта за вентилация


Басейните са със спортни, здравни, развлекателни и образователни цели. Изискванията към тях се различават, но като цяло проектирането на вентилационни системи за закрит басейн трябва да реши следните основни задачи:
- Поддържане на необходимите характеристики на температурата и влажността в района, където се намират хората
- Поддържане на необходимите характеристики на температура и влажност около облицовката и носещите конструкции на сградата
- Осигуряване на оптимална консумация на енергия на вентилационното оборудване във всички режими на работа
В същото време е необходимо да се вземат предвид такива фактори като местоположението на сградата в посоките на кардиналните точки, височината на белега на пода спрямо нивото на земята, броят на хората, които плуват и релаксират в стаята , графика на посещенията, топлинните загуби, мощността на отоплителната система, наличието на оборудване за изсушаване.
За разлика от вентилацията с общо предназначение, която решава проблема с осигуряването на висококачествен въздушен състав и компенсиране на вътрешната излишна топлина от външни по-студени въздушни маси, вентилационната система на басейна като основна цел е да се поддържа правилното ниво на влажност. Останалите проблеми (максимално допустими концентрации на газ и топлообмен) са решени вече в комплекса.
Изчисляване на вентилацията на басейна
Ще анализирам изчисляването на вентилацията, като използвам примера на басейн от 23 м2
| Басейн 6.9x3.4m във вилата | Вентилационен капацитет на басейна 23 м2 в зависимост от условията: | ||||
| С противопоток, подводни струи (без сушилня) в Москва | С противопоток, подводни струи (със сушилня) в Москва | С гейзер и фонтан (без изсушител) в Москва | С противопоток, подводни струи (без сушилня) в Самара | С гейзер и фонтан (без изсушител) в Самара | |
| Приток | 1540 м3 / ч | 770 м3 / ч | 1030 м3 / ч | 1390 м3 / ч | 940 м3 / ч |
| качулка | 1710 м3 / ч | 860 м3 / ч | 1150 м3 / ч | 1550 м3 / ч | 1040 м3 / ч |
| Обезвлажнител | – | 117 л / ден | – | ||
Както можете да видите, обемът на въздуха за един и същ басейн от 23 м2 е различен при различни условия, така че онлайн калкулаторите не могат да вземат предвид всички показатели и да броят с марж. Например, противопоточна система в басейн увеличава размера на вентилационното оборудване с 33%, а инсталирането на водна пързалка с 50%!
За точно изчисляване на вашия басейн ви съветвам да разработите проект за вентилация и да не пестите 25-40 хиляди рубли. За проектиране ще ви трябват архитектурни планове в DWG (AutoCAD).
Подаване на въздух от пода на басейна


Подаване на въздух от пода на басейна
В интернет има снимка, където въздухът се подава към басейна от пода, а на техническия етаж има вентилационен блок. Трябва да обясня на своите клиенти, че на практика е невъзможно да се направи това:
• Невъзможно е да се пробият дупки с такъв размер, че скоростта на въздуха от тях да е по-малка от 0,5 m / s, а при по-висока скорост ще има течения и дискомфорт. • Разходът на въздух в басейна е много голям - вие ще трябва да пробие 5-6 дупки 600x100 в подовата плоча, върху които се опира купата. Доста проблематично • Отоплителните конвектори и тръбопроводите са разположени в зоната на прозореца. Ще трябва да поръчате изработени по поръчка конвектори, което е дълго и скъпо.
В крайна сметка: в частните басейни подобна схема е изоставена в 90% от случаите.В търговските басейни този тип подаване на въздух често се използва, но се предвижда на структурния етап на сградата, където купата е отделен монолит.
Основни стандарти за проектиране
Изчислените данни са в SNiP 2.08.02-89 "Проектиране на басейни". Съществуват и строителни правила SP 31-113-2004 Басейни. Системите, отговорни за микроклимата в басейна, а именно вентилация, отопление, климатизация, са проектирани въз основа на стандартните показатели:
- Температура на водата
- Температура на въздуха и честота на неговия обмен за доставка и екстракт
- Относителна влажност
Температурата на водата ще варира значително в зависимост от спецификата на басейна:
| Тип баня | Температура за изчисление, 0С |
| Спорт | от +24 до +28 |
| За обучение на деца | от + до +32 |
| За охлаждане | не повече +12 |
| Специализирани джакузи бани | до +39 |
| Охладени водни бани в сауни | до +15 |
| Гмуркащи се бани | от +28 до +30 |
В SNiP не се препоръчва да се изчислява вентилационната система с температура по-висока от + 350C. За басейните това е границата. Всичко по-горе се изчислява въз основа на нормите за вани.
Температура на въздуха, честота на неговия обмен:
| Името на работната част на комплекса | Температура на въздуха за изчисление, 0С | Курс на обмен на въздух за 1 час | ||
| Доставка | Ауспух | |||
| Всички стаи, където са разположени баните на басейна | Приема се с 1-20С по-висока от стандартната температура на водата | Има много фактори, които влияят на стойността. Минимален праг 80 м3 / ч на човек в басейна, 20 м3 / ч на зрител по време на състезанието | ||
| Зали за тренировки | + 18 | Изисква се индивидуално изчисление. Минимална стойност 80 m3 / h на посетител | ||
| Душове | +25 | 5 | 10 | |
| Масажна стая | +22 | 4 | 5 | |
| Тоалетна | +22 | 3 | 3 | |
| Учебни кабинети | +18 | 3 | 2 | |
| Стаи за хлориране на вода | +16 | 10 | 12 | |
Посочените по-горе ориентировъчни стойности са за изчисляване на вентилационни системи за обществени и частни басейни. За втората група не се използват всички стойности, тъй като класическият пример за частен басейн е малко пространство от една стая.
Дизайнерът обръща специално внимание на подвижността на въздушните маси. Качеството на смесване и отстраняване на стария отработен въздух, както и липсата на течения, зависи от интензивността на тяхното движение. В основната зала скоростта на движение е не повече от 0,2 m / s. В други помещения до 0,3 m / s. Ако има трибуни, тогава изчислението се извършва два пъти, когато те са пълни със зрители и когато залата е празна. Изчислената граница за относителна влажност е 65% за основната зала и 60% за помощните помещения.
Температурен баланс
Диаграма на кондензация на влага
Основният параметър, който има решаващо влияние върху изчисляването на вентилационната система. Влияе на влажността на насищане. Това е количеството водна пара, разтворено във въздуха.
Водата не спира да се изпарява. Задачата на дизайнера е да намали интензивността на процеса. От това зависи общата мощност и цена на вентилационната система.
Влажността на насищане ще бъде минимална, когато температурната разлика между въздуха и водата е 1-20C. Въздухът винаги е по-топъл от водата. Ако напротив, тогава изпарението и кондензацията на влагата ще се ускорят. Ще са необходими по-мощни вентилационни устройства.
Схеми за вентилация на частен басейн
Всички схеми за поддържане на микроклимата се свеждат до комбинация от вентилация и изсушител. Това е комбинираният метод за изсушаване.
Има 3 опции:
• захранващи и изпускателни възли (отделни); • захранващи и изпускателни възли (единични) с байпасен канал; • климатик (единичен блок) с рекуператор.
Всичките 3 опции се комбинират с влагоуловител и получаваме още 3 схеми:
• захранващи и изпускателни възли (отделни) със сушилня; • захранващи и изпускателни възли (единични) с байпасен канал и сушилня; • климатична единица (единична единица) с рекуператор и изсушител.
Нека да разберем, но с поглед напред ще кажа:
Има само една правилна схема за вентилация и изсушаване за частен басейн. Овлажнителите са скъпи и глупави. А възстановяването и байпасът са подходящи само за големи търговски басейни.
Нека анализираме всяко оборудване по ред и всичко ще стане ясно.
Начини за намаляване на влажността в помещението на басейна
Намаляването на влажността на въздуха може да се извърши по два начина:
- кондензация;
- асимилация.
Кондензация на влага в басейна
Диаграма на кондензация на влага
Въздухът се изтласква през влагоуловителя, където температурата му достига точката на оросяване. Влагата се кондензира, след което въздухът се нагрява до желаната температура и се връща в стаята.
Такива инсталации са добри за вентилация на басейн във вила, където не може да бъде внедрена система за изпускане на входящи потоци. Дизайнът е оборудван с хигростат, който стартира компресора, когато влажността достигне определено отчитане. Веднага щом влажността падне, хигростатът спира компресора. В този случай вентилаторът може да продължи да се върти.
Кондензационните сушилни са:
Монтирани на стена, които са окачени на стените. Те могат да бъдат инсталирани в завършено помещение;
Скрит на стена. Цялото оборудване е скрито в съседната стая, само всмукателната скара влиза в стаята на басейна. Необходимо е да се планира такава вентилационна система за басейн в частна къща по време на строителната фаза;
Стационарен. Това са мощни инсталации, изискващи специална стая. Те могат да бъдат включени в системата за захранваща и изпускателна вентилация за басейна на спортния комплекс. Стационарният влагоуловител позволява смесване на 1/5 от обема на въздуха. Притокът и изтичането на въздух се осигуряват от система от въздуховоди. Оборудвайки системата с канален нагревател, получаваме пълна вентилация.
Асимилация на вода в басейна
Схема за усвояване на влагата
Системите за подаване и изпускане работят по този принцип, използвайки свойството на въздуха да абсорбира водни пари. С приблизително изчисление се полага 5-кратен въздушен обмен на час.
Често в умерените географски ширини е достатъчна само вентилация, за да се поддържа необходимия микроклимат в малък частен басейн. Но когато се изчислява вентилацията на басейни на спортни или развлекателни комплекси, не можете да правите без изсушител. Особено ако са разположени в горещ климат.
Вторият съществен недостатък е, че захранващият въздух трябва да се нагрява. Това е особено забележимо през студения сезон, когато за отопление се изразходва максимум електричество.
Комбиниран метод за изсушаване на басейна


Комбинирана система за намаляване на влагата
Оптималният тип система за изсушаване и вентилация за интензивни басейни и големи площи. Експертите препоръчват да се използва както влагоуловител, така и принудителна вентилация. Системите могат да бъдат независими, да не са свързани по никакъв начин или да представляват обща система за контрол на микроклимата.
Това е скъпо оборудване, което се оправдава само в басейни с площ от поне 50 кв. метри.
Рекуператор за басейна. Защо не е необходимо?
Рекуператорът е секция в климатична инсталация, която спестява 50% от топлината за отопление на захранващия въздух през зимата.


През зимата навън е студено, така че трябва да го загреете, за да подадете въздух към басейна. Може да се отоплява с вода или електричество, но това винаги е допълнителен разход. Клиентът иска да спести от оперативни разходи и постъпва правилно, но рекуператорът не е необходим в басейните и дори е вреден.
Ето защо:
През зимата въздухът навън е студен, но много сух, така че за източването на басейна е необходимо много малко - 7 пъти по-малко, отколкото през лятото. Остава само да се загрее. В резултат на това обемът на въздуха за източване на басейна през зимата е много оскъден, от 350 до 500 м3 / ч, а за възвръщаемостта на рекуператора са необходими минимум 1500 м3 / ч.
Рекуператорът е необходим в басейни с водна повърхност най-малко 80 m2.
През зимата климатичната инсталация ще намали скоростта и въздушният нагревател ще работи на минимум. Оказва се, че просто няма какво да се спести. През лятото уредът ще увеличи подаването на въздух, но нагревателят няма да работи.
С инсталирането на рекуператор в басейна получаваме голям проблем.
Рекуператорът в басейна постоянно замръзва и кондензът тече. Поради факта, че отработеният въздух е влажен, а захранващият въздух от улицата е много студен, стените на рекуператора са много охладени. Влажният извлечен въздух се кондензира върху студените стени на рекуператора, т.е. влагата пада от въздуха. В резултат на това през есента и пролетта кондензатът постоянно тече от инсталацията. И когато настъпи студено време, влагата по стените на рекуператора замръзва и оборудването постоянно включва режима на размразяване.
Изход: Рекуператорът във вентилацията на басейна просто не е необходим. Обемът на захранващия въздух през зимата е твърде малък, за да се спести топлина, а изходящият въздух е твърде влажен, което ще доведе до конденз по стените на рекуператора и последващо замръзване.
Ако наистина искате да спестите топлина във вашата вентилационна система, помислете за жалузи, които да покриват вашето водно огледало извън работното време. Така можете да намалите отделянето на влага в басейна и следователно да намалите обема на въздуха и консумацията на вентилационната система със 70%.
Организация на захранваща и изпускателна вентилация на помещението на басейна


И сега, накрая, стигнахме до осъзнаването на необходимостта от оборудване на една и съща захранваща и изпускателна вентилация на басейните. Също така е възможно да се организира захранваща и изпускателна вентилация по различни начини - това могат да бъдат два отделни вентилационни блока (захранващ и изпускателен), например VEZA VEROSA, всеки от които изпълнява собствена работа. Най-целесъобразно е обаче да се комбинират двете инсталации в една и по този начин да се спести място за инсталиране. Гамата от продукти на VEZA включва специализирани инсталации за вентилация на басейни AQUARIS. Тези инсталации, заедно с осигуряването на комфортен микроклимат в помещението на басейна, ви позволяват също така значително да спестите от отопление на захранващия въздух, поради такова вградено оборудване като рекуператори, термопомпи.
Използването на климатичната инсталация дава възможност на клиента да получи пълен обмен на въздух в стаята на басейна
Много е важно да наблюдавате отрицателния дисбаланс в стаята, когато настройвате уреда. Това означава, че количеството въздух, отстранено от стаята на басейна, трябва да бъде малко по-голямо от количеството въздух, подаван в същата стая.
Съществуващите стандарти (SP 31-113-2004) ни казват, че обемът на изходящия въздух трябва да бъде по-голям от подавания въздух с не повече от половината от вентилирания обем на помещението (0,5 кратно)
След това трябва да обърнете внимание и на скоростта на въздуха. Така че, за да се избегне дискомфорт, течение и засилване на изпарението на влагата, в района, където се намират къпащите се и над водната повърхност, скоростта на въздуха трябва да бъде на ниво 0,15 ÷ 0,20 m / s
За да се предотврати аеродинамичен шум от въздуха на изхода от решетките за разпределение на въздуха, трябва да се спазва скорост на изтичане от порядъка на 2 ÷ 3 m / s.
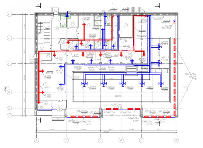
Вентилационен блок на плувен басейн
За басейни използваме конвенционални отделни захранващи и изпускателни възли. В този случай имаме възможността да подходим по-гъвкаво към разположението на оборудването. Отделните блокове заемат значително по-малко място от системите с рекуператор. Те могат да бъдат разположени в различни стаи, например на тавана, в мазето и дори в окачения таван на самия басейн. Климатичната инсталация, работеща в 2 режима, доставя 3000 м3 / ч през лятото, а през зимата загрява и доставя само 400 м3 / ч. Устройството за отвеждане на въздуха изхвърля влажен въздух навън, а нагревателният кабел на външните решетки ги предпазва от лед.
Това е най-простата и ефективна схема за вентилация.За да загреете 400 m3 / h въздух, са ви необходими само 7,5 kW топлинна енергия от котела (да не се бърка с консумацията на електричество) и това е при -25 ° C навън.


Правилна вентилационна система в басейна на частна къща
Фирмите доставчици ще ви убедят да закупите скъпи климатични инсталации за басейни, които в 90% от случаите изобщо не са необходими. Веднага щом кажете „пул“, те имат „инсталации за басейни“ в главите си. И защо е необходимо такова отношение - те не могат да обяснят.
Компаниите Svegon и Menerga предлагат оборудване от 600 000 рубли. 100% от частните басейни не се нуждаят от тях, а 90% от търговските басейни използват 2 отделни блока, единият с изсушител, а другият без.
В проекти за басейни в частни къщи използваме конвенционални захранващи и изпускателни агрегати от NED, Breezart, Systemair, Ventmachine. Проектираме окачени инсталации от канален тип в шумоизолиран корпус с пълен набор от автоматика.
Монтаж на климатични комплекси
В басейни с площ на водната повърхност над 50 м2 се използват съвременни климатични системи с цел обмен на въздух и вентилация. Тези многофункционални устройства са предназначени да поддържат микроклимата в определени режими през цялата година.
Те са способни да почистват, изсушават и затоплят въздушните маси на помещението. Тези модулни модули се доставят готови за инсталиране.
Комплексът се състои от следните елементи:
- захранващи и изпускателни вентилатори;
- рекуператор;
- обезвлажнител;
- нагревател;
- филтър;
- въздушни клапани;
- Контролен блок.
Пълният комплект е индивидуален и може да се променя според предпочитанията на клиентите. Такъв комплекс работи в различни режими.
Неговите сензори реагират на промени в параметрите на въздуха и устройството автоматично променя режима на работа на по-подходящ. Такива климатични комплекси се отличават с впечатляващи размери, поради което за тяхното инсталиране трябва да се отдели специално помещение.


Климатичният комплекс е мощна единица с впечатляващи размери и усъвършенствана функционалност.
Такъв мощен блок за управление на климата е в състояние да поддържа необходимия микроклимат в помещения с голяма площ.
Използването на този климатичен комплекс може да замени отоплителни устройства, влагоуловители, климатични инсталации в цялата стая. Комплекси от този тип често се инсталират във вили, частни къщи, медицински и спортни басейни.
Защо се нуждаете от вентилация в стая с басейн?
Огледалото на водата в басейните в дома или обществено съоръжение е голямо. Това означава, че от него идват огромни изпарения. И това е не само вода, но и различни химикали, които се въвеждат в течността под формата на препарати за почистване. Тоест микроклиматът в помещение с плувен басейн не е от най-благоприятните.
Човек бързо се уморява от влага, появява се дискомфорт, но той идва в басейна за почивка. Освен това, ако не контролирате индикатора за влажност, тогава по стените, прозорците и други конструкции на конструкцията се появява конденз, от който по-късно очаквате проблеми под формата на плесен и гъбички. А влажната атмосфера влияе отрицателно върху качеството на строителните конструкции.
Следователно в тези конструкции е инсталирана вентилационна система, с помощта на която се отстраняват влажни въздушни пари и съответно самата влажност намалява. И тук няма значение дали в басейна на частна къща е подредена вентилационна система или е обществено или спортно съоръжение. Но трябва да се отбележи, че всяка вентилация в басейна няма да работи. Тук се използват само захранване и изпускане или е със сушилня за въздух.




