Когато възникне въпросът за отоплението на малка селска къща, най-доброто решение ще бъде изграждането на печка. Това е икономично и практично, тъй като топлопредаването от правилно подредени тухлени фурни е най-малко 90 процента.
Тухлените пещи отговарят на предназначението си от векове. И без значение как дизайнът му се променя и подобрява, основните изисквания към него остават същите. Това са безопасността при употреба, лекотата на използване и способността да се затоплят дълго време.
Със силно желание не е трудно да поставите мини тухлена фурна със собствените си ръце.

Какви са ползите от малките печки за изгаряне на дърва
Предимството на малка печка е, че заема много малка площ с висок топлопренос. За селска къща, баня, стопански постройки е идеална мини фурна на дърва и въглища. Има минимум строителни материали, но ако поставите плота отгоре, можете да готвите храна и да загрявате водата. Дори в наше време тухлена печка за отопление остава доста популярна. Най-важното е, че направата му няма да бъде трудна за начинаещ майстор. Имайки схема за поръчка пред очите ви, можете да сгънете мини фурната със собствените си ръце само за една дневна светлина. Просто трябва първо да подготвите всички необходими инструменти и строителни материали.


В сравнение с "печката", тухлена мини фурна за дача с дърво изглежда естетически приятна. Впоследствие той може да бъде усъвършенстван с плочки и не само ще загрее, но и ще украси селска къща.
Понякога дизайнът му се комбинира с камина и това вече ще бъде мини печка за камина. Можете веднага да вградите резервоар за отопление на вода или да осигурите ниша за сушене на зеленчуци и плодове.
Има много опции за тухлени фурни. Но това са по-сложни дизайни и трябва да започнете да изграждате мини фурна за лятна резиденция със собствените си ръце от най-простия модел.
Печка за отопление и готвене: откъде да започнем и как да изградим
Малките пещи, въпреки малките си размери, са инсталирани на здрава основа. Само в някои случаи можете да се справите с подсилване на пода. Опитните майстори работят без схеми и чертежи, а начинаещите се съветват да вземат за основа поръчката на реномирани печки.
Схема на строителство и материали
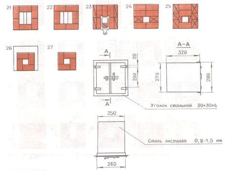
Идеална за малка къща, тази квадратна мини тухлена фурна е проста, компактна и ефективна. Дизайнът включва нисък комин с канална секция от 13 * 13 см. Печката има фурна, която ви позволява да готвите и да затопляте ястия. Шкафът е изработен от ламарина, но при желание може да бъде заменен с готова фурна с подходящи размери.


Външният вид и структурата на пещта
За полагане на мини фурна върху дърво е необходим огнеупорен хоросан. Можете да го направите сами от глина, но това ще отнеме повече време и резултатът ще зависи от качеството на глината и правилното определяне на съдържанието на мазнини в нея. Много по-лесно е да се доверите на производителите и да закупите готова топлоустойчива смес в магазина - в този случай продуктът ще остане да се разрежда с чиста вода в пропорциите, посочени на опаковката.
Размерите на компактната конструкция са 51 * 51 см, височината на огнището е 175 см. За укрепване на камината трябва да се вземат шамотни тухли - тя не се страхува от директен контакт с пламъка и не се напуква. Стените на мини-фурна за селска къща са изложени с червена тухла.
Разход на материали:
- керамични тухли - 170 броя;
- огнеупорен хоросан за зидария - 35–40 литра;
- врата за камината с размери 23 * 25 см;
- врата на вентилатора (13 * 14 см);
- врата за почистване (13 * 9 см);
- решетка (25 * 18 см);
- резе (12 * 34 см);
- стоманен лист;
- стоманена тел - около 2,5 м;
- покривен материал за хидроизолация.
Схема на зидария и чертеж на фурната
Първият ред, както винаги, е изложен без хоросан. На втория ред се монтира вентилационна врата с помощта на стоманена тел за закрепване и се полага тава за пепел. На четвъртия ред се полага решетка, осигуряваща празнина от около 4 мм между решетката и зидарията.


Обикновена схема за зидария


Горни редове и чертеж на фурната
Полагането на петия ред започва с инсталирането на горивна врата. Касата на вратата е обвита с азбестов кабел, а вратата е зазидана в зидарията с помощта на стоманена тел. След това те следват по схемата: оформят фурна, комин, тръба.


Подготовка на вратата
Необходими инструменти
Имате нужда от малко инструменти, те могат лесно да бъдат закупени във всеки железарски магазин:
- мистрия, или както я наричат още, мистрия;
- удобен чук за кирка;
- ниво на сградата;
- рулетка;
- отвес.


Освен това в процеса на работа ще ви трябват:
2 кофи (за вода и хоросан), строително сито, корито, където да се пресява пясъка.
Строителни материали за мини фурна
Първо трябва да подготвите глината. За целта се залива с вода и се оставя за около един ден. Можете да ускорите процеса, за това го месете старателно на всеки пет до седем минути, за предпочитане с миксер, за един час. Прецедете през сито. Пясъкът също трябва да се пресее предварително.
За да сгънете мини отоплителна печка, която ще заема площ от 0,4 кв. метър, ще ви трябва:
- 20 литра разтвор;
- 60 броя червени тухлени фурни;
- 38-40 броя шамотни тухли;
- врата на камината;
- врата на вентилатора;
- решетка;
- котлон;
- коминен клапан.


Вратите, решетката и плота трябва да бъдат чугунени.
Ако се справите без шамотни тухли, тогава това ще бъде модел на мини печка на дърва, а не на въглища. Дори най-висококачествените червени тухли ще се влошат с времето от високите температури, създадени от въглищното гориво. Като цяло, за да направите мини руска печка със собствените си ръце, просто трябва да следвате препоръките.
Отрицателни качества
Чугунените печки не са без недостатъци. Сред тях са отбелязани следните:
- Крехкост. Това се отнася за почти всички подобни продукти. Материалът има висок коефициент на чупливост, поради което изисква внимателно боравене. Страхува се от силни удари и падания.
- Голяма маса. Например фурна с мощност 9 kW тежи приблизително 70 кг. В частна къща за инсталирането на такова устройство е необходимо да се направи надеждна основа.
- Нестабилност при внезапни промени в температурата. При запалване на печката не възникват повреди, тъй като устройството се загрява и охлажда постепенно. Но ако случайно студена вода падне върху гореща повърхност, чугунът може да се напука.
- Цена. Разбира се, цената е много по-висока от другите аналози. Това обаче е оправдано: продуктът е високо надежден и проектиран за дългосрочна експлоатация.
- Пожарна безопасност. Не съхранявайте запалими материали в близост до такава пещ. Те могат да се запалят от високата температура на стените на устройството.
- Нюансите на работа. Помещението, в което е монтирана чугунената печка, не трябва да има висока влажност. Това може да причини ръжда. Всяка повреда изисква незабавен ремонт. Моделите на чуждестранни производители се отопляват само с пелети или торф, така че няма нужда да се поставят дълги трупи в тях.
Местоположение и подготовка на основата
Най-доброто място за такава печка, ако лятната вила се състои от една стая - в центъра. В други случаи трябва да се съсредоточите върху кейовете или кръстовищата на вътрешните прегради. Не забравяйте да вземете предвид правилата за пожарна безопасност.


Не е необходима основа за конструкция с такъв размер.Въпреки това, в основата е необходимо да поставите дебела, твърда дъска, фиксирана със закъснения, отгоре - огнен слой. Това може да бъде обикновен азбестоциментен лист.
След това подредете хидроизолационен слой от полиетилен и покривен филц с размери около 80 на 55 см. Изсипете тънък слой пясък.
Процедурата за полагане на тухлена фурна със собствените си ръце
Следващият етап е изграждането на самата печка:
- На първия ред разтворът не се прилага. 12 парчета са разположени строго хоризонтално върху пясъка. Върху глинесто-пясъчния хоросан се поставя вентилатор. Вратата е обвита с азбестов картон, обвита с шнур. Закрепването се извършва с тел.
- След това се извършва полагането на втория ред.
- В третия ред, облицован с огнеупорни тухли, строго над вентилатора, се поставя решетка.
- Тухлите в четвъртия ред отиват до ръба.
- В комина е осигурена опора за преградата. Задната стена е поставена без използване на хоросан. След това тези тухли ще трябва да бъдат премахнати. След това поставят противопожарната врата, обвивайки я с азбестов кабел. Временно се използват няколко тухли за закрепване. Закрепете с тел.
- Петият ред е разположен плоско, като четвъртия.
- Тухлите от шести ред отиват до ръба.
- Тухлите в седмия ред отново се полагат плоски. За пакетирането между редовете трябва да започнете с тухла, отрязана с размер три четвърти. След като са поставили две тухли с ръб, те започват да изграждат задната стена.
- Осмият ред ще затвори вратата на камината. За да насочи огъня към центъра на плота, тухлата се поставя под ъгъл. Плътността се осигурява с мокър азбестов кабел.
- Деветият ред също се полага с помощта на азбестов шнур. Особеността на този ред е, че той е леко изместен назад, така че вратата да остане отворена.
Заключителни дейности
Още три реда тухлена зидария са направени за свързване към тръбата. След изваждането на "избитите" тухли каналите на пещта незабавно се почистват от строителни отпадъци. Периметърът на конструкцията е внимателно покрит с цокъл.
Побеляването или облицовката на пещта се извършва след пробно запалване.
Само след като варосаната или покрита с плочки мини фурна е напълно суха, тя може да се използва. За да може мини печката за лятната резиденция да се хареса дълго време, не трябва да бързате да я запалвате. Оставете го да престои седмица-две с отворени врати.
Не се препоръчва използването на въглища веднага; необходимо е да се даде време на печката да се загрее първоначално с чипс.
Много частни къщи се строят на достатъчно голямо разстояние от града, в резултат на което е невъзможно да се инсталират централни комуникационни системи в тях. Това включва отопление, което трябва да бъде автономно. Традиционният начин за отопление на стаите се счита за печка, която можете да направите сами, а за това най-често се използва тухла.
Този дизайн работи върху дърво, което е достъпен вид гориво. По този начин за малки сгради мини фурната от тухли се счита за идеално решение, което е с малки размери и също така е лесно да се създаде.
В допълнение към несъмнените ползи от използването на това оборудване трябва да се отбележи, че тухлена мини фурна създава уютна и приятна атмосфера във всяка сграда. Такъв дизайн е подходящ не само за частна къща, но и за лятна резиденция, а външният му вид и функции могат да бъдат напълно различни, така че можете да изберете продукт, който идеално се вписва в стаята и ще има необходимите параметри.
Промишлени инертни материали, изработени от метал
Модерен чугунен уред за отопление и готвене.
Най-ефективните индустриални уреди за отопление и готвене са чугунени аналози с продължително изгаряне. Те са спестени от основния недостатък на конструкциите на твърдо гориво - честото зареждане с гориво. Инструкцията гласи, че такива агрегати могат да работят половин ден на една порция гориво.
Избор на чугунена печка
Когато избирате единица, вземете предвид такива точки.
- Изпълнение на пещта... Чугунените агрегати с дълго изгаряне могат да създадат комфортен температурен режим в помещения с площ 80/150 m². Декларираната мощност (максимална) на някои от моделите е достатъчна за нагряване до 250 m².
- Видът на използваното гориво също е важен фактор. Най-добрият вариант е да изберете универсална печка, която може да се изстрелва с всички видове твърдо гориво: въглища, дърва, дървесни и торфени брикети, пелети. Цената му не се различава много от обичайните му колеги.
- Допълнителните възможности на устройството са важни за надеждността и лекотата на използване на устройството.... Например горивото може да се зарежда ръчно или автоматично. Също така е възможно да се регулира топлопредаването на пещта с помощта на вградения термостат.
- Печките с котлон нямат воден кръг, поради което не са обвързани с определена зона на сградата.
- Съвременните дизайни за отвеждане на дим правят възможно монтирането на печката във всяка точка на избраната стая.
Забележка! Чугунена отоплителна печка с вграден котлон не е необходимо да се свързва към отоплителната система на къщата. Той отоплява помещения с въздушна конвекция. Този метод е добър с това, че постига висока производителност и ефективност на печката.
Положителни и отрицателни характеристики на мини фурната
Този дизайн има както плюсове, така и минуси. Ето защо, преди самата работа, свързана с изграждането му, трябва да оцените всички характеристики на това оборудване.
Направи си сам тухлена фурна, на дърва, притежава следните положителни параметри:
- Полученият дизайн има дълъг експлоатационен живот, в резултат на което можете да получите висококачествена и атрактивна печка в продължение на много години.
- Загряването се случва бързо, а също така, дори след края на изгарянето на горивото, печката ще отдаде топлина на помещенията за дълго време.
- Можете да направите оборудването със собствените си ръце, но за това трябва да има предварително изготвена диаграма на цялата конструкция, след която можете да постигнете идеален резултат от работата.
- Стените на печката, направени от тухли, не се нагряват много по време на отоплението, така че има много малък шанс да се изгори.
- Ако се изгражда конструкция за лятна вила или малка селска къща, тогава тя може да бъде мини-печка, така че няма да заема много място.
- Ако желаете, можете да получите такава фурна, която ще бъде оборудвана с допълнителни елементи за готвене и други процеси, но в този случай трябва да се използва подходяща и подходяща схема, в която трябва да се изработят всички необходими нюанси на конструкцията.
- Ако гледате обучителното видео предварително, тогава самият процес на изграждане ще бъде изпълнен без проблеми и закъснения.
- Можете да направите пещ, която ще има желаната форма, размер и други характеристики, тъй като процесът се извършва самостоятелно.
- Схемата на бъдещия комин трябва да бъде разработена особено внимателно, така че печката да има висока ефективност, както и да е надеждна и безопасна за използване.
Тухлените мини фурни обаче имат не само предимства, но и някои недостатъци:
- Дори мини фурна на дърва, изработена от тухли, се нуждае от основа, тъй като има доста голямо тегло, така че ще бъде важно първоначално да отделите много време за оформяне на основата.
- Първо трябва да се формира ясна, качествена и правилна схема на бъдещата зидария, без която по време на работа могат да се допуснат много грешки, те могат да бъдат отстранени само след пълното унищожаване на вече създадената конструкция.
- По време на работа е наложително и винаги е необходимо да се използват и да се вземат предвид правилата и изискванията за безопасност, така че бъдещата печка да може да се използва по предназначение, без да се страхува да навреди на здравето или живота на хората.
Пещи за отопление на вили
Обхватът на отоплителните печки е широк, лесно е да се объркате в него, следователно, дори преди да отидете в магазина, трябва ясно да разберете какви функции трябва да има печката. За да направите това, струва си да разберете възможностите на отоплителните тела.


96be7b255fe7a372957510ef0493aadd.jpe 70160cf0235ae453a8e2744ed1d3e6b1.jpe
Мощност
Най-важната характеристика, чийто грешен избор ще направи пещта неефективна. Всички отоплителни устройства имат определена топлинна мощност, тя се изразява в kW. За нормално изолирана жилищна сграда изчислението обикновено се извършва по площ: общият брой квадратни метри на къщата се разделя на 10 и необходимата мощност се получава в kW.
За селска къща такова изчисление не е напълно подходящо. При избора на мощност трябва да се вземат предвид следните тънкости:
- материал на стени, подове и тавани и неговите топлоизолационни свойства;
- сезонност - къщата ще се използва ли през зимата, или отоплението е необходимо само в прохладните дни през пролетта, лятото и есента.
Най-голямата мощност на печката ще се изисква, ако къщата е направена по лека технология и се планира да пристигне в дачата през зимата, при студове. В този случай е необходимо да изберете печка с мощност, по-голяма от изчислената, или да инсталирате допълнителни отоплителни устройства.
Режим на продължително изгаряне
Някои печки за изгаряне на дърва могат да работят в режим на непрекъснато горене. Причинява се от специален режим на изгаряне на горивото - пиролиза. Пиролизните печки могат да работят върху дърва или пелети. При запалване дървото се загрява и процесът на разлагане започва в твърда фракция - въглища и пепел, и газообразен - дим.


Димните газове съдържат много горими елементи, в обикновените печки те не се използват напълно и излизат през комина, силно го загряват и отдават топлина на атмосферата. По този начин топлинният ресурс се използва в най-добрия случай с 60%.
В печките, оборудвани с режим на продължително горене, димните газове се изгарят в специална зона, това се нарича циркулация на дим. Димът преминава през тези канали и неговите горими компоненти изгарят, отделяйки топлина по стените на печката.
За успешното протичане на този процес е необходимо да се ограничи притока на въздух в горивната камера, за да предизвика тлеещи дърва за огрев и повишено образуване на дим. Регулира се с помощта на резе на вратата за горене, докато оптималният режим се избира емпирично.
Материал на корпуса и горивната камера
- Дебатът за това коя печка е по-добра, чугунена или стоманена, продължава отдавна. Каква е разликата?
- Теглото. Моделите от чугун имат по-дебели стени и масивна конструкция, така че са по-тежки, теглото им може да надвишава 250 кг. Ако подът в селската къща е дървен, може да се наложи да бъде укрепен, което ще доведе до допълнителни разходи. Стоманените модели са около два пъти по-леки.
- Устойчивост на корозия. Чугунът не корозира в слабо кисела среда - това е голям плюс за пещите, които се използват периодично. Температурната разлика по време на изпичането води до образуване на конденз в пещта. Смесвайки се с утаените върху тях сажди, водата образува слаба въглеродна киселина. Стоманените конструкции корозират при тези условия.
- Устойчив на прегаряне. Поради дебелите стени, чугунените модели са по-устойчиви на изгаряне дори при много високи температури.
- Цена. Стоманените модели са 1,5-2 пъти по-евтини от чугунените.
Евтините модели, популярни сред летни жители, обикновено се комбинират. Силно отопляемите и корозирали повърхности в тях са изработени от чугун, останалите конструктивни елементи са от стомана, което позволява да се съчетаят издръжливост и ниско тегло. Цената за такива устройства е в средния диапазон.
Допълнителни функции


Основната задача на отоплителните печки е бързото затопляне на къщата.
- ... В зависимост от модела те могат да бъдат оборудвани с допълнителни полезни функции:
- котлон, твърд или с горелки;
- възможността за свързване на отоплителен кръг, вода или въздух;
- декоративни елементи, които ви позволяват да създадете уютна атмосфера в дачата - панорамно стъкло във вратата на пещта, декоративни вложки, ковани решетки.
Дали тези функции са необходими или не е въпрос на лични предпочитания, но трябва да се има предвид, че тяхното присъствие влияе върху цената на печката.
Параметри на мини фурна


Тъй като тези дървени конструкции са с малки размери, тогава тяхното устройство се счита за опростено. Достатъчно е да изберете продукт, който ще заема само 0,5 кв. м. Полагане на тухли може да се извърши както на ръба, така и плоско. Този дизайн, който е лесен за изработка, отделя голямо количество топлина и осигурява равномерно и висококачествено отопление.
Тъй като мини фурната е с малки размери, теглото й не се счита за значително, така че основата не трябва да бъде твърде сложна и скъпа. Можете да направите конструкция буквално за един ден самостоятелно, ако предварително гледате обучителното видео, както и да подготвите чертежи, които напълно да опишат целия процес на предстоящата работа.
Производствен процес


Цялата работа може да бъде разделена на отделни етапи, които се изпълняват само в правилната последователност. На всяка работа трябва да се обърне много внимание, тъй като грешките на всеки етап могат да доведат до необходимостта от разглобяване на печката и коригиране на нарушения. Етапи на работа:
Основа
- Определяне на местоположението на бъдещата структура. Мини фурна, която работи на дърво, трябва да бъде разположена на място в стаята, където ще бъде безопасно да се използва, така че близо до нея да няма запалими елементи.
- Изготвяне на чертежи на бъдещия дизайн, които трябва да съдържат внимателни и точни изчисления и диаграми. Именно върху тях трябва да се съсредоточите по време на работния процес.
- На избраното място трябва да разглобите подовото покритие, за да стигнете до основата, тъй като тук ще трябва да се направи основата за бъдещата печка. Това произведение може да бъде разгледано внимателно на специално видео, представено в Интернет. Обикновено се създава стандартна бетонна основа, всички следващи стъпки трябва да се извършват само след като циментовият разтвор се втвърди напълно.
- Върху замръзналата основа се полага слой покривен материал, който изпълнява функцията на хидроизолация. В този случай е важно да се гарантира, че няма дупки или други възможности за проникване на влага до основата.
- Върху хидроизолационния слой се полага пясък, който трябва да бъде чист и с високо качество.
Подреждане и структурни елементи
- След това започва директното полагане на мини фурна, работеща върху дърво. За това се създава първият ред, за който се използват малък брой тухли и най-често се използват 12 елемента. Те се закрепват заедно с надежден крепеж, а също така се подравняват и регулират с помощта на ниво и подходящо оборудване. Равномерността на разположението на всеки елемент трябва да се следи особено внимателно, тъй като от него зависи равномерността и безопасността на използването на крайната конструкция.
- Към първия ред се полага глинен хоросан, след което се полага вторият ред и тук можете веднага да инсталирате врата на вентилатора. Тази врата трябва да бъде обвита с азбест, за да се избегнат ненужни пролуки и дупки.
- Следващата стъпка е поставянето на третия ред на пещта на дърва. За това шамотната тухла се счита за най-оптималния избор.
- След това се монтира решетка, която се намира под вентилатора.
- При създаването на четвъртия ред зидария е важно всички тухли да се положат по ръба, а задната стена обикновено се създава чрез полагане на тухли със специална издатина навън и също така трябва да се има предвид, че глиненият разтвор не се използва този процес.
- След това е монтирана врата на пещта, която, подобно на другата врата, е обвита в азбест.Най-добре е тази врата да се отваря нагоре.
- Петият ред зидария е положен плоско. В този случай е важно да повторите контура и характеристиките на четвъртия ред.
- Шестият ред се полага с ръб, седмият отново се прави плосък. Не трябва да забравяме и за дресинга.
- Осмият ред зидария трябва напълно да покрива вратата на пещта, над която е монтирана наклонената тухла. Важно е да се създаде перфектно уплътнение между плочата и тухлите.
- Полагането на деветия ред трябва да се извърши с определено отместване, което ще позволи на противопожарната врата да се държи добре отворена, когато е необходимо.
- По време на полагането на десетия ред започва образуването на комина, така че е важно да се реши какви параметри ще има коминът. Той може да бъде вертикален или хоризонтален, прав или камбанен тип, директен или контрапоток, както и комбиниран. Всеки може да се формира независимо, ако гледате видеоклипа за създаването му от специалисти.
След създаването на печката и комина избелвайте конструкцията, а също така се уверете, че няма големи пропуски и други проблеми, но ако са налице, те трябва да бъдат елиминирани. За да предотвратите разсипването на пясък по време на работа на конструкцията, можете да забиете специален цокъл по нейния кант. Той е не само защитен елемент, но също така ще подобри външния вид на фурната.
По този начин процесът на създаване на мини фурна на дърва се счита за доста прост и ясен. С правилния подход към формирането на този елемент може да се очаква трайна, надеждна и напълно безопасна за употреба конструкция, която не само ще бъде средство за отопление на помещения, но и ярка необичайна декорация, която увеличава комфорта при използване на конструкцията като цяло. Поради малкия размер на печката, тя няма да заема много място в малка къща, но ще има висока ефективност, която осигурява цялостно и равномерно отопление на лятна къща или частна сграда.
Бебешка печка с печка и фурна
Друга мини фурна за лятна резиденция има размери в основата само 51 * 64 см, докато дълбочината на камината е 50 см. Моделът е идеален за селска къща или лятна кухня. Като гориво могат да се използват дърва за огрев, въглища, торф, брикети.
Дизайнерски характеристики и материали
Въпреки малките си размери, компактната печка е доста функционална и е снабдена с котлон и фурна, което позволява да се използва не само за отопление на помещението, но и за битови нужди. Според прегледите на тези, които вече са построили този помощник в своята селска къща, чайникът на печката кипи буквално за минути.
Компактността беше запазена благодарение на вертикалното разположение на всички елементи. Коминът е с напречно сечение от една тухла. Отработените газове преминават през каналите, разположени зад камерата за готвене, след което влизат в хоризонталния комин, заобикалят фурната от двете страни и влизат в комина.


Схема на мини фурна за селска къща или лятна кухня
За строителството ще ви трябват материали:
- червена тухла - 220 броя;
- хоросан за зидария от глина или готов - около 50 литра;
- решетка;
- стоманена ламарина (предварителна пещ) с размер 50 * 70 см;
- стоманена лента с дебелина 4 мм с параметри 350 * 25 см;
- шисти лист 51 * 30 см;
- затворен вентил - 2 броя;
- врата на камината;
- 3 почистващи врати;
- врата на вентилатора;
- фурна (32 * 38 * 42 см);
- печка (38 * 35 см) с една горелка.
Зидария
Първият ред на тухлена мини фурна се полага без хоросан. След втория ред се монтира вентилационна врата, поставя се следващият ред и горивната камера започва да се оформя. Решетката се полага без хоросан. Последователната диаграма ясно показва къде и как трябва да бъдат монтирани вратите, печката, фурната и резетата.


Схема на зидария за миниатюрна печка с печка


Продължаване на поръчката


Поръчка на горната част на фурната
За да се предпазят керамичните тухли от огън, се извършва облицовка - шамотните огнеупорни тухли се полагат в отделен ред.Важно е да запомните, че различните видове тухли не могат да бъдат свързани помежду си - те имат различни температури на разширение. Неспазването на това правило води до пукнатини.


Принцип на подплата
Последователност на работата
След като сте решили и избрали правилното място, обърнете внимание на повърхността. Важно е той да е направен от добре фиксирани, дебели и трайни дъски. Поставете 78 x 53 cm найлоново фолио върху мястото на печката. Направете пясъчна възглавница с дебелина 1 см.
Първи ред. На пясъка трябва да изложите 12 тухли, не правете крепежни елементи между тях. Подравнете на една и съща височина, така че да са точно в хоризонтално положение.
Втори ред. Нанесете глинения разтвор в немазен слой и монтирайте вратата на вентилатора, като предварително я увиете в азбестов картон. Ние фиксираме вратата с тел.
Изграждаме третия ред с огнеупорни тухли. Сега можете да инсталирате чугунена решетка за горивната камера над вентилатора, но само ако редът е напълно завършен.
Четвърти ред. Поставяме тухлата на ръба в средата на комина. Поставяме багажника за стената от вътрешната страна на фурната. Правим обратната страна с издатина от външната страна без глинен хоросан. След това тези тухли могат да бъдат избити, за да се почисти кладенецът. Увийте вратата на камината с азбестов кабел, така че да може да се отвори отдолу нагоре. Инсталирай. Поправяме го с тел и поставяме няколко тухли за известно време. Инсталираме едната зад вратата, а втората отгоре.
Поставете петия ред на слой. Повтаряме очертанията на последния ред.
Поставяме шестия ред с ръб. Разтриваме стените на печката с влажна кърпа.
Поставете седмия ред в слой. Правим куп от три четвърти тухла с последващи редове. Поставете отново няколко тухли на ръба. Изграждаме задна стена близо до печката.
Поставяме осмия ред, така че да блокира вратата на пещта. Не забравяйте да инсталирате наклонена тухла над горивната камера. Благодарение на него пламъкът в печката ще клони към центъра на горелката на чугунната печка.
Разстиламе леко намокрена азбестова корда. Монтираме чугунната печка. Това ще създаде херметично уплътнение между тухлите и плочата.
Преместваме леко деветия ред, за да държим вратата отворена.
Десети ред. Оформяме комин с удължение отзад. Коминът трябва да е прав.
Единадесети ред. Напълваме клапана с азбестов кабел, предварително смазан с глинен разтвор и инсталираме. Сега коминът е плътно свързан с металния. Ако тръбата се наклони настрани, тя трябва да бъде покрита с три реда тухли.
Отстранете мръсотията от комина. За да направите това, трябва да извадите тухлите от четвъртия ред. Бяла фурна. Покриваме стените и металната част. В вар за варосване трябва да излеете малко количество мляко и синьо. Важно е добре да се покрият всички шевове от тухли и чугунени повърхности.
Инструкции стъпка по стъпка за направата на мини фурна
Имайки предвид оформлението на мини фурната за лятната вила, нека се захващаме за работа.


Етапи от 1 до 12


Стъпки 13 до 24


Етапи от 25 до 35
Полагане от 1 до 12 реда
Първият ред е изложен, а във втория е необходимо да се осигури място за вратата на вентилатора. Редовете трябва да бъдат покрити с разтвор. Преди да инсталирате вратата на вентилатора, тя трябва да бъде обвита с азбест и вратата ще бъде закрепена с тел.
След това се поставя 3-ти ред, в който се използват огнеупорни тухли и смес от огнеупорна глина.
По време на полагането на 5-ти ред се монтира решетка. Започвайки от този ред, до 15-ти, зидарията трябва да се извършва с огнеупорни тухли.
На 6-ти ред трябва да се монтира врата на камината, с която да се извърши същата работа, както при вратата на вентилатора (обвийте с азбест, закрепете с тел).
Разпределете 7-ия ред според оформлението. Всеки слой трябва да бъде покрит с разтвор. Разпределете 8, 9, 10, 11 и 12-ия ред в съответствие с оформлението.
Полагане от 13 до 24 реда
От 13-ия ред започваме да оформяме горивната камера и вертикалните канали. Основното тук е внимателно да следвате поръчките, в противен случай можете да нарушите правилността на дизайна.
На 15-ия ред е необходимо да се сложи слой глинесто-циментов разтвор. Той ще укрепи дъното на почистващата камера, след което можете да инсталирате самата врата.
Сушене на фурната
Затворете всички празнини между оригиналния ред тухли и пода. Забиваме цокъл по ръба на печката, това ще предотврати изсипването на пясък и ще придаде прекрасен вид. В края на цялата работа фурната ще трябва да се загрее за първи път с чипове и хартия или картон. След това оставете вратите и зоните за готвене отворени, докато фурната изсъхне. След това ще бъде възможно да го удавите с пълна сила.
Този дизайн е подходящ за лятна резиденция или малка жилищна сграда. Ще бъде удобно за готвене на храна, ще спести електричество или газ. Фурната ще може да издържа на всички температурни колебания. Следвайки тези прости инструкции, фурната ще ви служи за години напред. Гледайки го, ще изпитате естетическо удоволствие и гордост, че сте изложили всяка тухла със собствените си ръце.




