Целенасочеността на инсталацията на колекторната система
Но е невъзможно да се инсталира колекторна отоплителна система в апартамент на стари многоетажни сгради, тъй като там вече работи отоплителна система за чай. За да работи колекторната система, е необходимо да се затвори хидравличната верига, което е необходимо за създаване на циркулация на охлаждащата течност в системата. Ако в един апартамент се създаде затворена хидравлична верига, останалите апартаменти ще бъдат откъснати от отоплителната система.
Системата за отопление на колектора също не може да се използва в райони с нестабилно захранване, тъй като когато циркулационната помпа спре, водата ще замръзне и тръбите ще се провалят. Но ситуацията може да бъде подобрена до известна степен чрез използване
Подово отопление и мястото, заето от колектора с разходомери
Особеността на топъл под като отоплителна система е, че отопляемата охлаждаща течност, движейки се по отоплителния кръг, прехвърля част от топлинната енергия към повърхността на пода. По този начин, поради нагряването на пода, топлината се предава на въздушната маса, циркулираща вътре в помещението в посока отдолу нагоре. Редица устройства участват в подаването на топла вода към отоплителните кръгове, интензивност и дебит, включително:
- трипътен клапан;
- циркулационна помпа;
- колекционер.
Контролът върху разпределението на охлаждащата течност се извършва от разходомера за топъл под. Това устройство играе една от ключовите роли в работата на цялата изпомпваща и смесителна група. Колекторите за подово отопление са предназначени да доставят топла вода и да събират отпадъчен топлоносител за по-нататъшното му използване в тръбопровода на отоплителната система. В помпения и смесителен блок горещата вода се смесва от източник на отопление с охлаждаща течност, върната във веригата - обратен поток. Функционалността и ефективността на подово отопление се основават на този принцип на работа.

Смесител с ротаметри за системи за подово отопление
Заедно с работата на предпазните клапани, ротаметрите са проектирани да регулират температурата на охлаждащата течност в отделни водни подови вериги. Благодарение на тези устройства необходимият обем пречистена вода се подава към системата за подово отопление. С други думи, това оборудване следи количеството охлаждаща течност във водната топлинна тръба и следователно функционалността на цялата отоплителна система.
Колекторна отоплителна система. Принципите на нейната работа.
Как да инсталирате смесител за топъл под със собствените си ръце
Както казах по-рано, този тип отоплителна система се използва най-често в две или повече етажни сгради. Но никой няма да ви забрани да го използвате в едноетажна къща. Всичко зависи от целесъобразността. В допълнение към отоплителните устройства към колектора може да се свърже котел за непряко отопление или отоплителна система за басейн или оранжерия. Така че този вид трик може да се използва в едноетажна къща. Основното нещо е да не забравяме, че в системата за отопление на колектора може да има само принудителна циркулация на охлаждащата течност. Това означава, че трябва да има поне една, а най-често няколко циркулационни помпи. Разглеждаме снимката по-долу:


Фигурата показва диаграма без котел за непряко отопление. Това се прави тук, защото се използва двуконтурен газов котел. Е, ако котелът е едноконтурен, тогава всичко ще изглежда малко по-различно:


Той има всичко, което съвременните собственици на жилища обичат:
- Радиатори.
- Подове с водно отопление.
- Резервен електрически котел.
- Котел за непряко отопление.
Ако не броите заедно с котелната помпа, тогава ще има 5 от тях. За да не могат циркулационните помпи да създават разлика в налягането между колекторите за подаване и връщане, тук се използва хидравлична стрелка. Благодарение на него циркулационната помпа на котела винаги може да осигури необходимия дебит на топлоносителя през топлообменника на котела, което има положителен ефект върху експлоатационния му живот. Контурите за подово отопление са свързани чрез своите колектори с автономни циркулационни групи. Тук трябва да вземете предвид възможността за аварийно прекъсване на електрозахранването. За да осигурите работата на "мозъка" на котела и циркулационните помпи по време на изключване, ще ви трябва. Без него циркулацията на охлаждащата течност в системата ще спре и това е изпълнено с всякакви неприятни последици.
Основното предимство на такава отоплителна схема е възможността да се изключват отделни клонове, без да се спира цялата система. Тази функция помага много, когато е необходим спешен ремонт. Е, недостатъкът може би ще бъде цената на цялото това удоволствие. Въпреки че, ако правите за себе си и за дълго време, тогава има смисъл да правите всичко според ума си. В противен случай скъперничеството ви ще ви накара да платите два пъти! С тази оптимистична бележка ще завърша тази публикация в очакване на вашите въпроси и харесвания в социалните медии!
Шкафове за колектори
За да осигурите пълна съвместимост на всички подови отоплителни тела в продуктовата линия на Valtec, можете да изберете шкафа на колектора с подходящия размер. Характеризира се с увеличена дълбочина и е проектиран да бъде поставен в колектори, помпено-смесителни модули и други елементи на отоплителни системи.
Шкафът Valtek е изработен от поцинкована стомана с антикорозионно емайлирано или полимерно покритие. На страничните стени е предвидена перфорация, която е необходима, за да може тръбата, подавана към колектора, да преминава свободно вътре. Вратата има ключалка.
Помпа-смесител VALTEC
Във вътрешността на шкафа има вградени релси, за да се улесни инсталирането на оборудване върху тях. За регулиране на дълбочината се използва динамична рамка, а прибиращите се крака регулират височината.


Шкаф за колектор за подово отопление
Анализирайки предимствата на този тип продукти на Valtec, може да се отбележи, че шкафът е с компактни размери и е лесен за сглобяване. Той е безопасен за заобикалящата атмосфера и е лесен за работа. Благодарение на интелигентната система за закрепване, цялото оборудване за каишки се побира вътре. Достъпът до всяко устройство е улеснен и не е необходимо да се инсталират допълнителни системи за сигурност, тъй като е достатъчно да затворите шкафа с ключалка.
Електромагнитни разходомери
Свързване на топъл под с термостат с термостат
Техният принцип на действие се основава на закона за електромагнитната индукция, според който ЕМП се индуцира в електропроводима течност, преминаваща през електромагнитно поле, което е пропорционално на скоростта на потока (проводника).
Такива разходомери са намерили приложение в обемни измервателни системи за топлоносител и вода в промишлени и електроцентрали. Недостатъкът е високата цена и теглото за диаметри над 300-400 мм, сложността на отстраняването за проверка.
Електромагнитните водомери за пръчки работят на принципа на потапяне на сензора в течност, където се измерва дебитът. Такива измервателни уреди определят потока на студена вода в напълно запълнени тръбопроводи.
Принципът на действие на разходомера. Инсталиране и настройка
При инсталиране на колектора и свързване на отоплителните кръгове на подово отопление, разходомерът се поставя върху колекторен колектор, в който се влива отпадъчна вода. Когато температурата на охлаждащата течност достигне зададената стойност, се задейства клапан в обратната част на колектора, стесняващ или напълно блокиращ лумена за воден поток. За да работи системата по описаната схема, помпено-смесителният блок и колекторът са оборудвани с термостати.


Колба с разходомер със скала за дебита на охлаждащата течност
За да може нивото на водата в прозрачната колба да съвпада с разделенията на хоризонталната скала, устройството трябва да заеме вертикално положение. Следователно, за нормална работа на групата за наблюдение, колекторът трябва да бъде инсталиран с помощта на отвес или ниво на мехурчета, като се постигне строго хоризонтално положение на компонентите на оборудването. Инсталирането на колектор с отклонения може да доведе до неизправност на отоплителното оборудване.
Важно! Довършването на помещенията, инсталирането на шкаф за колектори може да повреди отделни елементи от смесителната група, поради което блоковете и устройствата на отоплителната система трябва да бъдат разположени компактно.
Монтажът и настройката на устройствата се извършва в съответствие с инструкциите за монтаж и експлоатация, обикновено в следната последователност:
- с помощта на ключ завийте разходомера в технологичния отвор на монтажната част на колектора;
- като завъртите колбата на разходомера обратно на часовниковата стрелка, подгответе устройството за работа;
- демонтирайте фабричния предпазител (обикновено под формата на пръстен);
- задайте необходимото налягане, като завъртите месинговия пръстен в корпуса по посока на часовниковата стрелка до желаната маркировка - местоположението на поплавъка ще демонстрира направената настройка;
- за да предотвратите механични повреди на устройството, затворете месинговия пръстен със специална плоча;
- проверете работата на устройството като част от цялата отоплителна система.
Избор, монтаж и настройка на разходомери
Кой електрически котел за топъл под е по-добре да изберете
Водно топлоизолиран под, като правило, се състои от няколко вериги от пластмасови тръби. Топлата вода, движейки се по тях, отделя топлината си и се връща през връщащата част на системата. Колекторът (гребенна система) на пода с топла вода е предназначен за събиране на охладена вода, смесване и подаване на загрята вода. С други думи, това е блок, който контролира работата на системата за подово отопление.
За регулиране на температурата в колектора са предвидени разходомери. Тези устройства контролират дебита на охлаждащата течност, в този случай на водата.
Защо имате нужда от разходомер
Теоретично е напълно възможно да се направи без монтаж в колектора на разходомера. Ако обаче не инсталирате това устройство, тогава:
- В различните стаи температурата ще бъде различна;
- Възможно е прекомерно потребление на електроенергия за отопление на водата в системата;
- Различните вериги ще се нагряват неравномерно.
Може да се даде прост пример: баня и спалня. Газов или електрически котел загрява водата по същия начин за банята и за спалнята. Но банята е поне 3 пъти по-малка от спалнята.
Съответно ще бъде горещо в банята и хладно в спалнята със същото водоснабдяване на системата за подово отопление. Тази ситуация се дължи на факта, че общата дължина на пластмасовите тръби в района е много по-голяма в спалнята.
За да се регулира комфортен температурен режим в целия апартамент, е желателно инсталирането на такова устройство.
Съвет! Когато инсталирате водно топъл под, трябва да се стремите да направите контурите на тръбите с приблизително еднаква дължина. Това ще спести разходи за енергия и ще позволи по-точен контрол на температурата.
Принцип на действие
Устройството е инсталирано на кранове за връщане на колектора. Когато се достигне предварително определена температура в системата на колекторния клапан, луменът на енергийния носител е стеснен или напълно затворен. Този принцип на работа е възможен при пълна автоматизация на системата. За това колекторът е снабден с температурен сензор.
Самият разходомер се състои от няколко части:
- Жилище;
- Прозрачна колба с везна;
- Плувка.
Колбата обикновено е направена от трайно стъкло, тялото може да бъде пластмаса или месинг. Поплавъкът е разположен вътре в колбата, той служи като индикатор за скоростта на охлаждащата течност. Разходомерът се нарича още плаващ разходомер.
В автоматичния колектор на водно подово отопление, балансирането на потока на охлаждащата течност се извършва с помощта на температурен сензор. Ако последното не е предвидено, тогава разходомерът може да се регулира ръчно.
Инструкции стъпка по стъпка за инсталиране и настройка
H2_2
Ротаметърът е инсталиран строго вертикално. За да се гарантира, че нивото на течността в колбата е точно, самият колектор също е монтиран според нивото. Ако тръбопроводът на колектора е монтиран криво, регулирането на температурата ще бъде неправилно.
Тъй като довършителните работи често се извършват след монтажа на колектора, е необходимо уредът и неговите компоненти да бъдат защитени от възможни повреди. Най-добрият вариант е да направите ниша в стената за него или специален шкаф.
Монтаж и настройка:
- С помощта на гаечен ключ завийте разходомера в процеса на входа на връщащата линия на колектора;
- Завъртайки мембраната (колбата) обратно на часовниковата стрелка, отворете измервателното налягане;
- Отстранете фабричния защитен пръстен;
- Завъртете месинговия пръстен на корпуса по посока на часовниковата стрелка до желаната глава. Това балансира дебита на енергийния носител. Поплавъкът върху скалата ще показва зададената стойност;
- Затворете месинговия пръстен с покривна плоча. Това трябва да се направи, за да се избегнат повреди на устройството, особено ако водното подово отоплително тяло не е затворено в ниша или шкаф;
- Проверете работата на системата.
По време на работа на монтажа крушката остава отворена, така че да може да се види нивото на водния поплавък. Ако по време на работа е необходимо балансиране, диафрагмата просто се завърта в желаната посока.
Избор на разходомер за водно топъл под
Висококачествените разходомери с променлива площ трябва да бъдат придружени от гаранция за 5-7 години стабилна работа. Препоръчително е да изберете разходомери с месингово тяло
Също така трябва да обърнете внимание на колбата, тя трябва да бъде направена от прозрачно стъкло с добра видимост на скалата на нивото на водата. Съществува обаче мнение, че е по-добре да изберете продукти с мембрана, изработена от устойчива на удар пластмаса.
Когато избирате устройство, трябва да вземете предвид площта на тръбопроводната система
Също така е важно дали възелът е автоматизиран или не. В първия случай балансирането ще бъде изключително рядко, механизираните колектори изискват повече внимание.
Източник:
Характеристики на персонализиране на колектор на Valtec без разходомери
Ако колекторът не е оборудван с разходомери, а само с клапани, ще трябва да настроите дебита чрез докосване. Това не е фигуративно, а буквално. Знаейки дължината на всяка верига, на най-дългата отваряме потока до максимум. Останалото закрепваме приблизително. Можете да преброите броя на завъртанията на клапаните и да се ръководите от тях.


Колектор за подово отопление без разходомери
След това започваме отоплението и изчакваме подът да се затопли. Ако има термометър, ние измерваме температурата на пода в зоната на действие на всяка верига. Няма термометър - усещаме и сравняваме усещанията. Въз основа на резултатите коригираме позицията на клапаните и отново изчакваме няколко часа. Действаме по този начин, докато резултатът не е задоволителен. По принцип колектор на Valtec с клапани без разходомер не е толкова труден за настройка.
Оценка на настройката на колектора въз основа на температурата на връщане
Тази проверка се основава на факта, че при правилно зададен дебит температурата на връщане във всички вериги трябва да бъде еднаква. За този тип настройка или проверка са необходими специални термометри. Те се монтират във връщащата тръба между входа на колектора и тръбата.


Можете да настроите колектора с помощта на термометър на връщане
За еталон се приема температурата на най-дългата верига - всички останали са настроени към нея. Само резултатите от настройката ще трябва да бъдат коригирани след няколко часа. Когато подът, затоплен от управляваните вериги, се затопли или охлади (в зависимост от регулацията) и температурата на връщане се променя отново. Няколко такива настройки ще са необходими, докато разликата стане незначителна.
Ако решите сами да започнете да инсталирате топъл под, тогава неизбежно ще се сблъскате с въпроса как да го свържете правилно, така че да е ефективен и да отоплява пода и цялата стая. Ако си представяте целия процес, можете да се уверите, че ключът към ефективността на системата е правилното свързване на колектора за подово отопление, който е отговорен за контрол на температурата.
Колекторът изглежда като обикновено парче тръба с няколко отвора от едната страна, които служат като изходи. Двойка такива прости конструкции всъщност е отговорна за управлението на водно отопляем под. Нека да разберем за какво са предназначени тези изходи и как да свържем колектора за подово отопление.
Ръчно регулиране на температурата на отоплителната среда


Методите за контрол на температурата ще зависят изцяло от използваното оборудване. Например, ако е инсталирана система с температурен контролер и серво задвижване, тогава настройката се извършва съгласно инструкциите от производителя на това устройство. В този случай настройката се извършва в автоматичен режим. Сега ще разгледаме ръчен метод за задаване на температурата с помощта на термични глави.
Монтажът на термични глави може да се извърши както за подаване, така и за връщане на охлаждащата течност.
На първо място, системата към топъл под трябва да бъде изцяло напълнена с охлаждаща течност и без въздух
Но тук е важно да не бързате, в противен случай може да се образуват въздушни задръствания. Ако връзката е направена от котела, преди да пуснете водата в отоплителните кръгове, затворете всички кранове
След това отворете подаването / връщането на един контур, като го напълните с охлаждаща течност. Въздухът от него трябва да излиза през отвора за въздух. Сега включете циркулационната помпа, така че охлаждащата течност да започне да се движи в този контур. В същото време включете температурата на котела до 35 °. С докосване трябва да почувствате, че горещата вода е течала по връщането и подаването в отоплителния кръг. Ако всичко работи правилно, затворете този цикъл и отворете нов. Използвайки този метод, вие помпате и проверявате всеки контур на отоплителния кръг. Когато настроите всяка верига, отваряте всички кранове и регулирате необходимата температура чрез докосване. В някои панти кранът ще трябва да се отвори напълно, докато в други е достатъчно леко да се отвори.


Температурата на охлаждащата течност във всяка верига може да бъде различна. Има няколко причини за това, като например дължината на цикъла. Колкото по-къс е контурът, толкова по-бързо се затопля и обратно.
По този начин се извършва ръчен контрол на температурата. Достатъчно е да го изпълнявате веднъж годишно. Но тук е важно да се вземе предвид нюансът. Системата за подово отопление е инерционна. Какво означава това на практика? Ако сте направили промени в една от пантите, ще трябва да изчакате няколко часа, за да усетите ясните промени във вътрешната температура.
Ако сте инсталирали разходомери на колектора, тогава разликата между показанията може да достигне до 0,5 литра.
Как работи колекторът
Водните подове се полагат по различни начини, например бетон или под, но независимо от избраната технология е необходимо да се закупи и инсталира колекторен шкаф.
В бъдеще в него ще бъдат инсталирани две тръби:
- захранване, което напуска котела и подава гореща охлаждаща течност към системата; връщаем, който изпълнява абсолютно противоположна роля: служи за събиране на вода, която вече е била изразходвана и е имала време да се охлади. Той се връща обратно в котела и процесът се повтаря отново.
Цикличността на процеса се осигурява от друг вграден компонент на системата - циркулационна помпа. По един или друг начин, по време на работата на топъл под, да речем, по време на ремонтни дейности, системата трябва да бъде изключена. За това всяка от тръбите е снабдена със спирателни клапани. Пластмасова тръба и метален спирателен вентил са свързани помежду си чрез компресионен фитинг.След това към клапана е свързан гребен, монтиращ отдушник за въздух от единия край, и отводнителен клапан от другия. След като сглобите шкафа, преминете директно към инсталацията. И само като имате гребен, монтиран на стената, можете да отрежете тръбите на контура по дължината.
Комбинирана отоплителна схема VALTEC
Бихме искали да Ви обърнем внимание на пример за модерна енергийно ефективна отоплителна система, базирана на оборудване VALTEC. Той е предназначен за селска къща или друг обект с автономен източник на топлина (котел и др.). Схемата предвижда комбинирано използване на традиционни радиатори и подово отопление. Тази комбинация от технологии, както и приложената автоматизация позволяват да се осигури високо ниво на комфорт при оптимални разходи за закупуване на оборудване и неговата експлоатация. Схемата използва и показва компоненти от текущия асортимент на VALTEC.


| № | код на продавача | Име | Производител |
| 1 | VT.COMBI.S | Помпа-смесител | VALTEC |
| 2 | VTC.596EMNX | Колекторен блок с разходомери | VALTEC |
| 3 | VTC.586EMNX | Колекторен блок от неръждаема стомана да стане | VALTEC |
| 4 | VT.K200.M | Контролер с компенсация на времето | VALTEC |
| 4а | VT.K200.M | Сензор за външна температура | VALTEC |
| 5 | VT.TE3040 | Електротермично серво задвижване | VALTEC |
| 6 | VT.TE3061 | Аналогов серво | VALTEC |
| 7 | VT.AC709 | Електронен стаен хронотермостат със сензор за температура на пода | VALTEC |
| 8а | VT.AC601 | Стаен термостат | VALTEC |
| 8 | VT.AC602 | Стаен термостат със сензор за подово отопление | VALTEC |
| 9 | VT.0667T | Байпас с байпасен клапан за циркулация със затворени контури | VALTEC |
| 10 | VT.MR03 | Трипътен смесителен клапан за поддържане на температурата на връщане | VALTEC |
| 11 | VT.5012 | Термична глава със сензор за дистанционно закрепване | VALTEC |
| 12 | VT.460 | Група за сигурност | VALTEC |
| 13 | VT.538 | Резачка за чистачки | VALTEC |
| 14 | VT.0606 | Двойно колекторно зърно | VALTEC |
| 15 | VT.ZC6 | Комуникатор | VALTEC |
| 16 | VT.VRS | Циркулационна помпа | VALTEC |
Обяснения за диаграмата:
Използването на помпено-смесителния блок VALTEC COMBIMIX позволява да се свържат високотемпературни вериги (източник на топлина и радиаторно отопление) и подови отоплителни вериги с ниска температура на охлаждащата течност в една система.
Разпределението на потоците на охлаждащата течност се организира с помощта на колекторни блокове VALTEC VTc 594 (радиаторно отопление) и VTc 596 (подово отопление).
Разпределението на високотемпературната отоплителна система и отоплителните кръгове са направени от металопластични тръби VALTEC. Тръбопроводите бяха монтирани с помощта на пресови фитинги от серията VTm 200; свързване към колектори - фитинги за кримпване на колектори за армирани пластмасови тръби VT 4420.
Работата на подово отопление се контролира от контролер VALTEC K100 с функция за компенсация на времето. Поради това температурата на водата в контурите за подово отопление се променя в зависимост от външната температура, което гарантира икономия на енергийни ресурси, използвани за отопление. Контролният сигнал от контролера се подава към аналоговото електротермично серво задвижване на управляващия клапан на COMBIMIX модула.
Топлинният комфорт в помещения с подово отопление се поддържа от стаен термостат VT AC 602 и хронотермостат VT AC 709, оборудвани със сензори за температура на въздуха и пода. Чрез електротермални задвижвания тези модули за автоматизация управляват клапаните на възвратния колектор на модула VTc 596.
Като обезопасителен термостат се използва термостат с дистанционен температурен датчик VT AC 6161. Той спира циркулационната помпа на COMBIMIX модула в случай на превишаване на зададената максимална температура на отоплителния агент при подаване към контурите за подово отопление.
Топлопредаването на радиаторите се регулира от стайния термостат VT AC 601, който управлява клапаните на колекторния блок VTc 594 с помощта на електротермични серво задвижвания.
Топлинната верига е снабдена с група за безопасност на котела, мембранен разширителен съд, възвратни и дренажни клапани VALTEC.
Като спирателни кранове са използвани сферични кранове от серия VALTEC BASE.
Персонализиране
Можете да регулирате колектора на Valtec ръчно и е възможно да направите това автоматично, ако серво задвижванията са инсталирани на захранването.Извършването на тази операция е необходимо, за да може системата да функционира в посочения режим в бъдеще, както и за диагностициране на възможни неизправности.
Когато настройвате, ще трябва да извършите няколко последователни операции в съответствие с инструкциите, предоставени с продукта.


Разгънат изглед на колектор Valtec
- Термичната глава се отстранява.
- Преливният клапан е настроен на 0,6 бара.
- Дебитът на балансиращия клапан, разположен на вторичната верига, се изчислява съгласно метода, посочен в инструкциите, с получения резултат върху него.
- Скоростта на помпата се регулира, за да се определи оптималният воден поток.


Схема на колектор, работещ с подови отоплителни кръгове - Всички свързани клонове са балансирани. За това клапанът на първичния кръг е затворен докрай и балансиращите клапани са отворени максимално. Индикаторите се проверяват чрез разходомери. Ако в някой клон те се отклоняват от нормата, тогава клапанът се затяга до необходимия дебит.
- Налягането на байпасния клапан е настроено с около 10% по-ниско от това на помпата.
Остава да се провери по време на пробен ход равномерността на отоплението на контурите за подово отопление, както и разликата в температурата на охлаждащата течност, зададена от производителя при подаване и връщане. Ако се спазват всички инструкции за настройка, ще бъде осигурена желаната ефективност на отопление и дълготрайност на цялата система.
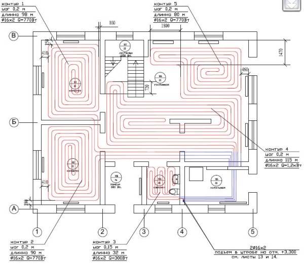
Колектор за подово отопление Valtec за 2-4 вериги 20-60 кв.м.


Максимална отопляема подова площ: 60 кв.м; Ръчно регулиране. (За автоматично регулиране се изисква допълнително да се инсталира серво задвижване VT.M106.0.230 и контролен термостат или контролер)
Спецификация
- 1 - Смесителен клапан MIX 03 3/4 "- 1 брой;
- 2 - Адаптер за зърна 1-3 / 4 "(VTr.580.N.0605) - 2 бр;
- 3 - нипел 3/4 "(VTr.582.N.0005) - 1 брой;
- 4 - тройник 3/4 "vn.-vn.-vn. (VTr.130.N.0005) - 1 бр;
- 5 - коляно 3/4 "Нар.-Нар. (VTr.093.N.0005) - 1 бр;
- 6 - американски 3/4 "(VTr.341.N.0005) - 1 брой;
- 7 - циркулационна помпа с 1 "съединителни гайки;
- 8 - сферичен кран 3/4 "vn.-vn. (VT.217.N.05) - 2 бр .;
- 9 - колектор 3 / 4-1 / 2 "дъски. (VTc.500.N.0502) - 2 бр .;
- 10 - съединител за колектор 16-1 / 2 "(VTc.710.N.1604) - 4 бр;
- 11 - конектор с вътр. нишки. 20-3 / 4 "(VTm.302.N.002005) - 1 брой;
- 12 - съединител с дъски. нишки. 20-3 / 4 "(VTm.301.N.002005) - 1 брой;
- 13 - колекторен тройник (VTc.530.N.0500) - 2 бр .;
- 14 - автоматичен отвор за въздух 3/8 "(VT.502) - 2 бр;
- 15 - дренажен клапан 1/2 "(VT.430) - 2 бр;
Връзка
С помощта на съединители (10) е свързана метална пластмасова тръба за подово отопление 16x2. Захранването с високотемпературна верига (захранване на котела) е свързано към клема 16, а връщането на котела е свързано към клема 17.
Колектор за подово отопление Valtec с ръчно регулиране за 2 кръга. Пантите трябва да са с приблизително еднаква дължина за правилното функциониране. На входа и изхода към отоплителната система 16, 17 е препоръчително да се монтират американски кранове.
Ако в горния смесител за подово отопление се използват 3 или 4 вериги, тогава два колектора (9) се заменят с един променлив колектор (VTc.560n) и един колектор със сферични кранове (VTc.580n).
Хидравлично изравняване на водно топъл под
Разполагаме с отоплителна система с топла вода, която включва подово отопление, подредено на базата на помпено-смесителен блок и конвенционален колектор със или без разходомери. Това е надеждна, безопасна, удобна и добре контролирана система за подово отопление. За да стане такъв на практика, а не само в рекламните брошури, трябва да бъде конфигуриран.
За воден под в частна къща е по-добре да използвате колектори с разходомери, в този случай ще бъде много по-лесно да контролирате системата. Ако четете тази статия, но имате подобен топъл под в апартамент или къща с централно отопление, тогава обърнете внимание на максималното работно налягане на колектора, което сте избрали, обикновено за колектори с разходомери е 6 бара. Това може да не е достатъчно за централната система.
Ако имате серво задвижвания на колектора, които се управляват от автоматизацията, те при необходимост ще регулират дебита на охлаждащата течност. Необходимо е обаче да се зададе предварително скоростта на потока във веригите.Ако имате колектор без задвижвания (в преобладаващото мнозинство от случаите), тогава такава настройка е просто необходима.
Потокът на охлаждащата течност през веригата може да бъде изчислен по формулата:
Освен това, за да се получи необходимата проектна скорост на потока на охлаждащата течност през веригата, е необходимо да се умножи специфичният дебит Gsp ((l / h) / m 2) по площта на пода S (m 2), обслужвана от това верига.
И така, най-лесният начин за хидравлично изравняване на топъл под е:
- изчислява водния поток през всяка верига, като умножава площта на пода, по която преминава тази верига, с 8,6; по този начин получаваме дебита в l / h;
- включете помпата за подово отопление, задайте първата скорост върху нея (за средна частна къща);
- поставете термостатичната глава или дръжката на смесителния клапан в положение около 30 o C;
- уверете се, че водата циркулира свободно през клоните и въздухът се изхвърля;
- регулирайте развъдника по такъв начин, че да постигнете стойностите на дебита, получени в параграф 1, на всеки разходомер;
Тези действия ще осигурят така наречената „предварителна настройка“. Ако всичко е изчислено правилно, тогава ще бъде напълно достатъчно. Но всъщност по време на работа подовото отопление може да се наложи да се регулира въз основа на усещането за комфорт. Когато се настройва, е необходимо да се разбере, че веригите са хидравлично взаимно зависими, „завинтването“ може да увеличи потока през другия. Също така трябва да сте подготвени помпата на котела и помпата за подово отопление да си влияят взаимно. Не е страшно, но когато помпата на котела се включи, е невъзможно да се регулира подовото отопление, трябва да изчакате, докато спре.
Проблеми, които могат да възникнат
Нека дадем конкретен пример.
Трудности при инсталирането на системата


Дължината на контурите в помещения с различни размери е различна. Това създава проблеми.
- Контурът на топлия под е инсталиран в банята, хола и кухнята.
- Свързва се с един колектор.
- Ясно е, че площта на пода в тези стаи е различна. Следователно дължината на тръбопроводите, положени под покритието, също е различна.
- Това означава, че разходът на охлаждаща течност в тях също ще бъде различен.
Забележка! При късите нагревателни пръстени нивото на хидравличното съпротивление на тръбите е по-ниско. Въз основа на това водата циркулира в тях по-бързо, отколкото в дългите колеги.
Следователно, при същата температура на течността на захранващия колектор, подът ще бъде прегряван в някои помещения, докато в други ще остане студен.
Същата ситуация може да възникне при използване на радиаторни отоплителни вериги с различен брой секции и различна дължина на тръбите, които са свързани към един и същ етажен колектор. Тоест, някои стаи ще бъдат прегряти, докато други ще бъдат студени.
За да се предотврати това, инструкцията препоръчва определяне на водния поток в радиаторната система чрез инсталиране на термостат на всяка батерия. Всъщност това е клапан, който количествено контролира потока. Приблизително същото може да се направи и при система за подово отопление.
Начини за решаване на проблема
Възможно е да се балансират отоплителните кръгове на системи за подово отопление, които са свързани към една и съща колекторна група по два начина.
- Прилагайки първия от тях, трябва да направите всички пръстени с еднаква дължина и правилно да ги разпределите под покритието. Например, три вериги ще бъдат в стаята за гости, две в кухнята и една в банята.
- Вторият начин е да се монтират само 3 вериги, според броя на стаите. Те обаче ще трябва да бъдат свързани не директно към колекторите, а чрез специални устройства - разходомери за подово отопление, те също се наричат ротаметри. По дизайн те са балансиращи клапани.
В дадения пример терминът "разходомер" не означава измервателно устройство, а специален кран, с който е възможно да се контролира и настройва консумацията на топлоносителя.
Трябва да се има предвид, че устройства от някои производители могат да бъдат свързани само към връщащ колектор.


Оптимален дизайн на колекторната група.
- Най-добрият вариант, когато колекторът има такъв дизайн, е захранващият колектор да е снабден с ротаметър, а термостатът е поставен на обратния аналог.
- Поради това захранващата част на групата насочва точно измерен обем на топлоносителя във всеки от отоплителните кръгове. Обратният колектор се затваря, отваря веригите, тъй като течността се охлажда в тръбите.
- Освен това е желателно захранващият колектор за подово отопление с разходомери да има автоматичен отвор за въздух и да е свързан към връщащия аналогов байпас с байпасен клапан.
Забележка! Въздухът, който пречи на работата му, се отстранява от отоплителната система през отдушник. Когато навън стане по-топло, термостатите затварят веригите, по това време байпасният клапан се включва и понижава скоченото налягане.
В момента производителите произвеждат много разходомери, които са едновременно измервателни устройства и регулатори на дебита на топлоносителя. Има и устройства, които комбинират тези функции. Естествено, цената им е по-висока.
Ако закупите само измервателно устройство, то ще трябва да бъде инсталирано заедно с обикновен клапан. Чрез отваряне или затваряне на крана, според показанията на скалата на ротаметъра, ще можете да регулирате потока на охлаждащата течност.
Как да балансираме отоплителните кръгове


Пример за балансиране на система.
- Общият поток на охлаждащата течност през колектора (l / min) се приема за 100 процента.
- Освен това (също като процент) се определя консумацията за всяка от веригите. Например - 15%, 35% и 50%. Те се преобразуват (пропорционално) в литри в минута.
- След това трябва да развиете или завъртите главата на ротаметъра (или клапана, свързан към измервателния разходомер), като по този начин зададете необходимите показания.
- Трябва да се има предвид, че по този начин може да се извърши само изчислено балансиране на веригите.
Сглобяване на колектора с разходомери.
- Действителната настройка се извършва според реалния дебит на охлаждащата течност. За тази цел е необходимо да поставите измервателен ротаметър пред захранващата част на колектора за подово отопление. Въз основа на показанията му ще бъде възможно да се разпръснат общите разходи по веригите, свързани към колекторната група.
Функционалност на разходомера
Ротаметър или, ако дадем пълна дефиниция на това устройство, плуващ ротаметър, на пръв поглед е обикновено механично устройство. Дизайнът на продукта се основава на пластмасов калъф (има модели от месинг), вътре в който е поставен полипропиленов поплавък. Тялото е снабдено с прозрачна крушка със скала за маркиране. Преместването на поплавъка нагоре и надолу вътре в устройството показва определена стойност на скалата, по която можете да прецените обема на охлаждащата течност, циркулираща в тръбопроводната система - достатъчно ли е за пълната работа на отоплителните вериги.


Традиционен разходомер за колектори за подово отопление в различни версии: отляво - в пластмасова кутия, отдясно - от месинг.
От теоретична гледна точка отоплителната система може да работи без това устройство. В този случай ще трябва ръчно да регулирате обема на водата, постъпваща във веригата, въз основа на лични чувства, когато температурата на въздуха в стаята се промени.
На бележка: по звука на работеща помпа и по интензивността на нагряване на топъл под, може да се прецени степента на пълнота на подаване на гореща охлаждаща течност към всички отоплителни кръгове.
Отказът да се използва разходомер при инсталиране на подово отопление е изпълнен със следните проблеми:
- отделните контури на водния под ще бъдат снабдени с охлаждаща течност, без да се вземат предвид характеристиките на помещението, в резултат на което температурните стойности на подовата повърхност на отопляваните помещения ще се различават;
- ще се увеличи консумацията на енергийния носител, използван за работа с отоплителните устройства (електричество или газ).
Например, планирате едновременно да отоплявате баня и детска стая. Автономният газов котел ще загрява водата за банята и за детската стая по същия начин, в същия температурен режим. Банята обаче е с по-малки размери и за отоплението й е необходимо по-малко вода от котела, отколкото за осигуряване на топъл под в детска стая. Възможно е да се постигне оптимално подаване на топлопредаващо средство за топли подове във всяка стая с помощта на разходомер. Следователно, благодарение на работата на това устройство, ще бъде възможно да се постигнат индивидуални температурни стойности за комфорт в банята и детската стая.
Оценявайки работата и принципа на работа на устройството, могат да се направят следните заключения:
- устройството работи напълно автономно, без да изисква допълнителни захранвания;
- принципът на действие на разходомера ви позволява да създадете оптимален дебит на охлаждащата течност за отоплителни кръгове, значително намалявайки консумацията на енергия на отоплителни устройства;
- дизайнът на устройството осигурява визуален контрол върху количеството вода в тръбопроводите;
- колекторът, заедно с разходомерите за подово отопление, значително улеснява контрола върху работата на цялата система, лесен е за инсталиране и непретенциозен в поддръжката.
Важно! Монтажът на устройството се извършва строго в изправено положение, просто чрез завинтване на устройството в специален контакт на колектора. Устройството е фиксирано с гайка.
На бележка: Когато инсталирате топъл под, опитайте се да постигнете еднаква дължина на топлинните тръби за всички водни кръгове - въпреки възможните разлики в конфигурацията, това значително опростява регулирането на цялата отоплителна система и ви позволява да постигнете оптимални температурни параметри.
Ултразвукови броячи с импулсно време
Методът импулс във времето (или, с други думи, фазовото изместване) се основава на измерване на времето за движение на сигнала спрямо потока и по посока на движението на течността. За преобразуване на ултразвуковия сигнал на тръбопровода се инсталират два или четири пиезоелектрични елемента, изместени по време на движението на водата. Като правило се използват дискови елементи, по-рядко пръстеновидни (за малки диаметри).
Пиезоелектрическите елементи могат да бъдат инсталирани вътре в потока (на вътрешните стени на тръба или канал) или извън тръбопровода (в този случай сигналът преминава през външната стена). В зависимост от използваните сензори, измервателните уреди могат да бъдат инсталирани в гравитационни системи (както отворени, така и затворени), както и в напълно затворени тръбопроводи с свръхналягане на средата. Има такива видове сензори за скорост:
- тръба - врязва се във водопровода отвън. Може да се използва в среда под налягане и без налягане;
- клиновидна форма - инсталирана на дъното или вътрешната стена на тръбата. Като правило те се използват в канали със свободен поток или в тръбопроводи с големи диаметри, ако инсталирането и поддръжката на сензора отвън е неудобно;
- сферични или полусферични - монтирани върху наклонени стени на отворени трапецовидни канали;
- смукателен прът - имат формата на тръби, инсталирани са по вертикалните стени на каналите;
- отгоре - безконтактни сензори, поставени на външната повърхност на тръбопровода.
В зависимост от начина на инсталиране на сензорите се прави разлика между контактни и безконтактни устройства. Предимството на безконтактните преносими разходомери е възможността да се инсталират на тръбопроводи, без да се нарушава целостта. Те рядко се инсталират постоянно, по-често се използват за проверка на измервания в различни точки.
Импулсните измервателни уреди са подходящи за определяне на дебита на чиста вода или слабо замърсени (с малко количество суспендирани твърди вещества). Те се използват при водоснабдяване и обезвреждане на отпадъчни води, в охладителни кръгове, в напоителни напоителни схеми, в помпени станции, в открити естествени и изкуствени канали и реки. Те се използват както за търговско, така и за технологично счетоводство.
Как правилно да работи подово отопление


За да въведете в действие подово отопление, трябва да изчакате, докато замазката изсъхне напълно. Това може да отнеме до три седмици. Ако времето изтича, можете да ускорите процеса на сушене, като добавяте 1 градус топлина всеки ден. Това може да стане само след 14 дни.
Влагата трябва да излиза равномерно от бетона. В противен случай замазката ще започне да се напуква и това ще наруши целостта на отоплителната торта.
Всички клапани на отоплителния кръг на колектора трябва да бъдат напълно отворени непосредствено преди стартиране. Трипътният клапан също се отваря максимално. В края включете циркулационната помпа. След този етап можете да започнете да регулирате температурата на охлаждащата течност.
Ултразвукови броячи с кръстосана корелация
Тези разходомери работят по ултразвуковия метод на кръстосана корелация. Тази техника се основава на принципа на нанасяне на скорости за различни нива на потока, измервателният уред позволява да се изгради реална диаграма на разпределението на скоростите в потока. Измерва се и дебитът.
При водомерите се използват ултразвукови тръби и клиновидни сензори за скорост, инсталирани в потока, нивото на течността се определя с помощта на повърхностни и подводни сензори. Възможно е изпълнение на комбинирани датчици за скорост и ниво.
Измервателните уреди се използват в системи за налягане и гравитация, отворени и затворени системи. Това е точен метод за измерване, който дава надеждни резултати за потоци с различна степен на замърсяване и е ефективен и при нехомогенни среди. Разходомерите се използват в технологични тръбопроводи, пречиствателни станции, в реки и резервоари и др. В големи канали могат да бъдат инсталирани няколко сензора по цялата ширина, за да се получат по-точни резултати.
Възникващ проблем
- Монтирате контурите на топъл под в банята, хола и кухнята;
- Те са свързани към един и същ колектор;
- Площта на банята, кухнята и хола е очевидно различна, поради което дължината на контура на подово отопление ще се различава във всяка стая, съответно дебитът на охлаждащата течност (вода) ще бъде различен.


Проблемът с радиаторите може лесно да бъде решен, тъй като инструкциите казват, че като инсталирате термостат на всяка батерия, можете да контролирате количественото потребление. Обикновено термостатът е конвенционален клапан. По същия начин проблемът се решава и със системата за подово отопление.
Чрез свързване на контури за подово отопление към една и съща колекторна група, можете да ги балансирате по два начина:
Как работи отоплителният колектор.
Най-често срещаният хоризонтален балансиращ колектор е проектиран по следния начин:


Днес на пазара има много различни дизайни на колекционери. Фигурата по-горе показва хоризонтален колектор с хидравлична стрелка, но има вертикални опции за подобен дизайн и изглежда по следния начин:


Същността тук е подобна на тази, приложена във вертикалния дизайн. Но има малка разлика в тръбопроводите. Тук на кого, което е по-удобно е необходимо да погледнем мястото. Такъв колектор може да бъде направен от полипропиленова тръба с голям диаметър. В този случай е препоръчително да се запазят пропорциите, посочени на фигурата.
Ако сте тесни в пространството, тогава има още един много интересен дизайн. Може да се нарече коаксиален:


Тук две тръби се вкарват една в друга. В този случай хидравличната стрелка може да бъде свързана само поотделно.
Добре, нека поговорим за колектори, а сега нека разгледаме отоплителна система, базирана на нея. Преместване на!
Изравняване на температурата на топъл под с вода
С водно подово отопление можете да регулирате температурата на подовата повърхност и температурата на въздуха в стаята. В онези помещения, в които освен отопляемия под има и радиатори, е по-добре да осигурите на радиаторите възможност да поддържат температурата на въздуха, а топлият под ще осигури комфортна температура на повърхността.
Трябва да се помни, че нормите ограничават температурата на повърхността на отоплителните конструкции, вкл. за подово отопление в помещения с постоянно присъствие на хора (спалня, хол и др.), температурата на повърхността не трябва да надвишава 26-29 o C. В помещения с временно пребиваване на хора (баня, коридор) - не повече от 35 o В. Всъщност често жителите на къщите нарушават тези норми поради липсата на знания или невъзможността да използват системата. Освен това производителите на подови настилки също имат температурни ограничения. Така че, ако нямате плочки, тогава си струва да повдигнете този въпрос и да разгледате техническата документация за подови настилки.
Температурата на повърхността на подово отопление зависи от температурата на отоплителната среда в подаващите и връщащите колектори, както и от дебита и специфичната топлинна мощност, и по-специално от структурата на пода и подовото покритие. Нека да подчертаем основното: със следните изчислени или действителни показатели трябва да внимавате за повишаване на температурата на подовата повърхност над нормата:
- температурата на водата в захранващия колектор е по-висока от 45 o C;
- изчислената специфична топлинна мощност на топъл под е повече от 120 W / m 2
Можете да изберете вашите индивидуални параметри за подово отопление в онлайн програмата за изчисляване на топъл под. Попълнете оригиналните си данни и опитайте да експериментирате с показателите.
Доплер метод
Измервателните уреди, използващи този метод, измерват разликата в дължината на вълната, отразена от движещ се поток спрямо дължината на вълната на излъчения сигнал. Измерването на приетия и предадения сигнал за определяне на разликата между тях се извършва с помощта на клиновидни или тръбни сензори за скорост, инсталирани в долната част на канала или тръбата.
Водомерите на базата на доплер се използват в системи за налягане и гравитация, изцяло и частично запълнени тръби, отворени канали. Те работят в потоци с различна степен на замърсяване (с изключение на чиста вода). Доплеровите разходомери се използват за търговско измерване в тръбопроводи и гравитационни канали, за измерване на дебити в реки и канали на напоителни системи, в дъждовна канализация, в помпени станции, тръбопроводи за всмукване и изпускане на вода във водни тела.
Функции за настройка
За всяка отделна стая има отделно регулиране на ротаметрите. Управлението се извършва съгласно схемата на инсталираните вериги. Това отчита нивото на нагряване на течността и налягането.
Препоръчително е да извършите балансиране съгласно следните инструкции:
- Определя се общото количество охлаждаща течност, преминаващо през колектора за една минута. Показателите се вземат в литри. Получената стойност се приема за 100 процента.
- Изчислява се процентният дебит на всеки отделен воден кръг. Резултатът се преобразува в литри в минута.
- Разходомерът регулира количеството течност, подавано към тръбопровода.
По този начин можете да извършите дългосрочна корекция на водната верига. За да се посочат действителните параметри, е необходимо да се наблюдават индикаторите на разходомера. Според наблюденията е възможно точно да се определи дебитът на веригите, свързани към колектора.
Колектор с разходомери за подово отопление
Разходомерът се регулира в зависимост от инсталирания модел.След свързване на устройството към колектора, трябва да се направи предварителна настройка, като се зададе първоначалното положение, което позволява достъп до течност.
В разходомерите без вграден клапан се използва допълнително спирателно устройство за задаване на положението "отворено". В този случай балансирането се извършва по време на работата на системата.
Комбинираните устройства за измерване на потока могат да бъдат предварително зададени, като се използват пълни обороти на вградения клапан. Всеки завой намалява хлабината с зададената стойност.
Регулирането на разходомера за подово отопление се извършва, като се вземе предвид контролът на скоростта на течността за една минута - от 0,5 до 5 литра.
Преди да започнете да настройвате разходомера, трябва да проверите състоянието на инсталираната верига. Необходимо е пилотно тестване, за да се изключи наличието на течове във веригата, които могат да причинят изкривяване на показанията в устройството.
Разходомерът е съществен елемент в многоконтурната система за подово отопление. Устройството позволява равномерен поток от течност във всички отделни тръбопроводи. За да може отоплителното оборудване да функционира възможно най-ефективно, трябва да изберете правилния разходомер, както и да извършите неговата инсталация и настройка в съответствие с техническите изисквания.
За обикновения човек системата за подово отопление не изглежда сложна, просто тръби с топла вода, положени вътре в замазката. На практика това съвсем не е така. Поради специалните изисквания и механика на работа, колекторната група за топъл под задължително присъства в тръбопроводната система, която разпределя охлаждащата течност и осигурява регулиране на микроклимата във всяка стая.
Резултати
Важно е да се гарантира, че когато системата за подово отопление работи, дебитът на колектора е видим. Това е необходимо за поддръжка. Всеки воден кръг трябва да има собствен разходомер.
Препоръчваме: Как се извършва инсталирането на инфрачервено подово отопление?


Както можете да видите, в оборудването всеки елемент изпълнява своите функции, следователно на всеки трябва да се обърне достатъчно внимание и за да работи цялата система като цяло, струва си да го оборудвате с разходомер и колектор, които ще разпределят равномерно цялата топлина.
- Подобни публикации
- Как да сложа полистиролова пяна за подово отопление?
- Как да инсталирате топъл под без замазка?
- Как работи автоматизацията на подовото отопление?
- Как да полагаме подово отопление под линолеум?
- Как да проверите подово отопление?
- Характеристики на корейското подово отопление
Критерии за избор на клапан


Трипътен клапан в колектора ви позволява да поддържате желаната температура на охлаждащата течност
Ако циркулационната помпа регулира дебита на работната течност, тогава управляващият клапан ограничава флуида според температурата. Автономният котел произвежда топлоносител с температура 95 градуса. В отоплителната система водата не е много по-студена - 80-90 градуса. Нормалната температура на течността в отопляемите подове е 35-55 градуса. Регулиращият термостат определя температурата на потока на работната среда и дава команда на клапана да отвори отвора от обратния ход. С хладка вода температурата пада. Когато температурата в тръбите достигне 55 градуса, циркулационната помпа се изключва от мрежата с термостат, след което обемът на преминаващия топлоносител намалява.
Трипътният клапан е единица с 1 изход и 2 входа. Щепселът на клапана се отваря от температурен сензор, разположен във клапана.
При избора на клапан се вземат предвид следните показатели:
- Обемът на помещението за отопление. Малките стаи не изискват сложни автоматични устройства. Балконите, тоалетните, коридорите работят лесно под наблюдението на най-простите устройства. Отоплението на големи площи изисква автоматичен клапан с вграден сензор за температура на отваряне на мембраната.
- Обемът на течността, през която да премине.Този показател се определя при писане на проект за отоплителна система. Клапанът трябва да отговаря на изискванията за потока на течността. В противен случай ще се провали.
- Диаметър на напречното сечение за свързване към отоплителни тръби. Адаптерите се използват с различна скорост.
- Производствен материал. Качествените клапани са изработени от бронз или месинг - материали с малък коефициент на разширение. Те не променят свойствата си при контакт с гореща охлаждаща течност.
Трипътният клапан е сложна част. Необходимо е да изберете надеждни модели от известни производители. Гаранцията, спецификациите, сертификатът, протоколът от теста се проверяват при покупка.
Преди монтажа вентилът трябва да се провери - задава се минималната стойност на температурата на контролния пръстен и се подава поток гореща вода. Изправен клапан трябва да изключи този поток.
Отоплението на жилищни сгради с два или повече етажа включва използването на няколко водни кръга с различна дължина. Комбинацията от трипътен клапан и серво задвижване с контролер ви позволява да подавате гореща охлаждаща течност в определено помещение или да го изпращате за отопление.
Първоначално серво отоплението не е включено в пакета. Но наличието на серво мотор ви позволява да регулирате температурата в зависимост от времето на деня.
За клапан с електродвигател задвижващите механизми са електромагнити или сервомотори с ниска мощност.
Основните видове колектори


Колекторите от неръждаема стомана издържат по-дълго от месинг или метал
Схемата на работа на устройството е следната - водата от котела постъпва в резервоара за съхранение. Такъв резервоар се намира на височина над "гребена". Охлаждащата течност влиза в разпределителя със спирателни и контролни клапани. От дистрибутора потоците се разминават в отделни клонове. Изходните тръби са сглобени в долната част на "гребена", за да бъдат изпратени в котела за отопление.
Обикновено единицата е парче тръба с определен брой завои. Тъй като техническата задача става по-сложна, сложността се увеличава десетократно, сложността на настройването на автоматизацията, инсталирането става много по-сложно.
Неръждаема стомана
Колекторите от неръждаема стомана са по-здрави от месинга. Те имат голяма площ на потока, която изравнява налягането на потоците на различни потребители на топлоносители. Колекторът Valtek за отопление е проектиран за средно 50 години експлоатация при налягане от 10 атм. и температури до 130 градуса.
Марковите модели са надеждни - дори появата на заварен шев не води до корозия. Закупувайки модели от евтини производители, можете да срещнете нискокачествена метална и повърхностна корозия.
Полипропилен


Полипропиленовият колектор може да бъде сглобен ръчно от тръби и фитинги
Полимерният гребен е направен от полипропиленови тръби. Този лек материал не е толкова издръжлив като стоманата, но ще служи успешно повече от една година. Пластмасовите колектори са изключително евтини. Използването е оправдано, когато охлаждащата течност циркулира в няколко отоплителни устройства. Ако основната задача е да спестите пари, тази опция е подходяща.
Магазините предлагат модели с фитинги и колектори със затварящи клапани.
За превключване към метален продукт с резба се използват комбинирани фитинги.
Пластмасовите гребени са често срещани в Украйна. За да се укрепи структурата, до 30% фибростъкло се добавя към PA66 полиамид във фабрично произведени технополимери за увеличаване на якостта.
Недостатъкът на полимерните продукти е дебелите стени. Те намаляват напречното сечение на прохода със същия размер на детайла. Стоманените възли са по-здрави, стените могат да бъдат направени по-тънки - вътрешната част се увеличава и преминава с няколко процента повече течност за единица време при същите условия.
Друг недостатък на полимерите е кислородната пропускливост. Подсилването от фибростъкло го свежда до минимум. Но налице е дифузия на кислород.
Предимствата на полимерните продукти са устойчивост на агресивна среда, електрохимична корозия, ниска топлопроводимост. За същата дължина на тръбата полимерът губи по-малко топлина от стоманата или месинга.
Месинг


Препоръчително е да купувате месингови колектори с никелирано покритие.
Този материал е лидер в производството на гребени. За производство в Европа се прави куха месингова пръчка. В продължение на десетилетия от него се произвеждат продукти - изрязват се до необходимата дължина, пробиват се отвори за разходомери, клапани и режат резби. Печатните модели също присъстват на пазара.
Поради нарастващите цени на месинга, производителите преминаха към по-евтини материали - стомана и пластмаса. Все пак предпочитат се месинговите модели. Те имат един недостатък - излугването на цинк. Но се изравнява чрез хромиране или никелиране на повърхността.
При нискотемпературни условия предимствата на малкото разширение на месинга се изравняват и са относителни.
























