Güney Kore'de üretilen gazlı ısıtma kazanları, ortalama kalite ve maliyete sahip ürünler olarak kabul edilmektedir.
Bu oldukça adil bir görüş, ancak hoş istisnalar da var.
Kiturami ürünleri, Avrupa üretiminin en ünlü ve popüler kazanlarıyla aynı seviyeye getirilmeyi hak ediyor.
Ünitelerin yüksek kalitesi, gelişmiş tasarımı ve diğer avantajları, onları hem tüm dünyada hem de Rusya'da ünlü ve talep görmesini sağladı.
Kazanlar yüksek rekabet gücü sergilerler, birçok avantajı vardır ve daha dikkatli düşünmeyi gerektirirler.
Kiturami gaz kazanları
Güney Koreli Kiturami şirketi, 1962 yılında küçük bir metal işleme atölyesi olarak kuruldu.
Varlığı boyunca, küçük bir şirket, çeşitli amaçlar için geniş bir yelpazede ısıtma ekipmanları üreten sağlam ve güçlü bir şirket haline gelmeyi başardı.... Bilimsel ve teknik araştırmalar devam ediyor, yeni birimler ve parçalar test ediliyor.
Kiturami gaz kazanları, en verimli ve gelişmiş teknolojilere göre yaratılmıştır, ancak yalnızca maliyeti artıran kullanılmayan fonksiyonların aşırı doygunluğu yoktur.
Bu yaklaşımın sonucu, yüksek güvenilirlik, harici yüklere direnç ve dayanıklılık ile her türlü karmaşıklık ve hacimdeki görevleri yerine getirebilen bir dizi ekonomik ve dayanıklı ünitedir.

Görüntüleme
Kiturami gaz kazanları geniş bir yelpazede mevcuttur ve şartlı olarak belirli kriterlere göre gruplara ayrılabilir.
Kurulum türüne göre:
- Zemin ayakta... Özel bir standa veya doğrudan zemine monte edilir.
- Duvara monte... Sağlam duvarlara veya özel destek yapılarına asılır - rampalar. Geçici veya alçıpan bölmelere asmak yasaktır.
Özellik grubuna göre:
- Tek devreli... Sadece ısıtma sistemi için ısıtma maddesini ısıtın.
- Çift devre... Soğutma suyunun ısıtılmasına paralel olarak, evsel ihtiyaçlar için sıcak suyu akıcı bir şekilde ısıtabilirler.
Tüm modeller kapalı bir yanma odası (turboşarjlı) ile donatılmıştır. Bu, hava beslemesinin ve duman tahliyesinin, sabit hava akımı ve dış hava koşullarından veya oda havalandırmasının özelliklerinden bağımsız olan özel bir turboşarj fanı kullanılarak gerçekleştirildiği anlamına gelir.
Isı transferi türüne göre:
- Konveksiyon... Bir gaz brülörünün alevinde ısıtma ortamının normal ısıtılması.
- Yoğuşmalı... Isı taşıyıcının ara ısıtması, egzoz dumanından su buharının yoğunlaştırılmasıyla elde edilen termal enerjiden kullanılır. Böyle bir kazanın tam olarak çalışması, yalnızca düşük sıcaklıklı ısıtma sistemlerinde (yerden ısıtma gibi) ve ayrıca oda içindeki ve dışındaki sıcaklık farkının 20 ° 'yi geçmemesi durumunda mümkündür. Diğer koşullarda kazan, geleneksel bir yoğuşturma ünitesi gibi çalışır.
ÖNEMLİ!
Kiturami hatları arasında, Rusya'nın çoğu bölgesinde imkansız olan özel çalışma koşulları gerektiren yoğuşmalı kazanlar bulunmaktadır. Bir ünite seçerken, bu dikkate alınmalıdır çünkü yoğuşmalı modellerin fiyatları, konveksiyon modellerinden çok daha yüksektir.


Kazan seçerken önemli özellikler
1) Isı çıkışı
Kazan gücü satın alırken seçimi çok önemlidir. "Gözle" alınan kararlar burada kesinlikle uygunsuzdur. Aksi takdirde, yeni kazanın görevi ile baş edemeyeceği ve evde çok az sıcak su ve yeterli ısı olmayacağı ortaya çıkabilir; ya da gereğinden çok daha güçlü bir birim seçerek fazla ödeme yaparsınız.Bunun olmasını önlemek için yapının özelliklerini, iklimini göz önünde bulundurmanız ve ayrıca güç rezervi ve ısı kaybı için hesaplamalar yapmanız gerekir. Tasarımcı size bu konuda yardımcı olacaktır. Kazan gücünü belirlemek için özel bir yöntem kullanarak paradan tasarruf edebilirsiniz. 10 metrede 1 kW oranında alınır. Bu yöntem% 100 doğru değildir, bu yüzden onu seçerek tüm olası sonuçları kabul etmiş olursunuz.
2) Yakıt tüketimi
Yakıt tüketimini etkileyen birçok faktör vardır:
- ekipmanın doğru montajı ve brülörlerin ayarlanması;
- baca tasarımı;
- binanın ve duvarlarının bireysel özellikleri;
- binanın çalışma modu;
- bir ısıtma sistemi seçerken hesaplamaların doğruluğu.
Kiturami kazanlarının tasarımcıları, ekonomiye ve yakıt verimliliğine büyük önem veriyor. Bu alanda birçok patentli gelişme vardır ve bunların tümü yakıtın yanmasının verimliliğini artırmayı amaçlamaktadır. Kazan kontrolündeki bazı işlemler tamamen otomatiktir, bu da onları herhangi bir ısıtma sisteminde en verimli şekilde kullanmanızı sağlar.
3) Isıtma sistemi yüksekliği
Ayrıca bir kazan seçerken önemli bir nokta. Ve burada Kiturami şirketinin büyük bir avantajı, ısıtma sisteminin herhangi bir yüksekliği için modeller arasından seçim yapabilmenizdir. TURBO, KSG, TGB, KRM, WORLD 5000 serisi kazanlar, 20 metre yüksekliğe kadar ısıtma sistemlerinde kullanılmaktadır. 58 kW ila 465 kW kapasiteye sahip KSG ve KSO modelleri, 35 metre yüksekliğe kadar ısıtma sistemleri için tasarlanmıştır.
Gaz serileri ve ilgili modeller
Kiturami yer tipi kazanlar arasında aşağıdaki seriler bulunmaktadır:
- KSG... 50 ila 200 kW arasında gelişen güçlü ısıtma sistemleri. Yalnızca ısıtma için tasarlanmıştır, ancak evin sıcak su ile beslenmesini sağlayan harici bir depolama kazanına bağlanabilir. Geniş alanları ısıtabilirler, gerekirse 4 üniteye kadar kademeli olarak bağlanabilirler.
- STSG... Küçük ve orta büyüklükteki özel evleri ısıtmak için tasarlanmış nispeten düşük güçlü (16 ila 58 kW) 4 model. Tüm modeller çift devreli olup, kapalı bir yanma odası olan ayrı bir ısı eşanjörü ile donatılmıştır.
Kiturami duvar tipi kazan serisi:
- WORLD PLUS... Seri, 15, 16, 20, 29, 34.9 kW kapasiteli 5 modelle temsil edilmektedir. Tüm modeller çift devreli olup, 350 m2'ye kadar olan odaları ısıtmak ve sıcak su sağlamak için tasarlanmıştır. Seri, özellikle teknolojik ve iklim koşullarına uyarlanmış Rusya topraklarında kullanılmak üzere üretilmiştir.
- İKİZ ALFA... 15 ila 35 kW arasında 5 model. Ayrı bir ısı eşanjörüne sahip çift devreli kazanlar.
- İKİZ ALFA YENİ KOAKSİYEL... Aynı parametrelere sahip modelleri içeren biraz geliştirilmiş TWIN ALPHA serisi. Avrupa tipi koaksiyel baca (yatay) kullanmak üzere tasarlanmış,
Yoğuşmalı kazanlardan oluşan Kiturami Eco serisi de bulunmaktadır.
Kazan çeşitleri Kiturami
Kiturami kazanları, tasarım ve güce göre aşağıdaki gibi alt bölümlere ayrılabilir:
- Dizel ayaklı kazanlar Kiturami. Turbo brülörlü Turbo serisi (9000-35000 watt) ve KSOG (58000-465000 watt).
- Yerde duran gaz kazanları Kiturami. TGB serisi (35000 watt), TGB meşaleli KSOG (58000-465000 watt).
- Duvar tipi kazanlar sadece 15 ila 35 kW gazlı modellerde sunulmaktadır.
Kiturami Turbo dizel kazan örneğini kullanarak Kiturami kazanlarının özelliklerine bakalım.


Teknik Özellikler
Kiturami kazanlarının teknik özelliklerini düşünün:
| Parametre | Değer |
| Kazan tipi | Gazlı ısıtma |
| Isı transfer yöntemi | Konveksiyon veya yoğunlaşma |
| İşlevsellik | Isıtma, sıcak su temini |
| Güç | 15-297 kW |
| Verimlilik | 92-98 % |
| Yükleme metodu | Yerde duran veya duvara monte |
| Gaz brülör tipi | Kapalı |
| Enerji tüketimi | Tek fazlı akım 220 V 50 Hz |
Kiturami kazanlarının genel açıklaması
Kiturami kalorifer kazanlarının tamamı çift devreli. Yani, sadece alan ısıtma için değil, aynı zamanda DHW sisteminde sıcak su üretimi için de kullanılırlar. Sıcak suya ihtiyaç yoksa, DHW devresi devre dışı bırakılabilir.
Şirketlerde hem duvara monte hem de zemine monte Kiturami kazanları bulabilirsiniz. Ayrıca yer tipi kazanlar dikey veya yatay konfigürasyonlarda imal edilmektedir.
Kiturami, sıvı yakıtlı (dizel) ısıtma kazanlarının yanı sıra sıvılaştırılmış gazla çalışan kazanların yanı sıra sıvı ve katı olmak üzere iki tür yakıtla çalışan kombine kazanlar üretmektedir.
Sınıflarında en güvenilir kabul edilen Kiturami dizel kazanları olduğuna dikkat etmek önemlidir.


Avantajlar ve dezavantajlar
Kiturami gaz kazanlarının avantajları::
- Kazanların yüksek operasyonel yetenekleri, güvenilirliği, verimliliği.
- Kararlı çalışma, düşük başarısızlık oranı veya başarısızlık oranı.
- Yüksek yapı kalitesi, montajların ve parçaların güvenilirliği.
- Her ihtiyaca uygun geniş bir model yelpazesi.
- Optimum fonksiyon seti, kazanın fiyatını artıran kullanılmayan özelliklerin olmaması.
- Sessiz kullanım, basit kullanım.
- Nispeten düşük maliyet.
- Kompaktlık, çekici görünüm.
Dezavantajları şunlardır:
- Oynaklık. Güç kesildiğinde, ısıtma sistemi çalışmayı durduracaktır. Ayrıca Kazanlar, güç kaynağının doğru bağlanması ve stabilitesine duyarlıdır.
- Kalifiye personel tarafından bakım ihtiyacı.
NOT!
Bu dezavantajlar, herhangi bir gaz kazanının doğasında vardır ve belirli tasarım özellikleri olarak düşünülebilir.
Özetleme
Isıtma kazanları sadece kır evlerinde değil aynı zamanda kentsel alanlarda da popülerdir, çünkü otonom ısıtma, merkezi ısıtmaya göre birçok avantaj sağlar. Kiturami kazanları, piyasadaki en yüksek teknoloji tekliflerinden birine, yüksek verimliliğe, dayanıklılığa, esnek çalışma düzenlemesi olasılığına, yalnızca bu üreticinin ürünlerinin popülaritesinin büyümesine katkıda bulunabilir.
Video, Kiturami gaz kazanının çalışma prensibini ayrıntılı olarak göstermektedir.
Makaleyi beğendin mi? Yandex.Zen kanalımıza abone olun
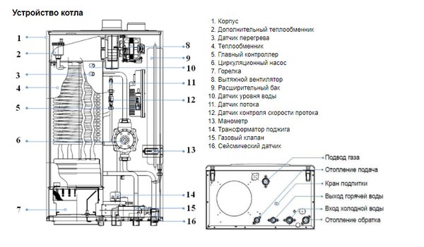
cihaz
Kazanların ana yapısal elemanları gaz brülörü ve ısı değiştiricidir. Bunlar bağımsız birimlerdir, ancak çiftler halinde çalışırlar ve yapısal olarak birleştirilirler.
Sirkülasyon pompasının etkisi altındaki ısı taşıyıcı, ısı eşanjörüne girer, ısıtır ve ikincil plakalı ısı eşanjörünü terk eder, burada sıcak suyun hazırlanması için termal enerjinin bir kısmını verir. Bundan sonra soğutucu, ısıtma devresine akar.
Normal yanma için egzoz ve hava beslemesi turboşarj fanı tarafından sağlanır ve kontrol panosu sistemin çalışmasını kontrol eder.
Kendine teşhis sensörleri sistemi bağlanır, arızaları tespit eder ve kontrol panosuna sinyal verir, bu da kazan ekranında hemen bir uyarı tetikler.


Kiturami KRP
Kiturami KRP pelet kazanları ısıtma ve sıcak su temini için. Peletler yakıt olarak kullanılır - sıkıştırılmış odun atığından yapılan peletler şeklinde bir katı yakıt formu. Pelet kazanları Kiturami KRP, 1. ve 2. kategori Ø 6 - 8 mm ve uzunluğu 10-30 mm olan odun peletleri kullanır. Suya veya neme maruz kalan peletler odun ununa dönüşür ve bunun sonucunda yakıt özelliklerini kaybederler. Bu tür odun ununun yakıt olarak kullanılması, güçte bir azalma ve kül üretiminde bir artış dahil olmak üzere ünitenin verimliliğini ciddi şekilde azaltabilir. Yerleşik sirkülasyon pompası, ısıyı ısı eşanjöründe eşit olarak dağıtmak için sıcak su sağlarken kullanılır. Bu tasarım, verimli sıcak su beslemesini garanti eder. Paket bir oda termostatı içerir. Bir dizi yararlı işlevi vardır, örneğin: ısıtma suyu sıcaklığını ayarlamak için mevsim seçimi, zamana göre açma ve kapama, otonom çalışma işlevi minimum oda sıcaklığını korur ve kazanın patlamasını önler, yıkama işlevi büyük miktarda sağlar sıcak su ve diğerleri. Kiturami KRP pelet kazanının bazı teknik özellikleri
- Isıtma ve su ısıtmada kullanılır;
- Isı ihtiyacına ve yanma aşamasına bağlı olarak, bir besleme helezonu vasıtasıyla kazan fırınına otomatik yakıt dozajı;
- Sirkülasyon pompası ve genleşme tankı yerleşiktir, bu da kurulumunu doğal olarak basitleştirir;
- Kül toplayıcı kutu şeklindedir, boşaltması kolaydır ve özel dizaynı sayesinde kazanın temizlenmesi zor değildir;
- Kiturami KRP pelet kazanında özel bir ısıtıcı kullanılması ateşleme alanını artırmanıza olanak tanır;
- Kazanın tasarımı, torcun geri darbesini önler;
- Güvenli çalışma için: donma koruma işlevi, çift aşırı ısınma koruması, dahili aşırı ısınma ve su seviyesi dedektörleri vb.
Kiturami KRP Premium talimatları ve belgeleri:
- Kiturami KRP kitapçığı
- Kiturami KRP Kullanım Kılavuzu
- Kiturami KRP Kullanım Kılavuzu - A (Premium)
| 1. | Kiturami KRP-A kazanının ayçiçeği kabuğu peletleri üzerinde çalıştırılması. Görüntülemek için kameraya tıklayın. |
| 2. | Kiturami KRP 20-A kazanının devreye alınması. Brülör ateşlemesi |
Çalıştırma ve kurulum
Kiturami kazanlarının çalışması otomatiktir.
Kullanıcıdan, yapılandırmak için sadece birkaç eylem gereklidir:
- Çalışma düzeninde gerçekleştirilen sıcaklık ayarı.
- Sistemin boşaltılması ve su ile doldurulması.
- Kazan gövdesinin kurum veya tozdan periyodik olarak temizlenmesi.
Diğer tüm eylemler ya otomatik olarak ya da davet edilen uzmanların güçleri tarafından gerçekleştirilir. Bu, özellikle daha yüksek performans ve ekonomi için fabrika ayarlarını geçersiz kılan ilk kurulum için geçerlidir.
Talimatı indirin
Kiturami gaz kazanları için talimatları indirin.
Kazan yapısına yetkisiz müdahale, bozulmasına neden olabilir ve garanti sözleşmesini geçersiz kılabilir.


Diziliş
KSO modellerinin geliştirilmesi başlangıçta gazla çalışan bir ekipman olarak gerçekleştirildi. Brülör tipini değiştirdikten ve izleme ve kontrol sistemini biraz değiştirdikten sonra, diğer enerji kaynaklarını kullanmak mümkün hale geldi. Dizel yakıt ana yakıt oldu. Turbo-siklon brülör,% 100 yakıt yanmasına ve verimliliğin artmasına katkıda bulunmuştur. Modelin avantajları tasarım kolaylığı, bakım kolaylığı ve düşük fiyattır.


Biyoyakıt kazanları KRM-30R ve KRM -70R Tasarımlarında yapılan değişiklikler ile hem dizel yakıt hem de diğer katı yakıtlar kullanılmaktadır. Bir tür yakıttan diğerine geçiş hızlıdır. Zorunlu sirkülasyon sistemi, ısıtıcının verimini artırır. Bu modeller yalnızca güç bakımından farklılık gösterir.


Turbo 13r modeli 150 metrekareyi ısıtmak için yeterli olan 13.000 kcal / saat termal enerji veya 15.1 kW üretir. m. Sıcak su kaynağının hazırlanması için ısı maliyetleri dikkate alınır. Önemli ölçüde düzenli kaynar su israfıyla, termal devre gücü daha düşüktür.


Turbo 17 modeli 180 metrekareyi ısıtmak için yeterli 19,8 kW'lık bir termal güç parametresine sahiptir. m. Üst performans eşiği sınırını artırmak için, brülördeki yakıt tüketimini etkileyebilecek nozullar seçilir.


Turbo 21r modeli 24,4 kW kapasite ile DHW devresinin artan üretkenliği vardır. Bu durumda, kazanın boyutları değişmeden kalır.
Sıvı yakıtlı turbo 30 r modeli 34.9 kW kapasiteye sahiptir, 350 m2 ısıtmaya yeterlidir. m. Torç şeklindeki brülörlerle donatılmış olan yakıt yanma modu optimaldir. Düşük miktardaki nitrojen oksit nedeniyle, son derece çevre dostu bir ekipmandır.


Büyük arızalar
Kiturami kazanları, güvenilirliği ve parçaların dayanıklılığı ile ünlüdür. Bununla birlikte, bireysel arıza olasılığı göz ardı edilemez.
Çoğu zaman, maksimum yük altındaki düğümler başarısız olur - ısı eşanjörü ve gaz brülörü.
Isı eşanjöründe ısı transfer verimini azaltan bir kireç tabakası oluşur.
Ünitenin dış kısmının çok ısınması ve arızalanması sonucu yanma sıcaklığının arttırılması gerekir.
Bir gaz brülörü, tıkanmış nozullara ve alevin söndürülmesine ve kazanı ateşlemede zorluğa yol açan diğer sorunlara karşı hassastır..
Genellikle kendi kendine teşhis sistemi sensörlerinin arızaları vardır - zayıf temas, açık devre, kısa devre.
Yer tipi kazanlar
Her bir Kiturami ayaklı makine, bir turbo siklon brülör ile donatılmıştır. Gerekirse dizel ile değiştirilebilir. Üretici üç versiyon sunar:
- STSG. Isıtma kapasitesi 15-35 kW. Kompakt. Kapasiteli DHW tankı. Çelik radyatör - sızıntıları engelleyen yenilikçi teknolojiler kullanılarak kaynaklanmıştır.
- TURBO. Düşük gürültü seviyesi. Eşanjör odasının orijinal yapısı - yanma ürünleri defalarca içinden geçer.
- KSOG. Diğer versiyonlardan büyük boyutlarda, daha yüksek ısı çıkışı - 58-454 kW ve özel ısı transfer borularının kullanımından farklıdırlar. Preslenmiş borular verimi artırır.


Hata kodları, şifre çözme ve nasıl düzeltilir
Kiturami kazanlarının en yaygın hatalarını düşünün:
| Kod | Kod çözme | Çözüm |
| 01-03 | Alevin başarısız ateşlemesi | Brülör memelerinin durumunu, hatta gaz olup olmadığını, vanaların durumunu ve besleme vanasını kontrol edin |
| 04 | Sıcaklık sensörü arızası | Kişilerin durumunu kontrol etme, sihirbazı arama |
| 05 | Kazan aşırı ısınma sensörünün arızası | Ustayı ara |
| 06 | Fan çalışma modu algılanmadı | Kişilerin durumunu kontrol edin, sihirbazı arayın |
| 07 | Yanlış fan hızı | Ustayı ara |
| 08 | Oda sıcaklığı kontrol cihazının kablo uzunluğu aşıldı | Kabloyu kesin, telefon hattıyla temas halinde olup olmadığını kontrol edin |
| 95 ve 98 | Isıtma devresinde düşük su seviyesi | Su ekleyin, sistemi sızıntılara karşı kontrol edin |
| 96 | Soğutucunun aşırı ısınması | Sirkülasyon pompasının çalışmasını kontrol edin, sistemdeki sıvı seviyesini artırın, ustayı arayın |
| 97 | Gaz kaçağı | Kazanı kapatın, pencereleri açın, uzmanları arayın |
Kiturami kazanlarının montajı


- Sıvı yakıt kazanları, ısıtılmış odanın sıcaklığına ±% 10-15 karşılık gelen bir sıcaklığa sahip bir odaya kurulur;
- Oda, fırın ekipmanı standartlarına uygun olarak besleme ve egzoz havalandırması ile sağlanmalıdır;
- Fırında bina ve yanıcı malzemelerin depolanmasına izin verilmez;
- Kazan dairesindeki zemin yıkanmalıdır. Suyu ve yağ ürünlerini boşaltmak için eğimli bir zemin yapılır. Kanalizasyon sistemi, yağ ürünleri için bir filtre ile donatılmalıdır;
- Kazan dairesindeki tavan yüksekliği en az 2300 mm'dir;
- Kazan, 50 mm'den daha ince olmayan yanmaz bir platform üzerine yerleştirilir. Bir tuğla veya beton platform yapılması tavsiye edilir;
- Kazan tamburundan duvarlara ve tavana (niş) olan mesafe en az 600 mm olmalıdır;
- Kazanın genleşme tankı, kazanın tepesinden bir metreden daha yüksek bir yüksekliğe monte edilmiştir;
- Kazana doğrudan su temini yasaktır. Bir depolama tankından tedarik önerilir;
- Sistemde sirkülasyon pompası kullanmak ve vanalı drenaj sistemi yapmak gereklidir;
- Kazanın elektrik bağlantısı için, bir devre kesici + RCD (artık akım cihazı) veya bir diferansiyel devre kesici ile korunan bir topraklama kontağına sahip ayrı bir kablo grubu gereklidir.
- Kazandan duman tahliyesi en az 50 cm dirsek ile "L" şeklinde bir baca ile yapılır, borunun ana bacaya olan eğimi 5˚ olmalıdır. Baca uzunluğu kazan yüzeyinden itibaren en az 3 metre olmalıdır.


Bunlar, Kiturami yağ kazanı kurmak için genel kurallardır. Kazanları kurmak ve garantiyi sürdürmek için uzmanları davet etmeniz gerekir.
© ObOtoplenii.ru
Fiyat aralığı
Kiturami gaz kazanlarının model yelpazesi çok geniştir. Ev modellerinin maliyeti (özel bir ev için) 30-60 bin ruble aralığında, ancak 100-800 bin rubleye mal olacak daha güçlü modeller de var.
Böyle bir fiyat farkı, kazanın güç ve yeteneklerinden, amacından ve tasarım özelliklerinden kaynaklanmaktadır..
Kural olarak, kullanıcılar daha düşük güç ve buna göre maliyet birimlerini seçerler.
Lütfen satın almadan önce teslimat koşullarını kontrol edin. Temel konfigürasyondaki kazanların bacası yoktur, bu nedenle hangi tipin gerekli olduğuna hemen karar vermeli ve sipariş vermelisiniz. Ayrıca hemen filtreler ve voltaj dengeleyici almalısınız..


Menteşeli kazanlar
En popüler olanları, hafif ve kompakt boyutlarda oldukları için Koreli üreticinin duvara monte gaz kazanlarıdır. Böyle bir kazan, mutfağa veya koridora veya başka bir küçük odaya monte edilebilir.
KITURAMI'nin duvara monte gaz kazanlarının modellerini düşünün:
- KITURAMI World 5000 modeli en güçlü modellerden biridir ve 350 m2 alana sahip bir odayı ısıtabilir. Bu kazanda kesinlikle herhangi bir soğutma sıvısını kullanabilirsiniz. Ekipman, yerleşik bir genleşme tankı ve bir sirkülasyon pompası ile donatılmıştır. Solenoid valf sayesinde gaz tüketimi azalır ve kazanın yaz aylarında kullanılması oldukça uygundur. Cihazı uzaktan kontrol edebilirsiniz.
- Model KITURAMI world 3000. İlave nozulların satın alınmasıyla, kazan azaltılmış gazla çalışacak şekilde dönüştürülebilir. Kazan, ayrı bir bakır ısı eşanjörü ve bir koaksiyel baca içerir.
- KITURAMI world plus modeli Rusya için özel olarak yapılmıştır. Bu modelde iki yerleşik ısı eşanjörü vardır, böylece su ısıtmayı kapatmadan ısıtılabilir. Bu modelde, içten yanmalı bir gaz brülörü sayesinde tam bir yakıt yanması ve ekonomisi vardır. Kontrolörün yardımıyla, bireysel ihtiyaçları dikkate alarak odayı ısıtmak için çalışma modunu ayarlayabilirsiniz. Standart olarak harici bir termostat takılmıştır.
- KITURAMI ECO Yoğuşmalı modeli, yoğuşma kullanarak ek ısı enerjisi alan yoğuşmalı bir kazandır. Termal enerji, toplamın yaklaşık% 10'u çıkarılır. Böyle bir kazan, Koreli üretici tarafından üretilen tüm modellerin en ekonomik olanıdır. Kazan, gerekli tüm işlevlerle donatılmıştır. 16 kW'a eşit termal enerji elde etmek için yaklaşık 1,6 m3 yakıt gerekecektir. Alan ısıtma için böyle bir yoğuşmalı kazan kullanmak çok faydalıdır.
- Model KITURAMI twin Alpha. Böyle bir kazanda, yanma ürünlerinin zorla çıkarılması ve hava enjeksiyonu vardır. Tasarım, bakır ve alüminyumdan yapılmış bir ısı eşanjörü kullanır. Birkaç mod sayesinde, çalışma ayarlarınızda ince ayar yapabilirsiniz. Ayrıca, soğutucunun aşırı ısınmasına ve karbondioksit girişine karşı korumak için kazana bir sistem kurulur.












