Vantagens de um recuperador de calor

Fogão a gás com placa
A estrutura versátil tem as características e propriedades de um recuperador de calor e de uma lareira. Na verdade, trata-se de um monobloco, dentro do qual existe um canal de descarga dos gases de combustão. A estrutura conta com fornalha com visor e fogão para cozinhar. São amplos espaços para a imaginação do designer, pois praticamente não existem restrições de tamanho, forma e revestimento. Requisitos estritos estão apenas na correta observância das proporções internas.
Méritos técnicos práticos:
- O aquecimento da sala ocorre rapidamente se a relação entre a lareira e a área da sala for proporcional.
- É possível usar separadamente uma fornalha ou fogão em estruturas onde eles não são combinados uns com os outros.
- A eficiência desse tipo de equipamento chega a 80%.
- As estruturas são simples de manter, pois todos os fornos são equipados com cinzeiros.
Se o recuperador de calor for desenhado profissionalmente e os materiais corresponderem às cargas térmicas, tal unidade pode servir durante várias décadas.
Mesmo um dispositivo de aquecimento bem feito requer o uso de um bom combustível, caso contrário, ninguém pode garantir um funcionamento a longo prazo.
Vantagens das lareiras de biocombustível
Vamos falar sobre as principais vantagens das lareiras para biocombustíveis e como funciona um sistema moderno.
- Para começar, uma biofireplace é uma versão da lareira doméstica com lareira que “brinca” num espaço envidraçado, o que garante a segurança das pessoas à sua volta (principalmente crianças e animais) e dos móveis.
- A instalação de uma biofireplace é uma ninharia em comparação com sua versão “a lenha”. Não há necessidade de construir um sistema de evacuação de fumaça para uma lareira ecológica.
- O combustível para a lareira usa combustível líquido biologicamente puro - este é o álcool que queima sem deixar resíduos e não faz mal à saúde de terceiros. A temperatura de combustão do combustível é baixa e a evaporação do dióxido de carbono é tão pequena que uma vela comum pode ser considerada uma fonte de calor mais perigosa.
- O combustível para a lareira está disponível no mercado e não é necessário reservar um cômodo separado para armazená-lo (por exemplo, como ocorre com a lenha).
- Uma grande variedade de modelos de lareira ecológica permite-lhe criar o interior com que sempre sonhou. Modelos individuais de lareiras são selecionados de acordo com a concepção da sala onde a lareira será instalada.
- A utilização de uma bio lareira não implica a presença de fuligem e sujidade.
- Essas lareiras são acessíveis.
- Uma bio lareira sem chaminé é uma excelente fonte de calor.
- E o principal, talvez, sua vantagem reside no fato de que a biofireplace pode ser facilmente instalada em seu próprio apartamento, mesmo que não seja muito grande.


Lugar para lareira


A localização ideal é na cozinha combinada com a sala de estar
A localização do recuperador de calor de tijolo para uma casa a lenha depende das preferências do proprietário e das tarefas que irá desempenhar. Na fase de planejamento da edificação, é necessário refletir sobre a localização do dispositivo de aquecimento e levar em consideração todas as condições necessárias para tal.
Você pode construir uma fornalha contra a parede externa. Neste caso, apenas aquecerá a sala em que se encontra, e as vizinhas, caso não esteja previsto pendurar portas nas aberturas interiores. A opção é adequada para pequenos edifícios de hóspedes ou chalés, onde o recuperador de calor é um elemento decorativo e funcional da cozinha-sala.Do ponto de vista técnico, é necessário providenciar uma fundação (não deve ser rigidamente ligada à fundação da parede de suporte), uma camada de isolamento térmico que evite que o calor escape através da parede para o exterior, e a ligação de da chaminé para o tubo externo.
Outro caso é a instalação nos dois lados, quando uma parte vai, por exemplo, para o quarto de hóspedes, e a segunda com um fogão elétrico - para a cozinha. Essa opção é prática, pois em qualquer caso, durante o funcionamento do aparelho, um maior volume de espaço é coberto, e o cheiro da comida sendo cozida será eliminado da área de lazer das pessoas. Do ponto de vista de economia, a localização é cómoda, já que só se gasta dinheiro decorando a lareira pela lateral da sala, por outro lado, limite-se a alvenaria bem cuidada. Se uma laje monolítica não for fornecida na casa, uma fundação de concreto armado deve ser colocada sob o edifício e o isolamento da fornalha da parede deve ser considerado, se esta for feita de materiais combustíveis.
Em casas de um cômodo com o cômodo principal espaçoso, você pode colocar o fogão no meio, então o calor será distribuído uniformemente em todo o perímetro e efetivamente aquecerá o edifício.
Uso doméstico
Biofireplace com design clássico.
A localização da lareira, a sua configuração, a potência são limitadas apenas pela imaginação de quem a quer em casa. Esta versátil casa pode estar localizada em um apartamento ou em uma casa de campo.
Desde que o biogás seja utilizado como combustível, uma lareira a gás para chalés de verão sem chaminé é a solução ideal. Neste caso, também pode ser instalada uma lareira aberta. Este design é móvel e pode ser movido de um lugar para outro. Se uma versão estacionária da lareira for fornecida, a alvenaria original servirá como um complemento.
Não devemos esquecer as medidas de segurança. Se a lareira for embutida, é necessário cumprir todos os requisitos de segurança contra incêndios e costurar as paredes com material isolante térmico.
Se o verão for dedicado à dacha, o resto do ano será passado no apartamento. Mas mesmo aqui você quer conforto, aconchego e um lar. Existe uma grande variedade de opções de localização de uma lareira a gás para um apartamento sem chaminé. É equipado com um queimador de gás de aço temperado especial, sensores automáticos de gás e um elemento piezoelétrico. O queimador pode ser escondido atrás da decoração de madeira. Você mesmo pode conectar a lareira ao cilindro sem entrar em contato com serviços especiais. Outro bom bônus é a presença de um controle remoto para o poder de queimar a chama.
Aconselhamo-lo a descobrir qual o risco de transferir a bateria para a loggia.
Leia: quais os materiais usados para o telhado da casa.
Descubra como isolar adequadamente uma varanda e quais materiais são necessários para isso.
Há uma série de nuances ao instalar esse complemento para o interior de uma casa:
- tendo em vista o uso de gás como combustível, atenção especial deve ser dada à integridade dos cilindros;
- é necessário respeitar a segurança contra incêndios e não poupar numa lareira com funções de desligamento automático do gás.
Cálculo estrutural


O recuperador de calor para aquecimento pode ser dobrado em tijolo, respeitando as proporções
Um recuperador de calor para aquecimento de uma casa pertence a este tipo de estrutura que não se faz a olho nu, aqui cada tamanho importa. A questão não é sobre a decoração (você pode folhear o aquecedor como quiser), mas apenas os principais elementos de funcionamento da estrutura:
- fornalha;
- cinzeiro;
- chaminés.
A exceção são os produtos em que o tijolo resistente ao calor é ao mesmo tempo um tijolo de fachada - aqui é necessário 100% de conformidade com as proporções. Há muitos casos em que o desconhecimento de tais recomendações acaba deslocando todo o maciço após testar o foco de operabilidade.
Qualquer recuperador de calor é disposto de acordo com um determinado padrão. Existem muitos desses desenhos, é fácil calcular sua instalação usando-os.As dimensões lineares do esquema selecionado são tomadas como um ponto de referência, que se adaptam ao seu clínquer de construção existente - aumente ou diminua-as proporcionalmente. O desenho assume uma representação ordinal da alvenaria. Calculada a quantidade de material em cada linha, vão para o número total do operário de alvenaria nas peças portantes, refratárias à fornalha, e também são determinadas com a necessidade de lintéis e chapas de aço.
Ferramentas e materiais necessários para construção


Ferramentas de assentamento de tijolos para fogões de tijolos
A ferramenta de que você precisa para construir um forno:
- Espátula de pedreiro para aplicação de argamassa no plano de alvenaria;
- nível do pavilo e linha de prumo para manter a posição vertical e horizontal das linhas e paredes do edifício;
- um esquadro de aço e um lápis, necessários para marcar as partes do clínquer para corte;
- moedor com círculo vitorioso e disco de corte de metal para corte de estruturas de concreto e tiras de aço;
- fita métrica para fazer medições;
- um balde para servir a solução e um recipiente de mistura;
- um martelo de borracha para tirar o clínquer após o assentamento na argamassa;
- alicates e pinças necessários ao cortar malha de reforço;
- cordel de construção para apertar a linha frontal da elevação da parede.
A construção de um recuperador de calor é uma tarefa mais exigente do que apenas paredes, por isso os instrumentos de medição devem ser verificados sem falhas.
O tijolo é usado como o principal elemento de construção para alvenaria. Na maioria das vezes, são variedades de materiais comuns, obtidos da argila, ou opções de materiais futuros. Todas as misturas à base de argila refratária são adequadas para colagem. Também são necessárias chapas de aço com cerca de 3 mm de espessura, tiras de metal, cantos, pregos e malha de alvenaria.
Os tijolos fireclay são materiais insubstituíveis na construção de fornos. Isso se deve à sua resistência a altas temperaturas. Elementos são usados para organizar o espaço de combustão, menos frequentemente como os frontais. O tijolo de tipos de clínquer, devido à sua grande massa e densidade, é mais adequado para construir a fundação de uma instalação. O encaracolado já vai para o revestimento ao criar um determinado aspecto decorativo.
Fogão com lareira de tijolos faça você mesmo
Fazer uma fornalha de clínquer é uma tarefa para um artesão experiente. A dificuldade reside não tanto em aderir à sequência de assentamento da alvenaria, mas na manutenção exata das proporções da fornalha, cinzeiro, configuração da chaminé e todas as suas transições. Mas se você não tem habilidades profissionais, pode tentar construir uma fornalha sozinho. É importante escolher um diagrama de trabalho e desenhar lentamente linha por linha ao longo dele.
Design frente e verso


Recuperador de calor dupla face com porta de vidro resistente ao calor
Para iniciantes no negócio de fornalhas, você pode considerar fogões de lareira simples de dupla face - dispositivos com uma fornalha direta. A vantagem de tal estrutura pode ser considerada a capacidade de aquecer duas salas adjacentes ao mesmo tempo. Não há passagens intrincadas com curvas e inclinações com um certo ângulo - a chaminé sobe em linha reta, passando da coifa para o tubo ao longo de um trapézio.
Um recuperador de calor de dupla face fácil de implementar consiste nos seguintes elementos:
- base - uma fundação derramada de concreto ou colocada de pedra;
- área do cinzeiro - uma parte larga ou base do dispositivo de aquecimento, onde há um nicho, fechado em ambos os lados por portas de sopro;
- grupo grelha, que é o elemento divisor entre a área de queima da lenha e o local de coleta das cinzas;
- uma câmara de passagem de combustão, onde em ambos os lados existem portas de vidro à prova de fogo ou uma porta de um lado e um fogão do outro;
- compartimento de coleta de fumaça para acumulação de produtos de combustão;
- trompete.
Um ligeiro desvio das proporções não fará com que a estufa não funcione. É importante prestar atenção especial à proporção entre o tamanho da fornalha e o espaço acima do forno para coletar a fumaça.O volume dos elementos deve ser aproximadamente o mesmo, ou você pode aumentar ligeiramente a coifa de coleta de fumaça. Este último também deve em sua parte superior se assemelhar a um trapézio, cuja base superior é a entrada do tubo.
Design pequeno


Os aparelhos embutidos em tais estruturas precisam de isolamento com materiais refratários
Uma lareira de tijolos para um queimador de fogão também não é difícil de fazer com suas próprias mãos. É uma fornalha quadrada de 2,5 tijolos de comprimento, onde existe um cinzeiro com uma porta na parte inferior, na parte central existe uma porta de vidro para armazenamento de lenha (através da qual se pode observar a chama acesa), termina a tampa superior com um fogão de ferro fundido com círculos. Em tal estrutura, você nem precisa fazer o layout de um tubo. A chaminé é representada por um canal ao lado da fornalha, que é conectado a um tubo externo de metal ou galvanizado.
Não é necessário falar sobre as altas possibilidades decorativas de um tal aquecedor a lenha devido à sua simplicidade, mas se você escolher um material refratário de alta qualidade e fizer o trabalho com cuidado, mantendo perfeitamente o nível, fazendo a junção, você pode alcançar uma aparência atraente.
Lareira da Super Isola em um nicho
Nas fornalhas e fogões com a disponibilidade de taxa fixa de 75 rublos. por 1 Euro Equipamento marcado PREÇO FIX!
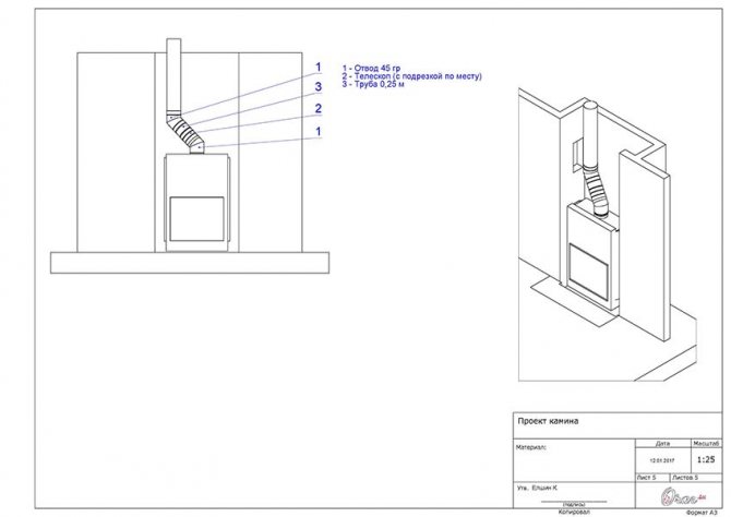
Tudo começou com um cálculo preliminar do custo dos materiais e instalação da lareira. Em seguida, realizou-se uma viagem ao objeto para medições e foi realizado um esboço do projeto da lareira com desenhos do duto de convecção. Após todas as aprovações, entregamos os materiais e concluímos a instalação, que durou dois dias inteiros.
O projecto de design de uma sala com lareira permite-nos compreender com clareza a essência da estrutura e orienta o nosso trabalho. Vemos qual deve ser o resultado final e ajustamos as dimensões da lareira a este resultado.


A composição do projeto da lareira embutida.
A chaminé Vulcan foi instalada antes de nós. A plataforma de suporte é baixa, mas o projeto mostrou que a altura permite a conexão da fornalha. Temos um projeto de design, esboço e desenhos da câmara de convecção, compramos uma fornalha Stil-Kamin 62/76 k da Brunner e estamos começando a instalá-la. O primeiro estágio é costurar um tubo (não isolado de aço inoxidável) em uma caixa Super Isol. Além disso, envolvemos o tubo até a mina de tijolos com Super Força. A segunda etapa é o revestimento das paredes traseiras e laterais. Para deixar um vão de 3 cm entre as paredes e a caixa, confeccionamos espaçadores - esquadros Super Isol, que são colados na parede, e já são fixadas lâminas de isolamento. Posteriormente, instalamos uma inserção para lareira no local preparado e a conectamos à chaminé com tubos e tomadas de aço inoxidável.
Depois de instalar e conectar a inserção da lareira, só precisamos colocar Super Isol sob a fornalha e costurar a parte frontal da caixa de convecção. As grades de entrada e saída de ar estão localizadas na parede lateral esquerda da sala adjacente. O tamanho das grelhas é 490x170 mm. A seção transversal das grelhas atende aos requisitos do fabricante do forno e é de cerca de 700 cm2.
A primeira parte do trabalho está concluída. A fornalha é costurada em uma caixa Super Isol, conectada à chaminé e fizemos a primeira fornalha para verificar o funcionamento da lareira. Além disso, será montada uma moldura feita de perfis com revestimento com folhas de placa de fibra de gesso com largura de 1670 mm. Um portal de mármore será anexado a esta estrutura.
Inserções de lareira de convecção
0%
Inserção para lareira Horizont VD 850/620 Linha Extra Kobok
RUB 291 617 RUB 291 617
Disponibilidade
- Em ordem
Esgotado Adicionar ao carrinho
-20%
ESTOQUE!
Inserção da lareira Albero 16 G.H Hitze
RUB 127 800 RUB 102.240
Disponibilidade
- Em estoque
Esgotado Adicionar ao carrinho
-20%
ESTOQUE!
Inserção da lareira Albero 16 L.G.H Hitze
RUB 140.760 RUB 112 608
Disponibilidade
- Em estoque
Esgotado Adicionar ao carrinho
0%
Inserção de lareira vertical LE VD 670 × 900 Kobok
RUB 257.570 RUB 257.570
Disponibilidade
- Em ordem
Esgotado Adicionar ao carrinho
0%
Inserção para lareira Horizont VD 970/700 Line Extra Kobok
RUB 351 842 RUB 351 842
Disponibilidade
- Em ordem
Esgotado Adicionar ao carrinho
0%
Inserção para lareira Horizont VD 800/570 Standart Kobok
RUB 212.250 RUB 212.250
Disponibilidade
- Em estoque
Esgotado Adicionar ao carrinho
0%
W2 lareira inserto KawMet
RUB 60 691 RUB 60 691
Disponibilidade
- Em estoque
Esgotado Adicionar ao carrinho
0%
Horizont 670/570 inserto de lareira Standart Kobok
RUB 144 679 RUB 144 679
Disponibilidade
- Em ordem
Esgotado Adicionar ao carrinho
Materiais e acessórios para lareira
0%
Skamotec 225 (Superizol) 1220x1000x30 de isolamento para lareiras
RUB 4 051 RUB 4 051
Disponibilidade
- Em estoque
Esgotado Adicionar ao carrinho
0%
Grelha da lareira 17x17 branca
RUB 880 RUB 880
Disponibilidade
- Em estoque
Esgotado Adicionar ao carrinho
0%
Grelha da lareira 17x30 branca
RUB 1.250 RUB 1.250
Disponibilidade
- Em estoque
Esgotado Adicionar ao carrinho
0%
Grelha da lareira 17x49 branca
RUB 2 450 RUB 2 450
Disponibilidade
- Em estoque
Esgotado Adicionar ao carrinho
0%
Automação de lareira RT08 OM Grafik
RUB 37 397 RUB 37 397
Disponibilidade
- Em estoque
Esgotado Adicionar ao carrinho
0%
Skamotec 225 (Superizol) 1000х610х40 de isolamento para lareiras
RUB 2.493 RUB 2.493
Disponibilidade
- Em ordem
Esgotado Adicionar ao carrinho
A lareira é uma estrutura complexa com muitas sutilezas e nuances. Se você construir uma lareira do zero, precisará de uma chaminé e um revestimento de lareira confiáveis. Poderá encomendar-nos acessórios e equipamentos para a lareira, iremos calcular a quantidade para o projecto e garantir a entrega de todo o conjunto ao objecto.
Estamos em contato Callback Chat Precisamos medir
projeto, fabricação, instalação de lareiras
Alvenaria - sequência


Depois de organizar a fundação, você deve seguir estritamente a ordem
As etapas iniciais de assentamento e preparação da argamassa refratária devem ser realizadas com antecedência. Processo de pedido:
- A fileira inferior é disposta em material de cobertura, expondo o clínquer com um atrito. A área de cobertura deve ser igual ao tamanho da sola inferior, excluindo a espessura do material de revestimento.
- Isso é seguido pela instalação do soprador. A porta pode ter comprimentos diferentes, mas é desejável que a sua altura não exceda a altura da quarta fila do edifício. Todos esses níveis são dispostos, formando um nicho interno para o acúmulo de cinzas.
- A próxima quinta linha de chamotte é o plano de sobreposição do cinzeiro e a base para a instalação do grupo de grelha, a partir do qual começa a seção do forno. Com a ajuda dele, eles fazem uma protuberância para a frente.
- Depois de instalar a grelha, os próximos quatro níveis até 9, inclusive, erguem a fornalha. Uma das paredes deste compartimento (geralmente a frontal) é uma moldura de metal com uma porta de ferro fundido ou vidro instalada nela. Esta é uma janela de visualização e uma entrada para colocar lenha.
- Se o projeto prevê uma versão aberta, a fornalha continua a ser erguida até a vigésima fileira e em torno de 16, 18 fileiras, a base do espelho é montada.
- Em seguida, eles mudam para a instalação vertical de chamotte e fazem uma ligeira inclinação com extensão dentro da estrutura. Esse estreitamento continua a ser feito até o nível 21.
- As próximas duas linhas de elevação formam o chamado dente de chaminé, que se projeta 20 cm para a frente dentro da fornalha, após o que as outras duas linhas vão para o dispositivo de prateleira.
- Em seguida, eles começam a formar um coletor de fumaça, cuja parede posterior corre suavemente, e a frontal se estreita como um trapézio para o tamanho da passagem do tubo. Este estreitamento progressivo é realizado aproximadamente nas próximas 9 ordens.
A alvenaria subsequente é a construção de uma chaminé de tijolo, cada fila com as mesmas dimensões em relação à secção interna de passagem dos fumos. Na junção entre o coletor de fumaça e a tubulação, é necessário instalar um amortecedor de fumaça, que pode ser do tipo retrátil ou rotativo com um botão de controle destacado.
Todas as atividades de construção para a construção da estrutura do forno devem ser realizadas controlando os ângulos de elevação vertical com um fio de prumo. Grandes desvios são inaceitáveis aqui, o que complicará o revestimento adicional.
Design simples e confiável
Alta estética de biofireplaces.
A possibilidade de localização das lareiras é variada e, dependendo disso, estão divididas em chão, parede, mesa (em termos de compactação não ultrapasse as dimensões de uma vela), teto e esquina.
Aspectos positivos do uso:
- a ausência de chaminé permite colocar a lareira em qualquer parte da divisão;
- versatilidade e facilidade de manutenção não levarão muito tempo para a ignição;
- não há necessidade de limpeza constante de fuligem nas superfícies;
- em termos de transferência de calor é semelhante a um aquecedor com capacidade de até 3 kW;
- excelente beleza estética;
- as propriedades relaxantes do fogo permitem que você alivie o estresse e relaxe;
- o design impecável das linhas vai caber em qualquer interior, decorá-lo e adicionar variedade ao ambiente.
Os principais elementos de uma lareira sem chaminé:
- um queimador de biocombustível de metal ou cerâmica (é importante prestar atenção à potência do módulo de combustível para obter a transferência de calor necessária);
- corpo refratário com projeto lacônico feito de metal forjado, vidro, cermets, pedra e outros materiais resistentes ao fogo;
- a lenha na lareira é usada decorativa, cerâmica ou pedra.
Esquema de ignição
Lareira sem chaminé no apartamento.
Para acender a lareira, você precisa:
- encher o módulo de combustível com bioignição (só quando a lareira não estiver funcionando, apague e deixe esfriar);
- atear fogo ao pavio (é aconselhável usar um isqueiro comprido neste caso);
- nivelar a chama com o regulador especial.
Características dos biocombustíveis
O biocombustível é uma substância especial obtida a partir de componentes naturais que, quando queimados, não formam fumaça, fuligem e fuligem. Se você usar esse combustível na forma líquida, então 1 litro é suficiente para cerca de 4 horas de funcionamento da lareira. A eficiência desse combustível é de 95%. É feito a partir de componentes vegetais por fermentação de batata, cana-de-açúcar e outras safras. O segundo método é obter álcool de madeira ou palha por hidrólise desses produtos. O terceiro método de obtenção de combustível no processamento de gorduras vegetais e animais a partir de óleos de culturas orgânicas e resíduos da indústria alimentar.
Importante: é proibido o uso de álcool puro durante a ignição.
Alguns combustíveis são produzidos com vários aditivos de aroma.
O gás obtido no processamento do lixo também é um tipo de biocombustível.
Recomendamos que você aprenda a fazer você mesmo um piso aquecido na varanda.
Leia: como fazer uma área cega com as próprias mãos.
Devido ao fato de que durante a combustão da ignição biológica são liberados dióxido de carbono e vapor d'água, a chama tem uma cor laranja muito rica. Se comprar biocombustível com adição de sal marinho, poderá desfrutar plenamente do jogo do fogo e do crepitar natural da lenha.















