informações gerais
Por que você precisa de recipientes de água feitos de metal ou qualquer outro material? A resposta a essa pergunta é óbvia, mas para alguns ela permanece em aberto. O fato é que cada um usa tanques de armazenamento à sua maneira. Seu objetivo é coletar e armazenar água para uso futuro. E como e de que forma você fará isso - cabe a você decidir.
O tanque pode ter um formato diferente, dependendo de sua finalidade. Um grande acumulador retangular regular pode ser usado para coletar a água da chuva. Para um chuveiro de verão, você pode usar um tanque baixo e plano, que pode ser facilmente montado em cima de uma estrutura de metal. Tudo depende da finalidade do aplicativo.

Freqüentemente, tambores de metal comuns são usados como tanques de armazenamento. Esta é uma opção prática e econômica, mas nem sempre conveniente. Principalmente por causa de sua tampa aberta, por onde os insetos entram na água, e as plantas e a ferrugem se formam nas paredes do tanque. Ele também pode ser usado para coletar água da chuva apenas se você tiver calhas e a capacidade de conduzir o tubo diretamente ao barril.
Para não sofrer com os barris, os artesãos fazem tanques de metal artesanais. Possuem design simples e baixo custo. Abaixo você pode ver um dos possíveis desenhos do tanque de armazenamento. Este recipiente é pequeno, mas grande o suficiente para conter até 200 litros de água.


Características do equipamento e segredos de fabricação
Agora é hora de falar sobre como criar uma destilaria de luar a partir de tubos de cobre com suas próprias mãos. Na verdade, não há nada de difícil nisso, você só precisa seguir algumas regras.
Um moonshine self-made feito de um tubo de cobre tem uma série de vantagens e recursos. Em particular, todos os processos, incluindo os químicos, que ocorrem nele, diferem significativamente daqueles que ocorrem em outros produtos.
O principal produto alcoólico - bebidas alcoólicas de alta qualidade (conhaque, calvados, uísque, conhaque) - é feito exclusivamente em aparelhos de cobre. O cobre absorve todos os compostos de enxofre que aparecem no purê durante a fermentação, mas isso é especialmente verdadeiro para o purê de grãos e frutas.
Se falamos sobre as diferenças mais pronunciadas, então várias delas devem ser destacadas:
- alto nível de condutividade térmica - tem efeito positivo na qualidade final do produto;
- durabilidade e confiabilidade - um destilador de luar de cobre, feito à mão de acordo com desenhos, é na verdade eterno, não se desgasta;
- sabor mais intenso - há muito que se sabe que é este metal que permite obter um aroma mais subtil e um sabor agradável, devido a processos químicos especiais que eliminam quase completamente o óxido de enxofre e certos ácidos gordos;
- exposição mais rápida - o tempo de infusão é reduzido;
- respeito ao meio ambiente - ao contrário dos produtos de alumínio ou modelos feitos de plástico de baixa qualidade, neste caso não há liberação de compostos e substâncias nocivas, perigosas e absolutamente inúteis que podem alterar o sabor e reduzir a resistência final;
- aparência apresentável - uma bobina de cobre artesanal para um luar ainda parece incrivelmente bela e atmosférica, totalmente consistente com o processo que você está realizando.
Entre os aspectos negativos, vale destacar o custo final relativamente alto desse modelo. No entanto, pode ser significativamente reduzido se forem usados tubos de cobre e todos os outros componentes forem feitos de aço ou plástico.
Com o tempo, uma fina camada de óxido aparece no produto de cobre. Não tem um efeito perceptível no paladar, mas os especialistas recomendam se livrar dele em tempo hábil, evitando um grande aumento. O melhor remédio de óxido de cobre é o suco de limão ou ácido cítrico concentrado.
Como fazer uma destilaria de luar de cobre
É imediatamente necessário compreender que esta não é uma tradicional destilaria lunar, sobre a qual tanto temos escrito. Esta é uma coluna de reforço, onde duas correntes interagem simultaneamente - líquido e gasoso.
A destilação - a tradicional aguardente ainda funciona de acordo com esse princípio - implica na separação do vapor em vapor próprio e condensado, que desce pela serpentina e entra no tanque receptor. Este processo ocorre uma única vez em uma destilação.
A retificação é um processo de natureza diferente, que garante a interação constante das duas frações - líquida e gasosa, devido ao qual ocorre uma purificação dos cristais e alto teor (até 960) da bebida. Quando o mosto ferve na destilação ainda, o vapor tende para cima na coluna e se condensa no condensador de refluxo localizado na parte superior. Além disso, o condensado flui para baixo e uma nova porção de vapor já está se movendo em direção a ele. Como resultado, verifica-se que em cada estágio da coluna há uma interação constante de ambas as frações.
O material ideal para a fabricação de tal coluna é o cobre, que é absolutamente seguro para a saúde mesmo em altas temperaturas e muito menos exposto ao álcool. A principal vantagem do cobre é que ele absorve todos os compostos à base de enxofre que surgem inevitavelmente da fermentação do mosto. A menor quantidade de enxofre na produção do farelo é à base de açúcar e água, a maior à base de frutas e cereais.
A altura da coluna de cobre é selecionada de forma que em sua parte superior haja uma temperatura de 78 ° C - ponto de ebulição do álcool. Nesse caso, apenas o álcool chega ao topo e TODOS os óleos fúsel, com ponto de ebulição acima de 100 ° C, depositam-se no evaporador.
Para fazer imagens destiladas de cobre com suas próprias mãos, é recomendável assistir ao vídeo correspondente - para que você possa apreciar visualmente todas as nuances.
Tanque de água caseiro
Estágio preparatório
Em primeiro lugar, você deve ter um desenho de acordo com o qual é necessário cortar previamente os espaços em branco necessários. A Internet está cheia de desenhos, você pode usar qualquer um deles, ou o que está indicado acima.
É melhor fazer um tanque para a casa e um tanque de banho de aço inoxidável. O aço inoxidável é resistente à corrosão e à formação de plantas nas paredes, o que é importante se o recipiente for utilizado de forma irregular (por exemplo, apenas no verão). Como material, você pode pegar um metal com uma espessura de parede de cerca de 2 milímetros, isso será o suficiente.
O recipiente deve ter um tanque de expansão no qual o excesso de líquido será drenado. Caso contrário, o tanque de armazenamento pode deformar devido à sobrepressão. O tanque de expansão pode ser feito dos mesmos materiais.
Se as finanças não permitem o uso do aço inoxidável, pode-se comprar aço (técnico ou alimentar). É mais barato. Mas lida com corrosão às vezes pior. Por favor, tenha isso em mente.
Soldagem de tanque
Vamos passar para a questão de como preparar o tanque de maneira adequada.
Melhor trabalhar com um parceiro. Um vai cozinhar e o outro vai segurar as peças no ângulo certo. Também recomendamos colocar tijolos ou placas sob o futuro fundo para que o avião fique nivelado.
Cozinhar aço inoxidável não é fácil, você precisa ter pelo menos um mínimo de experiência. Então, o trabalho pode acabar sendo de qualidade mais ou menos alta. Use soldagem de argônio com eletrodos de tungstênio ou fio de aço inoxidável.
Desenho da caldeira da sauna
Categoria: Acessórios 5 021
0
Uma caldeira para banho desenha um tanque de água quente ou um tanque de armazenamento com um volume de cem litros, um projeto caseiro e de fácil fabricação. É bom usá-lo em uma pequena banheira, onde a sauna a vapor é combinada com uma pia.


Vamos considerar o esquema de preparação de água quente.


1. Radiador de aquecimento
... Padrão, ferro fundido, montado em quatro seções (a distância entre os eixos das tubulações de entrada e saída é de 500 mm). Ele é instalado no forno de aquecimento no nível da grelha no lado direito ou esquerdo do compartimento do forno em relação à porta de aquecimento.
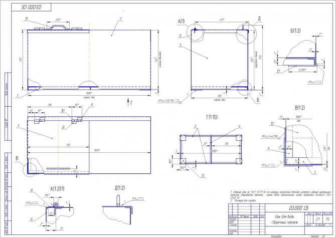
2. Tanque de expansão (tanque de armazenamento).
Atua como amortecedor de vibrações para o tanque de água quente quando é ejetado do radiador. O tamanho do recipiente é 200x200x140mm. É soldado em chapas de aço inoxidável com 2 ... 3 mm de espessura. Para dar rigidez adicional ao corpo, reforços são soldados em seu interior, que amortecem a energia de ejeção da água aquecida e ao mesmo tempo servem como canais adicionais.


A entrada e a saída do produto aquecido são fornecidas através de rodos em polegadas.
3. Caldeira para banho.
O tamanho da caldeira é 706x706x210mm. É soldado em chapas de aço inoxidável com 3 ... 4 mm de espessura. Rodos em polegadas são fornecidos para entrada e saída de água. Para rigidez da estrutura, placas com largura de vinte e cinco milímetros são soldadas por cima ao longo do perímetro.


Conectamos as três unidades apresentadas com tubos galvanizados em polegadas ou mangueiras de borracha resistentes ao calor. Além disso, da saída do tanque e da entrada do radiador, a tubulação deve ser colocada horizontalmente, ou em ângulo em direção ao radiador. Coloque o tanque de armazenamento acima da caldeira. O sistema deve ser construído de forma que o radiador seja totalmente preenchido com o meio de trabalho. Isso manterá as juntas de interseção do radiador intactas contra superaquecimento. O princípio do aquecimento a vapor é tomado como base. À medida que a água vai aquecendo, sobe para o topo, circulando em circuito fechado. O aquecimento até o ponto de ebulição ocorre em duas horas e meia a três horas. Este esquema foi testado em nosso próprio banho. Funciona perfeitamente. O reservatório de água quente está localizado não muito longe das camas, é conveniente jogar água quente sobre as pedras quentes. Se quisermos manter a água quente por muito tempo, é melhor colocar um recipiente para água acima das pedras, veja o artigo “Desenho de um fogão para banho”. Neste projeto, a chaminé é centrada dentro do tanque. O tamanho da chaminé corresponde a uma pilha de seis tijolos vermelhos padrão para forno por linha (250x250mm). A chaminé no centro aumenta a rigidez e resistência do produto, que agüenta livremente não um pequeno peso do tubo de tijolo. É soldado em chapas de aço inoxidável com cinco milímetros de espessura. Ele fornece as seguintes unidades: - entrada de produto frio (uma polegada de segundo); - saída do produto quente no compartimento de lavagem (três quartos de polegada); - saída do produto quente na sala de vapor (uma polegada de segundo); - furos tecnológicos para alívio de pressão (a seu critério), a eles é fornecida a tubulação adequada, levando em consideração o layout de toda a sala. Um tubo de tijolo vermelho é instalado no topo. Um diagrama detalhado da ordem do tubo é descrito no artigo "Desenho de um tubo. Construindo um tubo de tijolo vermelho. Esquema de pedidos ". O fogo do compartimento da fornalha passa pelas pedras e pelo tanque. Após 2,5 ... 3 horas do forno, pedras e água são aquecidas. O calor das pedras mantém o conteúdo do recipiente quente por muito tempo.
Desenho de pedido
Compartilhe com os seus amigos!
Recomendações dos mestres
Coletamos algumas dicas de soldadores profissionais. Eles serão úteis para iniciantes e artesãos de dacha.
É melhor usar aço inoxidável grau 8-12X18H10 ou AISI 430 08X17 como material. Essas marcas são mais adequadas para armazenamento de água, incluindo armazenamento de longo prazo.No entanto, é melhor drenar a água antes do inverno.
Antes de soldar uma caixa d'água de aço inoxidável, é preciso decidir o seu volume e, a partir disso, fazer um desenho. Para um banho, basta um tanque de até 60 litros para duas ou três pessoas. Em média, uma pessoa precisa de cerca de 20-30 litros de água.
Se você estiver cozinhando um tanque para necessidades domésticas, é melhor estocar um volume de 100 litros ou mais. 200 litros é ideal para regar jardins e coletar água da chuva.
É melhor desistir da ideia de soldar uma caixa d'água de alumínio. Em casa, não é fácil fazer costuras seladas de qualidade. O aço inoxidável também não é fácil de cozinhar, então essa tarefa é bastante viável. Mas para trabalhar com alumínio, você precisa de experiência e uma boa máquina de solda.
Dependendo do tamanho do tanque e da sua experiência, todo o processo pode levar de algumas horas a vários dias. Se você nunca cozinhou antes, pratique com peças desnecessárias de metal. Afinal, o aço inoxidável não é um material barato. E é improvável que você fique feliz se, sem saber, soldar um tanque com costuras defeituosas e ele se tornar inutilizável.
Fazendo um tanque de armazenamento de calor com suas próprias mãos
H2_2
Escolha de design


Os acumuladores de calor são de dois tipos:
- Com um trocador de calor - um trocador de calor é colocado dentro do tanque na forma de uma espiral feita de um tubo de aço inoxidável (ou cobre), que é conectado diretamente à caldeira, como resultado do qual o refrigerante da caldeira se move ao longo de um circuito separado e devido a isso a água é aquecida;
- Sem um trocador de calor - o transportador de calor na caldeira e no sistema de aquecimento é o mesmo.
Um tanque com trocador de calor é usado quando mais de uma fonte de energia térmica é conectada ao acumulador de calor, por exemplo, além da caldeira, um coletor solar ou uma bomba de calor também está conectada, ou a pressão no circuito da caldeira é inaceitável para o sistema de aquecimento, etc.
Adendo! Se houver apenas uma caldeira no sistema de aquecimento, é mais fácil fazer um acumulador de calor com as próprias mãos sem um trocador de calor.
Instruções passo a passo para a construção de um tanque de armazenamento de água
Como os tanques de armazenamento são usados
Se o seu local tiver problemas sérios com o abastecimento regular de água, será muito difícil ficar sem um tanque de armazenamento de água. Em tais recipientes, tanto a água da torneira quanto a da chuva podem ser armazenadas. O abastecimento de água pode ser útil para organizar uma chuva de verão, bem como em caso de possível incêndio. Além disso, a água do reservatório é utilizada para irrigação e "necessidades balneares".
Existem vários tipos comuns de projetos de tanques de armazenamento, mais comumente retangulares ou circulares.
Para determinar o tamanho ideal do tanque no seu caso, é necessário entender claramente as possíveis necessidades de água do local por um determinado período de tempo. Portanto, se você raramente usa o recipiente, há uma grande probabilidade de que vários organismos prejudiciais se multipliquem dentro dele. Essa probabilidade pode ser várias vezes maior se o tanque não estiver protegido da luz solar. Portanto, é realmente muito importante decidir com antecedência sobre o volume ideal do tanque.
Outro ponto importante: se se trata de um tanque de metal ferroso, não podemos dispensar pintura e primer, senão a estrutura enferruja inevitavelmente e rapidamente.
Tipos de recipientes
Este projeto não é um capricho, mas uma necessidade, uma vez que a água pode ser fornecida estritamente no horário ou até mesmo ausente.
Infelizmente, durante o tempo seco, as plantas podem não esperar que a rega comece. Dói ver como vegetais e frutas, flores morrem sob os raios escaldantes do sol. A única opção para salvá-los é um recipiente como fonte adicional de água.
Um recipiente para armazenamento de água pode ser adquirido em estabelecimentos comerciais especializados. Nesse caso, será possível resolver o problema rapidamente sem fazer nenhum esforço físico. No entanto, você terá que incorrer em custos financeiros.
Se não houver um desejo particular de jogar fora os fundos ganhos e houver necessidade de um suprimento adicional de água, um reservatório para coletar e armazenar água pode ser criado de forma independente.
Os recipientes caseiros são criados com base em um material adequado, que são:
- árvore;
- metal;
- plástico.
Cada uma dessas opções envolve o uso de ferramentas adequadas e a implementação de ações estritamente de acordo com as instruções.
Além disso, os recipientes de água diferem dependendo da finalidade. Se a água for necessária para regar o jardim, o tanque deve ter volume suficiente.
Os proprietários de chalés de verão costumam construir. Também requer água para funcionar. A capacidade de captação de água pode ser pequena ou média, dependendo dos familiares que planejam fazer tratamentos de água todos os dias.
Em alguns casos, o objetivo da aquisição ou construção de um reservatório de água adicional é fornecer um abastecimento de água potável. Requisitos adicionais são apresentados para tais recipientes, uma vez que é importante manter a pureza e a qualidade da água potável.
Auto-criação de contêineres a partir do ônibus
Se você não pode comprar um tanque de água por uma pequena quantia e não quer gastar muito dinheiro, você mesmo pode criar uma estrutura.
O tanque de armazenamento pode ser feito com materiais de sucata disponíveis na fazenda, ou podem ser emprestados de vizinhos ou conhecidos gratuitamente.
Por exemplo, você pode usar pneus velhos. É desejável que se trate de pneus para tratores, pois possuem um diâmetro maior.
Inicialmente, eles determinam o local onde a estrutura será posteriormente instalada. Este espaço é nivelado, a partir do qual se iniciam a confecção da estrutura básica, seguindo o passo a passo:
- a parte interna superior é cortada do pneu;
- o pneu cortado é colocado no local preparado;
- preparar a solução combinando areia e cimento na proporção de 3: 1, adicionando água até obter uma mistura de consistência de creme azedo espesso;
- a solução é despejada no fundo do pneu, nivelando a superfície;
- o pneu com a solução é coberto com polietileno e deixado por uma semana (o polietileno desempenha funções de proteção, evitando os efeitos negativos da chuva);
- depois de uma semana, o filme é retirado, o volume é preenchido com água.
Não é difícil criar tal tanque, mas é importante lembrar que a água desse tanque só pode ser usada para fins técnicos. Uma excelente vantagem de tal tanque é que a massa de água acumulada nele se aquece rapidamente.
Estágios de soldagem
Na fase inicial da soldagem, as placas devem ser colocadas sob os cantos da chapa, que servirão de fundo. É importante que a espessura do substrato seja a mesma. Isso dará um plano plano ao longo de todo o comprimento e nos cantos da estrutura.
Durante o processo de soldagem, é necessário verificar constantemente se as laterais não ultrapassam a base. Você pode agarrar todos os lados imediatamente e soldar na base.
As folhas devem se encaixar perfeitamente. A próxima etapa é a soldagem final das costuras. A soldagem pode ser feita dentro ou fora do tanque.
A falta de penetração não deve ser. A auto-soldagem leva cerca de 7 a 8 horas de trabalho.
É imperativo descartar a preguiça e verificar a estrutura quanto a vazamentos
... Depois de concluído o trabalho, uma solução de giz deve ser preparada e aplicada nas costuras por dentro.
Quando secar, com um pano embebido em querosene, passe por cima das costuras do tanque pelo lado de fora. Objetivo: identificação de “falta de penetração” entupido com escória. Leva apenas alguns minutos para controlar.
Se o líquido não aparecer, está tudo bem. Se aparecerem manchas, a área com problema deve ser fervida novamente. A inspeção e a soldagem devem ser feitas imediatamente antes da pintura.
A instalação pode ser feita em tijolos pré-assentados, mas é melhor usar um suporte.Em seguida, encha o tanque com água e observe por vários dias: não apareceu líquido nas paredes da estrutura.
Como fazer um tanque de armazenamento de água com suas próprias mãos
Os pneus do trator serão os melhores para tais fins, ou seja, os pneus do trator diesel T-150. Ou você pode comprar pneus usados de um caminhão em qualquer empresa ou em uma frota de veículos. Deve-se dizer desde já que a água desse reservatório não pode ser usada para beber ou cozinhar. Apenas para necessidades domésticas! Ele também se torna um reservatório de água da chuva sem cloro ao mesmo tempo. Ao contrário do plástico, o recipiente do pneu não pode ser perfurado ou arranhado. O pneu não apodrece e não permite a passagem de água.
Etapas de fazer um tanque de um pneu:
- Alinhe a superfície na qual o pneu ficará.
- Colocamos o pneu e cortamos sua parte superior com uma faca.
- Fazemos uma argamassa com 30 kg de areia e 10 kg de cimento.
- Despeje o fundo do pneu com a solução resultante e nivele a solução com uma espátula. Isso deve ser feito para tornar a estrutura estável.
- Você precisa esperar uma semana para que a solução seque. É isso, o tanque está pronto!
Os contêineres serão muito úteis no país. A água pode ser usada para irrigação e outras necessidades domésticas.
Para muitos moradores de prédios altos, os problemas dos proprietários de casas particulares não são conhecidos. Por exemplo, soldar um tanque para encher com água só pode fazer os moradores da cidade rirem ironicamente. E, no entanto, a questão não é inútil. A urgência do problema reside na questão de qual caminho seguir - encomendar um produto acabado ou soldar um tanque de água por conta própria.
Para a fabricação de um recipiente para coleta de água, você pode buscar ajuda de especialistas. Eles irão soldar um barril ou tanque de acordo com seus desenhos e dimensões, ou oferecer sua própria opção de design. Mas, para produtos de qualidade, você precisará pagar uma quantia redonda.
Por isso, muitos residentes do setor privado escolhem a segunda opção: fazer contêineres por conta própria, ao mesmo tempo em que recebem economia de recursos próprios e satisfação moral com o processo de soldagem.
Recipiente barato para grande volume de água
A foto abaixo mostra um desses tanques em operação. Destina-se a fazer a manutenção do sistema de aquecimento de uma sala onde são mantidas codornizes. Para isso, a aparência e as qualidades estéticas do tanque não eram decisivas: as qualidades funcionais do tanque e o custo de sua fabricação eram fundamentais.
Para tal tanque com um volume de cerca de 1000 litros, seria necessário comprar 5 barris de metal de 200 litros cada, e na região onde vive um amante de codornas, o custo dos barris descartados era exageradamente alto. Portanto, optou-se por fazer um tanque de filme em estrutura de madeira.
O primeiro passo foi selecionar tábuas adequadas: havia duas tábuas largas de pinho de 40 mm não cortadas. Eles foram marcados ao longo do comprimento e cortados com uma serra elétrica de modo que cada um formasse as paredes laterais de uma caixa retangular.
Essas caixas eram empilhadas umas sobre as outras, de modo que as bordas das tábuas não cortadas tinham que ser aparadas com um machado para que não ficasse muito torto e para que a caixa superior ficasse firmemente apoiada na inferior.
As caixas foram desmontadas com pregos de 100 mm nos cantos para que fosse possível avaliar visualmente a estrutura que está sendo criada. Os pregos aqui desempenham apenas um papel auxiliar para a fixação preliminar da caixa, uma vez que a carga principal da severidade da água é suportada pela amarração da estrutura feita de corda forte.
Amarrada firmemente em várias voltas com uma corda forte, a primeira caixa formava o primeiro andar da estrutura do tanque. Sobre ela foi instalada uma segunda caixa, amarrada da mesma forma, que compunha o segundo andar da moldura. A moldura não era toda feita, mas andar por andar, já que não havia ajudante por perto, e eles tinham que fazer tudo sozinhos.
Quando a estabilidade e confiabilidade da estrutura foram testadas, a construção de uma concha impermeável dentro da moldura foi iniciada.Isso requer um filme durável que não permita a passagem de água. No nosso caso, apareceu uma velha barraca de caminhão. Uma inserção à prova d'água foi cortada para dentro do recipiente.
Foi cortado com uma pequena margem para que o volume útil do tanque fosse maximizado (o excesso do toldo fica enrolado nas laterais da moldura e não atrapalha ninguém).
Para efeito de resseguro, mais duas camadas de filme espesso foram colocadas em cima do toldo: em caso de vazamento, o custo para eliminá-lo seria muito maior do que essas duas camadas extras de filme.
Após um ano de operação, o tanque não apresentava sinais de desgaste estrutural. O volume útil do tanque é de 750 litros, mas os tanques de armazenamento de água do projeto descrito podem ser feitos de dimensões arbitrárias para o tamanho da sala.
Se necessário, o reservatório pode ser facilmente desmontado e montado para reutilização. Apenas algumas horas foram gastas na produção direta, mais tempo foi gasto na preparação de materiais e no design.
Outros artigos interessantes
As áreas suburbanas remotas costumam ser isoladas do sistema central de abastecimento de água, o que complica muito o cuidado com as plantações. As plantas requerem bastante irrigação durante toda a estação, especialmente em climas quentes e secos. Se for muito problemático equipar um poço no local, você pode criar seu próprio depósito, onde a água se acumulará e será economizada.
Todos podem pagar para instalar um tanque de irrigação no local. Com a sua ajuda, organiza-se a rega oportuna e cria-se um protótipo de sistema de abastecimento de água que permite o aproveitamento do líquido para diversos fins.





