Ventilação do porão
Cada um de vocês, provavelmente, visitou sua avó no porão ou no porão, fazendo uma viagem heróica por um frasco de conservação. Você notou que o porão é diferente? Os porões ou porões escuros e úmidos não eram muito atraentes, eram? Mas a seca e a luz não causavam repulsa nem medo. É claro que nossos ancestrais não se importavam muito com a questão de como fazer a ventilação no porão. Só precisavam de um pedaço de cano para o capô e um lada ligeiramente aberto para garantir a circulação do ar, que na verdade era limitada. Como estão as coisas agora? Ao construir uma casa nova ou reformar uma antiga, após a compra no mercado imobiliário secundário, um proprietário verdadeiramente zeloso prestará atenção especial à disposição do porão ou adega. Em particular, a obtenção de umidade mínima, que é muito importante para salas localizadas abaixo do nível da superfície do piso. Agora não vamos falar sobre materiais resistentes à água e características das estruturas de drenagem. Será sobre a ventilação usual, à primeira vista. No entanto, nem todo mundo sabe como fazê-lo adequadamente com suas próprias mãos, a fim de reduzir ao mínimo a condensação de umidade na adega ou no porão. Portanto, todos os interessados em como instalar essa ventilação são bem-vindos a um pequeno programa técnico educacional.
Então, o que realmente sabemos sobre as correntes de ar? As massas frias descem e as quentes sobem, formando correntes de ar, que são chamadas de "vento" nas pessoas comuns. Bem, como você sabe, ninguém no porão vai organizar o vento no sentido literal da palavra. Mas não é apenas possível, mas também necessário criar (e instalar tecnicamente) uma corrente de ar que ventile o porão ou a adega. Vamos nos voltar para o esquema clássico de suprimento e ventilação de exaustão.
Opções para o exaustor na adega
O que precisamos para o dispositivo de ventilação correto, vamos listar:
- Tubos de fibrocimento, com diâmetro de 100-150 mm (também pode ser utilizado esgoto plástico, o que simplifica e facilita a instalação).
- Isolamento (lã mineral é perfeita).
- Material de isolamento (folha de rolo para sistemas de aquecimento).
- Prendedores.
- Elementos de proteção (tela-cobertura e “guarda-chuva” galvanizado).
- Espuma de poliuretano.
Fornecimento e exaustão de ventilação da adega
Obviamente, esta não é uma lista completa dos materiais e dispositivos usados. Alguns, especialmente meticulosos, instalam um sistema de coleta e remoção de condensado, bem como sistemas de circulação forçada. Com certeza diremos algumas palavras sobre isso, mas somente depois de descrever o esquema clássico de instalação de ventilação.
Fornecimento e exaustão de ventilação do tipo automático
Escolhendo um lugar
Em primeiro lugar, você precisa descobrir onde e como organizar nossos dutos de ar para que o movimento do ar no porão ou no porão seja correto, ou seja, designar pontos de entrada e saída.
Importante!
Lembre-se - o duto de ar de entrada (entrada de ar) está sempre abaixo do nível de saída (entrada de ar).
Pontos de entrada e saída do sistema de ventilação da adega
Para simplificar, a entrada deve estar a aproximadamente 300-400 mm do nível da mesa do piso, e a saída deve ser mais próxima do teto, e eles devem estar localizados em partes opostas do subsolo para garantir uma melhor circulação de ar.
Ventilação
Como fazer a ventilação no porão corretamente: opções de projeto e cálculos
O porão é parte integrante de uma casa ou chalé privado moderno.Serve para acolher comunicações de sistemas de aquecimento e abastecimento de água na mesma, podendo ser utilizada como garagem, oficina ou armazém de hortaliças. Em qualquer caso, o porão precisa manter um determinado nível de temperatura e umidade. A umidade afeta negativamente a segurança dos produtos agrícolas, leva ao aparecimento de mofo, destrói as paredes da casa e afeta negativamente outros objetos. Uma ventilação bem equipada no porão ajudará a resolver esse problema.
As sutilezas de organizar uma adega na garagem
Para alcançar o microclima ideal no porão da garagem, você deve escolher uma das duas opções:
- Ventilação natural.
- Ventilação forçada.
No primeiro caso, o princípio de construção é semelhante ao de um edifício de um andar, quando se utilizam tubos especiais instalados em diferentes partes da sala para fornecer e evacuar o ar. Os dutos de ar de exaustão podem ser instalados de duas maneiras:
- Através da montagem na parede e instalação no exterior.
- Conduzindo o tubo pelo telhado.
Antes de fazer a ventilação na adega, vale a pena escolher um cano adequado. Deve ter um comprimento de 2,5-3 metros para que o produto se projete 0,5-1,0 m acima do telhado. Um defletor é montado na parte superior do duto de ar, ativando o movimento do fluxo de ar, e também evitando sujeira e poeira de entrar. O diâmetro ideal do defletor é duas vezes mais grosso que o diâmetro do tubo. Se desejar, você mesmo pode fazer isso usando plástico.
O tubo de alimentação de ar é montado a uma distância de 0,5 m do solo e o mesmo acima do nível do solo. De cima, a saída é fechada com uma grade para protegê-la de criaturas vivas. As saídas de ar podem ser feitas de plástico ou amianto. Os primeiros são mais baratos e mais resistentes a danos e baixas temperaturas. A opção mais acessível é o estanho, mas esse material não dura muito.
Um elemento importante de ventilação são os amortecedores, que podem ser adquiridos ou feitos por conta própria. O principal é que o produto bloqueie completamente o fluxo da tubulação. O sistema de fechamento do duto de ar é automático ou manual. Sua presença permite que você bloqueie oportunamente o fluxo de ar frio para o porão.
A segunda opção é fazer a ventilação organizada com ventiladores (método forçado). A principal dificuldade reside no fornecimento de tensão, atendendo aos requisitos de segurança elétrica. Na ausência de habilidades especiais, você pode assistir a um vídeo de treinamento ou convidar especialistas. Faça tudo para que a fiação seja protegida de maneira confiável contra umidade.

Tipo de ventilação combinada
Se você mora em uma região com clima quente, a ventilação natural clássica não funcionará. A melhor solução é organizar um sistema de tipo combinado, versátil, adequado para qualquer clima e diferentes tipos de edifícios residenciais (cinco andares ou construção convencional).
Como no passado, os principais componentes do sistema são tubos de alimentação e exaustão do fluxo de ar. A diferença é a disponibilidade de um sistema automatizado, o que implica na instalação de um ventilador adicional no escapamento do ar. Se você decidir construir um porão para armazenamento de alimentos por longo prazo e viver em um clima quente, esse tipo de ventilação é o mais adequado.


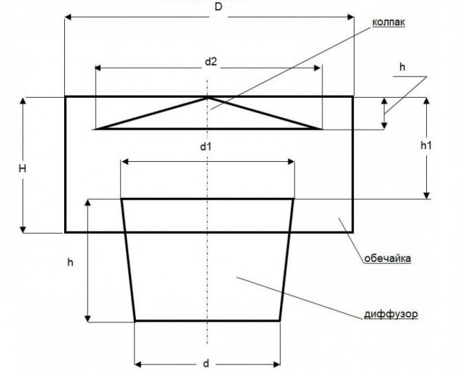
Ventilação da adega com dois tubos
Versão de dois tubos
Para fazer a ventilação correta, é aconselhável familiarizar-se com as nuances, sutilezas da construção e do projeto:
- A opção ideal é instalar ventilação durante a fase de construção.
- Os tubos de circulação de ar devem ter o mesmo diâmetro. Não se pode fazer a entrada de mais do que o exaustor, caso contrário todos os produtos da adega ficarão estragados.
- É proibido colocar tubos próximos uns dos outros, caso contrário a adega não será totalmente ventilada.Os especialistas aconselham montá-los em cantos opostos para dar um impulso ao ar viciado.
- O capô é montado próximo ao teto, conforme o ar quente sobe. Isso permitirá uma limpeza constante do ar, evitando a estagnação, proporcionando um microclima ideal.
- O furo do capô deve estar localizado a um metro e meio acima do telhado, portanto, o comprimento do tubo deve ser levado em consideração.
- Na maioria das vezes, o sistema é feito de plástico.
- O sistema de exaustão passará por uma escotilha especial.
- Se a ventilação for destinada à adega, que fica embaixo da casa, é necessário isolar as portas com alta qualidade.
- O tubo de alimentação externo é equipado com uma grade para proteção contra insetos, poeira, roedores e sujeira.
As bordas de ventilação com dois tubos devem estar em níveis diferentes. A parte superior de um tubo é colocada perto do teto e a parte inferior deve ser abaixada até o chão. Levando em consideração as diferenças de temperatura, mudanças na pressão na saída e na entrada do tubo, ocorre a circulação de ar ativa.
Diagrama visual da ventilação da adega
A verificação da ventilação da adega deve começar com uma experiência simples: é importante provocar a circulação do ar criando diferentes indicadores de temperatura no interior e na superfície.
Exaustor de adega com um tubo
Para manter o porão ventilado, seco, até mesmo um cano é suficiente. Quaisquer rachaduras terão um papel positivo.
Capuz com ventilador
A única coisa que vale a pena prestar atenção é que o diâmetro do tubo do duto não deve ultrapassar quinze centímetros. Caso não seja possível estabelecer a circulação de ar, recomenda-se organizar o processo por meio do despertar mecânico. Tudo é extremamente simples: instale um ventilador na chaminé.
O principal componente de um excelente microclima na adega é a umidade do ar, que pode ser regulada com um ventilador. É importante observar que um nível de umidade muito alto prejudica a qualidade da ventilação. Esse é o caso se a água subterrânea penetra no porão, o que acontece na primavera, quando a neve derrete. Durante este período, a adega fica úmida e o sistema de ventilação não é capaz de suportar tamanha carga.
Você pode resolver o problema da seguinte maneira: pegue uma lata, ela deve ficar a mais de um milímetro e meio do orifício do cano. Perfure um lado na parte inferior, corte cuidadosamente um orifício e prenda um parafuso abaixo de forma que a porca e a rosca permaneçam do lado de fora. Acontece um sistema caseiro de equilíbrio que pode forrar uma posição uniforme para uma concha. No lado da lata, nomeadamente em frente ao furo, deve ser montada uma cauda trapezoidal de forma a desempenhar a função de cata-vento, nomeadamente, virar o dispositivo ao vento e captar as correntes de ar.
Instale o sistema coletor de vento no tubo: coloque o eixo roscado, fixe com o suporte. Perfure a parte inferior no centro, puxe o parafuso de dentro e aperte o eixo roscado. Conclua o processo de instalação com balanceamento. Com a ajuda de tal dispositivo, a ventilação pode ser significativamente melhorada. O princípio do dispositivo astuto é incrivelmente simples. O sistema é girado pelo cata-vento de forma que a abertura lateral seja direcionada contra o fluxo de ar. Graças a este esquema, o ar limpo pode facilmente penetrar no tubo e entrar no porão.
Resumindo, pode-se notar que a ventilação bem equipada mostra suas próprias prioridades por várias semanas. O ar da adega será limpo, ligeiramente umedecido e os produtos não congelarão e secarão. Já os indicadores do regime de temperatura podem se estabilizar facilmente.
Dispositivo de alimentação e ventilação de exaustão
Vamos agora analisar como fazer a ventilação no porão. A maneira mais fácil será fazer a ventilação na adega ou porão do tipo abastecimento e exaustão ou forçada.
Primeiro, vamos fazer um cálculo.
Para 1 m2 de área, deve haver 25 cm2 de seção transversal do duto.
Com o aumento da altura do teto ou da umidade, o diâmetro do duto aumenta. A caixa de madeira pode ser dividida em duas metades para ventilação de suprimento e exaustão, mas é melhor usar tubos de plástico ou caixas de metal corrugado.
O dispositivo de abastecimento e ventilação de exaustão pode ser complementado com um defletor no telhado da casa. Isso criará vácuo adicional no tubo e melhorará a saída de ar quente.
Um sistema compulsório gerenciado será muito mais eficiente com custos trabalhistas comparáveis. Para fazer isso, precisamos de ventiladores de duto especiais que operem com uma tensão de 36 V. Este recurso está associado à categoria de todos os porões que permitem o uso apenas dessas correntes.
Portanto, é instalado um transformador no quadro elétrico que diminui a tensão de 220 V para 36 V. E a fiação deve ser instalada em canais a cabo. Estas e outras regras podem ser encontradas no SNiP 41-01-2003 aquecimento, ventilação e ar condicionado.
Para salas pequenas, apenas um desses ventiladores por braço de exaustão será suficiente. O ar fresco será fornecido por vácuo no porão. Mas a eficiência do sistema será muito maior se você instalar uma segunda bomba de abastecimento e combinar seu trabalho em um painel de controle.


Já à venda você pode encontrar painéis de controle programáveis com sensores de temperatura e umidade, e os próprios ventiladores de duto estão disponíveis em todos os tamanhos padrão e são compatíveis com quase todos os dutos de ventilação. Para maior comodidade, eles já estão embutidos na caixa, possuem uma grade protetora e filtros substituíveis.
É preferível usar PVC como canos para dutos de ventilação em sua própria casa. Eles são fortes e leves o suficiente para serem fixados em paredes e tetos usando buchas convencionais. Eles não têm medo de umidade e temperaturas extremas, e o custo é menor do que estruturas de aço.
Verificação funcional
Determinar a circulação de ar é bastante fácil. Para fazer isso, você pode usar a chama de um queimador de álcool ou vela, ou anexar um pedaço de papel à abertura do duto de exaustão. Um bom rascunho manterá a folha com segurança. O termômetro instalado na área do duto de suprimento de ar também não sofrerá danos.


Os seguintes sinais indicam ventilação insuficiente do porão, garagem:
- Condensação nas paredese a umidade excede 95%. A umidade máxima permitida para armazenar peças de trabalho e colheitas é 85-90% a uma temperatura de 3-40C. Para instalações residenciais, garagens, os indicadores de umidade não devem exceder 40-50%;
- Crescimento de fungos e bolores nas paredes e no teto;
- Fedor dentro de casa e ar viciado pesado;
- Mudanças repentinas de temperatura falar sobre o dispositivo errado para suprimento e ventilação de exaustão ou erros no cálculo da seção transversal dos canais;
- Em climas quentes, a condensação pode não ser perceptível, mas no inverno as paredes estarão abundantemente cobertas de geada;
- O dióxido de carbono pode se acumular na adega de vegetais. Você pode identificá-lo por uma vela morrendo ou um fósforo. Neste caso, é necessário abrir todos os abafadores e ventilar durante o dia, sem descer para o ambiente sem equipamentos de proteção.
Ventilação no banheiro e no lavabo: seleção e instalação de um exaustor - um artigo detalhado.
A instalação de sistemas de ventilação será muito mais eficiente se junto com ela realizarmos medidas para manter o microclima:
Coisas a considerar antes de realizar a ventilação
Ao pensar em como fazer corretamente um capuz em uma adega, você deve levar em consideração alguns pontos:
- levar em consideração a ventilação da adega no momento da construção;
- escolha o diâmetro certo;
- posicionar corretamente os tubos de ventilação.
Ao decidir como fazer a ventilação na adega, é importante pensar no esquema e refletir os principais pontos nele.
Extração durante a construção
A cobertura muito correta na adega só pode ser criada quando é colocada simultaneamente com a construção da casa. Então, as necessidades da família e o uso futuro do porão podem ser levados em consideração.
No momento do assentamento das paredes da adega, é deixada uma abertura especial atrás da alvenaria, onde pode ser inserido um tubo de ventilação. Às vezes, o tubo já está instalado neste estágio. É feito um pequeno furo na alvenaria, onde este tubo é fornecido para a extração do ar.


Seleção correta do diâmetro de ventilação
Os tubos de ventilação não devem ter diâmetro muito pequeno, pois, neste caso, a entrada e a saída de oxigênio não serão completas e o ar mofado se acumulará no ambiente.
Uma condição importante para uma ventilação de alta qualidade é a uniformidade dos diâmetros dos tubos de alimentação e exaustão. Em casos raros, a coifa pode ser ligeiramente maior. Então, a troca de ar será mais rápida. No entanto, a entrada nunca deve ser mais larga que a exaustão, caso contrário, a circulação do ar será prejudicada.
O acesso deficiente de oxigênio ao porão e a saída de vapores podem ser perigosos para os humanos. Afundando no porão, você pode sentir uma forte falta de ar. Para alguns, isso leva até mesmo a desmaios.
Como organizar os tubos de ventilação
A ventilação na adega sob a casa estará completa se os dois tubos de circulação de ar estiverem localizados corretamente um em relação ao outro. Eles não devem ser colocados lado a lado. Idealmente, se possível, instale-os em paredes opostas. Como último recurso, isso pode ser feito ao longo de uma parede, mas em cantos diferentes.
Este arranjo permitirá que você atualize totalmente o clima no porão. Quando o ar puro entra na sala, ele percorre uma distância maior antes de sair. Isso manterá o porão fresco.
O nível de localização dos tubos de abastecimento e escapamento também é importante. O ar fresco está sempre mais fresco. Portanto, o duto de alimentação deve estar localizado na parte inferior, não muito longe do chão. A saída de exaustão é idealmente colocada diretamente sob o teto. Depois de passar pelo porão, o oxigênio se aquece e sobe. Graças a este arranjo, a troca de ar será realizada de forma eficiente.
A extremidade livre do tubo de ventilação de exaustão é retirada e elevada cerca de 1,5 m acima da crista. Quando é feita a ventilação do porão sob a casa, costuma-se usar canos plásticos para esgoto. Seu diâmetro é suficiente para lidar perfeitamente com as funções de ventilação.


É importante que haja o mínimo possível de curvas nos tubos de entrada e saída de ar. Certifique-se de que haja um diâmetro de tubo ao longo de todo o comprimento. Se houver um estreitamento em algum lugar, a qualidade da ventilação cairá drasticamente. Se você seguir essas diretrizes, a troca de oxigênio será mais gratuita.
Sempre cubra as extremidades externas das aberturas de ventilação com grades. Sem eles, sempre existe a probabilidade de pequenos roedores ou detritos chegarem lá. Como resultado, esses canais se entopem rapidamente e a umidade não é removida do porão.
Como ventilar adequadamente a adega
Para fazer corretamente com as próprias mãos uma coifa na adega, recomenda-se aplicar desenhos e diagramas claros, isso ajudará a evitar a formação de condensação, salvando a colheita de danos. Graças ao sortimento chique de materiais de construção, é possível fazer a ventilação da adega da garagem com as próprias mãos.
Quando há um porão embaixo da garagem, mas não há ventilação, os vários venenos e toxinas liberados pelo carro afetam negativamente os produtos. O fluxo e a ventilação de exaustão ajudarão a resolver esse problema. Este tipo de troca de ar é possível mesmo naturalmente ou com ventiladores. Quanto ao topo do cano, ele é exibido acima da garagem.
Um esquema de exaustão correto e preciso ajudará a eliminar o problema no menor tempo possível. Se você instalar um tubo de alimentação, é possível que o ar purificado flua para o porão. O papel de um tubo com função de exaustão em uma garagem com adega é eliminar o excesso de umidade e substâncias tóxicas. A saída ideal é uma combinação bem-sucedida de um sistema de exaustão e abastecimento, que pode ser feito de duas maneiras:
- Troca de ar natural. Esta opção é a mais popular e difundida, você precisará instalar dois tubos - alimentação e exaustão. O dispositivo funciona perfeitamente, porque a temperatura no porão e no exterior é significativamente diferente. A principal desvantagem é que o exaustor não funciona durante o período de aquecimento. Quanto ao inverno, deverá ser aquecido adicionalmente.
- Ventilação forçada na adega. O sistema proposto é a melhor opção de todos os existentes. Graças a esta ventilação, é possível obter um microclima ideal, semelhante ao de uma rua. Ajuda a garantir uma troca de ar perfeita, visto que várias unidades e ventiladores estão envolvidos.
O arranjo da ventilação forçada é realizado usando ventiladores elétricos que são adicionados ao sistema. É muito simples fazer esse sistema com suas próprias mãos. A principal vantagem é a estabilização dos níveis de temperatura e umidade, independente do clima e da estação.
O esquema do dispositivo proposto dificilmente difere da ventilação natural. O algoritmo de ações é simples: fixação dos tubos, instalação do ventilador na chaminé. Em vez de um ventilador, você pode usar uma palheta difusora rotativa, ela é instalada na parte superior do tubo de alimentação e funciona com o vento. Um defletor ajudará a garantir uma boa ventilação, o que melhora a troca de ar e reduz o ar.
A melhor e mais avançada opção é a ventilação forçada mecanizada usando um monobloco especial. Ele instala um software que controla o sistema modular. O principal problema e desvantagem é o alto custo.
Esquema de ventilação adequada da adega na garagem
Para usar com eficácia a adega da garagem, é importante fornecer ventilação adequada e adequada. Para criar ventilação natural, você pode montar o sistema de forma independente usando tubos de esgoto de plástico. No processo de trabalho, vale a pena seguir algumas regras e dicas:
- o circuito de ventilação deve conter um número limitado de curvas, voltas do tubo;
- tem de isolar o tubo de escape, caso contrário aparecerá condensação;
- feche a entrada do tubo com uma tampa para evitar a entrada de precipitação;
- todo o comprimento do tubo deve ter o mesmo diâmetro.
Para equipar a ventilação natural, você deve calcular a área de todos os furos. O início do tubo de alimentação está 50 cm acima do piso do subsolo, é retirado. Quanto ao exaustor, ele é fixado sob o teto, puxado sobre o telhado da garagem. É importante que os tubos estejam em cantos opostos da sala.
Feitos todos os cálculos, determinada a seção transversal do diâmetro, é necessário decidir sobre o material dos tubos para o sistema de ventilação. costuma-se usar dois tipos principais, ou seja, cimento-amianto e polietileno de baixa pressão. Os tubos feitos de cimento-amianto são semelhantes em estrutura à ardósia, por isso são normalmente chamados de ardósia. Essas matérias-primas são consideradas duráveis, fortes e confiáveis.
Tubos de polietileno não são absolutamente inferiores em resistência, mas o método de instalação é muito mais fácil, você não precisa usar os serviços de profissionais. A principal condição é que eles precisam ser soldados.
Recomendações para providenciar ventilação
O arranjo da ventilação no porão exige o cumprimento de algumas regras. Isso permite que a eficiência do projeto seja maximizada. Considere quais pontos você precisa se concentrar.
Os tubos utilizados durante a instalação do sistema não devem ter diâmetros diferentes.No entanto, se necessário, você pode desviar desta regra. Um problema bastante comum a que os sistemas de ventilação estão sujeitos é a estagnação do ar. A saída é instalar um escapamento de diâmetro maior que o do tubo de alimentação.


Não instale os tubos de alimentação e exaustão próximos um do outro. Isso afeta negativamente a eficiência do sistema. A melhor localização é em paredes opostas da sala.


Recomenda-se equipar o duto de exaustão mais próximo do teto. Isso permite que você remova efetivamente o ar que está em uma temperatura mais alta da adega. As características da localização de elementos estruturais individuais podem ser estudadas na foto.
Para a comunicação dos responsáveis pela arejamento das instalações, a melhor opção é a utilização de tubos plásticos, cuja principal aplicação é a colocação de esgotos. Esses tubos apresentam as características geométricas e técnicas mais adequadas. No entanto, para grandes porões, esta solução não é aconselhável.


Os tubos de PVC são adequados para ventilação
Vale dizer que em porões que não estão sob um edifício residencial, é mais fácil organizar a ventilação. Em tal situação, uma escotilha de acesso pode ser equipada para uma saída de exaustão.


Esquemas de ventilação da adega
Para ventilação de salas subterrâneas, você pode usar 1 de 3 esquemas:
- sistema clássico com uma chaminé;
- esquema com duas tubulações - alimentação e exaustão;
- troca de ar forçada.


Sistema de ventilação de um tubo - o ar fresco entra na loja pela porta
A escolha da opção depende da concepção da cave, da sua localização e de outras condições. O sistema de 1 duto mostrado na imagem é aplicável a caves com saída separada para a rua. Como funciona o esquema durante a estação fria:
- A temperatura subterrânea está sempre acima de zero (se o porão for construído corretamente). O ar mais quente e úmido sobe para a zona superior e sai pelo duto de exaustão vertical.
- Massas de ar frio tomam seu lugar - escoam pelas entradas da porta (escotilha) e depois afundam no chão do porão.
- À medida que o ar esquenta + umidifica, o ar começa a perder peso, sobe e é novamente jogado para fora pelo cano.
Um ponto importante. No esquema unifilar, a conduta de ventilação deve ser instalada à distância máxima da porta de entrada, na parede oposta. Isso garante uma renovação completa do ambiente de ar interno.
O sistema de ventilação com duas tubulações é usado em caves sem entrada separada - sob casas particulares, garagens e outras dependências. A circulação natural das massas de ar é organizada de forma semelhante, apenas o segundo canal vertical, que desce para o próprio solo, serve como influxo. O ar externo frio desce pelo duto de fornecimento de ar, substituindo os gases que escapam para a rua.
Os tubos estão localizados em cantos opostos do armazenamento e são removidos de duas maneiras:
- no terreno fora do prédio;
- direto pelo telhado, conforme mostrado no diagrama de ventilação de uma garagem com adega e mirante.
No primeiro caso, a cabeceira do tubo de alimentação encontra-se ao nível da cave, sendo preferível elevar o tubo de escape a uma altura de 2 m (a contar do orifício de aspiração na cave). Se o edifício estiver rodeado por outros edifícios e não houver nenhum lugar para abrir o segundo canal, o duto de ar é colocado na segunda maneira - até o telhado. A extremidade do cano de escapamento sobe acima da crista.


A disposição das condutas de ventilação e a circulação dos fluxos de ar na garagem. Um tubo de transbordamento não pode ser colocado entre o poço e a adega.
Observação. Os fabricantes de caves prontas de plástico ou concreto fornecem imediatamente a ventilação por dois tubos. Os canais saem verticalmente pelo teto do armazenamento, a escotilha fecha hermeticamente.
A troca ativa de ar com indução forçada é organizada de acordo com o esquema de um ou dois tubos, o ventilador é colocado no duto de exaustão.A operação de ventilação pode ser automatizada conectando o soprador à rede elétrica por meio de um termostato. O dispositivo com o sensor desligará o ventilador quando a temperatura cair abaixo do limite definido. Veja o vídeo para detalhes:
Sistemas de ventilação de porão
A versão mais comum do arranjo do porão envolve a localização da adega sob os cômodos principais de uma casa particular. Neste caso, são utilizadas duas variantes do dispositivo de cobertura:
- dois canais;
- canal único.
O primeiro é usado com mais frequência. Apresenta várias vantagens em termos de manutenção de uma adega com uma área maior.
Dispositivo de ventilação de dois canais
A tecnologia de ventilação com dois pontos de entrada e saída não apresenta dificuldades na instalação de dutos de ar.
A ventilação do subsolo com o desenvolvimento ideal do processo construtivo da casa deve ser calculada na fase de início da construção. Assim, você sobreviverá com menos custos financeiros e trabalhistas.
Tubo de alimentação de ar.
O dispositivo de influxo garante o escoamento das massas de ar do ambiente, por meio da entrada de ar pela entrada (respiradouro). O ar é mais frequentemente localizado na parede lateral do edifício principal - a elevação acima do nível da área cega da casa deve ser de 20-30 cm.
O próprio orifício do tubo é fechado com uma grelha de ventilação. Se necessário, a grade pode ser equipada com um ventilador axial. O duto de ar é colocado na base da casa, no teto do porão e introduzido no porão. Saída ventilação esticado quase até o chão caves, recuando 15-20 cm Devido a esta disposição do duto de ventilação, o ar fresco da rua entra no duto, passa por ele e entra no porão próximo ao chão. Depois disso, ele aquece gradualmente e desloca as camadas superiores de ar quente e umidificado do porão através do tubo de exaustão.


Sistema de escoamento para massas contaminadas.
Ele está localizado no canto oposto da sala da adega, diagonalmente em relação ao tubo de abastecimento. O princípio básico é a necessidade de captar o ar aquecido. Isso é conseguido colocando a entrada do tubo sob o próprio teto do porão (10-15 cm dele). Além disso, o duto de exaustão passa pelo teto do prédio principal, pelo sótão até o telhado.
Dependendo da forma do telhado e da rosa-dos-ventos prevalecente, é necessário conseguir condições nas quais o vento seja direcionado para o defletor previamente instalado acima da chaminé. Em qualquer caso, é necessário um defletor, pois protege o tubo da precipitação atmosférica. Além disso, também cria pressão negativa sob a tampa, devido à qual o fluxo de ar no tubo é aumentado.
Quanto mais comprido for o duto de ar de exaustão, mais forte será o fluxo do ar soprado nele.
O duto de exaustão deve ser equipado em várias camadas para criar o isolamento necessário. Para fazer isso, na fase de planejamento das instalações e utilidades da casa:
- monte um poço de tijolo ou tubo de madeira ventilação da adega;
- escolha um local para colocar o isolamento entre o poço e a tubulação;
- enrole o próprio tubo com um isolamento especial que não absorva umidade.
É necessário isolar o duto do ar de exaustão para não obter condensação do ar devido ao resfriamento repentino no período frio.
Em relação aos dois últimos pontos, é importante ressaltar que apenas o isolamento térmico duplo pode oferecer resistência ao congelamento do duto de ar. Se a região onde a casa e o porão estão localizados sugerir temperaturas anormalmente baixas, é necessário, adicionalmente, fazer um espaço de ar entre o isolamento principal e o isolamento do próprio tubo. Esta solução reduzirá significativamente a condutividade térmica do canal como um todo.


Ventilação de canal único
Em casos raros, quando a área da adega é inferior a 5 metros quadrados, é possível combinar os canais de entrada e saída de oxigênio em um tubo. Este é o princípio básico de operação deste sistema e a principal diferença do arranjo de dois canais. O tubo é dividido por uma divisória, através da qual se obtêm dois canais de circulação: um para a entrada e o segundo para a exaustão.
Dispositivo de ventilação de adega com um e dois tubos: uma visão geral de aspectos técnicos importantes
Os proprietários de casas particulares, via de regra, usam uma adega para armazenar alimentos. Mas, devido à falta de janelas, a sala está privada do nível normal de troca de ar. Isso leva a muita umidade, formação de bolor com bolor, deterioração acelerada dos alimentos, o que é muito desagradável, não é?
Quer prevenir esse tipo de problema, mas não sabe como? Vamos dar-lhe uma solução - afinal, uma ventilação bem organizada da adega com dois tubos ajudará a garantir o fluxo de ar. E você pode fazer isso sozinho.
As principais etapas do trabalho e as regras de organização são discutidas em detalhes em nosso artigo. O material é complementado com instruções fotográficas visuais e recomendações de vídeo detalhadas para organizar as condições climáticas ideais na adega. Tendo estudado isso, mesmo um iniciante será capaz de entender os fundamentos do sistema de ventilação em casa.
Ventilação natural
A prática tem mostrado que na maioria dos casos a ventilação natural na adega é equipada (seu esquema é mais simples). Ao mesmo tempo, a tarefa permanece a mesma - a retirada das massas antigas e o fornecimento de massas de ar fresco. Para realizar a tarefa, são utilizados dois tubos - para garantir a entrada e a saída de ar, que são montados em partes opostas da sala. Quanto maior a distância entre os tubos, melhor.
Faça a ventilação de forma que o tubo de entrada de ar fique na parte inferior e o tubo de exaustão na parte superior. Essa exigência se deve às leis da física, segundo as quais as massas de ar aquecido se concentram na parte superior da sala, e as frias - na parte inferior. Depois que o ar entra pela rua, ele cai, após o que se aquece e sai para a rua. A ventilação "faça você mesmo" da adega deve ser realizada levando em consideração esta regra.
No inverno, o ar fica ainda mais pesado, então o processo de ventilação melhora. Quanto ao material ideal para tubos, é melhor usar amianto para a adega. Suas vantagens são acessibilidade e durabilidade. Para descarregar o fluxo de ar, um refletor é fixado ao duto de ar.


Troca de ar do porão e microclima
Nos porões de casas particulares, não faz sentido providenciar uma corrente de ar forçada. Na maioria dos casos, as tarefas definidas podem ser resolvidas por ventilação natural na adega. Para organizar essa troca de ar, você precisa entender quais fatores afetam o microclima dentro do porão:
- Temperatura do solo a uma profundidade de 1,5-2 m. Dependendo da região, este indicador varia de -3 a +10 graus (no inverno). Ou seja, as caves das regiões norte e sul devem ser isoladas durante a fase de construção.
- O ar frio é mais denso e pesado que o ar quente, portanto, ele sempre vai para o chão da sala. Este movimento de riachos é chamado de convecção.
- Na mesma temperatura, o ar mais úmido é mais leve do que o ar seco e sobe para cima. É por isso que gotas de condensação pendem do teto, e as paredes próximas ao chão praticamente não "suam".
- A umidade do ar depende da proximidade das águas subterrâneas e da impermeabilização externa das paredes. Se o trabalho de isolamento não foi executado durante a construção do porão ou porão, prepare-se para combater a umidade.
- A temperatura do ar de ventilação fornecido à adega pela rua.


O ar encharcado tende a subir até o teto, no qual a condensação cai
Referência. A massa relativa das moléculas de ar é de 29 unidades, vapor de água - apenas 18. Consequentemente, quanto mais umidade 1 cubo de ar contém, mais leve ele é.Exemplo: se você abrir a porta de uma varanda fria no inverno, a condensação aparecerá imediatamente no teto (veja a foto acima).
Agora, especificamente sobre o dispositivo de ventilação na adega de vegetais. Para organizar a circulação natural dos fluxos de ar, usamos o fenômeno da convecção. Plano de ação:
- Escolha de um esquema de ventilação. A tarefa é fazer a exaustão correta da zona superior do subsolo e é imprescindível fornecer uma entrada de ar fresco.
- Calculamos a troca de ar, determinamos os diâmetros dos tubos de escape e de alimentação.
- Selecionamos o material da tubulação, instalamos dutos de ventilação.
Uma adega sob um edifício residencial ou garagem, construída sem um projeto e impermeabilização externa, pode ficar muito úmida no inverno. Essas instalações de armazenamento devem ser secas no verão - listaremos os métodos no final da publicação.
Ventilação de adega faça você mesmo: esquema e processo de trabalho
Nenhum porão pode prescindir de um sistema de ventilação, uma vez que, na ausência de um fornecimento constante de ar fresco, a umidade não pode ser evitada. Em caves e porões, não só costumam ser armazenados caldos enlatados, mas também vegetais frescos e frutas que "respiram", dos quais a umidade deve se acumular no ambiente. Além disso, as paredes podem absorver a umidade do solo no exterior se a impermeabilização da fundação e do porão foi mal disposta durante a construção.


Ventilação de adega faça você mesmo
A ventilação "faça você mesmo" da adega é bastante simples. Além disso, é possível instalar e ajustar o funcionamento deste sistema de troca constante de ar não só na fase de construção, mas também em um depósito pronto.
O conteúdo do artigo
1 O princípio de funcionamento do sistema 2 Recomendações para o arranjo de ventilação da adega 3 Tipos de sistemas de ventilação na adega 3.1 Sistema de ventilação natural 3.2 Vídeo: Ventilação natural na adega sob a garagem 3.3 Sistema de ventilação forçada 3.4 Vídeo: um exemplo de ventilação forçada caseira da adega 4 Cálculo dos diâmetros das condutas de ventilação 5 Instalação da ventilação 5.1 Ações adicionais para manter um microclima normal 6 Secagem da adega 6.1 O primeiro método - caixas com uma substância higroscópica 6.2 O segundo método é o método antigo com uma vela 6.3 O terceiro método é um braseiro de metal 6.4 O quarto método é usar aquecedores elétricos 6.5 O quinto método é um ventilador doméstico comum 6.6 O sexto método - um fogão portátil 6.7 Tratamento de impermeabilização da adega 6.8 Vídeo: como a ventilação na adega pode ser arranjado
Como funciona o sistema
A operação do sistema de ventilação é baseada nas leis da física e, se você examinar cuidadosamente seu diagrama esquemático, verá que está organizado de forma muito simples e clara.


O princípio geral de ventilação é extremamente simples
Na adega existem duas aberturas de ventilação, por uma das quais o ar fresco entra na cave, e pela segunda é retirado juntamente com todos os fumos. Mas o sistema não seria eficaz o suficiente se tubos de certo diâmetro não fossem levados às aberturas.
Além disso, a qualidade da ventilação depende muito da localização correta dos tubos de exaustão e de abastecimento e de elevá-los acima do solo.
Os tubos de ventilação podem ser instalados nas paredes da cave, caso se encontre por baixo da casa ou na garagem, ou podem ser puxados pelo tecto, no caso em que a cave se encontre no quintal, como edifício independente.
Outro ponto importante no cálculo e instalação do sistema é a altura de instalação das tubulações do porão e trazê-las para a rua, já que muito ar frio pode entrar na sala, o que será perigoso para vegetais armazenados em ambiente fresco baús. Os furos não podem ser muito pequenos, pois o ar bolorento não sairá completamente do ambiente, o que significa que os produtos nele armazenados começarão definitivamente a se deteriorar.
Recomendações para a ventilação da adega
Antes de iniciar a instalação de qualquer um dos tipos de sistemas de ventilação, você precisa se familiarizar com algumas recomendações que devem ser levadas em consideração durante o projeto e os trabalhos de construção:
Será correcto se o sistema de ventilação começar a ser colocado durante a construção da adega - neste caso, são deixados canais na alvenaria das paredes, onde são instalados tubos de ventilação.


Claro, a melhor opção é instalar um sistema de ventilação ainda durante a construção da adega.
Para não adivinhar depois onde é melhor instalar os tubos, a ventilação deve ser imediatamente incluída no projeto da adega.
Os tubos a serem instalados devem ter o mesmo diâmetro - este parâmetro tornará a circulação do ar uniforme. Caso seja necessário acelerar a retirada do ar estagnado saturado de umidade, pode-se retirar o escapamento com diâmetro um pouco maior que o do tubo de alimentação. No entanto, em nenhuma circunstância deve ser instalada uma chaminé de diâmetro inferior ao da fonte, pois nessas condições o ar pode ficar retido no interior da divisão. Isso afetará negativamente os produtos armazenados na adega, mas o principal perigo ainda é diferente - uma certa ameaça à saúde humana é criada quando ele é baixado para uma sala subterrânea poluída com gás. Nunca coloque os dois tubos de ventilação próximos um do outro, pois neste caso o ambiente não será bem ventilado. Eles devem ser montados em paredes opostas ou em cantos opostos. Isso é feito para que o fluxo fresco, antes de sair, atravesse toda a sala e empurre o ar estagnado para a chaminé. A abertura da chaminé deve ser instalada sob o próprio teto, uma vez que o ar de exaustão mais quente sobe. Tal sua localização contribuirá para a constante purificação do ar, sem estagnação na área do forro, e consequentemente a boa preservação dos produtos. Para garantir uma boa tiragem, o tubo de ventilação do exaustor eleva-se acima da cumeeira ou aterro acima do teto da adega em pelo menos 1500 mm. Para o sistema de ventilação, os tubos plásticos são mais usados, projetados para a condução de esgoto. Para salas pequenas, esse diâmetro geralmente é suficiente. Se a adega estiver localizada sob uma garagem ou sob outra despensa, uma portinhola de entrada pode ser usada como orifício de exaustão.
Nesse caso, são feitas duas portas, uma isolada - de inverno, e a outra - em forma de moldura, com uma fina treliça fixada nela. A grade é necessária para que pequenos roedores não escorreguem para o porão.
A escotilha isolada é removida no verão para ventilação constante da adega. Se o cômodo acima do porão for isolado, no inverno é possível realizar sessões de ventilação.


Opção - uma adega no porão sob a casa
Ao instalar a ventilação em um porão localizado sob uma casa ou garagem, é necessário garantir que haja o mínimo possível de curvas e voltas nos tubos de alimentação e exaustão. Idealmente, é melhor posicioná-lo de forma que o tubo fique perfeitamente reto. O tubo deve ter o mesmo diâmetro em todo o seu comprimento, sem extensões ou contrações. Na rua, o tubo de abastecimento, se não estiver muito acima do solo, deve ser fechado com uma rede (grade) para proteger a adega da penetração de roedores ou outros pequenos animais e pássaros.


Tubo de entrada, levado por uma grelha
Recomenda-se a instalação de amortecedores que regulem a entrada e saída de ar em ambas as tubulações, que são especialmente necessários no inverno. Eles ajudam a medir a entrada de ar frio em geadas severas e, consequentemente, a saída de ar quente, para manter o microclima necessário na adega.


Guarda-chuva para chaminé
Se as cabeças dos tubos estiverem localizadas estritamente na vertical, devem ser protegidas da entrada de precipitação atmosférica, poeira e detritos instalando-se um guarda-chuva ou defletor de metal no topo.


O defletor é mais lucrativo, pois cria um vácuo artificial e aumenta a tração
Ao usar um defletor, uma área de vácuo é criada em torno dele, e esse fenômeno contribui para um aumento no empuxo.
A seção externa da chaminé deve ser bem isolada para evitar a condensação durante a estação fria.
Tipos de sistemas de ventilação de adega
Existem dois tipos básicos de sistemas de ventilação - natural e forçado. E uma ou outra opção é escolhida dependendo do volume e layout da sala do porão.
Sistema de ventilação natural
A ventilação natural é baseada na diferença de pressão e temperatura entre o interior e o exterior. A operação eficaz depende muito da colocação correta dos tubos. Portanto, a abertura de entrada deve estar a uma altura máxima de 250 ÷ 300 mm do chão, e a saída de exaustão - abaixo do nível do teto em 100 ÷ 200 mm. Não é permitido colocá-lo ainda mais baixo, caso contrário o teto começará a ficar úmido.
Este sistema de ventilação pode ser claramente insuficiente para uma sala de adega de grande volume ou se consistir em várias salas.
Vídeo: Ventilação natural na adega sob a garagem
Sistema de ventilação forçada
O sistema de ventilação forçada tem todos os mesmos canais (tubos), mas os ventiladores são integrados a eles para criar movimento de ar forçado.
Nos sistemas mais simples do tipo forçado, o ventilador é instalado no duto de exaustão. Assim, um vácuo artificial é criado na sala, o que contribui para o fluxo ativo de ar fresco para a adega através da entrada. A potência do ventilador selecionado dependerá do volume da sala.


Ventilador de duto em um invólucro
Eles também agem de uma maneira diferente - eles instalam ventiladores nos dutos de alimentação e exaustão. Isso é verdade em porões volumosos com configurações complexas. Definitivamente, aqui você precisará da ajuda de um especialista para calcular a consistência da entrada e da saída de ar, ou seja, os diâmetros dos canais e a potência (desempenho) dos ventiladores neles instalados.
Vídeo: um exemplo de ventilação forçada caseira da adega
Cálculo dos diâmetros das condutas de ventilação
Em qualquer tipo de ventilação, é muito importante determinar corretamente os diâmetros dos tubos. Os algoritmos de cálculo usados por designers profissionais são muito complexos e não faz sentido apresentá-los completamente. No entanto, ao equipar a ventilação em uma pequena adega privada, você pode usar uma técnica de contagem simplificada.
Recomendamos: Como conduzir a fiação elétrica no banho e o que é necessário para isso
Portanto, com algumas suposições aceitáveis nessas condições, podemos supor que para um metro quadrado da área da adega, são necessários 26 centímetros quadrados da área seccional do duto de ventilação. Assim, por exemplo, você pode estimar qual diâmetro de tubo será necessário para uma adega de 3 × 2 metros.
Encontramos a área da sala:
S = 3 × 2 = 6 m²
De acordo com a proporção especificada, será necessário um tubo com a seguinte área de seção transversal do canal:
T = 6 × 26 = 156 cm²
Resta encontrar o raio do tubo:
R = √ (T / π) = √ (156 / 3,14) ≈ 7,05 cm
Portanto, o diâmetro do tubo de alimentação:
Dp ≈ 14 cm = 140 mm.
Desde que apenas a ventilação de alimentação esteja instalada no porão e uma escotilha tenha o papel de exaustão, então você pode aumentar ligeiramente a seção transversal do canal de entrada instalando um tubo com um diâmetro de 150 mm.
Para garantir a troca de ar, é comum instalar um tubo com um diâmetro de 10 ÷ 15% (FALTA) maior no duto de exaustão do que na entrada. Neste exemplo, você pode instalar no duto de exaustão:
Dв = Dп + 15%! = (FALTA) 140 + 21 ≈ 160 mm
Instalação de ventilação
Feitos os cálculos necessários, levando em consideração todas as nuances acima descritas, pode-se proceder à instalação da ventilação.


Localização aproximada de tubos de abastecimento e escapamento
Se o sistema de ventilação for instalado após a construção da adega, deve-se fazer um orifício no teto para a passagem do duto de ar. Em seguida, um tubo é baixado através do orifício até a adega, que servirá para o exaustor, sendo fixado sob o teto, no máximo 100 ÷ 150 mm abaixo de sua superfície. Na rua, a chaminé é elevada a uma altura de pelo menos 1500 mm acima do solo ou acima da superfície do telhado.


O tubo de alimentação está sempre abaixo
No canto oposto da adega, também é feito um furo no teto ou parede, e nele é instalado e fixado um tubo de alimentação, que é rebaixado até o chão. Deve estar localizado a pelo menos 200 mm do chão e a não mais de 500 mm. Na rua, o tubo de abastecimento não deve ser muito alto. Se sair pelo teto, é o suficiente para aumentá-lo em 200 ÷ 250 mm. Deve-se ter em mente que quanto menor for a abertura de entrada do tubo de alimentação, quanto maior for a diferença de pressão na entrada e na saída, mais forte será a tiragem natural e, portanto, o fluxo de ar. Se o tubo de alimentação sai pela parede, então uma grade de ventilação ou um defletor de plástico é colocado nele.


Possível localização do tubo de abastecimento
No caso de a instalação de ventilação para adega ser efectuada em casa onde esteja instalada lareira ou recuperador de calor, recomenda-se elevar a chaminé junto à chaminé, pois esta activa a exaustão do ar de exaustão da cave devido à a grande diferença de temperatura.


Amortecedores nos tubos ajudarão a regular com precisão o processo de ventilação.
Recomenda-se a instalação de amortecedores nas tubulações dentro da adega para ajustar a intensidade dos fluxos de ar. Abrindo-os para a folga necessária na sala, a intensidade da circulação, a umidade e a temperatura do ar são reguladas. É da presença de um amortecedor e da correta regulação do microclima na adega que vai depender se as peças são mantidas em bom estado por muito tempo.
Depois que o sistema for montado, certifique-se de verificar o empuxo normal.
Para verificar a pressão do fluxo de ar na entrada, você precisa anexar um pedaço de papel fino ao tubo de alimentação. Se começar a balançar claramente, a intensidade da entrada de ar é boa. Outra forma de verificar se o sistema está funcionando é direcionar a fumaça do papel aceso em um balde de metal. Bastará ter alguns jornais velhos, que precisam ser acesos, queimar até a metade e depois extinguir-se até o estado de decomposição.
Ações adicionais para manter um microclima normal
Para manter um microclima confortável na adega para armazenar alimentos, você deve realizar periodicamente as seguintes ações:
Para ajudar a reduzir a umidade no porão, ele deve ser ventilado regularmente. Portanto, no verão, todas as portas ou escotilhas são abertas e os amortecedores nas aberturas totalmente abertos. O vento quente do verão fará seu trabalho - secará e ventilará o porão. Outros métodos mais eficazes de secagem forçada da adega serão descritos abaixo.
Há alturas em que é necessário, pelo contrário, aumentar a humidade da arrecadação. Em seguida, a água é borrifada na adega com um borrifador, serragem úmida é borrifada no chão ou uma caixa cheia de areia úmida é instalada. A serragem e a areia são umedecidas com água conforme necessário.
Secando a adega
O processo de secagem da adega também pode ser atribuído a medidas de ventilação, então você também deve ter um conhecimento suficiente delas. Além disso, existem várias maneiras de realizar este procedimento.
Como mencionado acima, todos os processos de secagem são realizados no verão, mas também é recomendável realizá-los mais uma vez antes de colocar os vegetais na adega.
Se o cômodo estiver muito úmido, todos os itens de "móveis de porão" e caixas (lari) para guardar vegetais devem ser removidos dele. É aconselhável secá-los à luz solar direta - seu componente ultravioleta será um excelente "remédio" para mofo e bolor.
Todas as portas e escotilhas se abrem e, se houver um ventilador instalado no porão, ele também pode ser ligado. Assim, a adega deve ser ventilada por 3 a 5 dias, e este será um preparo preliminar antes das principais medidas de drenagem.
A primeira maneira - caixas com uma substância higroscópica
No processo de secagem, às vezes você pode sobreviver com um método muito simples. Uma caixa cheia de cal viva ou sal grosso comum é levada para a adega. Esses componentes são baratos, altamente higroscópicos e absorvem perfeitamente a umidade. Além disso, eles também desinfetam o ar e as paredes da sala.
A segunda maneira é o antigo método da vela
Uma maneira muito antiga, popular, extremamente simples e acessível de secar é instalar uma vela acesa perto da chaminé. Deve ser instalado em um recipiente de ferro e sobre um suporte estável.


Uma maneira simples e eficaz de secar com uma vela
A vela contribui para a criação de tiragens mais intensas na chaminé, pois a circulação do ar na sala é acelerada, e sua troca ocorre com muito mais frequência do que com o modo ventilatório usual.
Além de uma vela, uma lâmpada de álcool convencional com combustível líquido ou seco pode ser usada para o mesmo propósito.


Não será pior com o uso de álcool em pó.
A secagem desta forma continua por vários dias, dependendo da umidade do ambiente. A vela de ignição ou o combustível no queimador é substituído várias vezes conforme necessário - até que o resultado desejado seja obtido.
O terceiro método é um braseiro de metal
Uma maneira mais problemática, mas não menos confiável, de secar rapidamente é com a ajuda de um braseiro improvisado, que pode ser feito de um recipiente de metal, por exemplo, de um balde velho.


Esquema de secagem em braseiro caseiro
Vários orifícios são feitos para aumentar a tração e, em seguida, a lenha é carregada no contêiner, de preferência bétula, pois eles são capazes de criar fumaça desinfetante favorável.
Você pode criar uma estrutura mais complexa usando uma grade de ferro fundido, que é instalada em tijolos colocados em seus cantos. Um balde sem fundo é instalado no topo da grelha, no qual a lenha também é empilhada e incendiada. A vantagem desse método é que a grelha é capaz de aquecer ao rubro e, em seguida, resfriar lentamente, liberando calor para o ambiente. Ao mesmo tempo, o empuxo aumenta e, conseqüentemente, a troca de ar é acelerada.
O fogo deve queimar continuamente, pelo menos 12-14 horas, então você precisa alocar um dia inteiro para esses procedimentos e preparar muita lenha de bétula.
O levantamento do braseiro para carregamento adicional de lenha e o abaixamento do mesmo é feito através da escotilha por meio de um cabo com gancho. O local para esse "incêndio cercado" improvisado deve ser preparado com antecedência, de modo que nenhum pré-requisito para um incêndio seja criado.
A quarta maneira é usar aquecedores elétricos
O método que usa aquecedores elétricos pode ser considerado não muito problemático. Para este efeito, qualquer um dos dispositivos comercialmente disponíveis é adequado, mas é melhor usar modelos de convecção ou "vento".


Aquecedores elétricos podem ajudar na secagem, mas serão muito caros
O aquecedor é instalado no meio da adega para que o calor seja distribuído uniformemente por toda a área da sala.
Ao usar este método, você precisa entender completamente que esse processo de secagem é muito longo e, portanto, caro, então você precisa calcular imediatamente suas capacidades financeiras.
A secagem da adega com um gerador de calor potente é bastante popular, uma vez que este método é muito eficaz. Ele é usado até mesmo para secar os porões de casas que sobreviveram às enchentes.


A pistola de calor será mais eficiente
Devido à radiação de calor e ao poderoso fluxo criado pelo ventilador, a adega seca rapidamente. O aparelho também funciona com eletricidade, mas essa secagem será mais barata, já que será muito mais rápida. No entanto, você pode tentar encontrar uma pistola de ar quente que funcione com propano.
A quinta maneira é um fã doméstico regular
Como há ventiladores em quase todas as casas, eles também são usados para remover o excesso de umidade do porão. O ventilador é instalado no centro da adega e ligado por três a cinco dias. Neste caso, todas as aberturas, portas ou escotilhas existentes devem estar bem abertas.
Sexta via - fogão portátil
Usado para procedimentos de secagem em porões e fogões de sala comuns.
Nesse caso, a chaminé da fornalha é levada ao orifício de exaustão, e o fogão é aquecido por três a cinco dias. Ao mesmo tempo, a troca de ar na adega aumenta rapidamente, o que leva a uma secagem eficaz do ambiente.


Você pode instalar um pequeno fogão de barril na adega enquanto seca
Se não houver tubo de escape na adega, não faz sentido utilizar este método, uma vez que haverá muito fumo na divisão, mas o efeito de secagem será muito reduzido.
Tratamento de impermeabilização de caves
Após a secagem da adega, para a máxima preservação a longo prazo do estado alcançado da divisão, recomenda-se revestir as superfícies das paredes e pavimento com compostos impermeabilizantes.
Recomendamos: Qual tamanho de fio é necessário para 3-10 kW?
Se as paredes forem retiradas de concreto, utiliza-se a impregnação de penetração profunda, com a qual as superfícies são tratadas em várias camadas.
A cada camada, penetra profundamente na laje de concreto, fechando todos os poros internos, criando uma superfície impermeável e respirável.
Cubra a cave seca com feltro para telhados, que é um excelente impermeabilizante.


Impermeabilização do piso do subsolo com material de cobertura
Neste caso, o efeito desejado pode ser obtido se o material for colocado sobre uma superfície plana. Sobre ele é aplicada uma massa, que é então aquecida, e então o material de cobertura é colado nele, criando paredes e piso impermeáveis.
A argila é um excelente material impermeabilizante ecologicamente correto.
Este método de impermeabilização de uma sala é chamado de enchimento. O único requisito para um material natural para pisos e paredes é uma alta porcentagem de teor de gordura.


Enchimento e rejuntamento de piso de argila
- Para o processo, você vai precisar de pedras que vão fortalecer o piso da adega. Eles são despejados em sua superfície, em seguida, uma solução de argila com adição de areia é espalhada sobre eles. Essa camada deve ter pelo menos 100 × 120 mm. A consistência da argamassa de argila deve ser espessa o suficiente.
- O barro é espalhado na superfície e compactado entre as pedras, formando um revestimento misto.
- Depois de compactar completamente a superfície até um estado uniforme, deita-se sobre ela uma camada de areia grossa, cuja espessura deve ser de 40 ÷ 60 mm. A areia também é compactada com um compactador - isso torna a superfície ainda mais densa. A areia restante é simplesmente varrida do chão. Se você deseja obter uma superfície limpa e uniforme, então, de cima, ela é finalmente alisada com uma ferramenta especial de rejuntamento.
- O chão de barro seca por muito tempo - de 20 a 40 dias, portanto esse trabalho deve ser iniciado no início do verão. Então, a adega estará totalmente operacional no outono.
As paredes de barro também podem ser impermeabilizadas com argila.Neles, com a ajuda de pequenos suportes de metal, é fixada uma malha de arame ou arame macio comum. Então, uma solução de argila é lançada sobre essa base. Quando seca, é aplicada outra camada, que é alisada à mão ou com rejunte, em movimentos circulares.
Além desses materiais impermeabilizantes, outros são usados, mas os citados acima podem ser considerados os mais acessíveis e seguros para o local onde os alimentos serão armazenados.
É necessário um dispositivo de ventilação na adega, e é melhor pensar nisso com antecedência, tendo feito a sua instalação ainda durante a construção do armazém. Se o sistema for instalado corretamente, então processos de secagem sérios e de longo prazo podem ser evitados, já que a ventilação convencional será suficiente.
Vídeo: como a ventilação pode ser organizada em uma adega
Como equipar a ventilação: requisitos gerais
Para fazer a ventilação da adega com as próprias mãos, não é preciso perder tempo procurando profissionais e comprando equipamentos caros. Um par de tubos é suficiente, com a ajuda de um dos quais o ar será fornecido, e o outro - a sua retirada.


O papel do material para o tubo de ventilação pode ser desempenhado pelo PVC, galvanizado ou amianto. A principal dificuldade é escolher o diâmetro correto, que é determinado levando-se em consideração a área da sala. Assim, para fazer ventilação na cave com área de 10 m2. metros, é necessária a instalação de um tubo de 20 cm de diâmetro, sendo o cálculo efetuado da seguinte forma. Um "quadrado" do porão requer 26 metros quadrados. veja duto. Sabe-se que um centímetro do diâmetro do produto corresponde a 13 metros quadrados. veja a seção. A fórmula final parece para o cálculo - a área da sala (S) * 26/13.
A ventilação correta da adega deve fornecer:
- Exaustor. A tarefa do duto é remover as massas de ar velhas e aquecidas. O tubo deve ser instalado sob o teto da adega. O tubo é montado na vertical e a sua parte superior sobressai 0,5 m acima do telhado.Para reduzir a humidade na cave, é necessário o seu isolamento. Para resolver este problema, utiliza-se um tubo de diâmetro ainda maior e um isolamento especial (é permitido o uso de lã mineral). O princípio da organização é simples. Um produto mais fino é inserido em um tubo grosso, após o qual o espaço entre eles é preenchido com o referido material.
- Abastecimento de ar. O dispositivo de ventilação na adega implica o uso de outro tubo projetado para fornecer massas de ar limpo de fora. A instalação é realizada no canto oposto ao local de instalação da conduta de exaustão. O fundo do tubo deve estar a 0,5 m do chão. Para evitar a penetração de vários animais no sistema, deve haver uma grade na entrada.
A ventilação da adega no inverno e no verão funciona devido à diferença de temperatura. Para conseguir uma reposição ideal das massas de ar, recomenda-se a instalação de válvulas especiais. Caso contrário, correntes de ar podem aparecer ou, ao contrário, o movimento do ar pode parar (em diferenças de temperatura alta e baixa, respectivamente).
Para verificar o funcionamento da ventilação, é necessário pegar um pedaço de papel e prendê-lo na saída do tubo de ventilação. Oscilações indicam que o sistema está operando normalmente. Existe outra opção de verificação. Você pode colocar um recipiente com carvão e prestar atenção por onde sai a fumaça. Se a ventilação da adega for feita corretamente, a fumaça sairá pelo duto de exaustão.
Ao configurar o sistema de alimentação e exaustão, você pode fazer o seguinte:
- Ajuste os amortecedores para otimizar a troca de ar.
- Aumente o diâmetro do duto.
- Faça uma opção de ventilação combinada (usando um ventilador).
Como funciona o sistema de ventilação
A otimização e a qualidade da ventilação dependem da correção de seu arranjo. O funcionamento correto do sistema de troca de ar é simples.O espaço na cave prevê 2 condutas da estrutura de alimentação e exaustão. Por um - o ar fresco entra na sala, pelos outros os vapores são retirados da adega. Quando o armazenamento subterrâneo tem uma área pequena, a troca de ar é criada na adega com um tubo. Mas a eficiência de um sistema de canal único será baixa.
A ventilação adequada da adega é caracterizada pelos seguintes fatores:
- indicadores de desempenho máximo são alcançados devido aos risers fornecidos com um determinado diâmetro aos furos;
- a qualidade do sistema é determinada pela localização das aberturas de exaustão e entrada acima do porão;
- os tubos de ventilação da adega são montados nas paredes se a cave se encontrar por baixo da garagem ou por baixo da casa, ou através do tecto se a arrecadação se encontrar no exterior;
- ao construir uma coifa para adega com as próprias mãos, é preciso levar em consideração a altura de instalação dos canais de entrada e saída do piso;
- o diâmetro do furo deve ser o mesmo em todos os canais. Muito pequeno - leva ao ar bolorento, e vice-versa, a chegada de uma grande quantidade de frio leva à formação de glacê;
- o dispositivo de ventilação na adega envolve a instalação de risers de alimentação e saída em cantos ou paredes opostas. É necessária uma certa distância entre os tubos. Este arranjo garante a passagem máxima de ar fresco pela sala, expulsando o ar estagnado;
- aberturas para a saída do ar estagnado são feitas sob o teto;
- o duto de exaustão de ventilação está disposto acima do aterro do porão. Seu comprimento, para o funcionamento normal do sistema de dutos, deve ser de no mínimo 150 cm:
- para organizar a ventilação do contrapiso, utilizam-se tubos de PVC do mesmo diâmetro;
- ao organizar uma estrutura de abastecimento e exaustão, é necessário obter uma localização direta das comunicações. Curvas e curvas obstruem a passagem do ar;
- para manter um microclima ideal no porão, é recomendável instalar amortecedores. Na estação fria, eles regulam o fluxo de ar frio;
- seções dos canais de circulação de ar externos são cobertas com uma grelha, cogumelos e devem ser isoladas.
Guiando-se pelas dicas acima para organizar a ventilação na adega, você pode obter a ventilação ideal do armazenamento subterrâneo.
Ventilação de adega "faça você mesmo" na garagem
A maioria das garagens modernas está equipada com adegas, onde é habitual armazenar vários produtos, vegetais, picles, etc. No caso de a cave não estar bem arrumada, os produtos deterioram-se rapidamente, o que requer um sistema de ventilação de alta qualidade na cave da garagem.
Quando a coifa da adega não proporciona uma troca de ar completa, as paredes começam a ficar úmidas, aparecem mofo e rachaduras. Para evitar tais problemas, é impossível economizar na organização da ventilação da adega durante o processo de construção.
Variedades de abastecimento e sistema de troca de ar de exaustão em porões
Dependendo do layout e da área do contrapiso, o tipo de cobertura é selecionado. Existem vários tipos de sistema de troca de ar em porões.
Ventilação natural
O dispositivo de extração na adega pelo tipo de ventilação natural é baseado na diferença dos indicadores de temperatura e pressão fora e dentro da sala. A eficiência do trabalho depende do correto posicionamento dos furos. O duto de alimentação é colocado a uma altura de 25-30 cm do chão e o duto de exaustão fica a 10-20 cm do teto.
Sistema forçado
O projeto de troca de ar forçada consiste em dois tubos com ventiladores embutidos que fazem o ar se mover, criando um vácuo artificial na sala. Sua capacidade depende do tamanho do porão.
Ventilação combinada
Ao fazer a troca de ar dentro do contrapiso, ao escolher as coifas, é necessário levar em consideração as peculiaridades da construção.Pode estar localizado sob um edifício residencial ou garagem, localizado separadamente na rua. Esses fatores afetam a capacidade correta do duto.
Vantagens e desvantagens
Vamos observar os aspectos positivos do uso de sistemas de ventilação no porão e no porão:
- Microclima confortável na casa, nenhuma sensação de umidade no andar térreo;
- Possibilidade de equipar despensaque mantém uma temperatura constante e teor de umidade no ar;
- A vida útil das estruturas de suporte é aumentada uma casa de habitação ou adega, especialmente se forem de madeira;
- A operação de gás e equipamento de aquecimento não é possível em uma sala sem ventilação por razões de segurança;
- Um porão seco nunca desenvolverá esporos de mofocausando ARVI, alergias e asma.
Todos os tipos de ventilação são divididos em vários tipos, dependendo da sua finalidade, da complexidade do arranjo e do princípio de funcionamento. Mas o princípio de operação de qualquer um deles será baseado nas leis da física sobre o movimento das massas de ar. O ar frio desce e o ar quente sobe.
Ventilação natural de ar fresco
O mais simples, sistema de saídas de ar na fundação ou pedestal. Está equipado durante a fase de construção da casa e é constituído por pequenos furos na parte superior da cave.
Se a cave estiver abaixo do nível do solo, então o capô é equipado com tubos de plástico ou cimento-amianto com um diâmetro de 10-15 cm. Eles são removidos acima da superfície até uma altura de 30 cm e cobertos com grades de detritos e roedores. Este método é natural e depende das flutuações da temperatura externa, força do vento e umidade.


Ao calcular sua taxa de transferência, 1/400 da área total do porão é considerada - é assim que obtemos a área total de todos os fluxos de ar.
As aberturas devem ser localizadas no lado sotavento, que é menos sujeito a precipitação. Casas com fundações complexas e localizadas em áreas baixas podem ter até um furo para cada 3-4 metros. Fechamos as saídas de ar com grades externas.
Esta opção econômica é adequada para ventilação de garagens e porões não residenciais ou como um complemento do sistema de ventilação principal.
Ventilação de exaustão natural
Tipo de alimentação e exaustão. Para uma operação adequada, você precisará instalar dois tubos de ventilação e o dispositivo de ventilação de alimentação e exaustão terá esta aparência.
- O primeiro tubo está localizado sob o teto do porão e é projetado para a saída de ar quente. Coloque a chaminé o mais alto possível, de preferência ao nível da cumeeira. Isso é necessário para garantir uma boa tração. A parte do tubo, que fica ao ar livre, deve ser isolada para evitar o congelamento no inverno e coberta com uma viseira de precipitação.
- O segundo tubo para entrada de ar fresco está localizado a uma altura de 30-40 centímetros do chão, e colocamos sua entrada na rua um metro acima do solo e a cobrimos com uma treliça. A convecção ocorrerá devido à diferença de temperatura entre o ar externo e o do porão. Esse sistema funcionará de forma mais eficaz quando os dutos de alimentação forem separados em lados diferentes do porão.
Fornecimento e exaustão de ventilação com recuperação de calor
Para o subsolo, onde está prevista a residência permanente, não basta simplesmente instalar um sistema de ventilação forçada. A sala é necessariamente isolada e impermeabilizada. A questão do aquecimento e aquecimento também está sendo resolvida.
Cada vez mais, o fornecimento e exaustão com recuperação de calor estão sendo integrados a esses esquemas.
O ar já bem aquecido entra no escapamento e, para não emitir calorias prontas para a atmosfera, o ar passa por um recuperador de cerâmica especial. À medida que aquece, ele libera calor para o ar fresco. Ao mesmo tempo, os fluxos de ar não se cruzam.A eficiência de tal dispositivo é de 50-90%, dependendo do projeto do trocador de calor. Todos os recuperadores de calor são muito confiáveis, não requerem manutenção adicional e podem servir por décadas.


Equipado com armadilhas de umidade, filtros de poeira, sensores que controlam a umidade e a temperatura do ar. Para instalações residenciais, esses indicadores estão na faixa de 50-65% de umidade relativa e 18-220C. Esses sistemas são mais frequentemente encontrados em "casas inteligentes", e sua instalação é difícil e só deve ser realizada por profissionais.
Regras de instalação do sistema de ventilação
Dependendo do tamanho do porão, selecione um sistema de circulação de ar específico:
- O sistema natural é adequado apenas para salas de até 50 m². m.
- A troca de ar forçada é racional com uma área de adega de mais de 50 m quadrados.
O equipamento de um sistema de ventilação de alta qualidade no porão assume a conformidade com as seguintes regras:
- a seção transversal dos canais de alimentação e exaustão deve ser do mesmo tamanho para o transporte uniforme das massas de ar. Um diâmetro maior só pode estar na linha de exaustão, a fim de remover rapidamente o ar para a rua. Se a seção transversal da tubulação de exaustão for menor que a de abastecimento, então condições desfavoráveis para produtos e uma pessoa são formadas;
- Não instale dutos de ventilação próximos uns dos outros, pois neste caso o ar não circulará pela sala. Monte os tubos na diagonal ou opostos;
- instalar a parte inferior do duto de exaustão o mais próximo possível do teto para garantir a descarga do ar de alta qualidade e a ausência de acúmulo de condensação nas paredes e no teto;
- a boa tiragem da linha de ventilação é garantida pela correta seleção do comprimento do tubo (no mínimo 150 cm), que deve ser superior ao nível do solo externo;
- para um porão pequeno, use canos de esgoto de plástico, pois seu diâmetro é adequado para uma circulação eficiente
- se a adega estiver situada sob uma garagem ou anexo, utilizar a portinhola como poço de ventilação, equipando-a com uma armação com grade de roedores;
- independentemente da localização do porão, as linhas de alimentação e exaustão devem ser o mais retas possível, com o mínimo de curvas e curvas para que a condensação não se acumule;
- toda a linha deve ser montada com tubos da mesma seção transversal. A expansão ou estreitamento dos canais é inaceitável;
- se a enseada estiver próxima ao solo, então deve ser equipada com uma rede contra a penetração de detritos, insetos, pássaros, roedores;
- é melhor equipar os tubos de alimentação e escape com amortecedores especiais para regular o movimento do ar no inverno, a fim de limitar a entrada de correntes frias e retardar a remoção de massas quentes;
- use grampos para prender a tubulação, fixe com segurança todos os elementos do sistema durante a instalação;
- instalar um guarda-chuva ou defletor nas extremidades dos tubos externos para evitar que precipitação e detritos entrem no porão;
- Isole as partes externas dos tubos para que a condensação não apareça neles no inverno.


A execução independente dos trabalhos de instalação de equipamento de circulação de ar na cave requer cálculos preliminares.
Requisitos do porão
Como regra, há um porão em todas as casas particulares. Muitos habitantes do setor privado equipam salas de serviço, uma adega, dispõem de saunas, ginásios, salas de recreação, o que requer o arranjo de um complexo sistema de ventilação forçada.
No entanto, na maioria das vezes o porão é usado para armazenar alimentos, que, embora necessitem de um determinado microclima, não requerem um dispositivo de tiragem forçada.
Neste caso, bastará fazer o abastecimento natural e a ventilação de exaustão.
No entanto, de forma a garantir a segurança dos produtos e o correto funcionamento da adega, é necessário respeitar algumas regras na disposição desta divisão.
Vamos considerá-los em mais detalhes:
- Impedir que a luz natural entre no porão... Não deve haver janelas no porão, o uso periódico de iluminação elétrica é permitido.
- Organize um regime de temperatura favorável. Para isso, a adega é equipada de forma que uma de suas faces fique em contato com a parede externa da casa.
- Garantir a troca de ar normal na sala, que é fornecida pela presença de ventilação.
- Manter a umidade necessária do ambiente... O indicador ideal é cerca de 90%. Este parâmetro também depende da ventilação.
- Organize uma boa impermeabilizaçãopara evitar a entrada de água subterrânea na adega.
A partir da lista de requisitos acima para a disposição correta do porão, pode-se ver que duas das cinco condições necessárias são fornecidas pela ventilação.
Mas para que funcione de forma eficaz e crie um modo ideal de armazenamento de alimentos, certas regras para sua instalação devem ser observadas.
A ventilação insuficiente da sala leva a um aumento da umidade e à formação de mofo, a ventilação excessiva pode causar secura excessiva do porão, o que também afetará adversamente a segurança da cultura.
Portanto, aqui você precisa seguir a regra do meio-ouro, mas para cumpri-la é importante fazer os cálculos corretos, que dependem do tamanho e das características da sala.
Ventilação forçada
Se você ainda não conseguiu obter uma circulação de ar suficiente no porão, mesmo depois de realizar essas manipulações sofisticadas, não deve ficar particularmente chateado. Você pode contar com a ajuda do progresso técnico onipresente e fornecer seu porão ou adega com um sistema de ventilação forçada. E, claro, faça tudo com suas próprias mãos. Basta fazer uma caixinha e colocar ali um exaustor.
Não é caro e provavelmente suas despesas serão justificadas. A conexão elétrica não é difícil. Qualquer um pode fazer isso com as próprias mãos. Antes de conectar, não se esqueça de desconectar a rede interna para evitar o encontro com santos.
Ventilador para ventilação forçada da adega
Em geral, existem muitas opções para a localização de tubos com esse esquema de ventilação. Por exemplo, nas garagens, se nelas houver porões, a chaminé, via de regra, passa para dentro da sala. Em um antigo setor privado, se houver um porão, podemos ver apenas dois canos saindo do solo. Em casas de elite, você pode passar horas descobrindo circuitos complexos e se perguntando sobre as delícias da automação burguesa para sistemas de ventilação.
Sistema de ventilação da adega
Seja o que for, o principal é que a sua cave ou adega esteja sempre seca e leve. E é bem possível fazer isso com as próprias mãos, o principal é ter um pouco de trabalho e imaginação. A propósito, os membros de sua família, que mais cedo ou mais tarde se cansam de visitar um porão escuro e úmido, podem aumentar seu entusiasmo pelo trabalho.
Ventilação forçada da adega
O sonho de um jardineiro é ter seu próprio porão espaçoso e seco para armazenar vegetais da horta, conservação e outros utensílios domésticos. Como tornar tecnologicamente correta a ventilação de uma adega doméstica? Para equipar uma boa arrecadação numa casa privada, é necessário dotá-la de um permutador de entrada e de escape. Capuz competente na adega irá garantir condições ideais de umidade e temperatura.
Quanto custa para fazer a ventilação
É barato fornecer um bom microclima no porão. Opções simples podem ser feitas a partir de resíduos de construção e sucata, as mais complexas exigirão investimentos adicionais.
Os seguintes fatores afetarão o custo de todo o sistema:
- Área da cave e altura de todo o edifício. De acordo com esses parâmetros, são calculados o número e o tamanho dos dutos de ar, que constituirão uma parte significativa em todo o projeto;
- Material da caixa de ar. O PVC é mais barato, mas tem restrições quanto ao tamanho e diâmetro máximo do tubo. O aço galvanizado é mais confiável e permite realizar ventilação em qualquer grau de complexidade e configuração, mas é muito mais caro, mais pesado e pode exigir equipamentos especiais;
- O grau de automação (um simples ventilador de duto custa a partir de 2.000 rublos, uma mudança de 1.400 rublos);
- A presença de dispositivos adicionais complexos e caros - sistemas de divisão, recuperadores, desumidificadores, higrômetros e sensores (o custo de tal sistema pronto para uso pode exceder 100 mil rublos);
A ventilação do porão é importante tanto para a preservação dos alimentos ali armazenados quanto para o bem-estar de toda a casa. As opções mais simples podem ser feitas de forma independente ou estabelecidas durante a fase de construção. Tipos mais complexos de ventilação requerem habilidades e experiência especiais. Em qualquer caso, este sistema deve estar sempre em boas condições de funcionamento e com manutenção oportuna.

















