Понякога възникват ситуации, когато е необходимо, без значителни материални разходи, да се отопли възможно най-ефективно и бързо малко помещение (гараж, работилница или склад). Отлично решение на проблема ще бъде компактната печка, направете си сам, която изисква изобретателност, желание, инструменти и метал за създаване.
От подръчни материали може да се изгради обикновена буржуйка. Можете да използвате обикновена консерва или дебелостенна цев. Многогодишната практика показва, че много дебел метал (над 8 мм) е твърде труден за загряване. По този начин ефективността намалява и по-голямата част от топлината не се използва за отопление.
Ако металът се окаже твърде тънък, под въздействието на високи температури той ще започне да се деформира и бързо да загуби първоначалната си форма. Най-добрият вариант са стени от около 3-4 мм.
Правоъгълна печка с рефлектор
Когато решавате каква форма и размер трябва да вземе завършената печка, всеки трябва самостоятелно. Човек с инженерно образование и умения може да вземе всеки, дори и най-простият дизайн, и да направи желаните промени, насочени към подобряването му.
Чертеж на правоъгълна печка:

Една проста и многофункционална печка за домашна употреба е направена от следните материали:
- Контур и опростен дизайнерски чертеж, показващ всички основни размери
- Ламарина (количеството зависи от желаните размери на пещта)
- Стоманени ъгли (дебелина 4-5 мм)
- Метална тръба 25-30 мм
- Тръба 180 мм
- Заваръчна машина
- Работен ръчен и електрически инструмент
Тялото на пещта ще бъде направено под формата на правоъгълник със стоманени листове, които са заварени челно един към друг. Необходимо е да изрежете детайлите под пет основни равнини (долна, горна, странична и задна стени). На предния панел ще има вентилатор и врата за пещта, така че ще бъде възможно да се реши проблемът с нея по-късно.


Първо, страничните повърхности са заварени към дъното. Необходимо е да се гарантира, че те са разположени строго вертикално, като се използва ниво или квадрат и са скачени под прав ъгъл. Грабвайки на 2-3 места, отново се убеждаваме в правилността на местоположението им и готвим.


След това задната стена е заварена. Цялото вътрешно пространство трябва да бъде разделено на три части:
Препоръчително четене: статия за това как да направите сами пиролизен котел
Последните две трябва да бъдат разделени с решетка, върху която ще бъде положено твърдо гориво (торф, дърва за огрев). Прави се по следния начин:
- От вътрешната страна отстрани на определена височина (10-15 см) ъглите са заварени по цялата дължина
- За решетката е необходимо да се подготвят ленти от дебела ламарина с ширина 25-30 мм и дължина, съответстваща на ширината на печката


- Разстоянието между плочите е около 5 cm
- Лентите са заварени към две метални пръти с диаметър 15-20 mm възможно най-надеждно, тъй като те имат друга роля - ребра за усилване


Няма нужда да заварявате решетката към вътрешните ъгли. Ако е необходимо (почистване на печката, ремонт), може лесно да се получи. След известно време някои от плочите могат да изгорят и ще трябва да бъдат заменени. Има много повече причини да оставите решетката подвижна.


В следващата стъпка трябва да заварявате отгоре две метални пръти, върху които ще бъде разположен рефлекторът. Последният е метален лист, който разделя димния поток и камината. Рефлекторът е подвижен.


Необходимо е да поставите рефлектора така, че отпред да се образува канал, позволяващ изтичането на дим.Най-много ще се затопли вътре, затова е направен от много дебел метал (12-16 мм).
Време е да започнем последните етапи на работа. Първо, бъдещият капак на печката е заварен. Няма да е излишно да осигурите отвор за комина предварително. След това горната преграда се изрязва и заварява, след това по-тясна, поставя се на нивото на решетката и разделя вратите на решетката и пепелника.


Не трябва да се притеснявате много за размера на вратите. Основното нещо е, че е удобно да се поставят дърва за огрев през тях и да се премахнат пепелта и пепелта. Вратата за камината е направена, като правило, почти по цялата ширина, така че рефлекторът и решетката да могат да бъдат отстранени, за пепелника - по-тесни.


След това трябва да заварявате дръжките за вратите за печката, резетата и завесите. Последните се препоръчват да бъдат направени сами от дебел прът и стоманена тръба. Такава работа не трябва да бъде трудна.


След като сте събрали всичко заедно, е време да помислите как да инсталирате готовата конструкция на краката. Препоръчва се те да бъдат направени от метална тръба с диаметър 2-3 см и дължина 8-10 см със заварена в края гайка и завинтен болт. Това ще ви позволи да регулирате височината. За мнозина подобна стъпка може да изглежда странна, но по време на инсталационния процес всичко ще стане ясно.
Време е да помислим за комина, който ще бъде направен от тръба с диаметър 15-18 см. В същото време той трябва да бъде изведен през отвор в стената. Завоите се правят под ъгъл от 45 градуса, не трябва да има хоризонтални участъци.


В долния край на комина трябва да има ротационен амортисьор. За него от ламарина се изрязва кръг с диаметър малко по-малък от подобната характеристика на тръбата, в който се пробива отвор за дръжката за въртене. Последните могат да бъдат направени от метална пръчка.
Необходимо е да поставите комина на ръкав с височина 15-20 см. Той е направен от продукт с диаметър, малко по-малък от комина и е заварен по протежение на отвора към горния капак. Време е да инсталирате печката, да регулирате височината и това е - можете да отоплявате стаята.
Може би ще ви интересува и статия за това как да приложите алтернативно отопление на частна къща.
Нека сравним индустриална пещ с домашно устройство


Изображение 1. Диаграма на индустриална пещ.
Индустриалните ковачници включват (Изображение 1):
- Дюза за подаване на въздух. В нашия случай функциите му се изпълняват от маркуча от прахосмукачката.
- Огнеупорни тухли, които съхраняват и поддържат температура. В домашна ковашка те могат да присъстват и на работния плот.
- Решетките, които държат горивото. В домашен вариант те обикновено също присъстват.
- Слот за зареждане на твърдо гориво. Това устройство може да бъде оборудвано с домашен рог, ако често се използва в работата на домашен майстор.
- Тухлите, които изграждат рамката. В домашно устройство те не са.
- Вентилатор, който подава въздух към пещта. В домашна версия стара прахосмукачка играе своята роля. Въпреки това може да се адаптира и отделен вентилатор.
- Метална рамка за задържане на работната маса. Той е в домашен вариант.
- Въздушна камера. С течение на времето може да се направи за домашна ковачница.
- Тиган от пепел. Полезно допълнение към домашна пещ за домашна употреба, ако пещта се използва често.
- Въздуховод. Като начало нейните функции в самоделна пещ могат успешно да се изпълняват от маркуч за прахосмукачка.
- Корпус.
Обикновена бурканче от консерва
Най-простата печка, направена от собствени ръце, е направена от обикновена кутия. Не е необходимо да се говори за издръжливост на такава конструкция, но тя бързо се изгражда, лесно се сглобява и дава достатъчно топлина.
Цялата работа се състои в инсталирането на краката, подреждането на изходната тръба и някои козметични операции. За да работите, трябва:
- Мога
- Коминна тръба
- Настържете тел
- Заваръчна машина
- Инструменти


Приготвяме се да започнем
- Поставяме кутията хоризонтално и маркираме къде ще бъде вентилаторът, който има формата на правоъгълник или сърп. Поставете го под капака
- В стената или дъното на кутията се изрязва отвор, равен на диаметъра на коминната тръба
- За да направите решетка, трябва да се запасите със стоманена тел. Той се огъва, пренася се през капака навътре и леко се огъва, така че зигзагът да е в желаното положение, докато остава удобно да се полагат чипове, дърва за огрев и т.н.
- Кутията трябва да бъде фиксирана върху крака, които се изрязват от тръби или ъгли и се заваряват
- Коминът е заварен
Подготовка и монтаж
Правейки печка от тръба за баня със собствените си ръце, ще трябва да сглобите самото отоплително оборудване. За това се използва джантата на задните колела. Всички отвори трябва да бъдат заварени, с изключение на този в центъра. Следва следващата джанта. Изпъкналият връх трябва да бъде подрязан. Първият ръб се вмъква във втория, всичко трябва да бъде заварено. Не трябва да има слотове или дупки, устройството трябва да бъде запечатано. Шлаката след заваряване се отбива, заваряването трябва да се провери. Ако някъде са били разрешени пропуски, те трябва да се сварят, да се проверят отново и да се отбият шлаките.
Джантата е заварена към тръбата, втората джанта е поставена върху нея и заварена, така че да няма дупки, тъй като тази част ще се превърне в контейнер за вода. Джантите, заварени един към друг, ще образуват контейнер. След това, във втория ръб, от три страни, трябва да бъде заварена армировка под формата на лъчи. Те трябва да бъдат прикрепени към тръбата за твърдост. В първия ръб трябва да пробиете 25 см отвор в самото дъно. След това оттам се заварява тръба със същия диаметър; в нея трябва да се завие кран, за да се отцеди водата. Първата джанта, която е напълно заварена отдолу, с изключение на средата, се поставя върху тръбата, в противен случай няма да е възможно да се постави. Вторият ръб е обърнат и заварен към ръба на тръбата.
Когато основата е готова, кофражът трябва да бъде премахнат и тухлите да бъдат положени. Вместо фугираща смес трябва да се използва глина. Ако има съблекалня, тогава преди да инсталирате нова печка, е необходимо да изрежете квадратна дупка в стената, защото нагревателят ще започне от там. Тази част ще се превърне във вратите на вентилатора и горивната камера, всичко останало ще бъде разположено във ваната. Ако няма съблекалня, тогава тя ще трябва да бъде изградена заедно с фурната. Ъгълът, където стои конструкцията, трябва да бъде тухлен, което е необходимо за пожарна безопасност.
Ако сте изправени пред въпроса как да направите печка във ваната със собствените си ръце, трябва да знаете, че основата е поставена от тухли, вторият ред ще се превърне в пепел. Това е мината, през която ще трябва да изберете пепел. Тавата за пепел е направена малко по-малка от горивната шахта. След това можете да инсталирате вратата на вентилатора, като я припокриете с друг ред тухли отгоре. Върху шахтата е монтирана решетка.
Сега можете да започнете да поставяте горивната камера, след като решетката е поставена под вратата на камината. Отгоре трябва да се положат още два реда. След полагане печката изсъхва в рамките на две седмици. Ако се наводни незабавно, могат да се появят микропукнатини, които ще нарушат целостта на конструкцията. Духалката, входовете и изходите трябва да се отворят, за да може фурната да изсъхне. На сгънатата конструкция е инсталирана тръба.
Нагревателят ще бъде разположен върху корпуса на желязната печка. В този случай той ще бъде разположен на тръбата, има и резервоар за топла вода. Самата конструкция ще се окаже тежка, така че може да бъде разделена на отделни части, сглобени на закрито. Горната част на комина трябва да бъде подсилена с два фитинга. За монтаж на стена можете да използвате плоча или ъгъл, който е заварен към фитингите и пробит от двете страни. Тухлата може да се пробие с перфоратор с бормашина 6 см. Там се закрепват анкери, за да се получи ъгъл на твърдост за стабилност на конструкцията.
Материали и инструменти
За да създадете буржуйка, ще ви трябва: • метал с дебелина 3 ± 0,5 mm: по-тънките листове бързо ще изгорят, освен това под въздействието на висока температура те могат да бъдат задвижвани и пещта ще стане безформена; дебелостенният метал ще се затопли за много дълго време; • коминна тръба; • пръти 16 мм; • лист метал с дебелина 0,3 мм за монтиране на кутия за събиране на пепел; • рулетка, владетел, креда; • заваръчна машина 140-200A; • шлайф за рязане на метал; по-удобно е да използвате резачка за газ, за да направите кръгли дупки; • метална четка за почистване на заваръчни петна; • шмиргел за регулиране на вратите; • бормашина и тренировки.
Схеми на Буржуик
Основното предимство на правоъгълната печка
за разлика от овалните продукти, направени от тръби или газови бутилки, той се състои в по-голяма площ от нагрятата повърхност, така че ефективността му ще бъде много по-висока. Оптималният размер за печка за бягане е 800x450x450 мм. Печка с такъв размер не заема много място и може лесно да се побере дори в малка стая.


Важно разграничение Фурни Логинов
е наличието на две плочи (
отражатели
) в горната част на горивната камера. Защото
газов път
в същото време се увеличава, топлопредаването на такава печка е значително по-високо от това на конвенционалната метална печка.
Съвети
... Ако е необходимо да се намали размерът на фурната Loginov, тогава е желателно да се промени само нейната ширина. С промяна в дължината и височината на конструкцията, нейната ефективност може да бъде значително намалена.


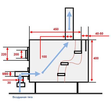
Подробна схема на печката на Логинов
Как да направите резервоар за вода
Като материал трябва да се използва само неръждаема стомана. Ако няма подходящ материал, можете да опитате да адаптирате контейнер от неръждаема стомана за резервоара. Правоъгълната форма на резервоара ще бъде оптимална. Той не е заварен към стената на фурната, а просто го докосва отблизо.
Ако горната част на печката е свободна от нагревателя, резервоарът може да бъде поставен отгоре. Ако това не е възможно, резервоарът се поставя отстрани или отзад - стената се заварява към стената, резервоарът се поставя върху него, след което се привлича с гума и два шипа с гайки с крила.
Основните етапи от изработването на печка с бурканчета
1. Всички детайли са маркирани върху метален лист: 6 стоманени правоъгълника за стените на пещта, 1 правоъгълник за създаване на дим рефлектор, плоча за решетка и резе за врата. 2. Отрязвам
лист метал е възможен във всеки склад за метал. Гилотината, за разлика от мелницата, ви позволява да я изрежете (накълцате) по-точно. В този случай няма да се налага изправяне (подравняване на листовете). 3. Корпусът на пещта е направен под формата на правоъгълник. Страните им се съединяват под ъгъл от 90 ° и се заваряват заедно.


Заваряване на кутия
4. За да се избегнат грешки, кутията за пещта се закрепва първо само чрез заваряване на няколко места и едва след това, след проверка на нейните хоризонтални и вертикални шевове, се заваряват.
Важно!
Всички връзки в корпуса са внимателно заварени;
за да проверите шевовете
за херметичност можете да покриете ставите с креда или керосин.
5. Заваръчните шевове се почистват с телена четка. 6. Вътрешното пространство на печката е разделено на три части: камина, димна камера и пепелник. За да се отдели горивната камера от пепелника, между тях се полага решетка, върху която ще се постави горивото. За да направите това, на височина 10-15 см от дъното на пещта, отстрани и на гърба на кутията са заварени ъгли 5х5 см
на която ще бъде разположена решетката.
Съвети.
По-добре е да направите решетка от 2-3 разглобяеми части. В противен случай при смяна на изгоряла решетка ще бъде трудно да я извадите от горивната камера.
7. Решетката е заварена от дебели стоманени пръти или ленти с ширина 30 mm. Те са прикрепени към 2 ребра за усилване - пръти с диаметър 20 мм. Тъй като решетките изгарят с течение на времето, по-добре е да направите такава решетка подвижна.


Производство на решетка
8.На разстояние 15 см от горната част на кутията се заваряват две здрави пръчки, върху които тя ще се разбърква един или два сменяеми отражателя
- дебелостенни метални листове, които ще задържат потока горещи газове и ще ги изпращат за доизгаряне. Те обаче не трябва да покриват напълно фурната. За да влезе горещ дим в комина, се прави отстъп от около 8 см от предната страна (за първия лист) и задната част на печката.


Схема на преминаване на газове в най-простата печка и фурна с монтиран рефлектор
9. След това горната част на кутията е заварена и след това изрязана в нея отвор за тръба
.


Отвор за тръба
10. Предната част на печката с изрязани отвори за вратите на горивната камера и пепелника е заварена последна. 11. Размерът на вратата на камината трябва да бъде достатъчно голям, за да позволи зареждане и смяна на решетката без усилие. Отворът за пепелника е направен малко по-малък. 12. Пантите са заварени първо към вратата, а след това към тялото на печката. Те могат да бъдат закупени готови или заварени от две тръби с различен диаметър. Дръжките на вратите могат да бъдат направени от метална лента или лента.


Заваряване на вратата
Важно!
Когато закрепвате вратите,
прилепнете ги към тялото
възможно най-плътно; за това те се изправят (изравняват) и се почистват с шмиргел. Клиновите резета, които затварят вратите, прилягат възможно най-плътно към тялото.
13. Тази фурна може да се използва за готвене на храна или топла вода. За това в горната част на кутията се изрязва отвор с необходимия диаметър. Горелка за фурна
които ще се поберат в тази дупка могат да бъдат закупени във всеки железарски магазин. 14. За по-лесна употреба, дизайнът
инсталиран на крака
или стойка за заварена тръба. 15. Коминът е свързан с печката
с помощта на ръкав
. 16.
За поставяне на амортисьор
регулирайки изхода за дим, в тръбата се пробиват два отвора. Металният прът се вкарва в отворите и се огъва на 90 °. Към него в центъра на тръбата се хваща „стотинка“, изработена от метал - порта, чийто диаметър трябва да е малко по-малък от диаметъра на самата тръба с 3-4 мм.
Жилище


Ето как изглежда издухването на охлюва на схемата. За да го направим, в дъното на кофата правим отвор в центъра, който трябва да е малко по-голям от диаметъра на вала на двигателя. След това трябва да направите опори, както на снимката или всякакви други опори, които ще фиксират сигурно двигателя, така че да не се върти и да не докосва работното колело.


След това е необходимо да изрежете кофата, така че да е по-широка от работното колело. След това отрязваме капака със същия диаметър като кофата и в него правим кръг в центъра, който ще бъде малко по-малък от диаметъра вътре в работното колело.


Устройство за комин
• За да се предотврати изтичането на скъпоценна топлина през тръбата твърде бързо, тя трябва да бъде специално проектирана. Такова устройство има две основни части: вертикален
височина от 1,2 м, инсталирана под ъгъл от 90 ° над фурната и наклонена част, наречена
свиня
, Дълги 2,5-4,5 m или повече, при които димът изгаря. Именно глиганът дава до 1/4 от топлината на цялата пещ.


Комински свине
• Високият човек може да докосне нагрята тръба, така че прасето трябва да има защитно покритие под формата на мрежа. За да се избегнат изгаряния, разстоянието от пода до тази тръба трябва да бъде 2,2 м. Вертикалната част на тръбата, идваща от фурната, е допълнително обвита с топлоизолация.
Важно!
Тръбата трябва да бъде разположена далеч от измазаните стени на разстояние 1,2 м. Разстоянието от дървените конструкции е 1,5 м.
Съвети.
Полагането на тръба през дървен таван и покрив е доста трудоемък процес. Много по-лесно е да го изведете през дупка в стена или прозорец.


Извеждане на дим през прозореца
Изпитване на преносима фурна с контейнер


Може да се постави по-лека течност
1 Отделението за запалване на запалването беше полезно - всичко на едно място.
2 Удобен е за носене. Печката тежи около 3 килограма.


Отидох да пържа картофи
3 Камината е направена под ъгъл, дървото ще изгасне, когато изгори - огънят се поддържа автоматично.


Заредих горивната камера с дървени стърготини и разпалих огън
4 Сега можете да приготвяте храна сред природата на почти всяко място.


Достатъчно за готвене
ВИДЕО: Направи си сам мобилна печка от резервоар за гориво
Правила за безопасно инсталиране на метална фурна
Печката за отопление се загрява много по-силно от тухлената фурна, така че всички запалими предмети трябва да са на достатъчно разстояние от фурната. Ако подът в стаята е дървен, той се монтира само върху тухли или метален лист. Металът от своя страна се полага върху лист азбест с отстраняване на 35 см или повече от краищата на печката. Пред камината тя трябва да излиза на 5,5 см. Азбестът може да бъде заменен с филц, напоен с глина. Също така е възможно да се монтира такъв екран, който да отразява топлината върху бетона.
Важно!
Работещата фурна изисква надзор. Не трябва да сте далеч от стаята за дълго време, където печката се отоплява.


Инсталиране на котлон с камъчета върху тухлена основа
Конструкция на пещ


Преди да започнете да изграждате тухлена печка за сауна със собствените си ръце, трябва да изберете решение. Включва:
- бетон;
- пясък;
- глина.
Скалата се почиства от отломки и примеси, оставяйки я в съд с вода за няколко дни. Металният прът се поставя под първия ред зидария, а в тухлите, като се използва абразивното колело на мелницата, е необходимо да се направят подходящите прорези. След като вратата е на мястото си, получените празнини могат да бъдат запълнени с пясък и глина хоросан.
Направи си сам печката във ваната е поставена от тухли. След като завършите полагането на първия ред, трябва да инсталирате резервоар за вода, който можете да направите сами. Решетката се регулира по такъв начин, че между нея и горивната камера остава празнина, в противен случай при нагряване решетката ще се разшири и ще премести тухлите в стената.
Преди полагане на шестия ред е необходимо да увиете вратата и частта от контейнера, която е в контакт с тухлата, с азбестов кабел. Когато инсталирате вратата на камината, тя е фиксирана по същия начин като крилото. Единствената разлика тук е количеството тел. Необходимо е да завъртите 3 пръчки за всяка дупка, това трябва да се направи с помощта на клещи.
Ако мислите за въпроса как да направите печка в баня със собствените си ръце, трябва да се запознаете по-добре с дизайнерските характеристики на комина. Когато го инсталирате, трябва да се погрижите за правилата за пожарна безопасност. Разстоянието от тръбата до покрива не трябва да бъде по-малко от 80 см. Що се отнася до дебелината на стената, тя трябва да бъде една и половина тухли или повече. Тази мярка ще предпази вътрешните стени от конденз. Фурната се припокрива от 12-ти до 19-ти ред. На 21-ви ред могат да се оформят два канала, всеки с размерите на тухла. Получените кухини трябва да бъдат изолирани с минерална вата, преди да започнете работа с комина.
След като приключите с полагането на 22-ия ред, трябва да изместите каналите на комина към центъра. Ако заповедта предполага, че сърцевината трябва да бъде покрита, върху нея трябва да се положи друг ред тухли. Инсталирането на клапани започва след комбинирането на каналите. Между тях трябва да се поддържа разстояние от един ред зидария. Размерите на коминния канал трябва да съответстват на посочените. Ако напречното сечение се увеличи, това ще доведе до бавно отстраняване на продуктите от горенето.
Ако искате да сгънете печката във ваната със собствените си ръце, ръководство стъпка по стъпка ще ви помогне с това. След като го прегледате, можете да разберете, че всички връзки трябва да бъдат обработени, за да се изключи образуването на пропуски. В противен случай саждите бързо ще се образуват по стените и тавана на банята. Ако се открият пропуски, те се елиминират с глинен и пясъчен хоросан. За да може фурната да изсъхне напълно, трябва да я оставите за две седмици.След завършване на зидарията е необходимо да се провери тягата, като се отворят всички тапи и врати. Първото нагряване не трябва да се извършва напълно. Най-доброто гориво за това ще бъдат дървесните стърготини.
Увеличаваме ефективността на пещта
Печката може да затопли стаята само за броени минути. Освен това всичко, което попадне под ръка, може да бъде хвърлено в камината: тъй като в нея няма разклонена мрежа от комини и димът излиза „директно“ в нея, няма нужда да се страхувате, че ще се запушат.
Но ако обикновена отоплителна печка, инсталирана в помещения за постоянно пребиваване, има обширна мрежа от комини, които улавят топлината, в печка тя отива директно в тръбата, така че нейната ефективност не е твърде висока. Ето защо е твърде "лакомичен" и изисква много гориво.
За да намалите разхода на гориво, можете да използвате следните съвети от опитни производители на печки: • врата към горивната камера и духна
в такава пещ трябва да бъде възможно най-плътно; в противен случай подаването на въздух към печката ще се увеличи и горивото ще изгори твърде бързо; • за регулиране на отделянето на топъл дим в комина
желателно е да се осигури амортисьор
; • в близост до печката може да се осигури
странични метални екрани
на разстояние 5-6 см от печката, в този случай тя ще отоплява помещението не само чрез излъчване на топлина, но и чрез конвекция (циркулация на топъл въздух); • бурканче, „облечено“ в метален корпус, ще помогне да се затопли много по-дълго;


Печка в кутия


Кръгла пещ с дожиг и кожух с термопистолет
• за да се запази топлината в помещението, в тръбата трябва да се образуват завои; обаче в същото време саждите ще се задържат в тях, така че е препоръчително да се създаде сгъваема структура; • на тръбата може да се придаде и стъпаловидна форма: подредете лактите на етапи, като всяка стъпка се завърта с 30 °; в този случай всяко от коленете трябва да бъде здраво закрепено с пръчки към стената;


Печка с комини на комини
• пропускателна способност на комина
трябва да е по-малък от капацитета на самата пещ, като в този случай горещите газове няма да отидат веднага в тръбата; диаметърът му трябва да бъде само 2,7 пъти по-голям от обема на пещта, например при обем на пещта от 40 литра диаметърът трябва да бъде 110 mm; • можете да увеличите ефективността на пещта и използването
комин, духащ с вентилатор
- това ще превърне фурната в един вид димно оръдие; • за намаляване на циркулацията на въздуха
дърва за огрев във фурната
трябва да приляга възможно най-плътно; ако се загрява с въглища, разбърквайте получената пепел възможно най-рядко; • за регулиране на въздушния поток, вратата на вентилатора може да се регулира, като се оборудва с вертикално разположени
слотове и резе
които ще покрият тези пропуски; • за да се увеличи площта на нагряване, тя може да бъде оребрена, т.е. заварена върху тялото й перпендикулярно на пещта
метални ивици
; • ако поставите пара върху печката
кофи или метална кутия с пясък
, тогава те ще натрупват топлина и ще я съхраняват дори след като фурната изгасне;
пясъчен пълнеж или топлинен акумулатор от камъни
могат да бъдат зашити вътре в металния корпус на пещта;


Схемата на печка с пясъчен запълване, пещта е направена от тръба с диаметър 500 mm, дължината й е 650 mm
• печете, облицована с 1-2 слоя тухла
, ще запази топлината много по-дълго;


Тухлен екран
• обемът на пещта също има значение: колкото повече площта на стените му
, толкова повече топлина те ще дадат в стаята; •
тухли или ламарина
, на която е монтирана печката, ще помогне не само да предпази стаята от огън, но и да запази топлината.
Свързано видео: Направи си сам печка за печка
От моя собствен опит знам, че купуването дори на най-простата печка за отопление може да причини сериозен удар върху бюджета на обикновения човек. След като проучих многото налични дизайни на печки, реших да дам предпочитание на Buleryan. Домашна модификация на добре позната чуждестранна печка за отопление се е утвърдила добре в гаража ми.


Направи си сам печка булерян - чертежи и схема на сглобяване
Тънкостите при инсталирането на домашна печка за сауна
Могат да се разграничат редица такива съвети:
- Подходите към металната камина трябва да бъдат покрити с топлоизолация и стоманена ламарина.
- Строго е забранено да поставяте печката близо до дървени стени и тавани, които са склонни към пожар.
- Самоделната печка може да бъде облицована с тухли, което ще повиши безопасността при работа, пренос на топлина и ще подобри външния вид. Дебелината на стената може да бъде ½ тухлена.
- Преди да инсталирате във ваната, приготвената фурна трябва да работи на празен ход, за да се нагрее няколко пъти, така че да придобие окончателната си форма.
- Камината трябва да се отваря срещу предната врата.
- Коминът трябва да е най-малко 50 см над покрива. На мястото, където преминава през покрива, коминът е измазан и покрит с вар.
- В хоризонтална горивна камера дърва за огрев изгарят без остатъци, така че такава печка отделя повече топлина.
- Препоръчително е да използвате дебела тръба, която не е склонна към разрушаване и корозия, за заваряване на пещта във вана.
- Напоследък доста често се правят двукамерни пещи за пълно изгаряне на гориво. Те са много по-ефективни и икономични.
- Размерът на печката трябва да съответства на размерите на сауната.
Комплект за изработка на пещ
Първо приготвих всичко, от което се нуждаех, за да сглобя buleryan със собствените си ръце. На първо място, извадих тренировка от килера с комплект бормашини за всички случаи, мелница с дискове от комплекта, заваръчна машина, скоби и други дреболии.


Моята тренировка
Трябваше да се забъркам с материалите. За да направя Buleryan наистина надежден и с високо качество, реших да го направя от топлоустойчива котелна стомана. Този материал е в състояние да осигури наистина дългосрочна и надеждна работа на отоплителното тяло. Намерете материала, споменат във вашето домакинство, или го купете от специализиран магазин.
Използвах и 4мм стоманена ламарина. Лист с размери 100х200 см ми беше достатъчен.Освен това ми трябваха малко (40х70 см) 6 мм стоманен лист, около 4 метра тръба с диаметър 11 см, около 10 м профилирана тръба с размери 57х4 мм. Освен това си купих дръжки, панти и брави за подреждане на вратите, подготвих парчета от 35-сантиметрова тръба и като цяло няколко метални заготовки за всеки случай.
Цени за популярни модели заваръчни машини
Подготовка на инструменти и материали за производството на метална пещ


За да направите метална печка за баня със собствените си ръце, трябва да подготвите следните инструменти:
- заваръчна машина;
- мелница;
- електроди.
Последният трябва да има диаметър от 3 до 4 mm. Ако решите да използвате тръба в работата си, ще ви трябва:
- колесни дискове;
- ламарина;
- тръба 100 мм;
- фитинги.
Трябва да има четири диска на колелата. Изтичането на диаметрите на тръбите варира от 100 до 150 mm. Използваната ламарина трябва да бъде с дебелина между 2 и 3 мм. Що се отнася до армировката, нейният диаметър може да бъде равен на границата от 8 до 10 mm. Вместо това можете да използвате метален прът. За допълнителни материали може да са ви необходими:
- тухла;
- пясък;
- строшен камък;
- цимент.
Трябва да има около 300 тухли. Ще ви трябват около 3 торби цимент, по 50 кг всяка.
Как модернизирах Булерян
Характеристиките на въпросното устройство на печката са такива, че първоначално може качествено и равномерно да разпределя кислорода вътре в себе си. Тръбите всмукват студен кислород отдолу, а нагрятият въздух се извежда от монтираните отгоре. Ако желаете, можете да осигурите принудителна циркулация на кислорода.
Взех тръби с подходящ диаметър и заварих адаптери от тях към отворите в тръбата на печката, разположени отдолу. Включих адаптера от единия край.
Свързах другата страна с вентилатор.
Реших да използвам модели на вентилатори "охлюв". За да се гарантира тяхната работа, в моя случай беше достатъчен 90-ватов двигател при 2800 об / мин.
Резултатите са отлични - след модификацията Buleryan започна да работи още по-ефективно.
Също така мисля да свържа гофрирането към горните изходи и да я разпространя в различни посоки - ще получите пълноценна отоплителна система.
Можете да измислите инструкциите по свой собствен начин. Радвам се да прочета предложенията ви и може би дори да приложа нещо на практика.
Моите инструкции ще ви помогнат да съберете надеждна, ефективна, издръжлива и продуктивна печка със собствените си ръце.
Видео - Направи си сам фурна Булерян
Хареса ли ви статията? Запазете, за да не загубите!
- 5
- 4
- 3
- 2
- 1
5
Владимир Печурин.
Направен булерян според вашите препоръки. Резултатът беше зашеметяващ. Да кажеш, че това е добра фурна, означава да не кажеш нищо. Фурната е страхотна. Благодаря ви за статията.
Владимир Печурин.
Направен фурната според препоръките на автора на статията. Да кажеш, че фурната е добра, означава да не кажеш нищо. Тя е просто прекрасна! Никога не съм срещал нещо по-добро.
Евгений
Не се опитахме да разгледаме квадратната тръба на профила.
Размери на пещта
Нагревателят може да бъде направен на ръка, размерите на печката за сауна се избират индивидуално. Можете да ги изберете въз основа на размерите и разсейването на топлината на фабричните модели. Например "Ermak Stoker 100" има следните размери: 600 x 350 x 670 mm. В същото време обемът на отопляемото помещение може да достигне 100 м3. Но "Професор Бутаков" от има следните размери: 370 х 520 х 650 мм. Обемът на отопляемото помещение достига 150 м3.
Как да инсталирате печка във вана със собствените си ръце, вече знаете. Това обаче не е всичко, което трябва да се знае. Също така е важно да попитате за размерите на конструкцията, за да осигурите оптимални условия. Можете да изградите конструкция със следните размери: 700 x 375 x 520 mm. Тези параметри се притежават от модела Teplodar Top Model 200, който е в състояние да отоплява до 200 м3 стая.















