При разпределението на всички модели камини според начина им на поставяне в стаята, отделна група се състои от ъглови камини. Те са монтирани по две стени в ъгъла на стаята и могат да бъдат под формата на призма с триъгълна или петоъгълна основа. Ъгловите модели се инсталират в малки помещения, за да се спести място. В голяма стая камината, разположена в ъгъла, ще бъде невидима.
Основното предимство на описания модел е, че стаята визуално се възприема като голяма и просторна. Факт е, че линията на пресичане на равнините на стените (ъгъл) определя размерите на стаята. Тялото на камината крие този ъгъл, така че има илюзия за увеличено пространство.
Във вътрешната подредба ъгловите камини не се различават от стенните камини от същия тип. Сред всички опции тухлените камини се считат за най-популярни. Феновете на оригиналния дизайн все повече клонят към класиката при избора на огнище. Тухлената ъглова камина задоволява нуждите на потребителите. Освен това строителните работи могат да се извършват самостоятелно, със собствените ви ръце.

Готов дом
Подготовка на проекта
За да изградите ъглова камина със собствените си ръце, е необходимо да разработите поредица от инструкции, които ще определят хода на работата. Такива инструкции се наричат проект. Той включва описание на модела, използваните инструменти и материали, чертежи на камината в различни равнини, както и подробна схема на полагане на корпуса на камината.
Готовите проекти, разработени от професионални майстори, ви позволяват да изградите камина с всякаква сложност. За да ги използвате, трябва да изберете опцията, която е подходяща по външен вид и изпълнение. Много ресурси, специализирани в въпросите на зидарията на камини и печки, предоставят платени проекти за лични поръчки.


Нарисуван модел камина
Самоподготовката включва изчисления на основните размери на камината. Колкото и да е странно, но тези размери не включват външни размери. Нека изброим основните изисквания за устройството.
- За ефективно изгаряне на гориво и осигуряване на отстраняването на продуктите се изисква разлика в налягането в комина. Доброто сцепление е пряк индикатор за правилното изпълнение на всички монтажни работи.
- Функциите за отопление на камината трябва да осигуряват достатъчно топлина, за да запълнят помещението с топлина в рамките на един час.
- Отделената топлина трябва да бъде насочена в стаята, а не да се отвежда през комина навън.
Изпълнението на всички тези изисквания е възможно с компетентна комбинация от размерите на камината с размерите на отопляемото помещение. Има готови таблици, в които са посочени параметрите на пещта, които според определена математическа формула зависят от линейните размери на помещението. Необходимо е да изберете най-подходящата стойност на площта и да използвате таблични данни. Ако това не е възможно, тогава всички изчисления ще трябва да се извършват независимо.


Пример за маса с размерите на камини
За да изчислите основните размери, трябва да запомните няколко елементарни формули. Площта на отвора на пещта = площта на помещението: 50. В строг смисъл тази формула трябва да установи зависимостта на площта от обема на помещението, тъй като височината на помещението значително влияе върху количеството на енергия за отопление. Посочената опция за изчисление предполага определен резерв на мощност.
Добре е да знаете: Външна камина с барбекю, как да изградите подобен комплекс със собствените си ръце
За конкретните размери на отвора на комина ще трябва да решите просто уравнение и да изберете височината и ширината, които при дробно съотношение се определят от съотношението 2: 3. Получените конкретни резултати се използват за изчисляване на дълбочината на горивната камера, която е 2/3 от височината на отвора.
Следващият възел, който трябва да се изчисли, е коминът. Тук е важна не толкова дължината му, колкото размерът на частта, стърчаща над покрива на покрива. При достатъчно разстояние от билото трябва да използвате следното правило. Линията, изтеглена през билото и горната част на комина, прави ъгъл от 10 ° с хоризонталната линия. Естествено, такъв принцип ще даде много приблизителни резултати, тъй като не е възможно точно да се измери този ъгъл без специални инструменти.
Камина като източник на топлина
Преди това камините бяха предназначени изключително за отопление на къщата. Скоро тази опция за отопление изискваше постоянно наблюдение, официално разрешение за експлоатация и значителни запаси от дървен материал.
Като се има предвид факта, че разсейването на топлината на камината е само 15-20%, този източник на отопление започва да се използва по-често като допълнителен източник на топлина, по-рядко като елемент на декорация „за душата“.
Сред предимствата на ъгловите камини, заслужава да се подчертае:
- компактност;
- висок изглед към пламъка на огъня;
- топлина на стаята;
- повишена сигурност;
- творчество;
- разнообразие от дизайн;
- рентабилност.
Заедно с монтажа на камината се препоръчва използването на алтернативни опции за отопление в случай на постоянно запазване на топлината при ваше отсъствие или липса на гориво.


Снимка: ъглова камина в хол в класически стил


Един от най-простите е да се проектира хол с ъглова камина. По-скъп интериор с декоративна електрическа камина. Ето защо, ако искате да създадете уникален интериор с минимални разходи, отдайте предпочитание на газова ъглова камина.
Подготовка на материала
Подготвителният етап определя темпото на последващата работа. Ако внимателно се подготвите за изграждането на камина, тогава всички останали работи могат да се извършват без разсейване. Като материал, необходим за изграждането на тухлена камина със собствените си ръце, се използват червени огнеупорни тухли. Но самата камина, където ще се извършва директно изгаряне на дърва за огрев, е облицована с шамотни тухли. Освен това можете да направите списък с допълнителни материали.


Малка конструкция за създаване на комфорт в къщата
- Покривен материал, е необходимо да се осигури хидроизолация на основата.
- Подсилваща мрежа или друг подходящ материал за изливане на основата.
- Метални ъгли, които осигуряват припокриване на горивната камера.
- Пясък, глина, цимент или готова смес за полагане на фурни.
- Амортисьор на комин и врата на вентилатора.
- Материали за външна декорация.
За изграждането на различни части на камината е необходимо решение с различен състав. Основата се излива с хоросан от цимент и пясък. Делът на цимента тук може да варира от половин до една четвърт. Зидарията на камината и тялото на камината не предполага използването на цимент. Глината и пясъкът във фракции 1 и 3, съответно, образуват огнеупорен състав. При изграждането на комин към подобен разтвор се добавят цимент и вар.
Приготвянето на глинен хоросан е цяло изкуство. Първо, трябва да изберете правилния вид глина, която има нормално съдържание на мазнини. След това глината се накисва, смачква и се смесва с пясък. За да спестите време, препоръчително е да използвате готова смес. Дори професионалните майстори днес вече не прибягват до самоподготовка на глинесто-пясъчни смеси.
Добре е да знаете: Ремонт на камина от майстор и самостоятелна работа, полезни съвети
Важни моменти, които трябва да имате предвид при инсталирането
Когато инсталирате камина, е изключително важно да вземете предвид характеристиките на изпускателната тръба.Ако конструкцията ще бъде в стената, дебелината на последната трябва да бъде най-малко две тухли.
Преди да инсталирате камината, трябва да се погрижите и за зоната на местоположението, може да ви е необходима основа. Когато изчислявате общото тегло на продукта, не забравяйте за теглото на облицовката. Той не винаги е лек и не всяка основа може да издържи натоварването.
Внимание: За да създадете основа, можете да използвате бетонна конструкция. В тази версия се извършва пълнене с чакъл и трошен камък. По този начин вие също правите термична защита на пода. Такъв дизайн може да издържи не само на самия продукт, но също така ще ви позволи да облицовате ъглова камина с почти всеки материал.
Фондация
Тухлената камина трябва да бъде изградена на здрава основа, но дори бетонна плоча, която е инсталирана за чугунени модели, няма да работи като такава. Тук е необходимо да се изгради пълноценна основа с яма. Трябваше да се мисли за това дори по време на строителството на къщата. Ето защо, ако решите да построите камина в завършена къща, ще трябва да повдигнете пода, за да извършвате работа там.


Пример за добре направена основа
Площта на фундаментната яма трябва да бъде малко по-голяма от площта на тялото на камината. Дълбочината на ямата може да варира в границите на дълбочината от 0,50-0,70 м. Точната стойност зависи от версията и теглото на модела.
На дъното на ямата се изсипва пясък, а отгоре се изсипва натрошен камък. За да може този състав да бъде трамбован плътно, той се полива с вода. На върха на трошения камък са монтирани метални конструкции, които ще играят ролята на подсилващ елемент. Основата се излива на няколко слоя. Връзката между слоевете се извършва със специална мрежа. С помощта на дървен кофраж основата се извежда на нивото на пода. След като изсъхне, той ще бъде готов за изграждане на камина.
Дизайн
Скица
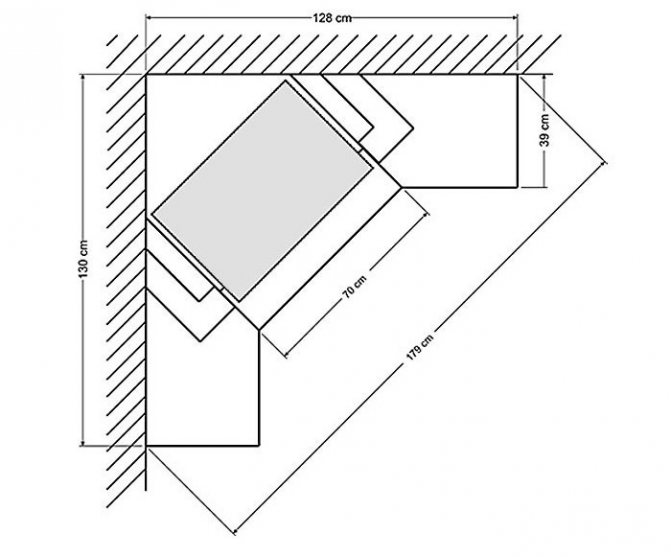
Преди да започнете цялата работа, трябва сами да разберете какъв вид камина искате. За да направите това, трябва да изберете място, където ще бъде построена бъдещата структура и, като я погледнете, да начертаете приблизителен външен вид на конструкцията. На този етап помислете върху тухлените шкафове отстрани, ако е необходимо, място за сушене на дърва за огрев или вентилаторна камера, формата на камина, която можете да закупите в готов вид от метал. Той ще бъде оборудван с огнеупорни стъклени врати. Като цяло, опитайте се да изобразите скицата на проекта възможно най-точно. Това значително ще улесни по-нататъшната работа. За това не е необходимо да имате уменията на художник или чертожник. Тази цифра ще ви улесни при създаването на подробен план на проекта.


Ето как можете грубо да изобразите ръчно гледката на бъдещата камина.
В идеалния случай си струва да започнете да го изграждате на етапа на изграждане на къща, за по-удобна възможност за подготовка на основата за бъдеща структура. Но можете да го направите във вече завършена къща.
Много важно! Основата на къщата и основата на камината не трябва да се обединяват!
Необходими изчисления
Има някои изисквания за правилното функциониране на камината.


Един от възможните варианти за проекта на камината - чертеж
- Добрата конструктивна тяга е от съществено значение. И може да се счита за добро, ако в помещението няма дим, топлината не влиза в комина и огънят в горивната камера може да се разпали бързо и без проблеми.
- Силното разсейване на топлината е друг важен елемент. Стаята трябва да се загрее бързо, ако се направи правилно.
- Камина, която не се използва, не трябва да отклонява съществуващата топлина далеч от къщата.
- Докато го създавате, не забравяйте, че той ще се превърне в една от основните гордости на вашия дом. Отнасяйте се към външния му вид толкова отговорно, колкото и към интериора му.
Нека разгледаме отблизо какви размери на елементите на камината са най-подходящи за нейната конструкция.
Firebox (таблица)
Защото от това колко правилен размер правите камината, гледката на горящия пламък и пренос на топлина също ще зависи.Можете правилно да изчислите размера му, като използвате следната формула: обща площ на стаята / 50 = размер на камината. Следващата таблица показва приблизителните параметри на горивната камера за малки помещения.
| Площ на стаята (кв. м.) | Размер на пещта (см) | Размер на отвора за тръба (mm) | ||
| Височина | Ширина | Дълбочина | ||
| 10 | 38,5 (5 реда зидария) | 53 (2 тухли) | 1 тухла | 140 X 140 |
| 15 | 46 (6 реда зидария) | 66 (2,5 тухли) | 1,5 тухли | 140 X 270 |
| 20 | 53,5 (7 реда зидария) | 79 (3 тухли) | 1,5 - 1,75 тухли | 140 X 270 |
Съотношението на ширината към височината трябва да бъде 3: 2, в идеалния случай, т.е. ширината е с част по-голяма. Дълбочината на горивната камера трябва да бъде 2/3 от височината.


Готова метална камина, оборудвана с огнеупорна стъклена врата
Всички тези измервания са експериментално проверени и дават най-добрия резултат за функционирането на конструкцията. Не ги увеличавайте или намалявайте, мислейки, че по този начин ще бъде по-добре!
Комин
Правилното функциониране на камината зависи до голяма степен от изчисляването на размера на комина. По всички правила, ако този елемент е кръгъл, той не трябва да бъде по-малък от 15 сантиметра в диаметър. Ако има формата на квадрат, тогава размерът му трябва да бъде 1/10 от размера на горивната част. Височината му трябва да бъде най-малко пет метра.
Зидария
Между първия ред на основата на камината и основата се полага слой покривен материал. Освен това, стриктно съгласно проекта, в който има поръчка, се извършва полагането на камината. Поръчката е инструкция стъпка по стъпка, която ви позволява да работите въз основа на предварително разработени схеми, които са се доказали от положителната страна. Не си поставяме задачата да покрием всички съществуващи проекти, има други ресурси за това. Ще разгледаме най-простата версия на ъглова камина, с която може да се справи дори любител в бизнеса с печки.


Лесна поръчка
Имайте предвид, че първият ред е квадрат. Поставете го, като внимателно проверявате нивото на нивото. Това условие трябва да бъде изпълнено. Полагането на тухли трябва да се извършва, като се използват всички правила за обвързване. Преди да направите нов ред, поставете го, без да използвате хоросан. Този метод ще ви позволи да обработвате тухли, ако е необходимо, без да демонтирате зидарията.
Добре е да знаете: Как да изградим тухлена камина със собствените си ръце, ние изучаваме цялата технология на процеса
Удобно е да се представи коментар за строителството под формата на списък с видове работи по редове:
- 1 - образуването на хоризонтална основа. Ако не поддържате нивото, тогава са възможни деформации на конструкцията, водещи до нарушаване на целостта на зидарията.
- 2 - отворът на схемата е раздел за съхранение на дърва за огрев. В нашия модел тя играе по-скоро декоративна функция, тъй като ще се окаже доста тясна.
- 3 - припокриването е направено от метален лист.
- 4 - припокриването с тухлена зидария се дублира.
- 5 - отделение за изгаряне на гориво започва да се образува от шамотни тухли.
- 6-8 - конструкция на камината. Цветът показва използването на шамотни тухли при полагане на стените на пещта.
- 9-13 - в ъгъла се наблюдава образуването на димен зъб. Всички останали елементи се дублират.
- 14-17 - има изместване на зидарията от предната страна. Това е начин за оформяне на камина.
- 18-20 - отворът на комина преминава в канала на комина.
- 21-29 - коминен канал.
- 27 - монтаж на портата.
В диаграмата няма продължение на конструкцията на самата тръба на комина. По различни начини на представяне той може да бъде направен от тухла или да има кръгло напречно сечение, тъй като се използва метална тръба.
При осигуряване на преминаването на димния канал през тавана е необходимо да се предпази повърхността от въздействието на температурите. Избирайки комбинации по цвят, стил и, разбира се, по предназначение, можете да използвате азбестов лист или плочи от минерална вата.


Готова за ползване сграда
Коминът е облицован с изолационно вещество по периметъра. Подобна манипулация трябва да се извърши, когато тръбата се отстранява през покрива.Задачата се усложнява от факта, че е необходимо да се осигури херметичност, така че по време на дъжд водата да не прониква в тавана. Тази задача ще бъде значително опростена чрез използването на съвременни уплътнители.
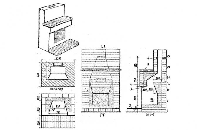
Първи вариант: инструкции стъпка по стъпка
Методът на изграждане на тази конструкция е проектиран от В. Биков. Той вече е доказал своята ефективност повече от дузина, а може би и повече от сто пъти. Идеален за малки пространства.


Схема за поръчка по проекта на В. Биков
От допълнителните материали за издигане на конструкция по този метод ще ви трябват решетка с размер 25x25 сантиметра за пещната част и метална лента с дебелина 5 мм с размер 30x50 за тавана в нишите.
- Маркирайте първия ред зидария върху основата много внимателно, за да зададете правилната посока за цялата сграда.
- Поставете първия ред зидария върху маркировките, като спазвате всички правила и размери на вашите схеми и поръчки.
- Поставете редове 2 и 3 според реда.
- Основата на горивната част започва на 4-ти ред. Направете центъра на този ред с шамотни тухли.
- 5-ти ред - подредете тава за пепел или дупка за продухване. За целта прикрепете добре металните ленти към тухлите около камерата.
- Шестият ред предвижда инсталирането на решетка и е изложен с шамотни тухли съгласно схемата за поръчка.
- 7-ми ред - започнете да украсявате камината и стените на портала.
- 8-12 реда, издигнете стените на портала строго според схемата.
- 13-ти ред - монтаж на метални ленти или ъгли с размери 600х50х5 мм. Полагане строго според схемата.
- На 14-ия и 15-ия ред е поставено „огледало“, което улавя топлината и я насочва в стаята. Поставете стената под ъгъл 20 ° C.
- Ред 16 - Изградете равна площ за „зъба“. Намажете го със смес от пясък и глина.
- Редове 17, 18 и 19 ще бъдат предната стена на камината. Те трябва да бъдат разположени във форма, която обгръща "зъба".
- Редове 20-22 - "hailo" (част от комина) е разположен, с размери 14x27 сантиметра. Инсталирайте клапан за дим върху горния хоросан.
- Над клапана (ред 23) се оформя отвор за дим с необичайна форма.
- Редове 24 и 25 предвиждат изграждането на комин с размер на вътрешния канал 14x27 сантиметра.
- Последният етап е инсталирането на метална тръба, покрита с железен корпус.
Облицовка
Външната декорация на камината е отговорна за нейното възприятие, място във вътрешността на стаята и съответствие със стила. Необходимостта от такава работа е продиктувана от вашите нужди и качеството на произведената зидария. Факт е, че при условие, че зидарията е изчистена, при която размерите на шевовете са еднакви навсякъде и се наблюдават вертикалните и хоризонталните нива, повърхността с естествена тухлена текстура изглежда много оригинална във всеки интериор.
При необходимост се използват различни топлоустойчиви материали за довършителни работи. Най-популярни са керамичните плочки, плочките и декоративният камък. Тези три разновидности на материалите се предлагат в различни цветове и текстури.
Довършителни ъглови камини
След приключване на техническите точки, повърхността на стените на камината се обработва със специални средства за по-добър топлообмен и хидроизолация на хола. След това се създава естетически вид.
Материалът за декорация трябва да бъде избран в съответствие с дизайна на стаята: той трябва да подчертае изтънчеността на интериора, вкуса на собствениците и благоприятното местоположение на ъгловата камина. Най-често срещаните са тухли и гипсокартон.
Сред методите за декориране на камини са известни:
- без определен завършек (ако тухлата е красива, с добро качество, добре обработена, за да фиксира цвета и шевовете са спретнати). Недостатък - с времето може да потъмнее;
- измазване (нанасяне на сместа върху изсушената зидария след свиване на камината, за да се предпази с емулсионна боя);
- плочки (креативна опция, предлагаща разнообразие от цветове);
- облицовка с мраморни плочи или камък (изглеждат много представителни).
Оригиналните покрития могат да се видят на снимката.
Защо имате нужда от камина в къщата?
Изглежда, че в наше време, когато е възможно да не губите време и енергия за цепене на дърва, отопление на камината и изгребване на пепел - много собственици на селски къщи (и не само) се стремят да имат огнище на жив огън в къща.


Всекидневна в стил бохо с ъглова камина


Камина с декоративни каменни облицовки в интериора на уютен хол
На първо място, открит огън на живо ви позволява да изпитате неописуемо чувство на спокойствие и спокойствие. За жителите на частни къщи няма да има специален проблем при инсталирането на ъглова печка - търсене на майстор или сглобяване със собствените си ръце, определяне на място и известно време за изпълнение на вашия план.
За жителите на повечето високи сгради е по-трудно, жив огън в такава камина не свети за тях както в буквален, така и в преносен смисъл, тъй като в почти всички апартаменти е забранено да се монтира такъв продукт. Но ще бъде възможно да се купи успешна имитация; електрическа стилизирана камина ще помогне за това.
Неговата ъглова подредба ще ви позволи да получите желаната възможност да съзерцавате езиците на пламъка и в същото време да не губите полезно пространство.
По-рано, когато отделни отоплителни системи все още не бяха инсталирани, камината служи не само като източник на приятни усещания, но и като пълноправен и автономен източник на топлина. Понякога в него се готвеше и загряваше храна.
Експертно мнение
Романова Ксения Петровна
Експерт по интериорен дизайн и ръководител на салон за тъкани
Модерни за такива цели не бяха забелязани, въпреки че в хладен есенен ден в страната или в селска къща е напълно възможно да се превърне камина на дърва в източник на топлина.


Много собственици на апартаменти, селски къщи и вилни къщи мечтаят да станат собственици на камина, в която огън пука весело.


Камината почти винаги се превръща в център на всяка стая, в която се намира
Съвет! Ако дори в апартамент искате да се насладите на истински огън, разгледайте камините на биогориво.
Дизайн и стил на камината
Ъгловите камини се различават по редица параметри, свързани със стил, естетически и функционални стойности.
На първо място, такива камини могат да бъдат симетрични, когато и двете страни са сходни помежду си, и асиметрични, които обикновено се използват за създаване на акцент в интериора, зониране на стая или добавяне на жар към стаята.
На снимката: Ъглови дървени и електрически камини в интериора
Когато избирате дизайн на портал, трябва предварително да помислите за разположение, стил на фасаден дизайн, форма и допълнителен декор.
Когато поставяте огнището, трябва да разберете, че то ще се превърне във важен акцент в стаята. Въпреки това, той не трябва да бъде много различен по стил, в хармония с останалите елементи. Най-добре е да изберете онези нюанси за портала, които преобладават в стаята. Опцията за лек дизайн ще стане почти универсална, това ще направи стаята уютна и привлекателна. Декорът в рамката също трябва да бъде съобразен с цялостния стил и дизайн на стаята.
На снимката: Камина на дърва в ъгъла
В класическа спалня камина може да бъде украсена с дърво, добавете издълбан орнамент. Фигурки, чинии, цветя в саксии, рамкирани снимки, антични часовници ще изглеждат добре на камината.
За всекидневна с модерен дизайн е подходяща модерна или високотехнологична камина. Простотата и сдържаността на линиите ще подчертае тежестта на обстановката. Използвайки студени цветове, пластмаса или камък в дизайна, можете да постигнете много минималистичен ефект. Тъмните цветове на портала, съчетани с ярките езици на огъня, създават стилна обстановка. Не е необходимо да натоварвате композицията с многобройни декорации. Можете да добавите декоративна ваза или да закачите няколко картини наоколо.
В светла всекидневна или спалня камина в стил прованс или прованс ще изглежда добре.Порталът може да бъде украсен с камък или тухлена зидария в комбинация с дърво. Естествената тема в комбинация с мека мебел, килими, хармонични лампи и фигурки ще създаде комфортна и уютна атмосфера. И танцуващият огън, рамкиран от каменния портал, ще има успокояващ ефект.
Снимка: Електрическа камина в интериора на светла всекидневна
Добре подбраната камина също може да бъде в центъра на стаята, декорирана в оригинална тема. Комбинацията от ярки цветове в обстановката на стаята и самия портал, балансирана от обмислени декорации, създава нестандартен образ на стаята за приемане на гости или за хобита.
Ъгловите камини се интегрират хармонично във вътрешността на всяка стая, независимо от стила. Можете да избирате от различни довършителни материали, декор на портала, допълнителни аксесоари. Основното тук е, че огнището е в хармония с останалите предмети в стаята, елегантно се вписва в дизайна или създава интересен акцент.
Чрез компактно поставяне на камината в ъгъла можете да спестите ценно пространство, добавяйки елегантност и оригиналност към стаята. Ще отоплява ли стаята, или танцуващият пламък ще се превърне само в декоративен елемент - всичко зависи от предпочитанията на собствениците. Въпреки това, огнището в къщата винаги ще създаде атмосфера на комфорт и спокойствие, внасяйки разнообразие в интериора.





















