Комфортният микроклимат е един от много важните компоненти в живота на всеки човек. Благополучието и представянето пряко зависи от него. Но не винаги е възможно да се постигне с помощта на конвенционални микроклиматични устройства.
Отопляемата вентилация е отлично решение за създаване на комфортна и уютна атмосфера в стаята. Регулирането на микроклиматичното устройство ви позволява да регулирате температурата и количеството приток на свеж въздух, при което да ви бъде удобно.
Поради разнообразието от режими и лекота на използване, захранващата вентилация с отопление е подходяща на обществени места, в промишлеността и в жилищни помещения.
Какво представлява вентилацията за подаване на отопляем въздух?
Вентилацията с въздушна маса се различава от стандартните климатични системи. Принципът на нейната работа е да извлича въздух отвън. По този начин, освен охлаждане и отопление, такава вентилация обогатява помещението с кислород, докато конвенционалните климатични системи просто циркулират въздуха в пространството.
Захранващият въздух се нагрява във вентилационния блок. Вентилационният блок на захранващата вентилация с отопление има висок топлопренос. Следователно, дори по време на силни студове, вентилацията непрекъснато доставя маси свеж горещ въздух.
Отопляемата вентилация се извършва посредством въздухообмен. Циркулацията и нагряването на притока на въздушна маса се извършва във въздухообработващи блокове с рекуператор. Въздухът, изтеглен отвън, се нагрява в рекуператора поради температурата на изхвърлените въздушни маси. Рекуператорът предотвратява смесването на "отработените газове" и подава чист въздух.
Друг начин за топлоснабдяване е чрез рециркулация. При този метод на нагряване свежите въздушни маси се смесват с „отпадъчни“. Притокът на въздух от улицата се нагрява до необходимата температура и се подава в стаята.
Вентилационно оборудване
За да се осигури притокът на въздух в сградата, теоретично е достатъчно да се направи дупка във външната стена. В съответствие със санитарните стандарти е необходимо да се организира приток с отопление и пречистване на въздуха. Съставът на въздуха отвън може да бъде различен, зависи от района и региона на пребиваване. Въздухът на големите и средните градове се характеризира с висока запрашеност и газообразност. В тази форма той не може да бъде доставен в помещенията, необходимо е едноетапно или многоетапно почистване:
- Първият етап на почистване е груб клетъчен филтър за улавяне на прах и мръсотия, деактивиращ газовете.
- Като втори етап може да действа по-тънък филтър, който улавя фини суспендирани частици и летящ прашец от растенията.
- Третата степен на пречистване ви позволява да дезинфекцирате въздуха с помощта на бактерициден филтър.
За жилищна или офис сграда е неприемливо, когато през зимата духа студен въздух от вентилацията. Трябва да се сервира във вече затоплени помещения, в противен случай хората са изложени на риск от настинка. В същото време нито една отоплителна система не може да се справи с отоплението на такава стая.
През студения сезон, преди да го подадете в помещенията, е необходимо да загреете приточния въздух и да го почистите.
Отворът във външната стена трябва да служи за полагане на въздуховода, който ще бъде свързан към устройството за отопление и филтриране на въздушните маси. С помощта на такива инсталации се осигурява местно, децентрализирано подаване на приток в помещението.Устройството включва вентилатор, електрически нагревател и филтър (или множество филтри). В зависимост от версията тялото на устройството може да се постави в дебелината на стената или да се прикрепи към нея вътре в стаята.

Инсталация за отопление и филтриране на въздух
През зимата студеният въздух от вентилацията се загрява в инсталацията до необходимата температура и се подава в помещението от вентилатор, който може да работи в няколко режима с различна производителност. През лятото режимът на отопление се изключва автоматично, само функции за почистване. При по-скъпите инсталации се използва технология за рекуперация на топлина, когато вътрешният топъл въздух прехвърля енергията си към външното захранване, нагрявайки я. Ако в стаята е монтиран климатик, тогава подобен процес ще се проведе през лятото, само студеният ще бъде прехвърлен към захранващия въздух. Такава принудителна вентилация ви позволява да спестите до 60% от консумираната енергия за отопление или охлаждане.
Скъпо и непрактично е да оборудвате големи офис сгради, търговски и бизнес центрове с местни звена за доставка. Също така няма смисъл да инсталирате климатици, по-добре е да осигурите на цялата сграда чист въздух с необходимите параметри. По правило той е разделен на зони по пода или според други критерии и е разработена обща вентилационна схема за входящи и изпускателни газове.
За всяка зона са избрани захранващи вентилационни устройства, които подават въздушни маси във всички помещения наведнъж, използвайки въздуховоди. Това е централизиран начин за организиране на притока, а вентилационното оборудване, което го осигурява, се нарича централни климатици. Те довеждат въздуха до необходимото състояние, като се вземат предвид всички изисквания и метеорологичните условия.


Вентилационна единица
Системите за вентилационно захранване на търговски центрове и други подобни конструкции могат да бъдат дълги, част от въздуховодите преминават през улицата, мазетата и неотопляемите помещения. Така че топлинната енергия, изразходвана за отопление на въздуха, не се губи напразно, при такива условия се извършва изолация на вентилационните канали.
Редактор на публикацията: Алексей Евгениевич Беспалов
Кандидат на техническите науки. Ръководител на Центъра за образователни стандарти и програми на Московския държавен университет по строителство (NRU MGSU).
Препоръчваме:
Дизайнерски характеристики на устройството
Основните елементи на захранващата вентилация
- Решетка за всмукване на въздух. Той действа като естетичен дизайн и бариера, която предпазва отломките в приточните въздушни маси.
- Захранващ вентилационен клапан. Целта му е да блокира преминаването на студен въздух отвън през зимата и горещ въздух през лятото. Можете да го накарате да работи автоматично, като използвате електрическо задвижване.
- Филтри. Тяхната цел е да почистят входящия въздух. Трябва да ме сменят на всеки 6 месеца.
- Бойлер, електрически нагревателни елементи - предназначени за отопление на входящите въздушни маси.
- За помещения с малка площ се препоръчва използването на вентилационни системи с електрически нагревателни елементи, за големи пространства - бойлер.


Захранващи и изпускателни вентилационни елементи
Допълнителни елементи
- Фенове.
- Дифузори (помагат за разпределяне на масите на въздушния поток).
- Шумозаглушител.
- Рекуператор.
Дизайнът на вентилацията директно зависи от вида и метода на фиксиране на системата. Те са пасивни и активни.
Пасивни вентилационни системи.
Такова устройство е захранващ вентилационен клапан. Загребването на уличните въздушни маси се случва поради спада на налягането. През студения сезон изхвърлянето се улеснява от температурната разлика, през топлия сезон - от изпускателния вентилатор. Регулирането на такава вентилация може да бъде автоматично или ръчно.
Автоматизираното регулиране директно зависи от:
- дебитът на въздушните маси, преминаващи през вентилацията;
- влажност в пространството на стаята.
Недостатъкът на системата е, че през зимния сезон такава вентилация не е ефективна за отопление на къщата, тъй като се създава голяма температурна разлика.
На стената
Отнася се за пасивен тип захранваща вентилация. Тази инсталация има компактна кутия, която може да се монтира на стена. За управление на отоплението е оборудван с LCD дисплей и контролен панел. Принципът на действие е възстановяване на вътрешните и външните въздушни маси. За отопление на помещението това устройство се поставя близо до отоплителния радиатор.
Активни вентилационни системи
Тъй като в такива системи е възможно да се регулира интензивността на подаването на чист въздух, такава вентилация за отопление и отопление на помещението е по-търсена.
Според принципа на отопление, такъв нагревател за захранване може да бъде воден или електрически.
Нагревател
Захранва се от отоплителна система. Принципът на работа на тази вентилационна система е да циркулира въздух през система от канали и тръби, вътре в които има топла вода или специална течност. В този случай отоплението се извършва в топлообменник, вграден в централизираната отоплителна система.
Електрически нагревател.
Принципът на работа на системата е да преобразува електрическата енергия в топлина с помощта на електрически нагревателен елемент.
Бриз
Това е компактно устройство, малко по размер за захранваща вентилация, с отопление. За подаване на чист въздух това устройство е прикрепено към стената на стаята.
Бриз Тион o2
Дихателен дизайн o2:
- Канал, състоящ се от въздухозаборник и въздуховод. Това е запечатана и изолирана тръба, поради което устройството изтегля въздух отвън.
- Клапан за забавяне на въздуха. Този елемент е въздушна междина. Той е проектиран да предотвратява изтичането на топъл въздух, докато устройството е изключено.
- Система за филтриране. Състои се от три филтъра, които се инсталират в определена последователност. Първите два филтъра премахват видимите замърсители от въздушния поток. Третият филтър - дълбоко почистване - от бактерии и алергени. Почиства входящия въздух от различни миризми и отработени газове.
- Вентилатор за всмукване на въздух отвън.
- Керамичен нагревател, който е оборудван с климатичен контрол. Отговаря за нагряване на въздушния поток и автоматичен контрол на температурата.
Видове системи
Устройството за подаване на въздух с отопляем въздух се предлага в няколко вида. Това може да бъде централна вентилация, която ще отоплява голямо производствено помещение, или офис център, или може да бъде индивидуална, например в апартамент или в частна къща.
Освен това всички отопляеми вентилационни системи са разделени на следните видове:
- С възстановяване. Всъщност това е система за топлообмен, когато входящите маси влизат в контакт с изходящите и обменят топлина. Тази опция е подходяща само за региони с не много студена зима. Тези системи са класифицирани като пасивни вентилационни системи. Най-добре е да ги поставите близо до радиаторите.
- Вода. Такъв отопляем вход работи или от котел, или от батерия за централно отопление. Основното му предимство е енергоспестяването. Захранващата вентилация с воден нагрят въздух е особено популярна сред потребителите.
- Електрически. Те изискват значително потребление на електроенергия. Според принципа на действие това е обикновен електрически нагревателен елемент, който нагрява въздуха с постоянното си движение.
Преди да вземете решение за един конкретен модел, препоръчително е да седнете и да изчислите колко електричество ще трябва да бъде изразходвано за отопление на вашия апартамент или частна къща.
Захранващата вентилация може да се различава по начина, по който въздухът се вкарва в помещението. Има естествени варианти, а има и принудителни, когато въздухът се вкарва с помощта на вентилатори. Видовете вентилация също се различават по вида на управлението. Това могат да бъдат ръчни модели или автоматични, които се управляват с помощта на дистанционното управление или от специално приложение на телефона.
Препоръчваме ви да се запознаете с: Направи си сам естествена вентилационна система в частна къща


Принципът на компактната вентилация.
- Външните въздушни маси преминават през въздухозаборника, който е оборудван със затворена пластмасова решетка. По този начин въздушните маси се филтрират от отломки и насекоми.
- След това въздухът преминава през канала в корпуса на инструмента. За да предпази стените от замръзване, той е направен от шумоизолираща пластмасова тръба. В този случай всички фуги са запечатани.
- След това има филтриране от груб и среден прах с помощта на специални филтри, вградени в устройството.
- След това въздушната маса преминава в нагревателя и се затопля до температурата, зададена от климатичния контрол. На такова устройство можете да зададете желаната температура (до + 25 ° C) и системата ще я поддържа автоматично.
- След нагряване въздухът се подлага на двустепенна филтрация от фин прах, миризми, газове и алергени, влиза във вентилатора и се изхвърля в помещението.
Такава вентилационна система може да се управлява дистанционно с помощта на дистанционното управление.
Долното тяло е монтирано в рамките на един час.
Принцип на действие


Основни модули на захранваща вентилация с отопление
Вентилационната система работи по стандартен и прост принцип. В началния етап въздухът отвън преминава през въздухозаборника, допълнен от пластмасова скара, която забавя проникването на мръсотия, насекоми и мъх, но не пречи на въздушния поток. След това въздушните маси преминават през специален проходен канал или въздуховод. Стените на такъв канал са допълнително изолирани от вътрешната страна на мината с помощта на шумо- и топлоизолационни пластмасови тръби, като всяка фуга се обработва с херметична смес, за да се защитят стените от замръзване.
В ставите на въздуховода с основата на устройството е монтиран автоматичен амортисьор. Той се затваря самостоятелно след изключване на уреда, за да предотврати навлизането на студен въздух в помещението, за да се нагрее. Той също така ще бъде затворен, ако входящият въздушен поток се отклонява от нормата - температурата му не трябва да пада под -40 градуса. Когато преминава през нагревателя, температурата на въздуха се повишава до необходимото ниво с помощта на функцията за контрол на климата. Собственикът може да посочи необходимата стойност на температурата за отопление на въздуха и тя ще остане на това ниво.
Поради оптималния дизайн системата, при която отработеният въздух се нагрява, не предизвиква течения дори през студения сезон. Температурата винаги ще се поддържа на желаното ниво без контрол от потребителя.
Захранвайте вентилационното устройство с въздушно отопление
Има два вида агрегати за захранваща вентилация:
- Моноблок - те са сгънати от един блок, който е инсталиран на входа на въздуховода. В такъв блок са разположени всички необходими устройства, без изключение, осигуряващи висококачествено и надеждно обслужване на вентилационната конструкция. Този тип устройства не са необичайни като цяло, въведени в стената или в рамките на прозорците. Този метод се счита за най-простият и най-евтиният. Но на практика той е доста неефективен, тъй като поставянето на неговите всмукателни вентилатори не позволява да се покрият много зони на сградата.
- Инсталация - тези захранващи вентилационни системи са достатъчно мощни, за да покрият високи сгради, индустриални помещения на големи площи, жилищни сгради.
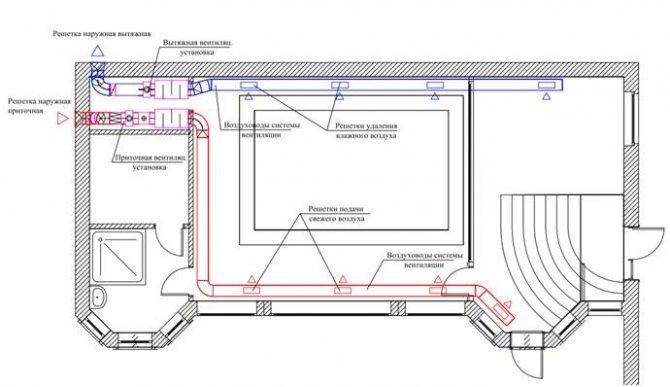
Схеми за захранваща вентилация
Най-лесният тип инсталация:
- Въздушен филтър,
- Вентилатор на вентилатора,
- Нагревателен елемент.


Стандартна схема на захранваща и изпускателна вентилация с отопление
Как да загреем захранващия въздух с рекуператор?
Рекуператорите са разделени на 2 вида:
- Ротационен - работа с електричество. Те имат цилиндрично тяло, в което е монтиран роторен елемент. Той непрекъснато се върти между "входящия" и "изпускателния" въздушни клапани. Достатъчно детайлни размери. Ефективност - до 87%.
- Ламеларен... Такива рекуператори се състоят от интегрирани плочи. Захранващият и "отработеният" въздух се движат един към друг през различни клапани. Това предотвратява рециркулацията. Тези рекуператори обикновено са с малки размери.
Принцип на действие
Дизайн захранва вентилация с отопление е инсталирането на един (или повече) радиатор (друг тип нагревателни елементи) с високо ниво на топлопреминаване. Могат да се използват и вентилатори, подаващи нагрят въздух в системата. Безупречно се използва въздушен филтър, който не само осигурява чистотата на въздушния обмен, но също така поддържа високотехнологичното оборудване, което осигурява работата на вентилационната система непокътната и изправна. Разрешено е инсталиране на специални овлажнители и антибактериални филтриращи елементи, което ви позволява да създавате комфортни условия в определени видове помещения.
В резултат на това захранващата вентилация в апартамент с филтрация е в състояние да осигури:
- ефективно почистване и обмен на въздух;
- нагрявайки го до комфортно ниво;
- цялостно почистване на входящия въздух, включително бактериален;
- овлажняващо.
Захранващата вентилация с водно отопление или друг вид топлообменник позволява постоянно контролирано подаване на нагрят, чист и свеж въздушен поток в помещението. Резултатът е идеален микроклимат за апартамент, кабинет, офис, селска къща и т.н.


Как може да се използва нагревател на вентилатора
Основната цел на нагревателя на вентилатора е да загрява въздушните маси. За по-интензивна циркулация на потоците - вентилаторът принуждава въздуха принудително. Това прави това устройство универсално.
Опции за работа на нагревателя на вентилатора:
- Този уред може да се използва като основен източник на топлоснабдяване в помещение, където няма централно отопление.
- Нагревателят на вентилатора може да допълни основната отоплителна система.
- За отопление на строителни обекти и работници по тях.
- За бързо загряване на въздуха в малка стая.
- Нагревателят на вентилатора може да се използва като обикновен вентилатор: през зимата - за отопление, през лятото - за охлаждане на въздуха.
- За вентилация и отопление на затворено пространство.
Въздушен обмен: характеристики на процеса
Като начало, малко теория - за да вземете решение за подходяща вентилационна система за въздух в апартамент, трябва да знаете как „работи“ въздухообменът. И така, подмяната на "отработения" въздух с чист се извършва при две условия:
- качулката е в добро състояние;
- се осигурява приток на чист въздух от улицата.
Важно уточнение - процесът на приток и изтичане на въздушния поток са взаимно свързани. Въздушният поток от улицата навлиза в къщата, отработеният въздух се измества през качулките (те обикновено се намират в кухнята и в банята).


Как вървят нещата с обмяната на въздух в типичните къщи? Докато прозорците с дървени дограми не започнаха да се заменят с „пластмасови“, проблемът с достъпа на свеж въздух не беше толкова остър - дори при затворени прозорци той влизаше в къщата през пукнатините на дограмата. При пластмасовите прозорци всичко е различно: поради тяхната плътност вентилацията на въздуха спира и в нея бързо се натрупва CO2, излишната влага се появява на прозорците и стените.
Контролни елементи
При захранваща вентилация с отопляем въздух могат да се използват различни контролни елементи. Когато става въпрос за обмен на въздух в индустриално помещение, тогава се използват прости температурни сензори, които изпращат сигнал към вентил за топла вода или електрическа верига. След това водата спира или започва да тече в нагревателния елемент, в зависимост от това дали системата трябва да започне да загрява или охлажда захранващия въздух. Тази опция се прилага най-често в индустриални сгради и нежилищни помещения. Ако говорим за отопление на въздух в частни къщи, тогава се използва водна или електрическа система с по-сложен контрол.
Захранващата вентилация в частна къща често предполага инсталирането на сложна автоматизация, която може не само да изпраща сигнали към клапана за спиране или стартиране на подаването на топла вода, но и да регулира нейния поток.
Контролираните клапани на такова оборудване контролират потока на водата възможно най-ефективно, което ви позволява да спестите значително.











