Отоплението днес присъства в почти всяка къща, било то апартамент или частна къща. Но рано или късно възниква ситуация, когато отоплителната система или по-точно радиаторът се нуждае от ремонт или дори подмяна.
Не се тревожете, защото абсолютно всеки радиатор скоро ще се нуждае от ремонт. Причините за това могат да бъдат много, било то теч в свързващите части или лош топлопренос. Неочаквани повреди и проблеми с отоплението се случват доста често в частните домове.
Ако разбивката е на малко ниво, тогава можете да се справите сами, за това просто трябва да следвате инструкциите и да имате необходимите инструменти и резервни части със себе си. Но ако повредата е доста сериозна и не сте сигурни, че можете да се справите сами, тогава най-доброто решение би било да се обадите на специалист.
Нека разгледаме по-отблизо какви проблеми обикновено могат да възникнат при отоплението на частна къща и кои от тях могат да бъдат отстранени сами?
Цени
| Име | Цена, руб.) |
| Монтаж на газов бойлер | от 5000 |
| Монтаж на радиатор | 5 000 |
| Монтаж на подов конвектор | от 5000 |
| Монтаж на вода, електрическо подово отопление, цена на кв. | от 500 |
| Монтаж на отоплителен колектор, подово отопление | от 5000 |
| Монтаж на шкаф за превключване | от 3500 |
| Пускане в експлоатация | от 3000 |
| Проследяващи тръби до 32 мм с изолация - цена за m / rm. | 150 |
Основен ремонт и поддръжка на отоплителни системи
Рутинният ремонт е ремонт и подмяна на износени елементи на системата. По правило това е премахване на течове, дребни ремонти на котли и др. Такова събитие обикновено не изисква дълго спиране на цялата система и не струва много. Основен ремонт възниква необходимост по време на периоди на основен ремонт и реконструкция на сгради, в случаи на износване на всички или много части и възли:
- подмяна на котел, печка или акумулатор на топлина;
- пълна или частична подмяна на отоплителни тръби;
- монтаж на нови радиатори или системи за подово отопление.
Необходимостта от основен ремонт възниква рядко, понякога системите служат в продължение на няколко десетилетия без сериозни повреди. Честотата на подмяна и обновяване на системата зависи от качеството на нагревателите и тръбите, които собствениците избират за конкретни сгради. Ето защо, когато избирате, трябва да обърнете внимание на продуктите на компании с добра репутация и на техническите характеристики на моделите.

Специфики за основен ремонт
- Основният ремонт включва прилагането на цял набор от мерки. Работата може да бъде както проста (например, топлоизолация на тръбопроводи или монтаж и демонтаж на клапани), така и сложна (например полагане на тръбопроводи или отстраняване на неизправности в оборудването). Нашият екип от майстори работи не само за възстановяване на дефектна отоплителна система, но и за подобряването й, като по този начин увеличава ефективността, надеждността и икономичността на отоплението.
- В началния етап на основния ремонт отоплителната система се проверява визуално. Първоначално специалистите от Baltic-Comfort оценяват ситуацията, като вземат предвид всички коментари на клиента. Клиентът получава информация с предложение за подмяна на конкретно оборудване, така че системата да започне да функционира по-добре. Подробна проверка е придружена от съставяне на основен план за основен ремонт, след което на клиента се предоставя възможност да се запознае с разчета за услугата.
- При извършване на ремонтни операции се вземат предвид спецификата на отоплителната система, както и структурните характеристики на обслужвания обект.Препоръчва се да се изготви предварително заявление за извършване на тези операции, за да се преминат своевременно всички етапи на ремонт и да се подготви отоплителната система за сезонна експлоатация.
Описание на мерките за ремонт
По време на основен ремонт се сменят клапани и други спирателни кранове, възстановява се работното състояние на тръбопроводите и се променят специфичните им елементи (ако е необходимо). Освен това се монтират въздухосборници и се монтира сепаратор за утайки.
Основният ремонт, извършен от специалистите на компанията, ще намали топлинните загуби по време на работа на отоплителната система и ще увеличи нейната надеждност. Работата на оборудването ще бъде дългосрочна и непрекъсната.
Хронология на текущия ремонт
По време на текущия ремонт на отоплителната система се извършват следните дейности:
- Ако се открият дефекти по тръбопроводите, те се отстраняват или повреденият елемент се подменя. Елиминирането на изтичане на тръбопровод допринася за пълната и безопасна работа.
- Специалистите сменят или ремонтират спирателни кранове, сменят неизправно помпено оборудване и автоматична система за управление.
- Проверяват се спирателните кранове и се ремонтира топлоизолацията на тръбопровода (в случай на нарушаване на неговата цялост).
- Топлообменниците, радиаторите и щранговете се измиват. Това е необходимо, за да се подобри функционирането на отоплителната система. Ако системата се характеризира с недостатъчен топлообмен, се извършва сложното й промиване. Препоръчително е да инсталирате допълнителни крепежни елементи, за да увеличите безопасността на системата.
Преди започване на текущия ремонт се извършва подробна проверка на състоянието на блоковете и елементите на отоплителната система. Системата се анализира и за нивото на износване.
Монтаж на отоплителна система в апартамент до ключ
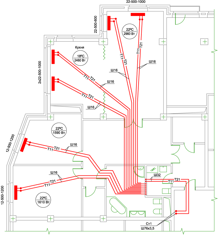
Но първо ще трябва да изчислите броя на крановете и запушалките за всяка стая, кадри от тръби, техния диаметър, колко радиаторни секции са необходими за определена стая и т.н.
Ако инсталирането на отопление в апартамент се извършва от професионалисти, можете безопасно да изключите специални инструменти и оборудване за запояване или заваряване от списъка за пазаруване. Цената ще бъде още по-ниска, ако експерт предложи оптимален модел на батерията.
Монтираме отоплителни системи, включително подово отопление, в Москва и Московска област. Цената на работата при нас е достъпна, въпреки високото качество на услугите. Ние гарантираме надеждността и дълготрайността на системата, както и липсата на течове и други проблеми. Ако искате къщата да е топла и уютна - обадете ни се!
Други неизправности
През топлия сезон, когато отоплението не работи, въздухът често навлиза в тръбите и радиаторите. Трябва да се премахне в началото на отоплителния сезон. Особено често такива проблеми възникват сред жителите на горните етажи. Ако няма средства за отстраняване на въздушни възглавници, ние ще ги инсталираме.
Запушените или течащи тръби са често срещани в по-старите многоетажни сгради. В частни къщи и вили можете да организирате тест за налягане на отоплителната система и да премахнете запушванията. По-добре е да смените тръбите в апартаментите, тъй като в много случаи те вече са си служили. Ще бъде по-бързо и по-евтино просто да замените проблемната зона.
Правила за автономен ремонт на отоплението


Разпадането на автономното захранване с топлина не винаги може да бъде открито незабавно. Авариен ремонт на отоплителната система се изисква само ако има очевидни неизправности - изтичане на радиатори, тръби или повреда на котела. Но е по-трудно да се определи неизправността по косвени признаци.
Има няколко фактора, които показват необходимостта от ремонт на отопление в частна къща. На първо място - постоянно намаляване на налягането в системата. Това се дължи на малък теч. Друг признак е влошаване на работата на топлоснабдяването - намаляване на ефективността, неравномерно разпределение на топлината.Навременният ремонт на отоплителни системи в селска къща ще помогне да се премахнат тези проблеми.
Преди да възстановите работоспособността на автономното подаване на топлина, трябва да изпълните следните стъпки:
- Изключете котела. За модели с твърдо гориво се препоръчва да се ограничи притока на въздух в горивната камера, за да се намали преносът на топлина до минимално ниво.
- Определете зоната на пробив и блокирайте достъпа на охлаждащата течност в тази зона.
- Изберете оптималната технология за ремонт на отопление в частна къща. Зависи от вида на повредата - понижаване на налягането на тръбите или радиаторите, повреда на котела, разширителен резервоар, циркулационна помпа.
- Ремонтни работи на отоплителната система в частна къща.
- Проверка на работата на системата, стартиране на отоплението.
Това е обща схема, която има редица нюанси в зависимост от вида на мерките за възстановяване. Трябва да се вземат предвид всички влияещи фактори - температурата навън, видът на охлаждащата течност в системата (вода или антифриз), пакетът за подаване на топлина. В някои случаи е по-добре да направите първоначален авариен ремонт на отоплителната система и след това да се обадите на специалисти за професионално решение на проблема.
За бърз ремонт на системи за топлоснабдяване в селска къща се препоръчва да закупите комплекти предварително, за да премахнете течовете в тръбите и радиаторите.
Ремонт на отоплителни тръби в частна къща
Ремонтът на отоплителни тръби в частна къща е оправдан от икономическа и техническа гледна точка. Възстановяването на различни видове тръби изисква специално оборудване и инструменти. Металните тръби се ремонтират по-лесно от медни или стоманени тръби. Във всеки случай обаче майсторът трябва да има определена квалификация и допускане до работа. Ако има сериозни повреди, сменете тръбата или отделния й елемент. Експертите препоръчват да се извърши цялостен ремонт на тръбите веднага след края на отоплителния сезон. Животът на тръбите до голяма степен зависи от качеството на материала. Често собствениците на частни къщи инвестират много пари в ремонт и купуват евтини компоненти под формата на тръби. Отоплителната инсталация трябва да се извършва по такъв начин, че в бъдеще да е удобно да я демонтирате и поправите. Следователно тръбите трябва да се полагат вътре в пода без фуги. Ако разстоянието на трасето е достатъчно голямо, трябва да се поръчат по-големи дължини на тръбите. В тръбопроводите е възможен един вид повреда - теч. Като правило, това се случва в ставите или директно в самата тръба. Това се случва в резултат на образуването на корозия по стените. Следователно, ако се образува ръжда, ремонтът трябва да започне незабавно.


Кои радиатори и тръби да изберете
Важно е да се разбере, че всяка отоплителна инсталация в апартамент е много индивидуална. Това означава, че може да има някои нюанси, поради които този или онзи тип отоплителни батерии е подходящ в единия случай, но не и в другия. Ето защо не бързайте да купувате устройства или други материали, а по-скоро се опитайте да вземете предвид максималните характеристики на ситуацията и обекта.
Съвет: ако вашите собствени знания не са достатъчни, за да вземете най-доброто решение, тогава непременно се консултирайте с професионалист в тази област. Така че по-късно да не се окаже, че закупената и инсталирана система е неефективна.
Нека да разгледаме какво сега се продава за отоплително устройство в къща.
Чугунени радиатори


Модерни чугунени батерии
Тези устройства обаче са издръжливи и работят наистина ефективно, но цената им е доста голяма. Чугунът, в случай на спиране на подаването на топла вода към системата, се охлажда много бавно, което, разбира се, е добре.
Въпреки това секциите на такива батерии съдържат значително количество вода и поради това е нерентабилно да се управляват радиаторите в ситуация, когато в апартамента има електрически котел.Но за централно или газово отопление това е чудесен вариант.
Съвет: преди да купите, обърнете внимание, че чугунните батерии са тежки и е малко вероятно сами да ги вкарате в апартамента. Освен това е по-добре да ги монтирате на стената с асистент. Затова се погрижете предварително за присъствието на помощник.
Следващият тип устройства.
Биметални и алуминиеви секционни радиатори


Секционни батерии
Особеността на такива батерии е, че те са много удобни за използване в апартаменти с централно отопление, където по правило водата е твърда, често с отломки и други чужди частици. Биметалът няма да се влоши от това, а освен това върху него няма ръжда.
Освен това в такива радиатори можете да добавите произволен брой секции или обратно - да намалите броя им.
Сред недостатъците може да се посочи относително високата цена на устройствата, както и фактът, че такива радиатори се охлаждат бързо. Ако обаче апартаментът няма прекъсвания с топла вода в системата, тогава последният фактор не е пречка за закупуване.
Сега няколко думи за стоманени батерии.
Стоманени панелни радиатори


Снимка на панелен радиатор от стомана
Може би тези устройства са „златната среда“ между цена и качество. Те затоплят добре въздуха, служат доста дълго време и цената им е доста достъпна - всъщност всеки може да ги купи.
Друго важно положително качество е, че радиаторите от стоманени панели са много лесни за инсталиране сами, дори без никакъв опит.
Има, разбира се, и недостатъци - устройствата са обект на корозия. Най-вероятно те ще продължат поне 5-7 години, но в бъдеще или трябва да бъдат заменени, или трябва да ги следвате отблизо. Освен това е нежелателно да се източва вода от системата за период от повече от седмица, тъй като въздухът в секциите значително ще ускори корозията.
Разбрахме радиаторите, сега нека поговорим за друг елемент от отоплителната система.
Избор на тръби
Естествено, преди да ремонтирате отоплението в апартамент, ще трябва да вземете решение за вида на тръбите.
Тук всъщност няма толкова много възможности.
- Стоманени тръби... Продуктите са добри, защото са много устойчиви на механични повреди, както и защото се нагряват добре. Това означава, че въздухът в апартамента ще се нагрява и от тях. Недостатъците на стоманените тръби са корозивни процеси, както и фактът, че за инсталирането на системата ще са необходими услугите на заварчик.


Отоплителна система от стоманени тръби
- Металопластични изделия... Те се отличават с ниската си цена и лесна инсталация. Недостатъкът е, че в повечето случаи в системата има твърде много връзки от такива тръби, които трябва постоянно да се наблюдават, за да няма изтичане.


Усилени пластмасови тръби
- Пластмасови тръби... Те струват малко повече от предишната версия, но се оправдават със 100%. Тъй като те не гният, не ръждясват, техните връзки (сраствания) са здрави и никога няма да изтекат. Недостатъци? Това е може би само грешното сглобяване на системата.


PVC тръби
Оказва се, че в повечето случаи пластмасовите тръби са най-подходящи за самостоятелно инсталиране на отопление. И могат да се използват всякакви радиатори за централна отоплителна система - защото принципът на свързването им към тръбите е приблизително еднакъв.
И като нагледен пример, нека разгледаме най-простия случай - ще направим отоплението на апартамента със собствените си ръце от пластмасови тръби и стоманени панелни радиатори.
Но първо трябва да подготвите необходимия инвентар.
Ремонт на отопление на селска къща
Обновяването на отоплението на селска къща е неприятно явление, с което рано или късно се сблъсква всеки собственик на недвижим имот. Съвременното оборудване и иновативните технологии значително повишават надеждността на всички блокове на отоплителната система.Въпреки това, както всеки механизъм, елементите на системата изискват редовна поддръжка и ремонт.
Основните неизправности могат да бъдат изразени в следното:
- Течове върху радиатори, топлообменници и тръби;
- Разбивка на определени единици и оборудване;
- Въздушност на цялата система;


Дейностите, свързани с проверка на функционирането и ремонта на системата, се свеждат до 2 вида работа: превантивна и капитална. Превантивната поддръжка включва подмяна на уплътнения, промиване на елементите и поддръжка. Капиталовата работа включва пълна подмяна на компонентите на системата, нейната модернизация и др.







