Тръбопроводи на газов котел в отоплителната система
След като бъде монтиран стенният газов котел и нагревателят е поставен на стената, първата стъпка е да го свържете към отоплителната система. В зависимост от това кой модел е инсталиран едноконтурен или двуконтурен, има различни схеми на лентови връзки. Ще разгледаме процеса на свързване, като използваме примера на монтиран на стена двуконтурен газов котел.

Както знаете, двуконтурният котел, освен отопление, може да произвежда и топла вода за битови нужди. Структурно това се реализира чрез инсталиране на един битермален или два отделни топлообменника. Двуконтурният котел не произвежда много много топла вода, но е напълно достатъчен за 1-2 точки на разпределение (например кухненски кран и душ).
Модерен шарнирен газов котел е много компактен и вече съдържа в себе си основните елементи, необходими за функционирането на отоплителна система с принудителна циркулация, като: циркулационна помпа, разширителен резервоар, група за безопасност. В отоплителните системи на малки частни селски къщи това е повече от достатъчно, но ако е необходимо, можете да инсталирате допълнителен разширителен резервоар или друга помпа.
В долната част на всеки шарнирен двуконтурен котел има 5 дюзи. Свързани са с: захранващи и връщащи линии на отоплителната система, подаване и връщане на топла вода, главен газ. Входът за газ обикновено е центриран и оцветен в жълто. Всички останали линии могат да бъдат подредени във всякакъв ред, в зависимост от модела на газовия котел. Следователно, преди да започнете лентата, е необходимо да изясните целта на всеки от тях в инструкциите за експлоатация.


Тръбопроводите на стенен газов котел се извършват с полипропиленови или метални тръби. Напречното сечение на отоплителните тръби обикновено е по-голямо от тръбите за БГВ съответно 3/4 и 1/2 инча. Отоплителната система е свързана с котела чрез "американските" гайки. На всяка линия са монтирани сферични кранове, за удобство при демонтиране на газовия котел без източване на охлаждащата течност и за изолиране на котела от отоплителната система, ако е необходимо. За да се осигури херметичност, всички връзки трябва да бъдат направени с помощта на водопроводна лента FUM или лен.
Грубите филтри трябва да бъдат монтирани в тръбата за връщане на отоплението и в тръбата за подаване на БГВ. За удобство при промиване и почистване те също се отрязват от спирателни клапани. Често, за да се увеличи експлоатационният живот на вторичния топлообменник на двуконтурен котел, допълнително се монтира магнитен фин филтър върху захранването с топла вода.
Такива различни газови котли
Купувачът, преди да отиде в магазина, за да купи газов котел за отопление, трябва да определи за себе си няколко характеристики на оборудването. Първото нещо, което трябва да запомните, е, че всички котли са разделени на два вида:
Купуването на първия ще бъде малко по-евтино, но вторият тип газови котли се счита за универсален и може не само да служи като отоплително устройство, но и да осигури жилище с топла вода.
Друга важна подробност, която трябва да имате предвид при избора на евтин котел за отопление с газ, е начинът за отстраняване на продуктите от горенето. Те могат да бъдат два: с атмосферно (необходим е комин) или принудително (оборудвано със специален дизайн за отстраняване на продуктите от горенето) течение.
Друго много важно разделение на котлите в каталозите е по отношение на енергийната ефективност. В продажба:
- Конвекция (такъв котел за отопление на газ се среща в много къщи, поради неговата наличност и добра ефективност);
- Кондензация (очевидният лидер в производството, тъй като компетентното сглобяване ви позволява да увеличите ефективността до 109%. Този тип оборудване се счита за най-печелившото).
Какъв тип оборудване да изберете, все още зависи от вас: мощно подово или красиво, но не по-малко ефективно, монтирано на стена. В нашия онлайн магазин ще намерите газови котли от различни производители.
Какъв вид газов котел?
Ако във вашата къща топлинната енергия, произведена от газов котел, ще се консумира само за отопление и отопление на вода, можете безопасно да вземете мощността на котела, равна на топлинните загуби на къщата (за предварителни опростени изчисления, използвайте тази зависимост - на всеки 10 m2 отопляема площ, необходим е 1 kW мощност на котела).
Всичко за монтажа на газов котел
Целта на нашата работа е интегриран подход за осигуряване на надеждна отоплителна система. Можем да ви предложим професионален подбор на оборудване и компоненти, отговарящи на вашите условия на работа за котелното помещение, бърз монтаж на котли и пускане в експлоатация на системата за топлоснабдяване до ключ.
Ремонт на котелно оборудване
Осигуряваме гаранционна и сервизна поддръжка на отоплително оборудване, ремонт и подмяна на компоненти на котела. Собствен сервизен отдел, точна диагностика и бързо отстраняване на неизправности. Можете да сключите споразумение за годишна, сезонна или еднократна поддръжка на оборудването за топлоснабдяване.
Електрическо свързване на газовия уред
Съвременните газови котли съществуват с 2 опции за свързване към електрическата мрежа: трижилен изолиран кабел и щепсел за свързване към контакт. И в двата случая трябва да се придържате към правилото: газовото устройство е свързано чрез индивидуален прекъсвач към щита и определено ще трябва да се погрижите за заземяването. Препоръчва се да се използват регулатори на напрежение, както и резервни захранвания, за да се подготвите за спиране на тока.
В близост до котела трябва да се инсталира устройство за автоматично изключване, за да може бързо и лесно да се изключи. Не заземявайте устройството към отоплителна или газова тръба. За да се осигури добро заземяване, е необходимо да се оборудва заземителен контур или точково заземяване.
Правила и разпоредби за монтаж на бойлер
Газовото отоплително оборудване е инсталирано в съответствие с разработените и одобрени технологии, които гарантират безопасността на неговата работа.
- Въпросът как да инсталирате стенен котел започва с подготовката на стая за него. Помещението трябва да отговаря на определени изисквания: котелното помещение може да бъде разположено навсякъде в къщата, с изключение на банята, дневните и тоалетната. Въпреки това, когато инсталирате стенни модули, това изискване може да бъде облекчено в зависимост от вида на котела. Обемът на стаята е от четири квадратни метра, височината на тавана е от два метра. Ширината на вратата е най-малко 800 mm. Също така, помещението трябва да бъде осигурено с естествено осветление на котела през прозореца. В същото време размерът на прозореца трябва да съответства на 0,3 кв. на всеки 10 кв. помещения.
- Правилата за инсталиране на монтиран на стена газов котел регулират подаването на определено количество чист въздух с помощта на принудителна вентилация до мястото на използване на котела. Недостатъчното количество входящ въздух може да бъде свързано с натрупването на вещество, опасно за здравето и живота в помещението.
- Монтаж на стенен газов котел: стандартите за неговото поставяне са такива, че разстоянието от стената до повърхността на котела трябва да бъде повече от 10 см. Ако това разстояние е по-малко от предписаното разстояние, стената трябва да бъде защитена с огнеустойчиво покритие.
- Газовите тръби могат да бъдат метални, но не и пластмасови.
- Отворът на комина трябва да съответства на мощността на котела. Освен това височината му трябва да бъде най-малко 5 м, при условие че коминът е монтиран над билото на покрива на къщата. Когато инсталирате комин, той може да има не повече от три завоя.
- При организиране на системата за захранване е необходимо да се предвиди наличието на автоматична машина с токова защита и термична защита.
- В помещението, където ще стои котелът, трябва да има газов сензор, свързан с релето. В случай на изтичане на газ, сензорът трябва да изпрати релеен сигнал, за да блокира подаването на газ. Освен това трябва да звучи звукова аларма.
- Монтаж на монтиран на стена газов котел, стандартите за стартирането му задължават да осигурят на устройството газов метър.
- Ако до котела има други газови уреди, тогава разстоянието между уредите се задава на марка от поне 20 сантиметра.
- Когато инсталирате стенен котел, изискванията дори засягат предмета на пълната цялост на оборудването. Пълният комплект на котела трябва да отговаря на стандартите и да съдържа: ръководство, крепежни елементи, шаблон от хартия за монтаж, специални ключове и крепежни елементи.
- Монтажната височина на стенния котел е 80 см - 160 см от подовата повърхност.


Ако всички тези изисквания са изпълнени, тогава няма съмнение за надеждността и пожарната безопасност на газовата отоплителна система. Трябва да се има предвид, че отоплителната система трябва редовно да се поддържа от служителите на градската газова служба.


Повече по тази тема на нашия уебсайт:
- Монтаж на газов котел на стена - тръбопроводи и схеми за свързване Често частните къщи нямат достъп до централизирани системи, така че собствениците трябва самостоятелно да решат как да приложат.
Правилни тръбопроводи на монтиран на стена двуконтурен газов котел - устройство, схема, връзка Правилната, компетентна, висококачествена организация на отоплението на една къща допринася за равномерното разпределение на топлината в жилищната площ. Свързване на стенен газов котел с два.
Превързване на монтиран на стена двуконтурен газов котел - снимки и схеми Обикновено свързване на монтиран на стена двуконтурен газов котел, снимката на който виждате на тази страница, може да бъде направено от вашия майстор или вие можете.
Коаксиална тръба за газов стенен котел - монтаж със снимка За да не харчите пари за пълноправен комин, ще ви е необходима коаксиална тръба за газов стенен котел. Инсталация, чиято снимка е публикувана на тази.
Свързване на стенния котел към електрическата мрежа
Повечето модерни стенни газови котли са оборудвани със сложна автоматизация. Той контролира много процеси, превръщайки отоплителния котел в автономно мини-котелно помещение, чиято работа на практика не изисква намесата на собственика. Очевидно контролното устройство и различните сензори изискват мрежова връзка.
Двуконтурните стенни котли се предлагат в две версии: с обичайното гнездо и с кабел за директно свързване към вендинг машината. Във всеки случай те трябва да се захранват от електрическата мрежа чрез отделна машина. Ако сте закупили модел с щепсел, тогава отделен изход за газов котел трябва да бъде разположен до него, но не и под него. Това е едно от изискванията за безопасност, така че в случай на изтичане на охлаждаща течност да не се получи късо съединение.


Газов котел изисква задължително заземяване. За тези цели можете да закупите комплект за точково заземяване. Той е инсталиран в мазето или до къщата и заема малка площ от около 0,25 м².
Внимание! Строго е забранено заземяването на монтирания на стената газов котел към отоплителния радиатор или газопроводната тръба. Това е грубо нарушение на правилата за експлоатация на газово оборудване и е изключително опасно.
Автоматизацията на котела е много чувствителна към качеството на захранващото напрежение. При недостатъчно ниво или несъвършена синусоидална форма на входа, устройствата бързо се отказват.За да се предотвратят чести повреди и да се удължи живота на уреда, е необходимо да се свържат стабилизатори на напрежението за газови котли. За да избегнете спиране на отоплителното оборудване в случай на прекъсване на електрозахранването, допълнително трябва да закупите непрекъсваемо захранване.
ОБЩИ ИЗИСКВАНИЯ ЗА МОНТАЖ НА БИТОВИ КОТЛИ
Важно! Изчислете вентилационната площ въз основа на правителствените разпоредби. За 10 kW мощност на котела се изисква 0,001 m2.
Важно е да знаете! Не е разрешено да се монтират 2 вида газови агрегати в една и съща стая, например два отоплителни котла.
Особено внимание се обръща на местоположението на банята. Димът от комина на сауна, разположен в близост до къщата на съседа, води до кавги със съседи, които законно могат да поискат да разрушат сградата.
На посочения от вас имейл адрес е изпратен имейл с инструкции за възстановяване на паролата.
Ако оборудването е инсталирано с капацитет от 150 kW или повече, една от предпоставките е достъпът до улицата. Може да се оборудва втори изход - към помощно помещение (не битово). Това може да е килер или коридор. Вратите трябва да са огнеупорни.
Координацията на дизайна на пречиствателната система ви позволява да избегнете ситуации, при които погрешно е построен септичен резервоар, буквално на метър от кладенец за питейна вода. Почистващият препарат се поставя на разстояние най-малко 5 м от жилището и 3 м от границите на площадката. Системата не трябва да се намира далеч от жилищна сграда, тъй като това често води до запушвания.
Когато планирате бъдещото използване на сайта, се препоръчва да се начертае неговата диаграма. Земята трябва да бъде разделена на зони, в една от които ще бъде издигната жилищна сграда, а в други - гараж и други необходими стопански постройки. Според GOST сградите трябва да бъдат премахнати от оградата и къщата за следните интервали (m):
- поне 1 - стопански постройки за съхранение на инвентар;
- 6 - от прозорците на съседната къща;
- поне 12 - помещения за настаняване на добитък;
- 6 - летен душ;
- 8 - тоалетна и яма за компост.
Ако имате някакви съмнения относно правилния монтаж на контакта близо до мивката, купете водоустойчив контакт, както е показано на снимката и вашите съмнения ще изчезнат.
Монтажът на газови котли трябва да се извършва в сутерена, мазето или в отделно помещение на приземния етаж, ако неговата мощност надвишава 150 kW. При по-ниски цени инсталирането на отоплително оборудване може да се извърши в кухнята.
Техническите условия, както и проектът за монтаж на оборудване трябва да бъдат съгласувани с представителя на газовата служба на мястото на подреждане на системата.
Планирането на сгради се урежда от следните стандарти:
- SP 30-102-99. Задава нормите за разстоянията между обекти IZhS и други разширения. По този начин жилищна сграда трябва да се намира на разстояние най-малко 6 м от жилища, гаражи и спомагателни сгради на съседно място.
- SP 4.13130.2009. Основният документ за установяване на мерки за пожарна безопасност. Спазването на защитните разстояния между сградите е предназначено да предпазва сградите от пожар и да предотвратява разпространението на огън поради тяхната близост.
- SNiP 30-02-97. Регулира поставянето на сгради в градинарски сдружения. В някои случаи, по решение на местната администрация, стандартът се прилага за обектите на индивидуално жилищно строителство, частни домакински парцели и вили.
- SNiP 2.07.01-89. Регулира площта, свързана с общото развитие на селището. За разлика от предишните стандарти, този регламент регулира поставянето на сгради на обекта от гледна точка на местната власт, а не на собственика.
Техническите условия, както и проектът за монтаж на оборудване трябва да бъдат съгласувани с представителя на газовата служба на мястото на подреждане на системата.
Планирането на сгради се урежда от следните стандарти:
- SP 30-102-99. Задава нормите за разстоянията между обекти IZhS и други разширения.По този начин жилищна сграда трябва да се намира на разстояние най-малко 6 м от жилища, гаражи и спомагателни сгради на съседно място.
- SP 4.13130.2009. Основният документ за установяване на мерки за пожарна безопасност. Спазването на защитните разстояния между сградите е предназначено да предпазва сградите от пожар и да предотвратява разпространението на огън поради тяхната близост.
- SNiP 30-02-97. Регулира поставянето на сгради в градинарски сдружения. В някои случаи, по решение на местната администрация, стандартът се прилага за обектите на индивидуално жилищно строителство, частни домакински парцели и вили.
- SNiP 2.07.01-89. Регулира площта, свързана с общото развитие на селището. За разлика от предишните стандарти, този регламент регулира поставянето на сгради на обекта от гледна точка на местната власт, а не на собственика.
Въз основа на това електрическото окабеляване в кухнята трябва да се извършва от независима група или дори по-добре от няколко групи.
За да разберете как да направите подреждането на пещта по нов начин, трябва да проучите изискванията за помещението, представени от нормативни документи (SNiP).
Стените трябва да са негорими. Това означава, че те трябва да осигурят 0,75 часа преди запалване (45 минути).
Те са подробно описани в инструкциите за всеки газов уред. Спазването им е гаранция не само за безопасност, но и за това, че в случай на повреда на оборудването потребителят ще може да разчита на безплатна подмяна както на отделен блок (компонент), така и на цялата инсталация в рамките на определен срок. Следователно TU за котела (печка или друго газово оборудване) е един от основните документи за инсталационната процедура.
Строителните стандарти, които са одобрени от държавата за инсталиране на газово оборудване в жилищна сграда, определят изискванията за помещението, където ще бъде разположен котелът. Наложително е да се вземе предвид това при инсталиране на системата. Неспазването на тези препоръки може да създаде пожар или експлозия.
Как да свържете газов двуконтурен котел
Двуконтурното устройство се различава от едноконтурното по това, че съдържа 2 топлообменника: единият е основният, който загрява вода за отопление, а другият е допълнителен, който ще загрява водата за подаване на топла вода. В повечето случаи такива котли са монтирани на стена и представляват високотехнологично котелно помещение, където всичко е автоматизирано и осигурено.
Свързване на двуконтурен газов котел.
Трябва да обърнете внимание на фигурата, която изобразява вътрешността на двуконтурно устройство. Към него ще бъдат свързани 5 тръби: 1 - тръба с охлаждаща течност от отоплителната система, която отива за допълнително отопление; 2 - тръба със студена вода, която отива към топлообменника, за да загрее водата за подаване на топла вода; 3 - газова тръба; 4 - тръба за захранване с топла вода с топла вода; 5 - тръба с гореща охлаждаща течност за отоплителната система
Цялата автоматизация на двуконтурните котли е подредена вътре. Отоплителната среда по подразбиране, която се нагрява от основната горелка в котела, се изпраща към отоплителната система и се връща в котела отново охладена. По този начин има циркулация на котел-отопление-котел. Щом обаче някой отвори кран на един от потребителите с топла вода, студената вода ще започне да тече в котела през тръбата. Трипътният клапан незабавно ще пренасочи охлаждащата течност, която няма да напусне котела, а циркулира в основния топлообменник. Топлоносителят ще загрява подаването на топла вода, докато вече не се използва. Веднага след като кранът се затвори, охлаждащата течност започва да циркулира през отоплителната система.
Схема на директно свързване за газов двуконтурен котел.
На практика двуконтурният газов апарат не е в състояние да осигури голямо количество вода за захранване с топла вода. Котелът няма време да го загрее в необходимия обем.Ето защо те се използват изключително в малки семейства, а за да се затопли по-голям обем вода, допълнително се използва бойлер.
Според тази схема охлаждащата течност само загрява водата в котела и самата система за водоснабдяване към 2-ра верига ще бъде затворена. Това прави възможно значително увеличаване на издръжливостта на двуконтурното устройство, което силно страда от твърда чешмяна вода.
Схема на свързване на газов двуконтурен котел с бойлер за индиректно нагряване.
След около година допълнителният топлообменник за БГВ се запушва и излиза от строя. В тази връзка циркулацията на чиста охлаждаща течност във 2-ра верига е по-икономично решение. Няма смисъл обаче да се използва двуконтурен дизайн. Много по-изгодно и практично е да се инсталира в този случай едноконтурен котел с по-голяма мощност.
Свързването на газов котел, монтиран на стена, съчетан с обикновен електрически котел като резервоар за топла вода също е допустимо. В този случай топлата вода ще навлезе в котела от котела и когато нейното количество намалее до критична точка, котелът отново ще започне да загрява вода, за да напълни котела. Възможна е опция, при която котелът се напълва с топла вода от котела, а по-нататъшната му температура ще се поддържа с помощта на нагревателен елемент.
Как да свържете котли от различен тип към отоплителната система?
Често, ако е възможно да се свържете с газопровода, много собственици на жилища инсталират основния газов котел, а котелът на твърдо гориво е свързан като допълнителен източник на топлина.
В този случай както схемата на свързване, така и изискванията за котелното помещение ще се различават.
- Основните разлики се отнасят до площта на помещението - тя трябва да бъде най-малко 15 м3. Колкото повече мощност има котелът, толкова по-голямо трябва да бъде котелното помещение (за да се изчисли този параметър, индикаторът на мощността трябва да се умножи по 0,2 м3, при условие че таванът има височина най-малко 2,5 м).
- Също така, стаята трябва да има отварящ се прозорец с размер 0,45 м2, а входната врата може да излиза само навън и да има ширина 80 см.
Котли на газ и твърдо гориво
Ако планирате да използвате едновременно газово оборудване и котел на твърдо гориво, тогава трябва да обърнете внимание на редица функции:
- последователна инсталация на твърдо гориво и след това газов котел. В този случай между тях задължително е фиксиран възвратен венчелистче, който е монтиран на захранващия тръбопровод. В този случай основното натоварване е върху котела за твърдо гориво, а газовият котел се включва, когато горивото вече е изгоряло и поддържа температурния режим;
- възможността за инсталиране на топлообменник за разделяне на затворените и отворените вериги. Към всяка верига е свързан различен тип котел. Задачата на котела за твърдо гориво е да загрее вторичния кръг, в резултат на което температурата на охлаждащата течност може да достигне 115 ° C. Схемата на работа е подобна;
- третият вариант е използването на буферен резервоар, за да се поддържа температурата на охлаждащата течност. В този случай котелът на твърдо гориво е свързан съгласно стандартната схема, а използването на газов котел позволява отопление на радиатори в буферен резервоар - това отнема от 2 до 4 часа.


Котли на твърдо гориво и електричество
Електрическият котел, когато е свързан в същата система с твърдо гориво, изпълнява същата функция като газовия. Той се включва след изгаряне на дървата за огрев и ви позволява да автоматизирате процеса на поддържане на температурата в къщата.
Също така такава система и наличието на междинен резервоар осигуряват подаването на охлаждаща течност едновременно към радиатори и отопляеми подове.
Когато следващата порция дърва за изгаряне изгори, сензорът открива понижение на температурата на въздуха в помещението и електрическият котел е включен.За да изключи помпата на котел на твърдо гориво, системното устройство е оборудвано с въздушен термостат, който регистрира спада на температурата в захранващата тръба. При следващото запалване процесът на циркулация на охлаждащата течност се възобновява.


Изисквания за използването на RCD
Изискванията за използване на RCD за целите на електрическата безопасност са регламентирани от PUE, глави 1.7, 6.1, 7.1. Токът на изключване на RCD, инсталиран за целите на електрическата безопасност, не трябва да надвишава 30 mA (използвайте RCD с ток на изключване 10 mA и 30 mA).
Класът RCD за тока на изключване се избира в съответствие с изискванията на точка 7.1.83 от PUE. Общият ток на изтичане на мрежата в нормален режим не трябва да надвишава 1/3 от номиналния ток на RCD. Тъй като няма данни за токове на утечка, изчисляването на токове на утечка се извършва в съответствие с изискванията на този параграф. При изчисляване токът на утечка на електрическия приемник се приема като 0,4 mA за всеки 1 A от тока на товара, а токът на утечка на мрежата е 10 μA за всеки метър от дължината на кабела.
Изискванията за инсталиране на RCD с цел защита от пожар се регулират от следните документи:
- PUE, точка 7.1.84 „Да се повиши нивото на защита срещу пожар при късо съединение на заземени части, когато текущата стойност е недостатъчна за задействане на максималната токова защита, на входа на апартамент, индивидуална къща и др. препоръчва се да се монтира RCD с ток на изключване до 300 mA ";
- Федерален закон от 22 юли 2008 г. N 123-FZ "Технически регламенти за изискванията за пожарна безопасност." Член 82, част 4 „Електропроводите на помещенията на сгради и съоръжения трябва да имат защитни устройства за изключване, за да се предотврати избухването на пожар. Правилата за инсталиране и параметрите на устройствата за остатъчен ток трябва да вземат предвид изискванията за пожарна безопасност, установени в съответствие с настоящия Федерален закон. "
В съответствие с тези изисквания на входа на апартамента е инсталиран RCD със задействащ ток 100 mA или 300 mA. Такъв RCD се нарича устройство за пожарна безопасност.
Ако изчислението показва, че общият ток на изтичане на дъската на апартамента не надвишава 10 mA, тогава можете да спестите пари и можете да инсталирате RCD с работен ток от 30 mA на входа на апартамента. Този RCD ще действа като "противопожарни" RCD и RCD, използвани за целите на електрическата безопасност.
В противен случай на входа на апартамента е монтиран "пожарозащитен" RCD със задействащ ток 100 mA или 300 mA, а на изходящите линии (където инсталацията е инсталиран RCD с задействащ ток 10 mA или 30 mA) на RCD е необходимо за целите на електрическата безопасност).
На каква височина трябва да бъде инсталиран гнездото.
Определянето на местоположението на изхода е много по-трудно, отколкото в случай на превключвател. Според така наречения "европейски стандарт" гнездата трябва да бъдат инсталирани на височина 30 сантиметра от нивото на пода. Тази височина на монтаж ви позволява да скриете захранващите кабели от вашите домакински електрически уреди.
Но при такава инсталация човек трябва да вземе предвид факта дали в семейството има възрастни хора. В крайна сметка, за да използват изхода, те ще трябва да се навеждат. За младите няма да създаде проблеми, но за възрастните ще бъде трудно. По-добре е тогава да инсталирате изхода малко по-високо, на ниво 40-50 сантиметра от пода.
Ниското инсталиране на контакти може да бъде опасно, ако в къщата има малки деца. Но този проблем може лесно да бъде решен с помощта на конвенционални щепсели в контактите. Или инсталирайте контакти със специална тайна.
И за пълна увереност, също ги свържете чрез устройство за остатъчен ток (RCD).
В случай, че контактът ще стои близо до вашия работен плот, тогава всеки път, когато се наведете, за да включите зарядното устройство от лаптопа или от телефона, или нещо друго там, няма да е много удобно. Бих ви посъветвал да си направите гнездо на 10-15 сантиметра над нивото на масата. Така че ще бъде много по-удобно да го използвате.
Височина на контактите в кухнята.
Специално внимание трябва да се обърне на електрическото окабеляване на кухнята. Факт е, че често всички мощни електрически уреди се намират в кухнята.И може да има около 10 от тях (фурна, микровълнова печка, миялна машина, електрическа печка, бойлер, пералня и т.н.).


Когато инсталирате електрическо окабеляване в кухнята, винаги съветвам да полагате отделен проводник с отделна машина за всеки контакт. А самият изход трябва да бъде инсталиран на мястото, където ще бъдат разположени електрическите уреди.
Разбира се, такава инсталация изисква голямо количество тел и в резултат на това голяма финансова инвестиция. Но е по-добре да похарчите пари веднъж и след това да използвате електрически кабели за дълго време. Как да свържете проводниците с "контур" и след това да имате куп проблеми.
Също така, ако имате газов котел, тогава във всеки случай е необходима отделна линия за него. Тъй като е много чувствителен към пренапрежения на напрежението. Следователно, когато монтирате гнездото под котела, трябва да вземете предвид факта, че може да се наложи да инсталирате стабилизатор на напрежението.
Гнездото за вградени уреди и пералня може да се монтира на височина 5-10 сантиметра от пода. И тя може да бъде по-висока, най-важното е, че те могат да я достигнат.


За аспиратори и осветление, точките за захранване могат да бъдат направени над шкафовете. Превключвателят за подсветка може да се направи някъде отстрани, така че да е удобно да го включвате и изключвате.
Всички останали малки уреди обикновено се поставят на масата. Това означава, че гнездата трябва да бъдат инсталирани на нивото на тази техника. И ако нямате кухненски блок, но вече сте го поръчали, тогава определено трябва да разберете височината му, за да планирате правилно местоположенията на всички търговски обекти.
Също така мога да ви посъветвам да направите още няколко аутлета в кухнята. Изведнъж в бъдеще ще искате да закупите друго електрическо устройство.
Гледайте видеоклип за това как да поставите контакти в кухнята.
Още един видеоклип.
Гнезда в банята.
Банята е стая с високо ниво на влажност. Следователно гнездата трябва да бъдат инсталирани на безопасно разстояние, така че да не попадне вода върху тях. Банята може условно да бъде разделена на три зони. Погледни снимката.


В червената зона има огромна възможност водата да попадне в изводите. Следователно те не могат да бъдат инсталирани там.
В жълтата зона могат да се монтират бойлер и лампа.
Но в зелената зона вече можете да инсталирате контакти, само минималното разстояние до водоизточника трябва да бъде 60 сантиметра или повече.
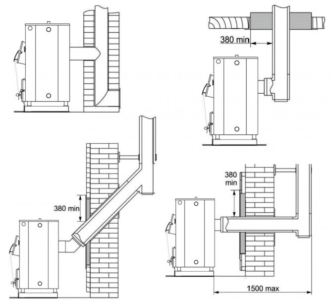
Свързване на газов котел към комин
Диаметърът на комина трябва да бъде равен или по-голям от диаметъра на изхода на устройството.
В повечето случаи диаметърът на комина зависи от мощността:
- 100 kW - 230 mm;
- 80 kW - 220 mm;
- 60 kW - 190 mm;
- 40 kW - 170 mm;
- 30 kW - 130 mm;
- 24 кВт - 120 мм.
Обикновените комини се водят нагоре, на 0,5 м над билото на къщата. Те са разположени както вътре в стената на къщата, така и вътре в къщата или зад стената ѝ. На тръбата не се допускат повече от 3 завоя. Първият участък от тръбата, който свързва котела с основния комин, трябва да бъде не повече от 25 см. Тръбата трябва да има затварящ се отвор за почистване. За котли с обикновени комини и отворена горивна камера е необходим голям въздушен поток. Може да бъде снабден или с отворен прозорец, или с отделна захранваща тръба.
Коминът трябва да бъде направен от покривен лист или друг материал, който е устойчив на киселини. Гофрираният котел не трябва да бъде свързан към основния комин. Тухлен комин също не може да се използва.
Коаксиалният комин трябва да бъде монтиран хоризонтално и изведен навън в стената. Този тип комин е тръба в тръба. Той трябва да се движи най-малко на 0,5 м от стената. Ако котелът е обикновен, тогава коминът трябва да има лек наклон към улицата. Ако устройството кондензира, наклонът трябва да е към самото устройство.По този начин кондензатът ще може да се оттича в специална тръба, която ще трябва да се изхвърли в канализацията. Максималната дължина на коаксиалните димоотводи е 5 m.
ИЗИСКВАНЕ НА СТАЯТА ЗА МОНТАЖ НА ОБОРУДВАНЕ
Внимание! Списъкът на основните изисквания за котелното:
- площ не по-малка от 7 м2;
- наличието на ефективна захранваща вентилация (участъкът на вентилационния канал зависи от мощността на топлинния генератор - от 8 см на 1 kW);
- мястото за инсталиране на котела трябва да бъде разположено на разстояние от стените, така че между блока и стените да остане празнина от най-малко 50 cm;
- подовото покритие трябва да бъде направено от незапалим материал (бетон, керемида), пред горивната камера е положен негорим листов материал, обикновено стоманен лист;
- диаметърът на комина трябва да съответства на параметрите на изхода на димните газове на котелното устройство;
- водоснабдяването и инсталирането на електрически кабели се извършва, като се вземат предвид всички изисквания за пожарна безопасност.
Монтажът на котел и свързаното с него оборудване трябва да се извършва в специално обособено помещение или в отделно котелно помещение. Помещението, в което е монтиран котелът, трябва да бъде оборудвано с индивидуален комин и вентилация. Естествената вентилация трябва да осигури трикратен обмен на въздух в рамките на един час, с изключение на въздуха, необходим за горенето. Помещенията, в които е монтиран котелът, трябва да бъдат снабдени с достатъчно естествена светлина, а през нощта - с електрическо осветление. Местата, които поради технически причини не могат да бъдат снабдени с естествена светлина, трябва да имат електрическо осветление. Осветлението трябва да отговаря на SNiP II-4-79 "Естествено и изкуствено осветление". За котли с дължина на решетката (обслужвана от предната (предната стена)) не повече от 1 м, разстоянието от предната страна на котлите или изпъкналите части на пещта до противоположната стена на котелното трябва да бъде най-малко 2 м Разрешено е да се монтират помпи пред котела, както и да се съхраняват запаси от твърдо гориво за не повече от една смяна на работата на котела. В този случай ширината на свободните проходи по предната част на котела трябва да бъде най-малко 1,5 м, а инсталираното оборудване и гориво не трябва да пречат на поддръжката на пещите и котела. Ширината на проходите между котела и стената на помещението трябва да бъде най-малко 1 м. Ширината на прохода между отделните изпъкнали части на котела, както и между тези части и изпъкналите части на сградата, стълби и други изпъкнали конструкции - не по-малко от 0,7 м. странично обслужване, ширината на проходите между котела и стената на помещението трябва да бъде най-малко 1,5 м. Ширината на тези проходи, както и ширината между котела и задната стена на помещението, трябва да бъде най-малко 1 м. Когато инсталирате котела близо до стени или колони, котелът не трябва да е близо до стената на помещението и да е на разстояние най-малко 70 mm от него. Подовете на помещението, в което е монтиран котелът, трябва да бъдат направени от негорими материали с негладка и неплъзгаща се повърхност; те трябва да са нивелирани и да имат устройства за отвеждане на водата в канализацията. Когато се монтира котелът на дървен под, под него трябва да се монтира подов защитен екран или да се монтира огнезащитно уплътнение пред котела, пред котела има пожарна плоча.


Правила за поставяне на тръби и контакти
Когато полагате електрически кабел, трябва да се има предвид, че той се загрява от токове, а нагревателят в близост загрява и околния въздух. Поради това е по-добре изобщо да се избягва полагането на проводници в близост до газопроводи и отоплителни тръби. Но ако не се получи, трябва да се помни, че нормите на PUE (правилата за електрическите инсталации) са регламентирани, че температурата на въздуха в такива случаи не трябва да надвишава + 25˚С, следователно, за да се спази пожарната безопасност правила, разстоянието от кабели и проводници до отоплителни тръби трябва да бъде най-малко 100 mm, а до газовите тръби - 400 mm. При пресичане на проводници с горещи тръбопроводи, разстоянието между тях трябва да бъде най-малко 50 mm, а с газопроводи - най-малко 100 mm.
Превключвателят, гнездото от газовата тръба трябва да се намира на разстояние най-малко 0,5 метра.Това изискване се дължи на факта, че в газопровода има запалим газ и в аварийна ситуация най-малката искра от изхода или превключвателя ще причини непоправими проблеми.
Изход близо до газова тръба може да предизвика аварийна ситуация, тъй като електричеството е в непосредствена близост до запалим газ.
Свързване на захранване и напречно сечение на кабела
Има пряка връзка между мощността на свързаното електрическо оборудване и напречното сечение, използвано за захранване на проводниците (кабел или проводници).
Забележка: Говорейки за напречното сечение на кабела, говорим за напречното сечение на кабелните жила, включени в неговата структура.
Същността на тази връзка е следната. Всеки проводник е способен да провежда електрически ток до определена стойност без нагряване. Колкото по-голямо е напречното сечение на проводника, толкова по-голям ток той може да проведе.
Тъй като има математическа зависимост между силата на тока и мощността на свързаното устройство, т.е.математическа зависимост между напречното сечение на кабелните жила и мощността, в нашия случай, на електрически отоплителен котел.
Тази зависимост се нарича "избор на проводници за отопление" (PUE-6, глава 1.3.). Не е нужно да броите нищо, можете да използвате таблиците PUE.
Това е за жиците


Това е за кабелите


Използването на таблици не е трудно.
- Според максималната мощност на котела, вземете предвид тока на натоварване (разделете мощността на 220 или 380 V);
- Потърсете тока на натоварване в таблицата;
- Вижте допустимото напречно сечение на проводниците;
- Ако е необходимо, закръглете секцията.
За да проверим, използваме таблица 3 (pue 1.3.8).
- Котел 10kW при 380 волта. Заредете ток 26,3 ампера (закръглете до 27 ампера). Поглеждаме към масата. Нуждаем се от кабел с напречно сечение 2,5 кв. мм в мед.
- Същият котел за 220 волта. Натоварващ ток 45,5 ампера (46 ампера). Поглеждаме към масата. Нуждаем се от кабел с напречно сечение 6 кв. мм в мед.
- За кабели с алуминиеви проводници трябва да изберете напречното сечение на проводниците с една стъпка повече, отколкото за медни, т.е. за котел с мощност 10 kW са ви необходими 4 мм и 10 мм.
Трябва ли да заземявам котел за отопление на газ и защо
- Разбивка на автоматизацията - котлите, оборудвани с електронен микропроцесор, са чувствителни към всякакви скокове на напрежението в мрежата. Неизправност, автоматизация може и от статично напрежение. Газов котел без заземяване няма да работи дълго. Смяната на платката за автоматизация ще струва около половината от цената на котелното оборудване.
- Опасност от експлозия - Натрупването на статично напрежение е една от най-честите причини за пожар в газовото оборудване. Положителният ефект от заземяването върху работата на котела се крие във факта, че появата на искра, която води до експлозия в случай на изтичане на газ, е напълно предотвратена.
PUE 1.7.103 определя параметрите и изискванията за свързване на отоплително оборудване. Преди да издаде сертификат за проверка на заземяването на газовия котел, инспекторът ще провери дали инсталирането на веригата отговаря на посочените стандарти.
Какви са правилата и разпоредбите за инсталиране на стенен газов котел
Инсталирането на отоплителен котел не е лесна задача. Котелът не може да бъде окачен по някакъв начин, тъй като безопасността на хората, живеещи в къщата, често зависи от това колко правилно е монтиран стенният котел. Това се дължи на факта, че инсталирането на това устройство се извършва в строго съответствие с техническите изисквания и стандарти, приети в Русия на законодателно ниво.
Ето защо инсталирането на стенен котел със собствените си ръце е изключително трудоемък и труден процес за начинаещи.


Свързване на отопление към котел, който работи на газ
Схема на свързване на двуконтурен котел с бойлер / бойлер.
Местоположението на тръбите може да варира. Това ще зависи от производителите и моделите.
Ако отоплителната система вече е работила преди и в момента ще се подменя само котелът. ще трябва да източите охлаждащата течност от системата и да я промиете няколко пъти.Голямо количество различни соли се утаяват по стените на радиаторите и тръбите и поради това е необходимо системата да се промие.
В отоплителната система могат да циркулират както антифриз, така и вода. В техническата документация не забравяйте да прочетете дали е възможно да се използва антифриз в избрания модел.
Има смисъл да се използва антифриз като охлаждаща течност в отоплителната система, когато котелът се включва само периодично. В този случай водата в тръбите може да замръзне, но антифризът не. Ако обаче потребителят е постоянно в къщата и котелът не се изключва по време на студове, тогава водата може да се използва като топлоносител.
- Циркулационна помпа (ако е необходимо).
- Сферичен кран.
- Груб филтър.
- Сферичен кран.
- Американска връзка.
Циркулационната помпа винаги трябва да бъде спряна на връщащата тръба. Сферичните кранове са необходими, за да се разкачи лесно системата, без да се източва охлаждащата течност и бързо да се отстрани филтъра за почистване и поддръжка. Необходим е груб филтър в отоплителната система, за да се предпази топлообменника от запушване на солта. Той трябва да бъде поставен директно пред котела, за предпочитане на хоризонтален участък с уловителя надолу.
Схема за свързване на БГВ към газово двуконтурно устройство:
- Филтър за груба вода.
- Сферичен кран.
- Магнитен филтър или фин филтър.
- Сферичен кран.
- Американска връзка.
За да се увеличи максимално експлоатационният живот на допълнителния топлообменник на двуконтурен котел и да се осигури неговата защита срещу котлен камък, на захранващата тръба със студена вода трябва да се инсталира магнитен филтър и грубо почистване. Ако последният филтър вече е инсталиран преди това, не е необходимо да го монтирате пред котела.
Всички връзки ще трябва да бъдат запечатани с теглич, специална водопроводна паста или FUM лента.
Разширение на котелната къща


Огнеупорните тухли се използват за индивидуални удължителни котли.
Когато не е възможно да се отдели отделно помещение за котела в къщата, се подрежда приложение за котелното помещение. Съществуващите норми, определящи височината на таваните и други характеристики на стаята, са същите като за отделните стаи. Освен това се вземат предвид следните изисквания:
- котелното помещение е позволено да бъде прикрепено само към основната стена, прозорците и вратата в него са разположени на разстояние до един метър;
- материалите, от които са направени допълнителните стени (тухли, шлакоблокове и др.), съгласно техническите условия са негорими, издържат на интензивно нагряване в продължение на 45 минути;
- стените на пристройката не са свързани с основната сграда, основата е направена отделно.
Удължаването подлежи на задължителна регистрация с документални доказателства за правото на присъединяване на газопровода. Без официални документи и разрешение никой няма право да подрежда котела.
Защо да спазвате дистанция
Кухнята е най-натоварената зона с електрически уреди. Хладилник, микровълнова фурна, изпускателна система, миялна машина - това е малка част от домакинските уреди, без които е невъзможно да си представим. Следователно безопасността в тази част на апартамента трябва да е на първо място. Електроснабдяването, газоснабдяването и водоснабдяването са полезни изобретения, но в ръцете на хак или безотговорно лице те причиняват пожари, наранявания, инциденти. За да избегнете подобни проблеми при разработването на кухненски дизайн, трябва внимателно да обмислите всички детайли на интериора, както и внимателно да обмислите местоположението на гнездата по отношение на газовата тръба, котлона и отоплителните уреди. Здравето, благосъстоянието и понякога животът на човек зависи от това.
Минималното разстояние на изхода до тръбопровода или газопровода е 50 cm.
Възможно ли е да инсталирате газов котел със собствените си ръце?
При проектирането на отоплителна система трябва да се вземат предвид изискванията на газовите услуги, които те налагат както на мястото на монтаж на стенен газов котел, така и на самия процес на монтаж.Ако всички технически изисквания и строителни норми са изпълнени, някои работи могат да се извършат на ръка.


Снимка 1: Пускане в експлоатация на стенен котел от представител на газовата служба
Трябва да се помни, че е разрешено само самостоятелно поставяне на монтирания на стена котел в подготвената стая в съответствие с проекта, разработен от газовата служба. Свързването към газопровода и всички пускови работи трябва да се извършват от сертифицирани специалисти, които имат разрешение за извършване на тези работи.
Имайте предвид също, че не всички производители позволяват инсталирането на газови котли със собствените си ръце. Много големи компании, които произвеждат отоплително газово оборудване, като Bosch, Ariston, Viessmann, анулират гаранцията за стенен котел, ако инсталацията е извършена от неквалифициран служител.
Обратно към съдържанието















