The heating system is in one form or another, but it is present in every house. If earlier it was based on a stove, today it has almost everywhere been replaced by special devices - heating devices.
But if most of them have similar designs, then the scheme of the pyrolysis boiler differs very much from them. This is due to the work on various types of fuel.
However, the way it is burned can also be different. To make sure of this, consider the device of the pyrolysis boiler, its principle of operation and the connection diagram in detail.
New in wood heating
The fact that the operation of any home stove, and many modern heating devices, is based on burning fuel, with the obligatory supply of oxygen-enriched air, is known to everyone. But modern gas-generating models of boilers have fundamentally crossed out this principle.
Their operation requires a high temperature with a lack of oxygen, which means that the design of the pyrolysis boiler is fundamentally different from other models. What happens to the wood in this case?
Under the influence of high temperature, they break down into components:
- Solid residues (coal)
- Pyrolysis gas
- Resin
- Methyl alcohol
All the obtained substances are flammable and are burned during the operation of the device, while the more the wood is heated, the more gas will be obtained at the exit. And the operation of the apparatus is based on its combustion, for which they are often called gas generators.
To understand how this process takes place, we will consider what the design of pyrolysis boilers is and what functions each of the units performs.
Tools and materials
To mount such a unit on your own, you will need the following set of tools and materials:
- Thermal sensor.
- Fan.
- Steel strips of various thicknesses and widths.
- A set of professional pipes with a diameter of 2 mm.
- Metal sheets 4mm thick.
- A set of pipes of various diameters.
- Cutting wheel with a diameter of 230 mm.
- Grinding wheel with a diameter of 125 mm.
- Hand circular saw (grinder).
- Several packages of electrodes.
- Welding machine.
- Electric drill.
If you plan to make your own pyrolysis boiler, then the recommended steel thickness should be 4 mm. To save money, you can use 3 mm steel. For the manufacture of the device case, you will need strong steel that can withstand high temperature conditions.
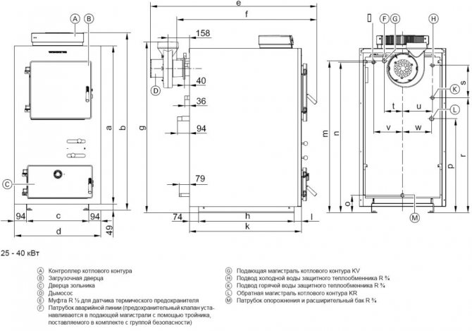
Classic device diagram

The main elements of the pyrolysis boiler:
- Afterburner and gasification chambers
- Air supply ducts
- Water heat exchanger
- Grate
- Chimney
- Temperature and pressure sensors
- Fan or smoke exhauster
However, in order to have a good idea of the whole process of operation of the heating unit, we will consider the device of pyrolysis boilers, and get acquainted with the purpose of each of the units included in it.
To begin with, any heating device is designed to heat water to the required temperature and supply it to the system. A water heat exchanger is used for this purpose. The coolant enters it through the return line branch pipe, heats up and returns back through the supply line.
The combustion chamber is used for fuel combustion and its decomposition when there is a lack of primary air. The amount of the latter is regulated by an independent thermostat.
The afterburner compartment is necessary for the oxidation of the pyrolysis gas when interacting with secondary air and collecting ash. The flue gas connection and chimney are necessary for the emission of smoke into the atmosphere.
Advantages and disadvantages
The advantages of a pyrolysis heating unit include:
Another significant advantage of gas-fired boilers is their compatibility with any heating system.
The downsides are:
- high price;
- complex construction;
- bulkiness;
- increased requirements for fuel in relation to moisture;
- the need to connect to electricity (refer to models of boilers with forced air supply).
Phased operation of the pyrolysis boiler


In order to have the most complete idea of the design features of the apparatus and the principle of its operation, consider the device of the pyrolysis boiler and its connection diagrams in the photo below.
The chambers are located one above the other and are separated by a grate. Initially, firewood is loaded into the upper part, which is a fuel bunker, and set on fire.
After closing the door and starting the smoke exhauster or fan, the wood is dried. Further, when the temperature rises to 200 degrees or more and there is a lack of oxygen in the chamber, decomposition into a solid residue and wood gas occurs - this is the pyrolysis process.
The lower compartment or combustion chamber is used to burn the pyrolysis gas and collect the remaining ash after combustion. In it, secondary air is added to the released volatile substances and gas combustion occurs, and part of the heat returns to the lower layer of firewood, increasing the temperature and maintaining the pyrolysis process.
In this case, the boiler output is regulated by pressurizing the secondary air through the channels used for its supply.
At the next stage, the heat obtained during the reaction is used to heat water in a heat exchanger, which then enters the heating system.
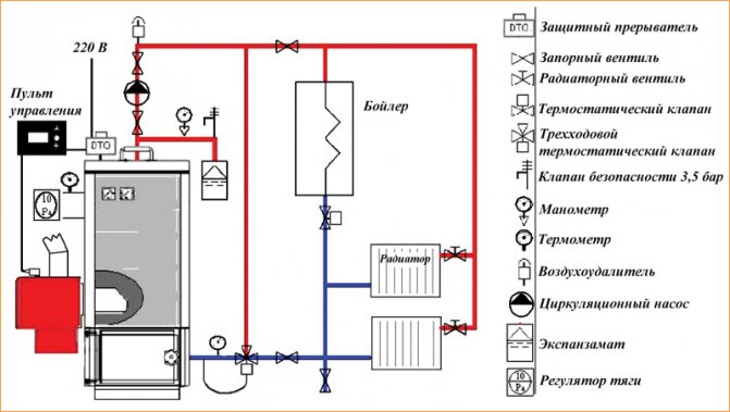
Wiring diagram in detail
It is not enough to buy a heating device, it is also necessary to install it correctly, as well as connect it to the system.
The connection of the pyrolysis boiler can be done in several ways:
- Simple
- With mixing contour
- With a hydraulic arrow
- With storage tank and DHW circuit


The first, in addition to the device itself, includes: a circulation pump, an expansion tank and a security group. With such a connection, a small amount of condensation may occur, but the control unit reacts to its accumulation. In this case, it cuts off the power supply to the pump and thus prevents the formation of a large amount of condensation.
The second scheme for connecting a pyrolysis boiler, in addition to the previously listed nodes, also includes a mixing circuit and taps necessary to adjust the amount of coolant. It is somewhat better than a simple one and completely eliminates the formation of condensate on the walls of the boiler.
The third is most often used for systems with several heating circuits and contains a hydraulic arrow. Its main role is to exclude the hydraulic effect of the pumps among themselves. But it is also capable of degassing the heating system.
And the last one is the scheme of operation of the pyrolysis boiler with Laddomat 21. It includes an accumulation tank and a hot water supply circuit, the ideal operation of which is ensured by an additional unit. The selection of the volume of the container is carried out according to the following indicators: not less than 25 liters per 1 kW of power.
This scheme, thanks to the Laddomat 21 unit, is able to replace the classic connection scheme, which consists of individual elements. It works in the following mode. The water is heated to the set value by adjusting its flow from the storage tank using the thermostat valve.It increases or decreases the cross-section of the return line and thereby affects the achievement of the specified parameters by the coolant.
In addition, the presence of a storage tank in it allows the boiler to operate in optimal mode. And in case of a sudden power outage, it allows you to maintain the temperature of the coolant at a given level for two days.
The efficiency of the DHW circuit is achieved by using the energy of the boiler. Getting hot water for household needs is possible due to the release of a part of its heat by the coolant through the walls of the tank.
Which scheme for connecting a pyrolysis boiler, from the ones discussed above, will be optimal, depends on the specifics of the heating system, and in part on the availability of a free amount of money.
But in any case, they must meet the following conditions:
- Meet safety requirements
- Ensure good circulation of the coolant in the system
And do not forget that the better the boiler piping is equipped, the more economical it will be in operation and more convenient to operate and maintain.
Is it possible to make a pyrolysis boiler yourself


Homemade pyrolysis boiler
Many people believe that connecting and configuring such a complex device as a pyrolysis boiler is a complex process that only specialists can perform. However, as practice often shows, the installation of such a boiler is much easier than a gas heating boiler. In addition to the fact that there is a traditional scheme for connecting a serially produced pyrolysis boiler, there are various schemes that allow you not only to independently connect, but also to make a gas generator boiler yourself.
Before buying a pyrolysis boiler of industrial production and attracting specialists to connect it, whose services are not cheap, it is worth calculating the upcoming costs. As a rule, installing a heating boiler on your own will cost half the price, not to mention those cases when you can make such a boiler yourself. Now you can find ready-made drawings of a pyrolysis boiler, or you can, with some imagination, make a boiler diagram yourself. By the way, some devices developed by home craftsmen significantly exceed those models that are assembled in production conditions.
In particular, it is worth noting the Blago boilers, the developer of which is Yu.P. Blagodarov. The main achievement of the designer was the main emphasis on providing natural draft, which ensures longer combustion and maximum economic effect - the efficiency of such boilers is much higher than even the most efficient industrial boilers. This is also facilitated by some structural elements (lintels) that allow you to keep warm.
What is the most economical heating device?
All boilers are used to heat residential or industrial premises and are divided into three types:
- Gas
- Electro
- Solid fuel, long burning
Each of them operates on a certain type of fuel and has its own advantages and disadvantages. But how do you choose the most reliable and economically profitable sample? To answer this question, it is necessary to consider each of the models produced and, having compared the device of the pyrolysis boiler itself and other types, choose the one that is suitable for specific conditions.
The most common are gas
Let's start with gas equipment, since this type of fuel is considered one of the cheapest, and given the Russian climatic conditions, its consumption in winter will be large. Devices of this type on the market are represented by various manufacturers and a wide range of models, so there is plenty to choose from.
However, it must be borne in mind that gas appliances differ in:
- Installation method (floor or wall)
- Functionality (with one or two circuits - for heating and DHW)
- Burner types (electric or piezo ignition)
- Removal of combustion products (with natural or forced draft)


They have differences in power, and the area of the heated room is directly dependent on its value. Usually, for the calculation, average data are taken, namely that 1 kW of power is required for 10 m² with a ceiling height of no more than 3 meters.
The advantages of gas equipment include the fact that for devices with forced draft, the equipment of a classic chimney is not required. It usually uses a coaxial pipe that comes with the boiler.
But gas models have drawbacks. The biggest of them is the ability to operate on only one type of fuel and, therefore, the possibility of using such equipment is available only in gasified settlements.
Electric is the simplest and most convenient


Next on our list are electrical appliances. And although this type of equipment is considered one of the most expensive to operate due to the high cost of electricity, you should not completely abandon it.
Electric models have some advantages over other models.
Firstly, they are irreplaceable in suburban settlements, to which the gas main is not connected.
Secondly, they are cheaper than liquid or solid fuel models and are very easy to install, which means they will not require additional costs, except for their own cost.
Thirdly, they can be installed in any room, have small dimensions and weight, and surpass other types of equipment in these indicators.
Their design is very simple and includes:
- Control block
- Heat exchanger (consisting of a tank and heating elements)


Thanks to this, they are very easy to use, do not require preventive maintenance and cleaning. But their most important advantage is environmental friendliness.
They do not burn oxygen in the room, do not emit harmful substances into the atmosphere and are very easy to adjust.
A wide range of capacities allows the use of such equipment not only for heating private houses and apartments, but also for large industrial premises, and even those in which other boilers are prohibited.
In addition, they are fully automated. This allows you to specify the desired temperature, which in the future the device maintains on its own.
Progressive - pyrolysis
Last on our list are solid fuel boilers for long burning. They also have another name - gas generators. Their principle of operation is based on the combustion of firewood or waste from wood processing, and in some models, coal. At the same time, they have the ability to use fuel as efficiently as possible, and thereby increase efficiency.


They can be used both for space heating and hot water preparation. Modern models are equipped with automation that simplifies their operation. The advantages include the cost of fuel, it is one of the cheapest and most affordable in any locality.
Unlike gas models, they do not require approval for installation, and also surpass them in fire safety, the scheme of the pyrolysis boilers themselves is very simple and allows you to install them yourself.
But their most important advantage is complete autonomy. Even in the absence of gas and electricity in the house, they will be able to provide you with warmth and hot water.



