Das Abschalten von heißem Wasser kommt häufig vor. Dies geschieht aufgrund von Reparaturen, vorbeugenden Wartungsarbeiten und Unfällen im Wasserversorgungssystem, die viele Schwierigkeiten verursachen, insbesondere Schwierigkeiten bei der Warmwasserbereitung. Solche Stillstände wirken sich in der kalten Jahreszeit besonders negativ aus.
Die Lösung für dieses Problem ist die Installation eines Warmwasserbereiters. Dieses Gerät versorgt eine Wohnung oder ein Haus ständig mit heißem Wasser, und vor allem können Sie mit diesem Gerät die Kosten für Versorgungsunternehmen sparen. Was ist bei der Auswahl eines Kessels wichtig und welcher ist in Bezug auf Qualität und Kosten besser zu kaufen?

Es wird nützlich sein zu wissen: Kesseltypen: Finden Sie heraus, wie Sie einen Warmwasserbereiter für ein Sommerhaus oder eine Sommerwohnung auswählen können
Kesselfunktionen
Schauen Sie sich auch diese Artikel an
- Die Praktikabilität der Verwendung moderner Metallfarben
- DIY Mikrowellenschweißen
- Wasseraufbereitung für Industrieunternehmen
- Die Hauptvorteile der Verwendung von Fundamentblöcken
Merkmale des Drazice OKC 200 NTR Warmwasserbereiters:
- leistungsstarker Spiralwärmetauscher;
- maximale Heizwassertemperatur 110 ° C, Druck 1 MPa;
- Thermostat;
- Sicherheitsventil;
- emaillierter Stahltank;
- eingebaute Magnesiumanode;
- hochwertige Polyurethan-Isolierung;
- Alarm für den Betrieb des Warmwasserbereiters;
- präzise Kontrolle der Wassertemperatur;
- die Fähigkeit, den Kreislauf einzuschalten;
- einfache Installation und Anschluss an die Heizwasserquelle;
- sehr schnelles Erhitzen von Wasser.
Auswahl eines Kessels zum Erhitzen von Wasser
Es ist Zeit, Bilanz zu ziehen. Die Wahl eines Warmwasserbereiters hängt, wie wir bereits verstanden haben, stark von den anfänglichen Daten und der Anzahl der Verbraucher ab. Möglicherweise müssen Sie einen Spezialisten konsultieren, aber wir bieten Ihnen die folgenden Empfehlungen.
- Eine Person, die alleine in einer Wohnung lebt, wählt häufiger eine Durchflussheizung.
- Eine Familie mit drei Kindern, die in einer Nachbarwohnung lebt, wird einen 100-Liter-Lagerkessel bevorzugen.
- Der Eigentümer der Hütte wird zunächst Systeme mit indirekter Heizung oder eine kombinierte Version mit einem Gaskessel in Betracht ziehen.
- Für eine Datscha, in der manchmal kein Strom vorhanden ist, ist es möglich - wenn das Budget dies zulässt -, Geld für ein alternatives Warmwasserbereitungssystem auszugeben.
Welche Marke soll ich wählen?
Alle führenden Hersteller - ARISTON, BAXI, ELECTROLUX, GORENJE, THERMEX, BOSH und viele andere -, die miteinander wetteifern, behaupten ihre Exklusivität. Hier, wie in vielen anderen Bereichen, erhöht die Markenbekanntheit die Zuverlässigkeit und natürlich den Preis. Es lohnt sich auch, über die Nähe von Service-Centern und die Möglichkeit des Kaufs von Standard-Ersatzteilen nachzudenken: Anode, Heizelement, Dichtungen.
Wenn Sie bereit sind, für Zuverlässigkeit zu zahlen, wählen Sie teure und bekannte Marken. Wenn Sie der Richtlinie „Zwei einfache halten immer noch länger als eine teure“ folgen, wählen Sie Economy-Class-Modelle.
Warmwasserbereiter Form
Die Form und Größe des Kessels ist wichtig für Stadtwohnungen. In einem Privathaus, in dem das Problem des freien Speicherplatzes nicht so akut ist, können Sie einen elektrischen Warmwasserbereiter für den Standfuß wählen. Die Hersteller haben über das Design aller Muster nachgedacht und die kompaktesten Geräte hergestellt. Selbst wenn man auf dem Boden sitzt, nimmt es ein Minimum an Platz ein.
Verbraucher werden angeboten:
- vertikal;
- horizontal;
- Flachkessel.
Vertikal
Vertikale Heizungen sind hohe Zylinder mit einem Heizelement im Inneren. Hierbei handelt es sich häufiger um Bodenmodelle mit speziellen Beinen, an denen Rillen oder Löcher zur sicheren Befestigung an der Bodenoberfläche vorgesehen sind. Die Größe des Kessels hängt vom Volumen des Wassertanks und der Leistung der Ausrüstung ab.Je größer das Volumen und die Leistung sind, desto größer ist das Gerät. Die Modelle sind mit einem Bypass-Rückschlagventil ausgestattet, das ausgelöst wird, wenn der Druck im Gerät über die festgelegte Norm steigt.
Alle Modelle haben ein spezielles Innenfutter, das wie eine Thermoskanne wirkt. Speicherwarmwasserbereiter halten die Wassertemperatur lange Zeit aufrecht, nachdem das Gerät vom Netzwerk getrennt wurde.
Horizontal
Horizontale Kessel - Zylinder mit horizontalen Beinen, Tank. Sie nehmen mehr Platz in Anspruch und ziehen es daher vor, solche Modelle eher für die Wand als für die Bodenfixierung herzustellen. Sie passen gut in eine kleine Küche oder ein Bad oben im Raum. Die Ausrüstung enthält eine Reihe von Halterungen.
Eben
Flache Modelle können sowohl vertikal als auch horizontal sein. Dies sind die kompaktesten Warmwasserbereiter. Sie sind ideal für kleine Wohnungen und nehmen wenig Platz ein.
Welcher Kessel besser zu wählen ist, hängt jeweils von vielen Faktoren ab.
Welcher Warmwasserbereiter ist besser?
Bei der Auswahl eines Kessels einer großen Anzahl von Herstellern sollten Sie bekannten Marken den Vorzug geben. Dies sind bewährte Marken, die sich auf dem russischen und internationalen Markt bewährt haben. Gleichzeitig ist zu beachten, dass Sie für die Marke extra bezahlen müssen. Gorenie, Bosh, Eletrolux, Ariston - Kessel dieser Hersteller sind bekannt für ihre hohe Qualität und Langzeitarbeit im Bereich der Kesselproduktion. Die Unternehmen verfügen über eine breite Palette von Modellen, die unterschiedliche Preis- und technische Anforderungen der Verbraucher erfüllen.
Wenn möglich, lohnt es sich, Kessel von inländischen Unternehmen zu kaufen. Sie unterscheiden sich erheblich im Preis, berücksichtigen jedoch die Besonderheiten der lokalen Arbeit. In Bezug auf den Betrieb sind russische Modelle ausländischen Modellen nicht wesentlich unterlegen.
Bei der Auswahl chinesischer Kessel sollten Sie vorsichtig sein. So viel Glück hast du.
Technische Eigenschaften von Warmwasserbereitern mit einem Tank von 100 Litern
| Serie | Modell | Indikatoren | ||||||
| Leistung, kWt | Spannung, V. | Arbeitstemperatur, ° C. | Druck, bar | Wassererwärmungszeit auf 45 ° C, min | Abmessungen, mm | Gewicht (kg | ||
| Velis | QH, INOX QH | 1,5+1 | 230 | 80 | 8 | erster Panzer - 53, zweiter - 139 | 1275 x 490 x 270 | 30 |
| POWER, INOX POWER | 1,5+1 | 80 | Der erste Tank ist 91, der zweite ist 139 | |||||
| Profi | R. | 1,5 | 75 | 206 | 913 x 450 x 480 | 26 | ||
| ÖKO | 1,5 | 80 | 232 | 1338 x 450 x 470 | 26 | |||
| Blu | R. | 1,5 | 75 | 232 | 913 x 450 x 480 | 26 | ||
| ECO POWER | 2,5 | 80 | 130 | 1338 x 450 x 470 | 29 | |||
| TI | TI TRONIC | 1,5 | 80 | 232 | 913 x 450 x 480 | 26 | ||
| TI TECH QB | 2,0 | 75 | 170 | 963 x 493 x 499 | 34 | |||
| PERLA | 100 VRTD / 5 | 1,5 | 80 | 232 | 913 x 450 x 480 | 25 | ||
| SG | SG R100L / RTDTS | 1,8 | 80 | 6 | 175 | 904 x 450 x 470 | 35 | |
| SGA | SUPER SGA | 4,4 | — | 45 | 8 | 71 | 950 x 495 x 510 | 35 |


Vorteile und Nachteile
Die positiven Eigenschaften von Ariston-Kesseln umfassen:
- Schnelle Erwärmung des benötigten Wasservolumens.
- Tankbearbeitung mit AG + - und Titan + -Technologie.
- ABS-System, das die Installation vor Ausfällen schützt, die durch Spannungsspitzen, Undichtigkeiten usw. verursacht werden.
- Einfache, zuverlässige mechanische und elektronische Thermostate, mit denen Sie mit einem Fehler von nicht mehr als 1 ° C die genaueste Regelung erzielen können.
- Möglichkeit der Verwendung bei niedrigem Druck im Wasserversorgungssystem.
- Die ECO-Funktion ermöglicht die Wasserreinigung von schädlichen chemischen Elementen.
- Mit all den technischen Innovationen, die bei der Herstellung verwendet werden, bleibt der Preis für jede Kategorie von Verbrauchern erschwinglich.
- Die Garantiezeit beträgt 5 bis 10 Jahre.
Den Bewertungen nach zu urteilen, ist der Warmwasserbereiter nicht ohne Nachteile:
- Die Belastung des Stromnetzes erhöht sich um durchschnittlich 1-1,5 kW.
- Wenn die Lichter ausgeschaltet sind, funktionieren solche Geräte nicht.
- Das Set enthält keine Halterungen für die Montage an einer Wand, flexible Schläuche für eine Versorgungsleitung und ein Rohr zum Ablassen von Kondensat.
Lesen Sie auch: Nützliche Eigenschaften von Mango für den menschlichen Körper
So installieren Sie einen Ariston-Warmwasserbereiter
Gemäß den Anweisungen sollte der elektrische Speicherkessel von Ariston in trockenen, warmen und gut belüfteten Räumen installiert werden. Dieser Vorgang dauert ca. 2 Stunden und besteht aus folgenden Schritten:
eins.Mit einem Locher werden Löcher in die Wand für Anker gebohrt, an denen der Warmwasserbereiter aufgehängt ist.
2. Es wird mit flexiblen Schläuchen an die Wasserleitung angeschlossen. In der Regel ist der Kaltwassereinlass blau markiert. Darauf ist ein Überdruckventil angeordnet. Die rote Steckdose ist mit dem Hot Tap verbunden. Schlepptau ist an allen Gelenken gewickelt.
3. Die Wasserhähne werden geöffnet und alle Verbindungen auf Undichtigkeiten überprüft.
4. Über den Anschluss wird das Gerät an das Stromnetz angeschlossen. Der mit dem Buchstaben L gekennzeichnete Kontakt an der Klemme des Warmwasserbereiters bezeichnet "Phase", der Buchstabe N - "Null", die Erdung ist gelb markiert.
Bei Störungen während des Betriebs ist es besser, die Reparatur des Ariston-Kessels einem Spezialisten anzuvertrauen, indem Sie sich an ein autorisiertes Servicecenter wenden.
Solche Büros sind in allen größeren Städten Russlands geöffnet. Selbstreparatur kann zur Beschädigung teurer Komponenten und zum Rücktritt vom Garantieservice führen.


Die Durchschnittspreise in Rubel in Moskau sind unterschiedlich und hängen von der Serie und dem Modell des Kessels ab. Die billigste TI Shape 100 V-Installation kostet 4.800 - 5.660. Darüber hinaus ist zu beachten, dass der Preis des Ariston TI Shape 15 UR-Warmwasserbereiters, der mit einem viel kleineren Tank (nur 15 Liter) ausgestattet ist, nicht viel geringer ist - 4.100 - 4.500.
- Das ABS Blu R 100 V-Modell kostet 5.900 - 7.000.
- Sie können Ariston ABS PRO ECO 100 V für 7.100 - 8.600 kaufen, ABS Pro-R 100V ist etwas billiger - 5.800 - 8.380.
- Die Kosten für einen Warmwasserbereiter mit schneller Heizung für 100 l Ariston Velis betragen 12.700 - 14.910.
- Kombinierte Perla 100 VRTD / 5-Anlagen kosten durchschnittlich 9.440 bis 10.400.
- Die teuersten Einheiten sind SGA-17 100 - 1 9 700 Gas.
„Ich habe in meiner neuen Wohnung einen Ariston ABS Velis QH 100V-Kessel installiert. Als ich mich entschied, hatte ich Angst: ob ich das richtige Modell nehme, ob es zuverlässig ist und so weiter. Ein sachkundiger Freund hat überzeugt und ich bereue den Kauf nicht. Dank seines schlanken Körpers sieht es sehr kompakt aus. Es gab keine Schwierigkeiten im Management. Ich habe die Anweisungen schnell herausgefunden und dank der Digitalanzeige ist alles andere klar und einfach. Ich habe gehört, dass er viel Strom verbraucht. Nach meinen Beobachtungen ist es nicht viel mehr als eine Waschmaschine. "
„Ariston Blu ECO 100V wurde für ihre älteren Eltern gekauft. Sie haben es gewählt, weil alte Leute einen einfachen und zuverlässigen Kessel brauchen. Nach 2 Monaten haben wir unsere Wahl bewertet. Dieses Modell ist durch Drücken der falschen Taste vollständig vor Fehlfunktionen geschützt. Das heißt, es kann nicht ohne Wasser eingeschaltet werden. Wenn es zu Überhitzung kommt, schaltet es sich automatisch aus und so weiter. Und zu einem Preis von 6,5 Tausend Rubel passte es in das Budget. "
Stepan Aristov, Woronesch.
„Aus eigener Erfahrung war ich überzeugt, dass ein Hundert-Liter-Tank die beste Option für eine vierköpfige Familie ist. Wir haben einen Ariston TI Shape 100V gekauft. Neben dem günstigen Preis war ich mit der kompakten Größe, der einfachen Bedienung und der präzisen Arbeit zufrieden. Wenn Sie duschen und das Geschirr ohne Schnickschnack spülen, haben wir vier genug Wasser für den ganzen Tag. "
Unter der großen Auswahl an Warmwasserbereitern zeichnen sich Ariston-Geräte durch Originalität, positive Bewertungen und hohe technische Eigenschaften aus.
Inhaltsverzeichnis:
Allgemeines Konzept der Ariston-Warmwasserbereiter
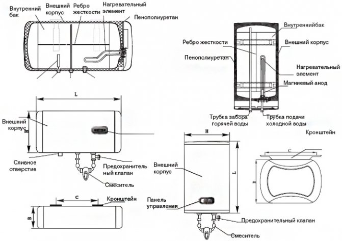
Ariston-Warmwasserbereiter sind Geräte, die die Funktion des Erhitzens und Aufrechterhaltens einer hohen Wassertemperatur erfüllen.


Ariston Warmwasserbereiter bestehen aus:
- externes Stahl- oder Kunststoffgehäuse;
- Befestigungselemente - Halterungen;
- einen Innentank mit einer AG + -Schutzbeschichtung, der die Wasserreinigung und den Schutz der Innenwände des Tanks gewährleistet;
- Magnesiumanode, die zusätzlichen Schutz gegen Rostbildung bietet;
- Wassereinlass- und -auslassvorrichtungen und Nanomix-Teiler;
- Polyurethanschaumisolierung, die keinen zusätzlichen Wärmeverlust zulässt;
- Temperatursensor;
- Kupferheizelement oder Heizelement;
- Bedienfelder und Digitalanzeige;
- einen Flansch, der das Heizelement, die Anode und den Temperatursensor hält;
- Fehlerstromschutzschalter;
- Schutz gegen Einschalten der Heizung, wenn kein Wasser vorhanden ist;
- elektrischer Schutz;
- Schutz vor Mikroorganismen.


Vorteile beim Kauf und der Installation von Ariston-Warmwasserbereitern:
1. Das stilvolle Design hilft dabei, den Warmwasserbereiter in jeden Innenraum einzubauen. Ariston Warmwasserbereiter sind mit der neuesten Technologie ausgestattet.
2.Die moderne Beschichtung der Innenwände des Tanks schützt den Warmwasserbereiter vor Rost und Ablagerungen. Somit hält der Warmwasserbereiter länger.
3. Der innovative Nanomix-Teiler mischt kein kaltes und heißes Wasser und hält so die Temperatur des erwärmten Wassers aufrecht.
4. Dank der Wärmedämmung bleibt das Wasser lange heiß und spart so Energie oder Gas.
5. Temperaturregelungssensoren, um eine Überhitzung des Geräts zu vermeiden.
6. Bei plötzlichen Spannungsabfällen wird eine Schutzabschaltung ausgelöst, die das Risiko einer Beschädigung des Warmwasserbereiters und eines Stromschlags für eine Person ausschließt.
7. Einige Modelle von Warmwasserbereitern sind mit einem professionellen Schutz gegen Bakterien ausgestattet, der es Ihnen ermöglicht, gereinigtes warmes Wasser zu erhalten.
8. Der Schutz gegen Einschalten des Warmwasserbereiters in dem Moment, in dem sich kein Wasser im System befindet, schützt das Gerät vor Beschädigungen.


Sorten von Ariston Warmwasserbereitern
Ariston-Warmwasserbereiter sind je nach Funktionsprinzip unterteilt in:
Der zweite Name eines Warmwasserbereiters ist ein Kessel. Es ist ein kleines Reservoir, in das Wasser eintritt und von einer bestimmten Wärmequelle erwärmt wird.
Kessel sind unterteilt in:
- direkt befeuerte Warmwasserbereiter, die Wasser mit Strom oder Gas erwärmen;
- indirekte Heizkessel, die sich in der Nähe eines Wärmetauschers befinden, beispielsweise eines Kessels.
Der Kessel ist ein Stahltank mit einer obligatorischen Wärmeisolierung, um Wärmeverluste zu vermeiden.
Nach dem Prinzip und dem Arbeitsplatz sind die Kessel unterteilt in:
- offene Geräte,
- geschlossene Geräte.


1. Offene Warmwasserbereiter bestehen aus Kunststoff. Solche Kessel werden in einem einzelnen Wasserversorgungssystem verwendet, um einem bestimmten Abzugspunkt heißes Wasser zuzuführen. Wasser, das in den Kessel gelangt und den Behälter füllt, wird geschlossen, bis es vollständig erhitzt ist. Dann drückt der Mischer das überschüssige Wasser in die Spüle. Warmwasser wird jedoch nur zugeführt, wenn kaltes Wasser in den Kessel gelangt. Das heißt, Sie können nicht das gesamte heiße Wasser verwenden und dann den Tank wieder auffüllen. Bei einem offenen Gerät befindet sich der Einlass für kaltes Wasser unten, und bei heißem Wasser von oben gelangt daher ohne den Druck von kaltem Wasser kein heißes Wasser in das System. Da sich oben heißes Wasser und unten kaltes Wasser befindet, vermischt sich das Wasser im Kessel nicht, was eine allmähliche Erwärmung des Wassers ermöglicht.
Lesen Sie auch: Pfahlgründung für ein Fachwerkhaus
2. Geschlossene Warmwasserbereiter werden für mehrere Abzugspunkte verwendet. Das Material zur Herstellung des Heiztanks eines solchen Kessels ist Metall, Kupfer, Edelstahl oder emaillierter Stahl. Da der Behälter mit Wasser geschlossen ist und sich das Wasser beim Erhitzen ausdehnt, umfasst der komplette Satz eines solchen Kessels ein Sicherheitsventil, ein Sammelventil und ein Rückschlagventil. Wenn der Druck im Gerät steigt, wird ein Sicherheitsventil ausgelöst, das ein spezielles Ventil öffnet und überschüssiges Wasser in den Abfluss fließt. Um die Bildung von Rost zu verhindern, wird in geschlossenen Kesseln ein kathodischer Schutz vor einer Magnesium- oder verzinkten Anode verwendet.


Ein Durchfluss-Warmwasserbereiter hat einen kleinen Tank, daher wird das Heizelement meist in einem kleinen Rohrstück platziert. Während des Wasserflusses durch diesen Abschnitt erwärmt das Heizelement die Flüssigkeit.
Durchlauferhitzer sind:
- direkte Heizung,
- indirekte Heizung.
Warmwasserbereiter mit Direktheizung erzeugen eine Warmwasserbereitung mit einem Heizelement, einer Spirale oder einem Gasbrenner.
Indirekt beheizte Warmwasserbereiter verwenden ein Heizmedium, das ein mit Wasser gefülltes Rohr erwärmt.
Durchflusserhitzer sind unterteilt in:
Geschlossene Durchlauferhitzer bieten neben der Lagerung mehrere Abzugspunkte und offene - nur einen.
Je nach Art der Zündung geben Durchlauferhitzer Folgendes ab:
- piezoelektrische Gaszündung,
- elektronische Gaszündung,
- Wasserturbinengaszündung.


Wenn sich Wasser durch ein Rohr mit einem Heizelement bewegt, wird ein Signal über die Durchflusssensoren empfangen und das Heizelement wird eingeschaltet, um das Wasser zu erwärmen. Wenn das heiße Wasser ausgeschaltet wird oder das Rohr überhitzt, wird das Wasserheizelement ausgeschaltet. Durchlauferhitzer haben keine Warm- und Kaltwassermischer.
Je nach Art der Heizung gibt es:
- Durchflussgas-Warmwasserbereiter,
- Durchflusserhitzer.
In einem Gaswarmwasserbereiter wird die Wassertemperatur durch die zugeführte Gasmenge geregelt, und in einem elektrischen Warmwasserbereiter sind spezielle Temperaturregelungssensoren installiert.
Eigenschaften von Ariston Warmwasserbereitern
Die Ariston Thermo Group ist ein italienisches Unternehmen, das seit über 50 Jahren Warmwasserbereitungs- und Heizungsanlagen herstellt.
Das Unternehmen Ariston produziert Elektro- und Gaswarmwasserbereiter, Speicher- und Durchlauferhitzer.
Ariston Warmwasserbereiter Bewertungen - die meisten positiven Inhalte, viele Verbraucher charakterisieren Ariston Warmwasserbereiter als langlebige Geräte, die mit modernen nützlichen Funktionen und einem attraktiven Erscheinungsbild ausgestattet sind.


1. Elektrische Warmwasserbereiter Ariston-Lagertyp:
- Die Serie der Warmwasserbereiter Ariston ABC produziert an der Wand montierte Warmwasserbereiter Eco Slim - kompakte Größen, Platinum Slim - mit einer Edelstahlbeschichtung, Silver Platinum Slim - mit einer speziellen Silberbeschichtung, die die Bildung von Rost verhindert. Das Shuttle-Modell ist in hergestellt eine flache rechteckige Form;
- Modelle der TI Shape-Serie verfügen über eine Titanbeschichtung und eine Flüssigkristallanzeige zur Einstellung des Betriebs des Warmwasserbereiters. Das Modell TI Shape Control verfügt über eine Fernbedienung.
- Die Super Glass Resin-Serie stellt minimierte Modelle dar, die leicht über oder unter der Spüle installiert werden können und mit fein verteiltem Email beschichtet sind.
- Das Eureka-Modell hat eine ungewöhnliche Ballonform und ist mit einem Wasserhahn oder einer Dusche ausgestattet. Nach Wahl des Käufers besteht das Tankmaterial aus hitzebeständigem Kunststoff.
- Die Industrieserie umfasst Modelle zum Erhitzen von Wasser in großen Unternehmen, die sich durch eine Titanbeschichtung auszeichnen und von zwei Arten sind: Wand- oder Bodenmontage;
- Velis - Warmwasserbereiter mit Fernbedienung und doppelter Leistung, Warmwasserbereiter haben eine flache Form und ermöglichen die Installation austauschbarer Farbdisplays.


2. Elektrische Warmwasserbereiter Ariston Strömungstyp:
- Bravo E - verfügt über eine elektronische Steuerung, Anzeigen zum Einschalten und Einstellen der Wassertemperatur;
- Bravo M - ausgestattet mit einem mechanischen Steuerungssystem, enthält das Set neben dem Warmwasserbereiter einen Duschkopf und einen eingebauten Filter.
3. Gasspeicher-Warmwasserbereiter:
- Super SGA-Modell - an der Wand befestigt, hat natürlichen Luftzug, ist mit fein verteiltem Email bedeckt und bietet einen wirtschaftlichen Gasverbrauch, unabhängig von der Stromversorgung;
- SGA - hat eine offene Brennkammer, eine Stahlaußenabdeckung, Sicherheitssensoren und wird mit Flüssiggas betrieben;
- NHRE ist ein großer Stand-Warmwasserbereiter, der in 24 Minuten 600 Liter Wasser erwärmen kann. Er verfügt über eine Wärmeisolierung aus Mineralwolle. Die Außenwände sind mit Vinylleder bezogen.


4. Fließender Gaswarmwasserbereiter Ariston:
- DGI - Warmwasserbereiter mit elektronischer Zündung, Leistungsregelung erfolgt manuell, Rauch wird auf natürliche Weise entfernt, die Warmwasserbereiter haben eine flache rechteckige Form;
- Schnelle CF - erfordert keine zusätzliche Stromversorgung, der Wärmetauscher besteht aus Kupfer, wodurch der Wärmeverlust erheblich reduziert wird.
- Marco Polo g7s - eine geschlossene Brennkammer, die zusätzliche Sicherheit, das Vorhandensein eines Touchscreens und modernes Design bietet, macht dieses Modell zu einem der beliebtesten Modelle bei Verbrauchern.
- Marco Polo M2 ist ein Modell mit offener Brennkammer und Lüfter zum Entfernen von Rauch. Zwei Schutzstufen des Geräts gegen Überhitzung garantieren ein hohes Maß an Sicherheit und eine lange Lebensdauer des Geräts.
5. Kessel indirekten Typs:
- BACD-Serie von Warmwasserbereitern, die an Wand- oder Standkessel angeschlossen sind; das Paket enthält ein Paket zum Anschließen eines Warmwasserbereiters an den Kessel;
- Das BS1S-Modell verfügt über einen Spiralwärmetauscher und ein Stahlgehäuse. Es ist möglich, einen Thermostat zur Temperaturregelung zu installieren. Außerdem sind Installationsfüße im Lieferumfang des Warmwasserbereiters enthalten.
- Der BS2S-Warmwasserbereiter zeichnet sich durch zwei Wärmetauscher aus, die mit fein verteiltem Email bedeckt sind. Die Titanbeschichtung schützt das Innengehäuse vor Korrosion.
- Modell des Warmwasserbereiters ВСН eignet sich sowohl für die Installation an der Wand als auch am Boden. Die Garantie für dieses Modell beträgt ein Jahr.
Die Preise für Ariston-Warmwasserbereiter hängen von der Art und dem Funktionsprinzip des Geräts ab. Die Mindestkosten für einen elektrischen Warmwasserbereiter vom Ariston-Speichertyp betragen 110 USD und für einen elektrischen Durchlauf-Warmwasserbereiter 90 USD. Der Preis für einen Gas-Durchlauferhitzer beträgt 190 USD, die Mindestkosten für einen Gasspeicher-Warmwasserbereiter betragen 210 USD.


Ariston Warmwasserbereiter Anschluss
Vor der Installation des Geräts sollten Sie die Anweisungen des Ariston-Warmwasserbereiters lesen, in denen die einzelnen Merkmale der Installation eines bestimmten Modells eines Warmwasserbereiters aufgeführt sind.
Installationsdiagramm des Ariston-Warmwasserbereiters:
1. Befestigen Sie den Kessel an der Wand. Stellen Sie vor Beginn dieses Vorgangs sicher, dass die Wand das doppelte Gewicht des Warmwasserbereiters tragen kann. Umreißen Sie mit einem Bleistift und einer Wasserwaage die Position des Warmwasserbereiters und bringen Sie die Befestigungselemente an. Achten Sie auf die Montagehöhe. Der Installationsort sollte für die weitere Wartung des Geräts geeignet sein. Der Abstand zwischen den Befestigungselementen ist in der Anleitung angegeben. Bei einem 30-Liter-Warmwasserbereiter beträgt der Abstand beispielsweise 27 cm. Zum Installieren der Streifen, auf denen der Warmwasserbereiter montiert ist, müssen vier Löcher gebohrt werden.
2. Die Installation des Standheizungsgeräts ist einfacher. Sie müssen lediglich die Bodenfüße am Gerät befestigen.
3. Schließen Sie das Gerät nach der Installation des Warmwasserbereiters an die Wasserversorgung an. Stecken Sie die Rohre in die Einlass- und Auslasslöcher für kaltes Wasser und sichern Sie die Rohre mit Muttern. In den meisten Fällen ist keine zusätzliche Abdichtung erforderlich, verwenden Sie jedoch auf Wunsch eine Gummidichtung oder ein Dichtmittel.
Lesen Sie auch: Gut Tauchpumpen Bewertungen
4. Schalten Sie das Wasser ein und warten Sie, bis der Tank voll ist. Überprüfen Sie das Gerät auf Undichtigkeiten und schalten Sie es erst dann ein.
5. Bei der Installation eines elektrischen Warmwasserbereiters ist es besser, eine geerdete Steckdose zu verwenden.
6. Wählen Sie die für den Betrieb des Warmwasserbereiters erforderliche Leistung und überprüfen Sie nach einiger Zeit die Wassertemperatur.
Die italienische Marke Ariston benötigt kaum zusätzliche Werbung. Die Geräte dieser beliebten Marke sind in fast allen Haushalten der Welt vertreten. "Ariston" ist einer der Marktführer im Verkauf von Haushaltsgeräten und hat sich dieses Prestige zu Recht verdient. Das Vertriebsnetz dieses Unternehmens umfasst Tausende großer und kleiner Tochterunternehmen und Firmen und wird weiter ausgebaut.
Jetzt ist das Sortiment an Ariston-Produkten sehr groß. Angefangen von großen Haushaltsgeräten bis hin zu kleinen und „intelligenten“ Geräten fürs Leben: Waschmaschinen, Kühlschränke, Gefrierschränke, Gas-Elektroherde, Konverteröfen und Kochfelder, Geschirrspülmaschinen, Heizgeräte und Klimasysteme.






